Images
Description
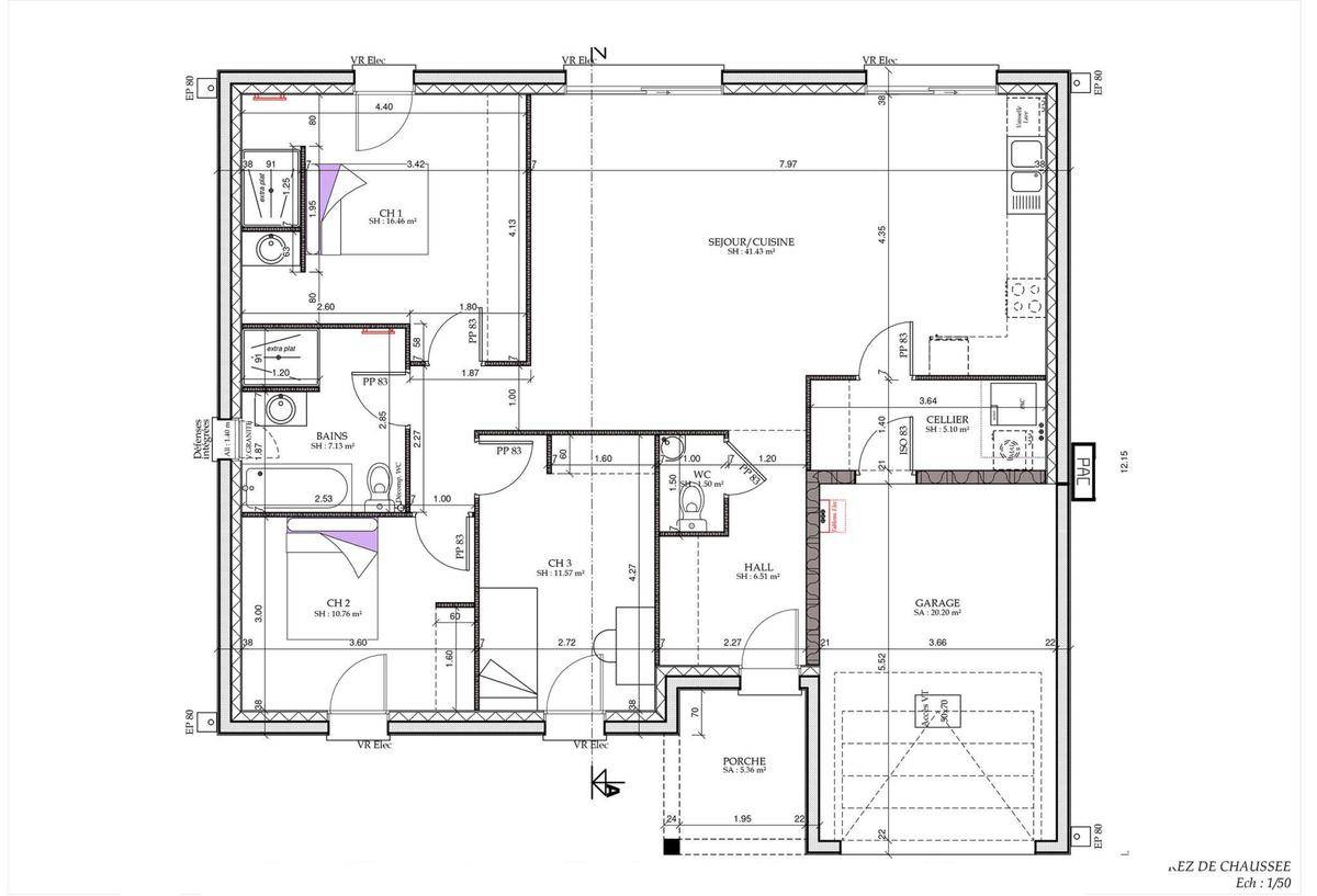
Sur ce terrain, nous vous proposons cette maison neuve : la Verdania. Conçue par Babeau-Seguin, constructeur reconnu pour offrir le meilleur rapport qualité/prix du marché, cette maison de 91 m² allie confort, modernité et économie d'énergie.
L’équilibre parfait entre confort et accessibilité
Découvrez la maison Verdania, un modèle ingénieux qui incarne l’alliance entre le confort familial et un prix canon. Bénéficiant de notre collaboration étroite avec des partenaires industriels de confiance, Verdania offre une généreuse superficie de 91 m² au meilleur rapport qualité-prix.
Cette maison en L, caractérisée par un porche accueillant à l’entrée, est conçue pour répondre aux attentes des familles modernes soucieuses de leur budget. La toiture à 4 pans et les baies coulissantes apportent une touche d'élégance et de modernité à l'ensemble.
Verdania : Économique, écologique et intelligemment conçue
Verdania va au-delà de l’aspect financier maîtrisé en intégrant des équipements économiques et écologiques de pointe, alignés avec les normes de la RE2020. L’architecture en L offre un grand séjour lumineux, illuminé par deux baies vitrées, créant ainsi un espace convivial et chaleureux. La maison inclut également un cellier et un garage intelligemment intégré dans la partie en L.
Avec une salle de bain comprenant à la fois douche et baignoire, ainsi que trois chambres dont une suite parentale, Verdania répond aux besoins d’un grand nombre de familles tout en respectant leur budget. L’équilibre parfait entre prix maîtrisé et confort de vie optimum.
Les options les plus demandées par nos clients, telles qu'une terrasse bétonnée, peuvent être ajoutées pour parfaire votre projet.
Ne manquez pas cette opportunité unique d'acquérir une maison neuve, basse consommation et conforme à la RE2020, qui saura répondre à toutes vos attentes. Contactez-nous dès aujourd'hui pour plus d'informations et pour planifier une visite.
Logement susceptibles de vous intéresser
Nous vous proposons de découvrir aussi cette sélection de logements situés à moins de 10km de Froncles et qui seraient susceptibles de vous intéresser.

Froncles
TERRAIN ET MAISONSur ce terrain, nous vous proposons cette maison neuve : la Verdania. Conçue par Babeau-Seguin, constructeur reconnu pour offrir le meilleur rapport qualité/prix du marché, cette maison de 91 m² allie confort, modernité et économie d’énergie.L’équilibre parfait entre confort et accessibilitéDécouvrez la maison Verdania, un modèle ingénieux qui incarne l’alliance entre le confort familial et un prix canon. Bénéficiant de notre collaboration étroite avec des partenaires industriels de confiance, Verdania offre une généreuse superficie de 91 m² au meilleur rapport qualité-prix.Cette maison en L, caractérisée par un porche accueillant à l’entrée, est conçue pour répondre aux attentes des familles modernes soucieuses de leur budget. La toiture à 4 pans et les baies coulissantes apportent une touche d’élégance et de modernité à l’ensemble.Verdania : Économique, écologique et intelligemment conçueVerdania va au-delà de l’aspect financier maîtrisé en intégrant des équipements économiques et écologiques de pointe, alignés avec les normes de la RE2020. L’architecture en L offre un grand séjour lumineux, illuminé par deux baies vitrées, créant ainsi un espace convivial et chaleureux. La maison inclut également un cellier et un garage intelligemment intégré dans la partie en L.Avec une salle de bain comprenant à la fois douche et baignoire, ainsi que trois chambres dont une suite parentale, Verdania répond aux besoins d’un grand nombre de familles tout en respectant leur budget. L’équilibre parfait entre prix maîtrisé et confort de vie optimum.Les options les plus demandées par nos clients, telles qu’une terrasse bétonnée, peuvent être ajoutées pour parfaire votre projet.Ne manquez pas cette opportunité unique d’acquérir une maison neuve, basse consommation et conforme à la RE2020, qui saura répondre à toutes vos attentes. Contactez-nous dès aujourd’hui pour plus d’informations et pour planifier une visite.

Froncles
TERRAINÀ la recherche d’un terrain idéal pour votre projet de construction de maison ? Ne cherchez plus ! Ce terrain viabilisé de 523 m², situé dans le charmant lotissement de Froncles, offre un cadre champêtre et paisible qui promet de sublimer votre futur chez-vous. Profitez de ses caractéristiques uniques et de son prix attractif, qui en font une véritable opportunité d’investissement dans un environnement propice à la vie familiale et citoyenne. Idéalement situé dans la Haute-Marne, au cœur de la région Grand Est, Froncles séduit par son cadre de vie agréable. Vous bénéficierez à proximité immédiate de commerces et de commodités essentielles, ainsi que d’établissements scolaires allant de l’école primaire jusqu’au collège et lycée. Ce village vivant est également apprécié pour son atmosphère conviviale et ses paysages naturels, parfaits pour les promenades en famille. Offrez à vos proches un cadre de vie incomparable dans ce département plein de charme ! Ce terrain est une promesse de futurs souvenirs inoubliables. Ne manquez pas cette occasion unique d’investir dans un projet qui vous ressemble ! À noter qu’en tant que constructeur, nous ne sommes pas mandatés pour réaliser la vente de ce terrain.

Mussey-sur-Marne
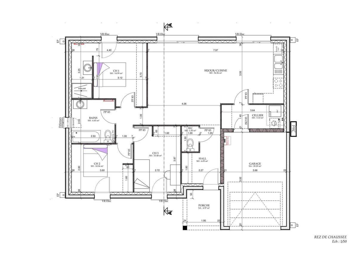
TERRAIN ET MAISONSur ce terrain, nous vous proposons cette maison neuve : la Verdania. Conçue par Babeau-Seguin, constructeur reconnu pour offrir le meilleur rapport qualité/prix du marché, cette maison de 100 m² incarne l’équilibre parfait entre confort et accessibilité.La Verdania se distingue par son architecture en L et sa toiture à 4 pans, offrant une allure moderne et élégante. Dès l’entrée, un porche accueillant vous invite à découvrir un intérieur spacieux et lumineux. Le grand séjour, baigné de lumière grâce à ses baies coulissantes, est le cœur de cette maison, idéal pour des moments conviviaux en famille.Cette maison dispose de 4 pièces, dont 3 chambres confortables. La suite parentale, véritable havre de paix, est conçue pour offrir intimité et confort. La salle de bain est équipée à la fois d’une douche et d’une baignoire, répondant ainsi aux besoins de toute la famille.Le garage intégré et le cellier ajoutent une touche de praticité, facilitant le quotidien. De plus, la Verdania est conforme aux normes RE2020, garantissant une maison basse consommation et respectueuse de l’environnement.Les options les plus demandées par nos clients, telles que la terrasse bétonnée, peuvent être ajoutées pour personnaliser encore davantage votre future maison.Ne manquez pas cette opportunité unique d’acquérir une maison neuve, économique et écologique, parfaitement adaptée aux besoins des familles modernes. La Verdania, c’est l’assurance d’un investissement intelligent et durable.

Mussey-sur-Marne
TERRAINDécouvrez ce terrain exceptionnel de 1437 m², idéalement situé dans le charmant lotissement de Mussey-sur-Marne, dans le département de la Haute-Marne. Ce lot viabilisé offre une superbe vue dégagée et bénéficie d’un ensoleillement généreux, vous permettant de concevoir la maison de vos rêves dans un cadre champêtre et apaisant. Profitez de l’attractivité de la région Grand Est et laissez libre cours à votre imagination pour édifier un projet de construction harmonieux. Située à Mussey-sur-Marne, cette belle localité est entourée de paysages pittoresques et d’un environnement calme qui séduira les amateurs de nature. Vous trouverez à proximité diverses commodités pour faciliter votre quotidien, tout en étant à quelques pas des attractions locales qui font la renommée de la Haute-Marne. Que ce soit pour une vie paisible en pleine nature ou pour profiter d’une dynamique régionale, ce terrain bénéficie d’un emplacement privilégié. Ne manquez pas cette opportunité d’investir dans un cadre de vie rêvé. Ce terrain représente une occasion unique d’acheter un bien dans une localisation attrayante. N’attendez plus pour envisager votre futur projet sur ce joli terrain ! À noter qu’en tant que constructeur, nous ne sommes pas mandatés pour réaliser la vente de ce terrain.

Mussey-sur-Marne
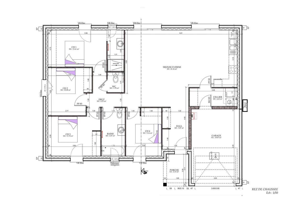
TERRAIN ET MAISONSur ce terrain, nous vous proposons cette maison neuve : l’Intimity L de la gamme Evasihome, un confort absolu. Parce qu’être parent n’est pas toujours facile quand la petite tribu remue dans la maison, et qu’on a tous besoin d’intimité et d’un lieu bien à soi, Babeau-Seguin propose une nouvelle gamme de maisons avec suite parentale, Evasihome. L’Intimity L va vous séduire, vous qui, après une longue journée, avez besoin de vous ressourcer dans votre espace privatif.Intimity L, parce que les parents aussi ont droit au meilleur?! Lorsqu’on construit une maison neuve, on pense avant tout au confort des enfants. Et si pour une fois cela changeait un peu?? Offrez-vous la chambre parentale que vous méritez?! Dotée d’un beau dressing et d’une salle d’eau, celle-ci est autonome, grâce à une porte-fenêtre donnant directement sur la terrasse bétonnée. Dans le reste de cette très belle maison en L, vous disposerez de trois chambres supplémentaires avec placards, un confortable espace de jour avec cuisine ouverte, un cellier et un garage intégré.Laissez-vous séduire par cette si belle maison où chaque membre de la famille trouvera sa place. Avec une surface de 124 m², cette demeure offre un espace de vie optimisé et lumineux pour que toute la famille s’épanouisse. Les caractéristiques principales incluent une verrière, des prises USB murales, une suite parentale, une terrasse bétonnée et un garage intégré. De plus, cette maison neuve est basse consommation et conforme à la RE2020, garantissant des économies d’énergie et un confort thermique optimal. Les options les plus demandées par nos clients, telles que l’enduit bi-ton et la domotique, sont également disponibles pour personnaliser votre maison selon vos envies.Babeau-Seguin, constructeur offrant le meilleur rapport qualité/prix du marché, vous invite à découvrir l’Intimity L. Vous êtes convaincus?? Alors n’attendez pas, venez à notre rencontre, nous évoquerons ensemble votre projet de construction?!

Mussey-sur-Marne
TERRAINNous vous proposons un terrain séduisant de 1085 m², parfaitement viabilisé, situé à Mussey-sur-Marne, en Haute-Marne. Ce terrain bénéficie d’une vue dégagée et d’un ensoleillement optimal, offrant ainsi un cadre champêtre propice à la construction de votre maison idéale. Son calme ambiant et son prix attractif en font un choix judicieux pour réaliser votre projet de construction dans un environnement naturel et relaxant. Mussey-sur-Marne est une charmante commune du département de la Haute-Marne, au cœur de la région Grand Est. Elle se distingue par son atmosphère paisible et ses attraits locaux, tels que des promenades en pleine nature et un accès rapide aux commodités essentielles. Son emplacement privilégié permet de profiter d’un cadre de vie agréable tout en étant à proximité des axes routiers menant aux villes voisines. Ce cadre enchanteur et ses nombreux services font de ce terrain une opportunité à ne pas manquer pour les amateurs de tranquillité et de nature. Ce terrain représente une opportunité unique d’investir dans votre avenir. N’hésitez pas à nous contacter pour découvrir ce potentiel exceptionnel. À noter qu’en tant que constructeur, nous ne sommes pas mandatés pour réaliser la vente de ce terrain.
L’actualité immobilière à Froncles





