Images
Description
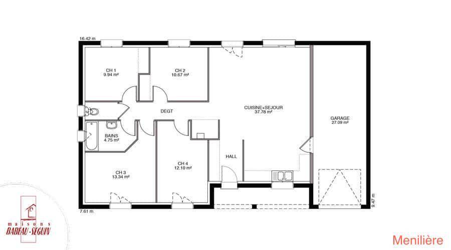
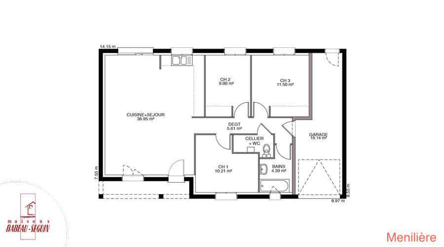
Sur ce terrain, nous vous proposons cette maison neuve, le modèle Ménilière, une maison plain-pied moderne qui intègre de base un garage et une longue galerie sur la face avant. Avec une surface de 100 m², cette maison dispose de 4 chambres et de 4 pièces, offrant ainsi un espace de vie confortable et fonctionnel pour toute la famille.
Véritable ""tout-en-un"" de la maison individuelle, ce modèle est idéal pour votre projet de construction sur-mesure. La Ménilière est disponible avec un toit à 2 pans ou 4 pans, selon vos préférences esthétiques. Le garage intégré et la galerie avant ajoutent une touche pratique et élégante à cette maison.
Les options les plus demandées par nos clients, telles que les menuiseries en aluminium et le sous-sol, sont également disponibles pour personnaliser davantage votre future maison. De plus, cette maison neuve est basse consommation et conforme à la réglementation environnementale RE2020, garantissant ainsi des performances énergétiques optimales et un impact environnemental réduit.
Le constructeur Babeau-Seguin, reconnu pour offrir le meilleur rapport qualité/prix du marché, vous accompagne dans la réalisation de votre projet immobilier. Avec un prix serré et une personnalisation facile, il n'est pas étonnant que la Ménilière soit dans le top 5 des ventes de Babeau-Seguin.
Ne manquez pas cette opportunité unique de devenir propriétaire d'une maison moderne, économe en énergie et parfaitement adaptée à vos besoins. Contactez-nous dès maintenant pour plus d'informations et pour planifier une visite de ce modèle exceptionnel.
Logement susceptibles de vous intéresser
Nous vous proposons de découvrir aussi cette sélection de logements situés à moins de 10km de Fronville et qui seraient susceptibles de vous intéresser.

Mussey-sur-Marne
TERRAIN ET MAISONSur ce terrain, nous vous proposons cette maison neuve : la Verdania. Conçue par Babeau-Seguin, constructeur reconnu pour offrir le meilleur rapport qualité/prix du marché, cette maison de 100 m² incarne l’équilibre parfait entre confort et accessibilité.La Verdania se distingue par son architecture en L et sa toiture à 4 pans, offrant une allure moderne et élégante. Dès l’entrée, un porche accueillant vous invite à découvrir un intérieur spacieux et lumineux. Le grand séjour, baigné de lumière grâce à ses baies coulissantes, est le cœur de cette maison, idéal pour des moments conviviaux en famille.Cette maison dispose de 4 pièces, dont 3 chambres confortables. La suite parentale, véritable havre de paix, est conçue pour offrir intimité et confort. La salle de bain est équipée à la fois d’une douche et d’une baignoire, répondant ainsi aux besoins de toute la famille.Le garage intégré et le cellier ajoutent une touche de praticité, facilitant le quotidien. De plus, la Verdania est conforme aux normes RE2020, garantissant une maison basse consommation et respectueuse de l’environnement.Les options les plus demandées par nos clients, telles que la terrasse bétonnée, peuvent être ajoutées pour personnaliser encore davantage votre future maison.Ne manquez pas cette opportunité unique d’acquérir une maison neuve, économique et écologique, parfaitement adaptée aux besoins des familles modernes. La Verdania, c’est l’assurance d’un investissement intelligent et durable.

Mussey-sur-Marne
TERRAINDécouvrez ce terrain exceptionnel de 1437 m², idéalement situé dans le charmant lotissement de Mussey-sur-Marne, dans le département de la Haute-Marne. Ce lot viabilisé offre une superbe vue dégagée et bénéficie d’un ensoleillement généreux, vous permettant de concevoir la maison de vos rêves dans un cadre champêtre et apaisant. Profitez de l’attractivité de la région Grand Est et laissez libre cours à votre imagination pour édifier un projet de construction harmonieux. Située à Mussey-sur-Marne, cette belle localité est entourée de paysages pittoresques et d’un environnement calme qui séduira les amateurs de nature. Vous trouverez à proximité diverses commodités pour faciliter votre quotidien, tout en étant à quelques pas des attractions locales qui font la renommée de la Haute-Marne. Que ce soit pour une vie paisible en pleine nature ou pour profiter d’une dynamique régionale, ce terrain bénéficie d’un emplacement privilégié. Ne manquez pas cette opportunité d’investir dans un cadre de vie rêvé. Ce terrain représente une occasion unique d’acheter un bien dans une localisation attrayante. N’attendez plus pour envisager votre futur projet sur ce joli terrain ! À noter qu’en tant que constructeur, nous ne sommes pas mandatés pour réaliser la vente de ce terrain.

Mussey-sur-Marne
TERRAIN ET MAISONSur ce terrain, nous vous proposons cette maison neuve : l’Intimity L de la gamme Evasihome, un confort absolu. Parce qu’être parent n’est pas toujours facile quand la petite tribu remue dans la maison, et qu’on a tous besoin d’intimité et d’un lieu bien à soi, Babeau-Seguin propose une nouvelle gamme de maisons avec suite parentale, Evasihome. L’Intimity L va vous séduire, vous qui, après une longue journée, avez besoin de vous ressourcer dans votre espace privatif.Intimity L, parce que les parents aussi ont droit au meilleur?! Lorsqu’on construit une maison neuve, on pense avant tout au confort des enfants. Et si pour une fois cela changeait un peu?? Offrez-vous la chambre parentale que vous méritez?! Dotée d’un beau dressing et d’une salle d’eau, celle-ci est autonome, grâce à une porte-fenêtre donnant directement sur la terrasse bétonnée. Dans le reste de cette très belle maison en L, vous disposerez de trois chambres supplémentaires avec placards, un confortable espace de jour avec cuisine ouverte, un cellier et un garage intégré.Laissez-vous séduire par cette si belle maison où chaque membre de la famille trouvera sa place. Avec une surface de 124 m², cette demeure offre un espace de vie optimisé et lumineux pour que toute la famille s’épanouisse. Les caractéristiques principales incluent une verrière, des prises USB murales, une suite parentale, une terrasse bétonnée et un garage intégré. De plus, cette maison neuve est basse consommation et conforme à la RE2020, garantissant des économies d’énergie et un confort thermique optimal. Les options les plus demandées par nos clients, telles que l’enduit bi-ton et la domotique, sont également disponibles pour personnaliser votre maison selon vos envies.Babeau-Seguin, constructeur offrant le meilleur rapport qualité/prix du marché, vous invite à découvrir l’Intimity L. Vous êtes convaincus?? Alors n’attendez pas, venez à notre rencontre, nous évoquerons ensemble votre projet de construction?!

Mussey-sur-Marne
TERRAINNous vous proposons un terrain séduisant de 1085 m², parfaitement viabilisé, situé à Mussey-sur-Marne, en Haute-Marne. Ce terrain bénéficie d’une vue dégagée et d’un ensoleillement optimal, offrant ainsi un cadre champêtre propice à la construction de votre maison idéale. Son calme ambiant et son prix attractif en font un choix judicieux pour réaliser votre projet de construction dans un environnement naturel et relaxant. Mussey-sur-Marne est une charmante commune du département de la Haute-Marne, au cœur de la région Grand Est. Elle se distingue par son atmosphère paisible et ses attraits locaux, tels que des promenades en pleine nature et un accès rapide aux commodités essentielles. Son emplacement privilégié permet de profiter d’un cadre de vie agréable tout en étant à proximité des axes routiers menant aux villes voisines. Ce cadre enchanteur et ses nombreux services font de ce terrain une opportunité à ne pas manquer pour les amateurs de tranquillité et de nature. Ce terrain représente une opportunité unique d’investir dans votre avenir. N’hésitez pas à nous contacter pour découvrir ce potentiel exceptionnel. À noter qu’en tant que constructeur, nous ne sommes pas mandatés pour réaliser la vente de ce terrain.

Fronville
TERRAIN ET MAISONSur ce terrain, nous vous proposons cette maison neuve, le modèle Ménilière, une maison plain-pied moderne qui intègre de base un garage et une longue galerie sur la face avant. Avec une surface de 100 m², cette maison dispose de 4 chambres et de 4 pièces, offrant ainsi un espace de vie confortable et fonctionnel pour toute la famille.Véritable « »tout-en-un » » de la maison individuelle, ce modèle est idéal pour votre projet de construction sur-mesure. La Ménilière est disponible avec un toit à 2 pans ou 4 pans, selon vos préférences esthétiques. Le garage intégré et la galerie avant ajoutent une touche pratique et élégante à cette maison.Les options les plus demandées par nos clients, telles que les menuiseries en aluminium et le sous-sol, sont également disponibles pour personnaliser davantage votre future maison. De plus, cette maison neuve est basse consommation et conforme à la réglementation environnementale RE2020, garantissant ainsi des performances énergétiques optimales et un impact environnemental réduit.Le constructeur Babeau-Seguin, reconnu pour offrir le meilleur rapport qualité/prix du marché, vous accompagne dans la réalisation de votre projet immobilier. Avec un prix serré et une personnalisation facile, il n’est pas étonnant que la Ménilière soit dans le top 5 des ventes de Babeau-Seguin.Ne manquez pas cette opportunité unique de devenir propriétaire d’une maison moderne, économe en énergie et parfaitement adaptée à vos besoins. Contactez-nous dès maintenant pour plus d’informations et pour planifier une visite de ce modèle exceptionnel.

Fronville
TERRAINDécouvrez ce magnifique terrain à vendre de 705 m² situé dans le charmant lotissement de Fronville, dans le département de la Haute-Marne, en région Grand Est. Ce terrain viabilisé présente des caractéristiques uniques, offrant un cadre de vie ensoleillé et champêtre, parfait pour réaliser le projet de construction de votre maison de rêve. Profitez de la tranquillité d’une zone au calme, tout en étant à proximité d’un axe routier important, facilitant ainsi vos déplacements quotidiens. Fronville est une ville agréable, où sont disponibles de nombreuses commodités et services pour le confort de ses habitants. La localité se distingue par sa qualité de vie exceptionnelle, ses paysages verdoyants et son atmosphère conviviale. Vous y trouverez des commerces de proximité, des écoles, ainsi que des espaces de loisirs pour toute la famille. Ce terrain constitue une opportunité rare d’investir dans un environnement où il fait bon vivre, tout en bénéficiant d’un prix attractif. N’attendez plus pour envisager cette opportunité d’achat unique et laissez libre cours à votre imagination pour construire votre future maison sur ce terrain prometteur. À noter qu’en tant que constructeur, nous ne sommes pas mandatés pour réaliser la vente de ce terrain.

Fronville
TERRAIN ET MAISONSur ce terrain, nous vous proposons cette maison neuve : Verdania, un modèle astucieux qui fusionne le confort familial avec un prix accessible. Conçue par Babeau-Seguin, constructeur offrant le meilleur rapport qualité/prix du marché, cette maison de 110 m² est idéale pour les familles modernes soucieuses de leur budget et de l’environnement.La maison Verdania se distingue par son plan en L et sa toiture à faible pente à 4 pans, offrant une esthétique contemporaine et élégante. Dès l’entrée, un porche accueillant vous mène à un vaste séjour lumineux, agrémenté de baies coulissantes qui inondent l’espace de lumière naturelle. La configuration en L permet une séparation intelligente des espaces de vie et de nuit, garantissant confort et intimité.Avec ses 5 pièces, dont 4 chambres spacieuses, Verdania est conçue pour répondre aux besoins des familles. La suite parentale, véritable havre de paix, offre un espace privé avec salle de bain attenante. Les autres chambres sont parfaites pour les enfants, les invités ou un bureau à domicile. Une salle de bain supplémentaire, équipée d’une douche et d’une baignoire, assure le confort de tous les membres de la famille.Le garage intégré et le cellier attenant ajoutent des espaces de rangement pratiques, tandis que la possibilité d’ajouter une terrasse bétonnée, l’une des options les plus demandées, permet de profiter pleinement des beaux jours.Verdania est une maison basse consommation, conforme aux normes RE2020, garantissant des performances énergétiques optimales et un impact environnemental réduit. Cette maison est pensée pour limiter le nombre de jours d’inconfort en été, évitant ainsi le recours à la climatisation.En choisissant Verdania, vous optez pour une maison économique, respectueuse de l’environnement et ingénieusement conçue, offrant un équilibre parfait entre un prix maîtrisé et un confort de vie optimal. Ne manquez pas cette opportunité unique de devenir propriétaire d’une maison neuve, moderne et éco-

Fronville
TERRAINDécouvrez ce magnifique terrain de 797 m², idéalement situé à Fronville, dans le département de la Haute-Marne en région Grand Est. Ce terrain viabilisé offre un cadre champêtre, ensoleillé et au calme, faisant de cet emplacement un choix parfait pour votre projet de construction de maison. Les caractéristiques uniques de cette parcelle, combinées à sa surface généreuse, vous permettront de concrétiser vos aspirations d’habitat dans un environnement apaisant et verdoyant. Fronville est une commune qui allie tranquillité et proximité avec des axes routiers importants, tout en conservant une qualité de vie remarquable. Vous bénéficierez d’un accès facile aux commodités locales, garantissant ainsi un quotidien pratique et agréable. Les attraits de la ville comprennent des paysages pittoresques et des activités de plein air, idéales pour les amoureux de la nature. Ce terrain, au sein d’un village paisible, vous séduira par son potentiel exceptionnel. Ne laissez pas passer cette occasion unique d’acquérir un terrain au potentiel inestimable, parfait pour bâtir la maison de vos rêves. Contactez-nous dès maintenant afin de discuter de cette opportunité d’achat. À noter qu’en tant que constructeur, nous ne sommes pas mandatés pour réaliser la vente de ce terrain.

Fronville
TERRAIN ET MAISONSur ce terrain, nous vous proposons cette maison neuve : la Focus Family. Conçue par Babeau-Seguin, constructeur offrant le meilleur rapport qualité/prix du marché, cette maison familiale à tout petit prix est idéale pour ceux qui souhaitent allier confort et économies.Avec une surface habitable de 89 m², la Focus Family vous offre un espace généreux et bien agencé. Elle comprend 4 chambres, parfaites pour accueillir toute votre famille, ainsi qu’un grand séjour traversant avec cuisine ouverte, pour un total de 4 pièces. Vous apprécierez également le garage intégré, pratique pour stationner votre véhicule ou pour du rangement supplémentaire.L’enduit bi-ton de la façade apporte une touche moderne et élégante à cette maison. De plus, les options les plus demandées par nos clients, comme les menuiseries en aluminium, sont disponibles pour personnaliser votre future habitation selon vos goûts.La Focus Family est une maison basse consommation, conforme à la réglementation environnementale RE2020. Elle est équipée des dernières innovations technologiques pour garantir une isolation thermique et phonique optimale, tout en étant économique et respectueuse de l’environnement.Ne faites aucune concession sur la qualité avec cette maison low cost de luxe. Babeau-Seguin met tout son savoir-faire et son professionnalisme dans la construction de la gamme Focus, en utilisant les meilleurs matériaux et une charpente traditionnelle.N’attendez plus pour réaliser votre projet de maison familiale à petit prix avec la Focus Family, une maison spacieuse, écolo et accessible à tous les budgets.
L’actualité immobilière à Fronville





