Images
Description
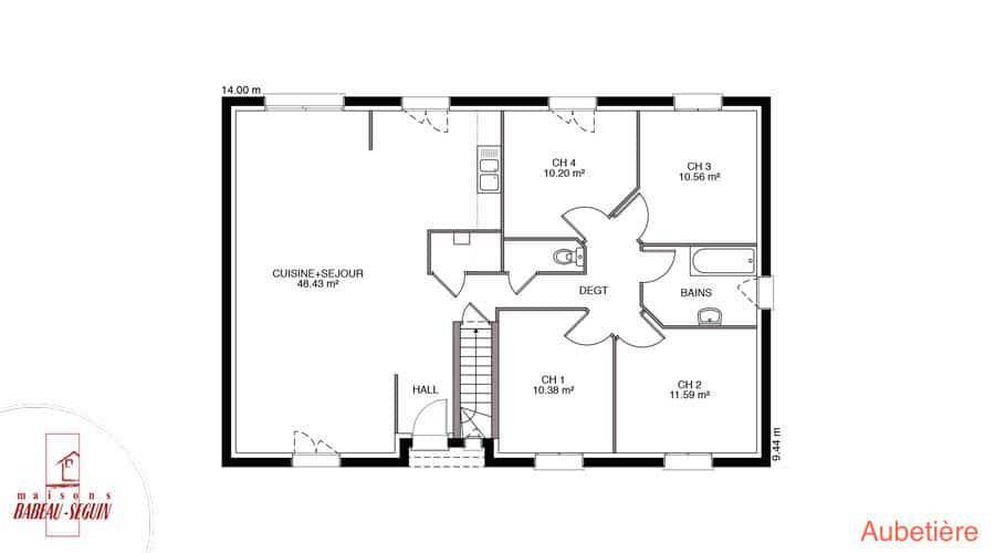
Sur ce terrain, nous vous proposons cette maison neuve Aubetière. Avec une surface de 96 m² et équipée de 4 chambres, cette maison traditionnelle est appréciée pour son excellent rapport qualité/prix.
L'Aubetière, fleuron de la gamme traditionnelle Babeau-Seguin, est une maison moderne qui se décline en plusieurs versions pour répondre à vos besoins spécifiques. Vous pouvez choisir entre une toiture à 2 pans ou à 4 pans, et personnaliser votre maison avec des options comme un garage ou un sous-sol.
Cette maison de plain-pied est conçue pour être basse consommation et conforme à la RE2020, garantissant ainsi des économies d'énergie et un confort optimal tout au long de l'année.
Babeau-Seguin, constructeur reconnu pour offrir le meilleur rapport qualité/prix du marché, vous accompagne dans la réalisation de votre projet de construction sur mesure. Donnez vie à votre projet en optant pour l'Aubetière et profitez d'une maison neuve, performante et personnalisable selon vos envies.
Logement susceptibles de vous intéresser
Nous vous proposons de découvrir aussi cette sélection de logements situés à moins de 10km de Bucey-lès-Gy et qui seraient susceptibles de vous intéresser.
Bonnevent-Velloreille
TERRAIN70700 BONNEVENT VELLOREILLE (10 min de la gare TGV Besançon Franche-Comté, 15 min d’Ecole-Valentin, 20 min de BESANCON)Vanessa CRETIN vous propose en EXCLUSIVITÉ : Terrain Plat Constructible de 1588 m² dans un ravissant village, sur un axe direct vers BESANCON (+ chemin d’accès sur parcelle de 445 m² en Indivision desservant 3 terrains au total).Facile d’accès, il est non viabilisé mais viabilisation en bordure de route.Étude de Sol et Certificat d’Urbanisme à disposition.Non soumis au DPE.Prix : 75 000 euros (honoraires charge vendeur)Au besoin, Proprietes-privees.com vous offre une étude de financement personnalisée via son partenaire de courtage en prêts immobiliers « Prêt à Financer ».Pour les visites et l’accompagnement dans votre projet, contactez Vanessa CRETIN au (Numéro supprimé) ou par courriel (Email supprimé), agent indépendant pour la SAS (Site supprimé), RCS 487624777 – Mandat réf : 427287Le professionnel garantit et sécurise votre projet immobilier. SAS PROPRIETES PRIVEES – ZAC du chêne ferré – 44 allée des cinq continents 44120 VERTOU, Carte professionnelle CPI 4401 2016 000 010 388 CCI Nantes-Saint Nazaire. RCS NANTES 487 624 777Les informations sur les risques auxquels ce bien est exposé sont disponibles sur le site Géorisques : www.georisques.gouv.fr Vanessa CRETIN (EI) Agent Commercial – Numéro RSAC : VESOUL 793 092 685 – .
Bucey-lès-Gy
TERRAINNous vous proposons ce charmant terrain de 950 m2 constructibles à 10mn de Gray, sur la commune de Bucey-les-Gy. La parcelle, déjà arborée se situe hors lotissement. Coup de cœur et tranquillité assurée dans un village disposant de toutes les commodités. N’hésitez plus, contactez nous?!
Bucey-lès-Gy
TERRAIN ET MAISONSur ce terrain, nous vous proposons cette maison neuve Aubetière. Avec une surface de 96 m² et équipée de 4 chambres, cette maison traditionnelle est appréciée pour son excellent rapport qualité/prix. L’Aubetière, fleuron de la gamme traditionnelle Babeau-Seguin, est une maison moderne qui se décline en plusieurs versions pour répondre à vos besoins spécifiques. Vous pouvez choisir entre une toiture à 2 pans ou à 4 pans, et personnaliser votre maison avec des options comme un garage ou un sous-sol.Cette maison de plain-pied est conçue pour être basse consommation et conforme à la RE2020, garantissant ainsi des économies d’énergie et un confort optimal tout au long de l’année. Babeau-Seguin, constructeur reconnu pour offrir le meilleur rapport qualité/prix du marché, vous accompagne dans la réalisation de votre projet de construction sur mesure. Donnez vie à votre projet en optant pour l’Aubetière et profitez d’une maison neuve, performante et personnalisable selon vos envies.
Chaux-la-Lotière
TERRAINDécouvrez ce terrain exceptionnel de 880 m², idéalement situé dans le charmant lotissement de Chaux-la-Lotière, en Haute-saône. Ce terrain viabilisé offre une vue dégagée et un environnement paisible, parfait pour la réalisation de votre projet de construction de maison. Avec sa superficie confortable et sa disposition plate, ce terrain vous permettra de laisser libre cours à votre imagination et de concevoir un foyer adapté à vos envies et besoins. Ne manquez pas cette opportunité unique d’acquérir un terrain au potentiel énorme pour votre projet personnalisé. Contactez-nous dès maintenant pour en savoir plus sur cette offre rare. À noter qu’en tant que constructeur, nous ne sommes pas mandatés pour réaliser la vente de ce terrain.
Chaux-la-Lotière
TERRAIN ET MAISONSur ce terrain, nous vous proposons cette maison neuve : l’Intimity L de la gamme Evasihome, un confort absolu.Parce qu’être parent n’est pas toujours facile quand la petite tribu remue dans la maison, et qu’on a tous besoin d’intimité et d’un lieu bien à soi, Babeau-Seguin propose une nouvelle gamme de maisons avec suite parentale, Evasihome. L’Intimity L va vous séduire, vous qui, après une longue journée, avez besoin de vous ressourcer dans votre espace privatif.Intimity L, parce que les parents aussi ont droit au meilleur?!Lorsqu’on construit une maison neuve, on pense avant tout au confort des enfants. Et si pour une fois cela changeait un peu?? Offrez-vous la chambre parentale que vous méritez?! Dotée d’un beau dressing et d’une salle d’eau, celle-ci est autonome, grâce à une porte-fenêtre donnant directement sur la terrasse bétonnée. Dans le reste de cette très belle maison en L, vous disposerez de trois chambres supplémentaires avec placards, un confortable espace de jour avec cuisine ouverte, un cellier et un garage intégré.Une maison qui vous offre le luxe à prix abordableLaissez-vous séduire par cette si belle maison où chaque membre de la famille trouvera sa place. Avec une surface de 109 m², cette demeure est équipée de quatre chambres, dont une suite parentale avec salle de bain et dressing, ainsi qu’un garage intégré et une terrasse bétonnée. Les caractéristiques principales incluent une verrière, des prises USB murales, et une suite parentale. Les options les plus demandées par les clients, telles que l’enduit bi-ton et la domotique, sont également disponibles.Cette maison neuve est basse consommation et conforme à la RE2020, garantissant ainsi une efficacité énergétique optimale et un respect des normes environnementales actuelles.Vous êtes convaincus?? Alors n’attendez pas, venez à notre rencontre, nous évoquerons ensemble votre projet de construction?! Babeau-Seguin, constructeur offrant le meilleur rapport qualité/prix du marché, es
Oiselay-et-Grachaux
TERRAINVous êtes à la recherche d’un terrain pour construire votre future maison ? Ne cherchez plus, car celui-ci pourrait être le vôtre ! Situé à Oiselay-et-Grachaux, dans la charmante région de Haute-Saône, ce terrain dispose de nombreux atouts qui ne manqueront pas de vous séduire. Situé dans le village pittoresque d’Oiselay-et-Grachaux, ce terrain de 1075 m² est idéalement placé pour vous permettre de profiter d’un cadre de vie serein et paisible. Ce terrain arboré est également proposé à un prix très attractif, vous offrant ainsi une opportunité unique pour réaliser votre projet de construction à moindre coût. Alors n’attendez plus et saisissez cette opportunité d’acquérir un terrain dans une région dynamique et pleine de charme.
Oiselay-et-Grachaux
TERRAIN ET MAISONSur ce terrain, nous vous proposons cette maison neuve : la Focus Cosy. Conçue par Babeau-Seguin, constructeur offrant le meilleur rapport qualité/prix du marché, cette maison de 79 m² est idéale pour les familles à la recherche d’un logement confortable et économique.La Focus Cosy se distingue par son design contemporain et ses finitions soignées. Avec ses 4 pièces, dont 3 chambres, cette maison de plain-pied offre un espace de vie bien pensé et harmonieux. Le vaste séjour-cuisine est un lieu convivial où il fait bon vivre, tandis que l’espace nuit garantit tranquillité et intimité.L’un des atouts majeurs de cette maison est son garage intégré, qui ajoute une touche de praticité supplémentaire. L’enduit bi-ton de la façade apporte une touche esthétique moderne et élégante.Cette maison neuve est également basse consommation et conforme à la RE2020, ce qui en fait un choix écologique et économique. Les options les plus demandées par nos clients, telles que les menuiseries en aluminium, peuvent être intégrées pour encore plus de confort et de modernité.En choisissant la Focus Cosy, vous optez pour une maison accessible à tous les budgets, sans compromis sur les équipements. Avec ses performances énergétiques et écologiques de pointe, cette maison bénéficie des dernières innovations technologiques et de toute l’expertise des Maisons Babeau-Seguin.Ne manquez pas cette opportunité de réaliser votre rêve de maison à un prix incroyablement attractif. La Focus Cosy est une maison pratique et élégante où votre famille se sentira immédiatement chez elle.
Bucey-lès-Gy
TERRAINDécouvrez cette opportunité rare de posséder un terrain de 1 510m², idéalement situé dans la commune de Bucey-lès-Gy. Avec un prix attractif de 45 000?€, ce terrain est parfait pour les investisseurs et les particuliers souhaitant s’offrir un espace pour construire leur maison de rêve. Situé dans la Haute-Saône, ce terrain est situé dans un quartier « diffus ». De plus, le terrain est facilement accessible via les routes départementales et les autoroutes, offrant un accès rapide aux villes voisines et aux commodités. À ne pas manquer, cette parcelle de terrain est une opportunité unique d’investir dans un cadre de vie idéal pour toute la famille. Contactez-nous dès maintenant pour en savoir plus et planifier une visite sur place?!
Bucey-lès-Gy
TERRAIN ET MAISONSur ce terrain, nous vous proposons cette maison neuve : la Verdania. Conçue par Babeau-Seguin, constructeur reconnu pour offrir le meilleur rapport qualité/prix du marché, cette maison de 91 m² allie confort, modernité et économie d’énergie.L’équilibre parfait entre confort et accessibilitéDécouvrez la maison Verdania, un modèle ingénieux qui incarne l’alliance entre le confort familial et un prix canon. Bénéficiant de notre collaboration étroite avec des partenaires industriels de confiance, Verdania offre une généreuse superficie de 91 m² au meilleur rapport qualité-prix.Cette maison en L, caractérisée par un porche accueillant à l’entrée, est conçue pour répondre aux attentes des familles modernes soucieuses de leur budget. La toiture à 4 pans et les baies coulissantes apportent une touche d’élégance et de modernité à l’ensemble.Verdania : Économique, écologique et intelligemment conçueVerdania va au-delà de l’aspect financier maîtrisé en intégrant des équipements économiques et écologiques de pointe, alignés avec les normes de la RE2020. L’architecture en L offre un grand séjour lumineux, illuminé par deux baies vitrées, créant ainsi un espace convivial et chaleureux. La maison inclut également un cellier et un garage intelligemment intégré dans la partie en L.Avec une salle de bain comprenant à la fois douche et baignoire, ainsi que trois chambres dont une suite parentale, Verdania répond aux besoins d’un grand nombre de familles tout en respectant leur budget. L’équilibre parfait entre prix maîtrisé et confort de vie optimum.Les options les plus demandées par nos clients, telles qu’une terrasse bétonnée, peuvent être ajoutées pour parfaire votre projet.Ne manquez pas cette opportunité unique d’acquérir une maison neuve, basse consommation et conforme à la RE2020, qui saura répondre à toutes vos attentes. Contactez-nous dès aujourd’hui pour plus d’informations et pour planifier une visite.
L’actualité immobilière à Bucey-lès-Gy
27/11/2023
02/11/2023
30/10/2023
20/10/2023
16/10/2023
16/10/2023