Images
Description
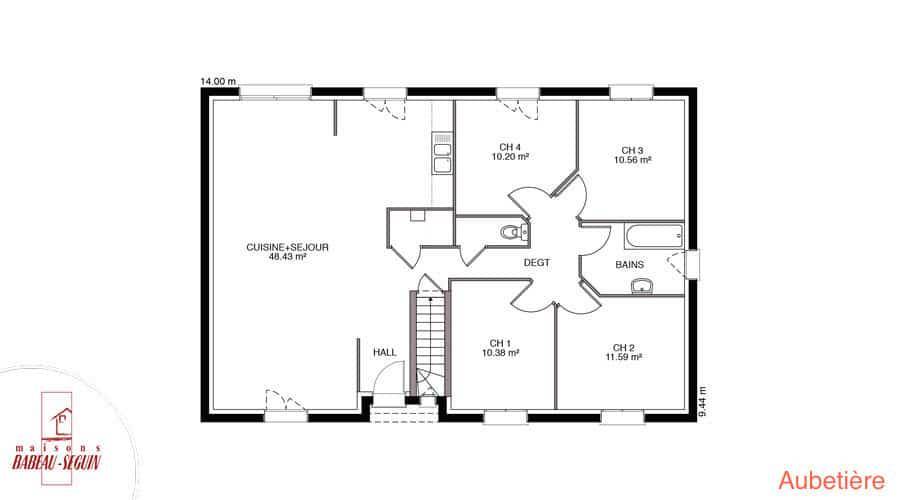
Sur ce terrain, nous vous proposons cette maison neuve Aubetière. Avec une surface de 96 m² et équipée de 4 chambres, cette maison traditionnelle est appréciée pour son excellent rapport qualité/prix.
L'Aubetière, fleuron de la gamme traditionnelle Babeau-Seguin, est une maison moderne qui se décline en plusieurs versions pour répondre à vos besoins spécifiques. Vous pouvez choisir entre une toiture à 2 pans ou à 4 pans, et personnaliser votre maison avec des options comme un garage ou un sous-sol.
Cette maison de plain-pied est conçue pour être basse consommation et conforme à la RE2020, garantissant ainsi des économies d'énergie et un confort optimal tout au long de l'année.
Babeau-Seguin, constructeur reconnu pour offrir le meilleur rapport qualité/prix du marché, vous accompagne dans la réalisation de votre projet de construction sur mesure. Donnez vie à votre projet en optant pour l'Aubetière et profitez d'une maison neuve, performante et personnalisable selon vos envies.
Logement susceptibles de vous intéresser
Nous vous proposons de découvrir aussi cette sélection de logements situés à moins de 10km de Neurey-lès-la-Demie et qui seraient susceptibles de vous intéresser.
Neurey-lès-la-Demie
TERRAINDécouvrez ce terrain exceptionnel de 800 m², situé à Neurey-lès-la-Demie, dans le département de la Haute-Saône. Ce lotissement viabilisé offre une surface généreuse, parfaitement adaptée à un projet de construction de maison. Avec une vue dégagée et un cadre champêtre, cet emplacement privilégié vous promet calme et sérénité, tout en vous garantissant une qualité de vie inégalée. Neurey-lès-la-Demie, nichée en Bourgogne-Franche-Comté, est une ville pleine de charme qui allie vitalité et tranquillité. Profitez des attractions locales telles que les paysages naturels environnants, qui regorgent d’espaces verts idéaux pour les randonnées en famille. Vous trouverez également toutes les commodités nécessaires à quelques pas : commerces, écoles, et services sont à votre disposition pour un quotidien simplifié. Rejoignez une communauté dynamique tout en ayant la possibilité de profiter des richesses de la nature environnante. Ce terrain, avec son emplacement stratégique et ses caractéristiques uniques, représente une opportunité rare sur le marché. N’hésitez pas à envisager cet investissement prometteur qui pourrait devenir le lieu de vie que vous avez toujours souhaité. À noter qu’en tant que constructeur, nous ne sommes pas mandatés pour réaliser la vente de ce terrain.
Neurey-lès-la-Demie
TERRAIN ET MAISONSur ce terrain, nous vous proposons cette maison neuve Aubetière. Avec une surface de 96 m² et équipée de 4 chambres, cette maison traditionnelle est appréciée pour son excellent rapport qualité/prix. L’Aubetière, fleuron de la gamme traditionnelle Babeau-Seguin, est une maison moderne qui se décline en plusieurs versions pour répondre à vos besoins spécifiques. Vous pouvez choisir entre une toiture à 2 pans ou à 4 pans, et personnaliser votre maison avec des options comme un garage ou un sous-sol.Cette maison de plain-pied est conçue pour être basse consommation et conforme à la RE2020, garantissant ainsi des économies d’énergie et un confort optimal tout au long de l’année. Babeau-Seguin, constructeur reconnu pour offrir le meilleur rapport qualité/prix du marché, vous accompagne dans la réalisation de votre projet de construction sur mesure. Donnez vie à votre projet en optant pour l’Aubetière et profitez d’une maison neuve, performante et personnalisable selon vos envies.
La Demie
TERRAINÀ la recherche d’un terrain idéal pour réaliser votre projet de construction de maison ? Vous serez séduit par ce superbe terrain de 616 m², parfaitement viabilisé, situé dans un environnement calme et ensoleillé. Grâce à sa vue dégagée, vous pourrez profiter d’un cadre de vie agréable et serein. Ce bien rare offre l’opportunité de concrétiser vos rêves architecturaux dans un espace propice à la création d’un véritable havre de paix. Ne manquez pas cette opportunité unique d’acquérir un terrain avec un potentiel exceptionnel. Contactez-nous pour plus d’informations et envisagez dès aujourd’hui le futur de votre projet de construction. À noter qu’en tant que constructeur, nous ne sommes pas mandatés pour réaliser la vente de ce terrain.
La Demie
TERRAIN ET MAISONSur ce terrain, nous vous proposons cette maison neuve : la Focus Cosy. Conçue par Babeau-Seguin, constructeur offrant le meilleur rapport qualité/prix du marché, cette maison de 79 m² est idéale pour les familles à la recherche d’un logement confortable et économique.La Focus Cosy se distingue par son design contemporain et ses finitions soignées. Avec ses 4 pièces, dont 3 chambres, cette maison de plain-pied offre un espace de vie bien pensé et harmonieux. Le vaste séjour-cuisine est un lieu convivial où il fait bon vivre, tandis que l’espace nuit garantit tranquillité et intimité.L’un des atouts majeurs de cette maison est son garage intégré, qui ajoute une touche de praticité supplémentaire. L’enduit bi-ton de la façade apporte une touche esthétique moderne et élégante.Cette maison neuve est également basse consommation et conforme à la RE2020, ce qui en fait un choix écologique et économique. Les options les plus demandées par nos clients, telles que les menuiseries en aluminium, peuvent être intégrées pour encore plus de confort et de modernité.En choisissant la Focus Cosy, vous optez pour une maison accessible à tous les budgets, sans compromis sur les équipements. Avec ses performances énergétiques et écologiques de pointe, cette maison bénéficie des dernières innovations technologiques et de toute l’expertise des Maisons Babeau-Seguin.Ne manquez pas cette opportunité de réaliser votre rêve de maison à un prix incroyablement attractif. La Focus Cosy est une maison pratique et élégante où votre famille se sentira immédiatement chez elle.
Vellefaux
TERRAINDécouvrez ce terrain exceptionnel à vendre, d’une surface de 7000 m², idéal pour votre projet de construction. Situé à Vellefaux, dans le département de la Haute-Saône, en Bourgogne-Franche-Comté, ce terrain viabilisé bénéficie d’une vue dégagée et d’un environnement calme. Profitez de caractéristiques uniques qui en font un lieu parfait pour accueillir votre future maison, alliant tranquillité et praticité. La ville de Vellefaux offre un cadre de vie agréable, avec un accès facile aux axes routiers importants, permettant de rejoindre rapidement les grandes agglomérations aux alentours. Vous y trouverez des commodités locales telles que des commerces, des écoles et des services de proximité. Ne laissez pas passer cette opportunité unique d’acquérir un terrain doté d’un potentiel extraordinaire. Ce bien séduira ceux en quête d’un cadre de vie paisible et agréable. Contactez-nous dès maintenant pour plus d’informations. À noter qu’en tant que constructeur, nous ne sommes pas mandatés pour réaliser la vente de ce terrain.
Vellefaux
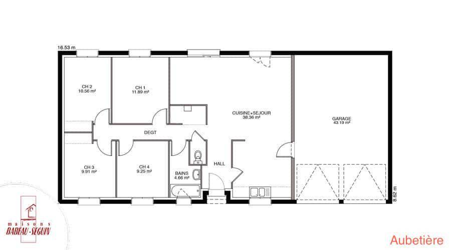
TERRAIN ET MAISONSur ce terrain, nous vous proposons cette maison neuve Aubetière, un modèle traditionnel de la gamme Babeau-Seguin, constructeur reconnu pour offrir le meilleur rapport qualité/prix du marché. Avec une surface de 88 m², cette maison de plain-pied se compose de 4 pièces, dont 3 chambres spacieuses, idéales pour accueillir toute votre famille.L’Aubetière se distingue par son excellent rapport qualité/prix et sa conformité aux normes RE2020, garantissant une basse consommation énergétique. Vous avez la possibilité de personnaliser votre maison en choisissant entre un toit à 2 pans ou à 4 pans, ainsi qu’en ajoutant un garage ou un sous-sol selon vos besoins.Cette maison moderne et fonctionnelle est conçue pour s’adapter à vos envies et à votre mode de vie. Profitez de la flexibilité offerte par les nombreux plans et déclinaisons disponibles pour créer votre maison individuelle sur mesure.Ne manquez pas cette opportunité de donner vie à votre projet de construction avec le modèle Aubetière, une maison neuve qui allie confort, économie d’énergie et personnalisation. Contactez-nous dès maintenant pour plus d’informations et pour découvrir toutes les options disponibles pour votre future maison.
Colombe-lès-Vesoul
TERRAINÀ vendre, terrain à bâtir de 1 272 m² situé dans un environnement calme et préservé, sans voisinage immédiat.Parcelle idéale pour un projet de construction résidentielle offrant intimité et tranquillité. Accès facile, belle exposition possible selon implantation. Possibilité d’aménager un jardin généreux, dépendances, ou autres.
Filain
TERRAINNous vous proposons ce charmant terrain de 1000 m², parfaitement adapté à votre projet de construction de maison. Niché dans un écrin de tranquillité, cet espace verdoyant est non viabilisé, offrant une toile de fond paisible pour votre projet de vie. Sa large superficie permet de réaliser vos envies architecturales tout en bénéficiant d’une qualité de vie exceptionnelle, à l’abri de l’agitation urbaine. Situé dans la commune de Filain, ce terrain bénéficie d’un accès aisé à la nature environnante. Les amoureux des grands espaces seront séduits par la proximité de nombreuses balades et activités en plein air. Ce terrain représente une opportunité rare pour concrétiser vos projets et s’épanouir dans un cadre privilégié. N’attendez plus pour envisager cet achat unique ! À noter qu’en tant que constructeur, nous ne sommes pas mandatés pour réaliser la vente de ce terrain.
Filain
TERRAIN ET MAISONSur ce terrain, nous vous proposons cette maison neuve : l’Intimity I de notre gamme Evasihome.Chez Babeau-Seguin, constructeur offrant le meilleur rapport qualité/prix du marché, nous voulons en faire toujours plus pour nos clients?! C’est pourquoi notre bureau d’étude a imaginé cette gamme de modèles tous dotés d’une suite parentale généreuse. Parce qu’en tant que parents, vous avez besoin d’un peu d’intimité et de tranquillité, même si vous adorez être avec votre petite famille?! Evasihome Intimity I répond à cette attente.Un joli pavillon où tout le monde se sent à l’aiseEvasihome Intimity I est un pavillon de plain-pied avec garage intégré, agrémenté d’une terrasse semi-couverte. La suite parentale comprend un beau dressing et une salle d’eau, pour un confort maximum. Une porte-fenêtre donne directement sur la terrasse, pour plus d’autonomie?! Disponible en trois dimensions, avec deux ou trois chambres, en plus de la suite parentale, toutes dotées de placards, pour la tribu. Une salle de bain avec w.c. séparés, une grande pièce de vie avec cuisine ouverte et un cellier complètent l’ensemble.Une maison aux dimensions adaptéesL’Intimity I vous est proposée dans trois dimensions : 95 m², 110 m² et 125 m² pour s’adapter aux besoins de votre famille. Craquez dès aujourd’hui pour ce merveilleux modèle et venez nous rendre visite en agence, nous vous dirons tout ce que vous voulez savoir sur votre future maison?! De plus, nous vous présenterons, si vous le souhaitez, un catalogue de terrains à bâtir afin de vous simplifier la vie.Quoi de mieux pour ce terrain que le modèle Intimity I de 94 m². L’objectif de cette maison est simple : allier une forme traditionnelle rassurante et un intérieur moderne et adapté aux exigences d’aujourd’hui, le tout avec un maximum d’équipements de série. Cette maison dispose de 3 chambres, une suite parentale avec dressing et salle de bain, et une terrasse couverte.Les caractéristiques principales de cette maison sont : une
L’actualité immobilière à Neurey-lès-la-Demie
27/11/2023
02/11/2023
30/10/2023
20/10/2023
16/10/2023
16/10/2023