Images
Description
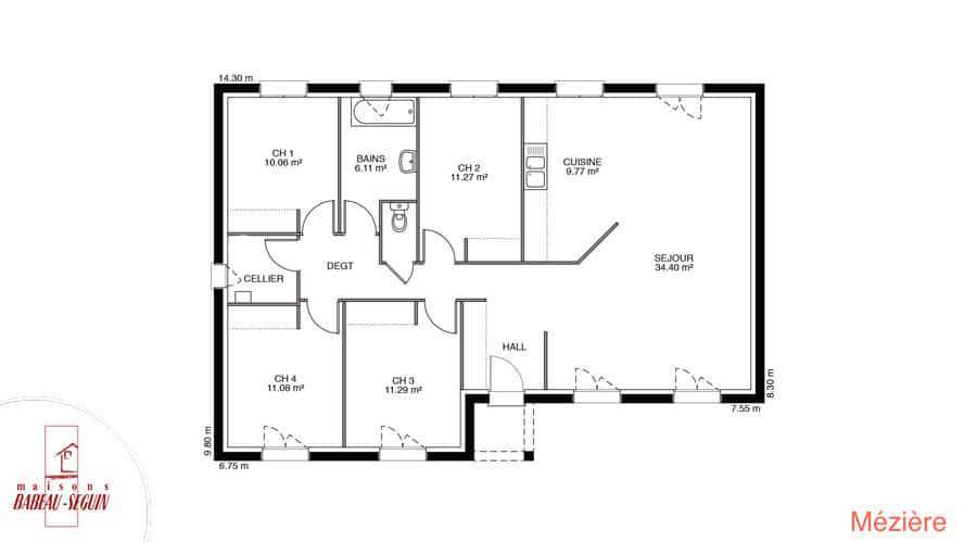
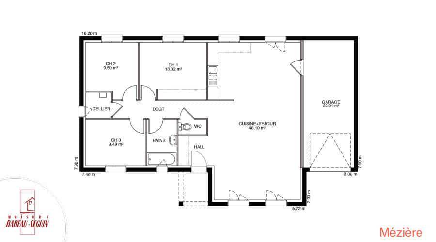
Sur ce terrain, nous vous proposons cette maison neuve, la Mézière Sud, conçue par Babeau-Seguin, constructeur offrant le meilleur rapport qualité/prix du marché. Superbe maison typique du sud, inspirée du modèle à succès Mézière de chez Maisons Babeau-Seguin, cette demeure de 88 m² saura répondre à toutes vos attentes.
Présentant 3 chambres et 4 pièces, la Mézière Sud est idéale pour les familles en quête de confort et de modernité. Son plan en L, disponible en version 2 pans ou 4 pans, offre une disposition harmonieuse et fonctionnelle. Vous pourrez également choisir entre un garage accolé ou un sous-sol, selon vos besoins. Un porche accueillant complète cette maison, ajoutant une touche de charme supplémentaire.
Les options les plus demandées par nos clients, telles que les menuiseries en aluminium et la piscine, sont également disponibles pour personnaliser votre future maison selon vos envies.
Insistons sur le fait que cette maison neuve est basse consommation et conforme à la RE2020, garantissant ainsi des performances énergétiques optimales et un respect de l'environnement.
Véritable coup de cœur pour de nombreux clients Babeau-Seguin, la Mézière Sud est facilement modifiable, ce qui justifie pleinement son succès. Répondant aux besoins de nombreuses familles nous ayant fait confiance, cette maison est une opportunité à ne pas manquer.
N'attendez plus pour découvrir cette maison d'exception et contactez-nous pour plus d'informations.
Logement susceptibles de vous intéresser
Nous vous proposons de découvrir aussi cette sélection de logements situés à moins de 10km de Beynac et qui seraient susceptibles de vous intéresser.
Saint-Martin-le-Vieux
TERRAINFiche N°Id-TCT179176 : SAINT MARTIN LE VIEUX Fiche BC179176 : Saint martin le vieux, Terrain d’environ 71690 m2 de 71690 m2 – – Plus d’informations disponibles sur demande… – Mentions légales : Proposé à la vente à 39375 Euros (Dont 12.5% TTC d’honoraires à la charge de l’acquéreur, soit un prix hors honoraires de 35000 Euros) – Affaire suivie par Mr Nicolas VALOIS (Agent immobilier – Responsable) – Reseau Immo-Diffusion Aixe Sur Vienne – Pour plus d’informations, contactez notre secrétariat au (Numéro supprimé) (Appel gratuit ou prix d’une communication locale)
Aixe-sur-Vienne
TERRAINFiche N°Id-TCT179095 : AIXE SUR VIENNE Fiche BC179095 : Aixe sur vienne, Terrain d’environ 10829 m2 de 10829 m2 – – Plus d’informations disponibles sur demande… – Mentions légales : Proposé à la vente à 276900 Euros (Dont 5.49% TTC d’honoraires à la charge de l’acquéreur, soit un prix hors honoraires de 262500 Euros) – Affaire suivie par Mr Nicolas VALOIS (Agent immobilier – Responsable) – Reseau Immo-Diffusion Aixe Sur Vienne – Pour plus d’informations, contactez notre secrétariat au (Numéro supprimé) (Appel gratuit ou prix d’une communication locale)
Beynac
TERRAIN ET MAISONSur ce terrain, nous vous proposons cette maison neuve : la Focus Tiny Sud. Conçue par Babeau-Seguin, constructeur reconnu pour offrir le meilleur rapport qualité/prix du marché, cette maison familiale est parfaitement adaptée aux régions du sud de la France et est accessible à tous les budgets.La Focus Tiny Sud, avec une surface habitable de 73 m², se distingue par son design sobre et moderne. Elle comprend 4 pièces, dont un grand séjour-cuisine traversant qui procure une agréable sensation d’espace, ainsi que 3 chambres à coucher de dimensions raisonnables, idéales pour accueillir votre famille. Fonctionnelle et bien pensée, cette maison dispose également d’un garage intégré de 15 m², parfait pour abriter votre véhicule ou pour servir d’espace de rangement supplémentaire. Les tuiles Canal et l’enduit bi-ton ajoutent une touche esthétique et traditionnelle à l’ensemble.Parmi les options les plus demandées par nos clients, les menuiseries en aluminium sont disponibles pour apporter une touche de modernité et de durabilité à votre future habitation.La Focus Tiny Sud est une maison basse consommation, conforme à la réglementation environnementale RE2020, garantissant d’excellentes performances en matière d’économie d’énergie. Vous bénéficierez ainsi d’un confort optimal tout en réalisant des économies sur vos factures énergétiques.Pour un prix défiant toute concurrence, vous profitez des meilleures technologies et d’un service irréprochable. Notre équipe d’experts s’engage à réaliser votre maison avec un haut niveau d’exigence, vous assurant des finitions soignées et une qualité de construction exceptionnelle.Ne manquez pas cette opportunité unique de devenir propriétaire d’une maison neuve, confortable et économe en énergie, au meilleur prix du marché. Contactez-nous dès maintenant pour plus d’informations et pour visiter la Focus 73 Sud en 3D sur notre site !
Beynac
TERRAINDécouvrez ce terrain exceptionnel de 950 m², idéalement situé dans la charmante ville de Beynac, au cœur du département de la Haute-Vienne en Nouvelle-Aquitaine. Ce terrain plat, offrant une superbe vue dégagée, constitue l’emplacement parfait pour réaliser votre projet de construction de maison. Profitez d’un cadre de vie paisible et calme, dans un environnement naturel exceptionnel. Ne manquez pas cette opportunité rare de devenir propriétaire à ce prix exceptionnel. Beynac est une ville qui allie qualité de vie et richesses naturelles. Avec ses charmantes ruelles et son ambiance tranquille, vous bénéficiez d’une proximité avec de nombreuses commodités, telles que des commerces, des écoles et des services de santé. Les amoureux de la nature apprécieront les paysages environnants et les nombreuses activités de plein air proposées. De plus, la ville est stratégiquement située, offrant un accès facile aux attractions locales et aux grandes voies de communication. Ce terrain est donc parfait pour ceux qui recherchent un cadre serein sans renoncer aux avantages urbains. Ne laissez pas passer cette chance unique d’acquérir un terrain au potentiel exceptionnel dans un cadre idyllique. Contactez-nous dès maintenant pour plus d’informations et découvrez toutes les possibilités qu’offre ce bien ! À noter qu’en tant que constructeur, nous ne sommes pas mandatés pour réaliser la vente de ce terrain.
Flavignac
TERRAINFiche N°Id-TCT178876 : FLAVIGNAC Fiche BC178876 : Flavignac, Terrain d’environ 2000 m2 de 2000 m2 – – Plus d’informations disponibles sur demande… – Mentions légales : Proposé à la vente à 28625 Euros (Dont 14.5% TTC d’honoraires à la charge de l’acquéreur, soit un prix hors honoraires de 25000 Euros) – Affaire suivie par Mr Nicolas VALOIS (Agent immobilier – Responsable) – Reseau Immo-Diffusion Aixe Sur Vienne – Pour plus d’informations, contactez notre secrétariat au (Numéro supprimé) (Appel gratuit ou prix d’une communication locale)
Le Vigen
TERRAIN ET MAISONMaison de 6 pièces (107 m²) en vente au VigenEmplacement privilégié – À découvrir au Vigen (87110) : maison neuve 6 pièces à vendre. Surface de 107 m² sur 1 400 m² de terrain. Elle est composée de trois chambres, d’une cuisine et d’une salle de bains. Vue sur un espace vert.À proximité : gares, école primaire École Élémentaire Publique, boulangerie, épicerie et boucheries-charcuteries. Autoroute A20 accessible à 4 km. Limoges à 14 km.Cette maison de 6 pièces est à vendre pour la somme de 293 000 €.Contactez Jean-François FAYE (tél : (Numéro supprimé)) pour obtenir de plus amples informations sur la maison de plain-pied.
Séreilhac
TERRAIN ET MAISONVENTE : maison de 6 pièces (145 m²) à SéreilhacEmplacement privilégié – En vente à Séreilhac (87620) : maison neuve 6 pièces de 145 m² et de 1 400 m² de terrain. Conçue de plain-pied, elle dispose de trois chambres, d’une cuisine et de deux salles de bains. Vue sur un espace vert.Proche gares (Aixe-sur-Vienne et Verneuil-sur-Vienne), établissements scolaires, crèches, bibliothèques, tennis, bassin de natation, boulangeries, commerces, supermarchés, boucheries-charcuteries et bureaux de poste. Limoges à 14 km.Cette maison de 6 pièces est à vendre pour la somme de 352 000 €.Contactez Jean-François FAYE ((Numéro supprimé)) pour tout renseignement sur la maison ou sur les modalités de vente. Donnez vie à vos projets immobiliers avec Maisons Millot Limoges.
Saint-Priest-sous-Aixe
TERRAIN ET MAISONMaison F4 (85 m²) à vendre à Saint-Priest-sous-AixeIdéalement située – À découvrir à Saint-Priest-sous-Aixe (87700) : maison neuve 4 pièces à vendre, 85 m² sur 15 000 m² de terrain. Conçue de plain-pied, elle inclut trois chambres, une cuisine et une salle de bains. Vue sur un bois.À dix minutes : gares, écoles, boulangerie. Nationales N141 et N520 accessibles à 8 km. Limoges à 9 km.Le prix de vente de cette maison de 4 pièces est de 203 500 €.Prenez contact avec Jean-François FAYE (tél : (Numéro supprimé)) pour plus de renseignements sur la maison ou sur les modalités de vente.
Séreilhac
TERRAINFiche N°Id-TCT178726 : SEREILHAC Fiche BC178726 : Sereilhac, Terrain d’environ 719 m2 de 719 m2 – – Plus d’informations disponibles sur demande… – Mentions légales : Proposé à la vente à 66000 Euros (Dont 10% TTC d’honoraires à la charge de l’acquéreur, soit un prix hors honoraires de 60000 Euros) – Affaire suivie par Mr Nicolas VALOIS (Agent immobilier – Responsable) – Reseau Immo-Diffusion Aixe Sur Vienne – Pour plus d’informations, contactez notre secrétariat au (Numéro supprimé) (Appel gratuit ou prix d’une communication locale)
L’actualité immobilière à Beynac
27/11/2023
02/11/2023
30/10/2023
20/10/2023
16/10/2023
16/10/2023