Maison neuve à Panazol (87350)
Images
Description
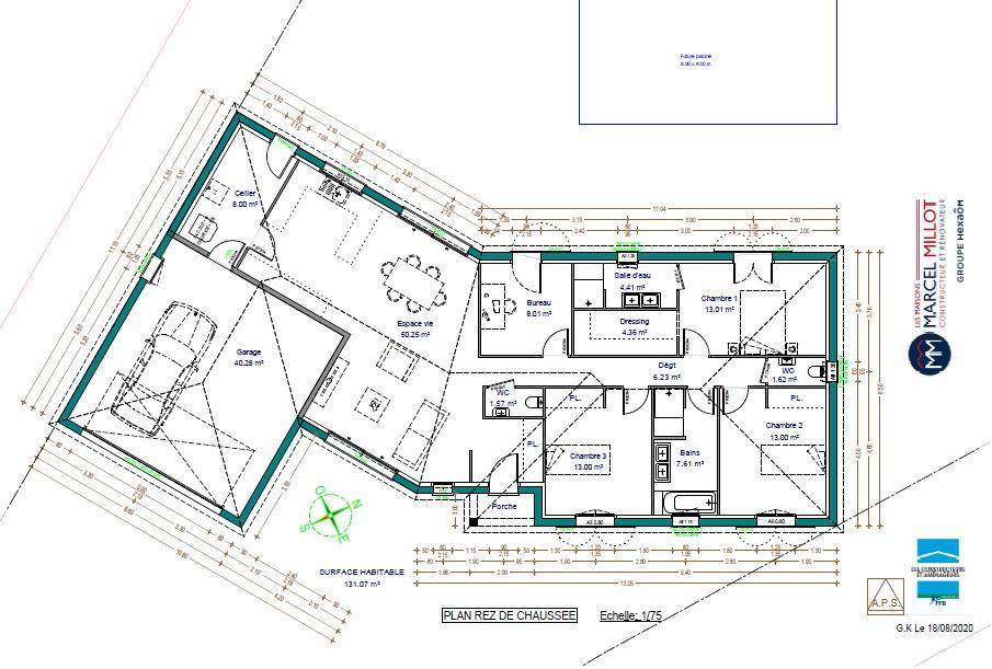
VENTE d'une maison F5 (131 m²) à Panazol
PROCHE DE LIMOGES - MAISON 5 PIÈCES NEUVE
Sur un terrain de 800m2, nous vous proposons ce projet de construction moderne comprenant:
- Une pièce de vie lumineuse et spacieuse
- Une suite parentale
- 3 chambres et un bureau
- Un garage double, selon vos envies.
Maison conforme à la RE2020 garantissant confort et une performance énergétique toute l'année.
Garanties techniques et financières.
Projet de construction au prix de 334 000 € ( hors frais de notaire, viabilisation , maison prêt à décorer)
Plans personnalisables selon vos besoins et votre mode de vie.
Contactez nous pour plus de renseignements ou pour une étude gratuite et personnalisée de votre future maison.
Marion NOBLET (Numéro supprimé)
Concrétisez vos projets immobiliers avec Maisons Millot Limoges.
Logement susceptibles de vous intéresser
Nous vous proposons de découvrir aussi cette sélection de logements situés à moins de 10km de Panazol et qui seraient susceptibles de vous intéresser.
Le Palais-sur-Vienne
TERRAIN ET MAISONMaison neuve à bâtir – Le Palais-sur-Vienne Venez découvrir ce projet de maison moderne de 118 m2, sur une parcelle de 805 m2.Cette maison, lumineuse et fonctionnelle, offre un espace de vie convivial avec un beau séjour ouvert sur une terrasse, parfait pour profiter des beaux jours.Elle comprend 3 chambres, dont une suite parentale avec salle d’eau et dressing, pour allier confort et intimité, un bureau et un garage double. Réglementation RE 2020, maison construite sur un vide sanitaire. Le prix de 329 600 € comprend : l’achat du terrain, les frais de notaire, la construction de la maison hors finitions intérieures, les différentes garanties, etc. ) Pour plus de renseignements :Contacter Marion NOBLET Maison MILLOT (Numéro supprimé).
Saint-Priest-Taurion
TERRAIN ET MAISONSaint-Priest-Taurion : maison T5 (110 m²) à vendreVotre futur maison vous attend à Saint-Priest-Taurion, dans un cadre verdoyant.Sur un terrain de 1160 m2, cette maison à construire de 110 m², parfaitement pensée pour offrir confort et praticité au quotidien. Elle se compose d’une belle pièce de vie lumineuse avec cuisine ouverte, de trois chambres spacieuses avec placards, d’une salle de bains moderne, de WC séparés d’un cellier et d’un garage.Le chauffage est assuré par une pompe à chaleur dernière génération, garantissant confort thermique, économies d’énergie et respect de l’environnement. Cette maison est conforme à la réglementation RE2020, vous assurant une excellente isolation et des performances énergétiques optimales.Garanties techniques et financières. Ce projet est au prix de 249 900 euros. Construction sur vide sanitaire, élévation des murs en brique. (Terrain + maison – garantie d’achèvement et de livraison à prix et délais convenus incluse – DO incluse – Hors adaptation au sol et raccordements – visuel non contractuel – non mandaté pour réaliser la vente du terrain vu avec nos partenaires).Plans personnalisables selon vos besoins et votre mode de vie. Contactez nous pour plus de renseignements ou pour une étude gratuite et personnalisée de votre future maison. Marion NOBLET (Numéro supprimé) Concrétisez vos projets immobiliers avec Maisons Millot Limoges.
Panazol
TERRAIN ET MAISONVENTE d’une maison F5 (131 m²) à PanazolPROCHE DE LIMOGES – MAISON 5 PIÈCES NEUVESur un terrain de 800m2, nous vous proposons ce projet de construction moderne comprenant: – Une pièce de vie lumineuse et spacieuse – Une suite parentale – 3 chambres et un bureau – Un garage double, selon vos envies. Maison conforme à la RE2020 garantissant confort et une performance énergétique toute l’année. Garanties techniques et financières. Projet de construction au prix de 334 000 € ( hors frais de notaire, viabilisation , maison prêt à décorer) Plans personnalisables selon vos besoins et votre mode de vie. Contactez nous pour plus de renseignements ou pour une étude gratuite et personnalisée de votre future maison. Marion NOBLET (Numéro supprimé) Concrétisez vos projets immobiliers avec Maisons Millot Limoges.
Panazol
TERRAIN ET MAISONPanazol : maison de 5 pièces (90 m²) en venteMAISON 5 PIÈCES NEUVE – PROCHE DE LIMOGESInvestisseurs! Investisseurs! La demande locative ne cesse d’augmenter, très peu de maison sont en location.Faites construire votre bien maintenant et assurez vous un revenue stable pour votre retraite ou tout simplement pour placer votre argent ! Située sur une parcelle de 500 m2, emplacement privilégié proches des écoles. Elle dispose d’un spacieux salon-séjour avec cuisine ouverte , d’un espace nuit avec 3 chambres et d’un garage. Maison conforme à la RE2020 garantissant confort et une performance énergétique toute l’année. Rentabilité possible de 5,5 % Garanties techniques et financières. Contactez nous pour plus de renseignements ou pour une étude gratuite et personnalisée de votre future maison. Marion NOBLET (Numéro supprimé) Concrétisez vos projets immobiliers avec Maisons Millot Limoges.
Rilhac-Rancon
TERRAIN ET MAISONMaison F5 (85 m²) à vendre à Rilhac-RanconPROCHE DE LIMOGES – MAISON 5 PIÈCES NEUVEÀ vendre à quelques kilomètres de Limoges, venez découvrir à Rilhac-Rancon (87570), cette maison de 5 pièces de plain-pied de 85 m². Elle dispose de trois chambres, d’une cuisine et d’une salle de bains.Le terrain du bien s’étend sur 650 m².Faites construire votre maison et définissez la en fonction de vos choix, mode de vie. Réglementation RE 2020, maison construite sur un vide sanitaire. Le prix de 198 000 € comprend : l’achat du terrain, les frais de notaire, la construction de la maison hors finitions intérieures, les différentes garanties, etc. ) Pour plus de renseignements :Contacter Marion NOBLET Maison MILLOT (Numéro supprimé).
Royères
TERRAINVENTE : terrain de 1 200 m² à RoyèresProche de Limoges – Terrain à vendre de 1 200 m², orienté au sud-est à Royères (87400).À dix minutes : gares, écoles, bibliothèque et épicerie. Autoroute A20 et nationale N520 accessibles à 17 km.Il est proposé à l’achat pour 40 000 €. Contactez Marion NOBLET (tél : (Numéro supprimé)) pour tout renseignement sur le terrain, sur les modalités de vente ou sur les démarches à suivre.
Royères
TERRAIN ET MAISONRoyères : maison de 5 pièces (95 m²) en venteAu calme avec une vue agréable sur la campagne, faites construire votre maison et définissez la en fonction de vos choix, mode de vie. Nous vous proposons un terrain de 1200 m2 et un projet de maison moderne de 95m2.Elle dispose :- d’un salon-séjour spacieux et lumineux – de 3 belles chambres- d’un garage double. Réglementation RE 2020, maison construite sur un vide sanitaire. Le prix de 235 000 € comprend : l’achat du terrain, les frais de notaire, la construction de la maison hors finitions intérieures, les différentes garanties, etc. ) Pour plus de renseignements :Contacter Marion NOBLET Maison Marcel MILLOT (Numéro supprimé). Au plaisir de parler de votre projet et de vous rencontrer.
Saint-Just-le-Martel
TERRAINVENTE : terrain de 1 200 m² à Saint-Just-le-MartelPROCHE DE LIMOGESÀ 15 km de Limoges à Saint-Just-le-Martel (87590), grand terrain. Réalisez-y votre résidence principale ou secondaire. Il bénéficie d’une exposition sud.Terrain à viabiliser. Il est à vendre pour la somme de 55 000 €. Prenez contact avec Marion NOBLET ((Numéro supprimé) ) pour toute information sur ce terrain. Maisons Millot Limoges est là pour vous accompagner dans toutes vos démarches.
Saint-Just-le-Martel
TERRAIN ET MAISONVENTE d’une maison de 5 pièces (118 m²) à Saint-Just-le-MartelVotre futur maison vous attend à Saint Just-le-Martel, dans un cadre verdoyant à seulement 15 minutes du centre ville de Limoges.Sur un terrain de 1200 m2 exposé Sud-Ouest, nous vous proposons ce projet de construction moderne comprenant: – Une belle pièce de vie lumineuse – 3 chambres dont une suite parentale. – Un garage double, selon vos envies. Maison conforme à la RE2020 garantissant confort et une performance énergétique toute l’année. Garanties techniques et financières. Projet de construction au prix de 299 000€Plans personnalisables selon vos besoins et votre mode de vie. Contactez nous pour plus de renseignements ou pour une étude gratuite et personnalisée de votre future maison. Marion NOBLET (Numéro supprimé) Concrétisez vos projets immobiliers avec Maisons Millot Limoges.
L’actualité immobilière à Panazol
27/11/2023
02/11/2023
30/10/2023
20/10/2023
16/10/2023
16/10/2023