Maison à construire à Forest-Saint-Julien (05260)
Images
Description
🏡 Maison traditionnelle 106 m² - Forest Saint-Julien (05) 🌟
Alliez élégance, modernité et confort avec Maison France Confort, n°1 de la construction en France et dans le Champsaur. Un projet clé en main pour une vie familiale idéale dans un cadre privilégié.
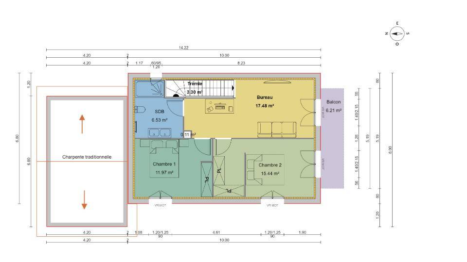
📐 106 m² habitables
3 à 4 chambres spacieuses
Grande pièce de vie lumineuse
Garage attenant
Assainissement autonome inclus
💰 Projet à partir de 379 000 €
(Maison + Terrain + Garage + Assainissement)
✨ Atouts Maison France Confort :
Garantie CCMI : prix et délais garantis
Maisons performantes et durables
Accompagnement personnalisé de A à Z
Qualité et savoir-faire reconnus, déjà + de 100 000 familles séduites
🌿 Terrain calme et ensoleillé, idéal pour profiter pleinement de la vie en famille et de la nature environnante.
📞 Contact : Brice DA SILVA - (Numéro supprimé)
Logement susceptibles de vous intéresser
Nous vous proposons de découvrir aussi cette sélection de logements situés à moins de 10km de Forest-Saint-Julien et qui seraient susceptibles de vous intéresser.
Gap
TERRAIN ET MAISONLa maison ossature bois Natilive saura vous charmer avec son architecture moderne et traditionnelle, mais surtout avec son plan bien pensé. Sa disposition sur deux étages et son garage attenant optimisent la surface au sol, ce qui en fait une maison individuelle parfaitement adaptée à un petit terrain, même en milieu urbain.Le visiteur est accueilli sous un auvent, bien utile pour s’abriter des intempéries en attendant l’ouverture de la porte. S’articulant autour de son escalier central, cette maison à étage conserve une grande surface habitable. Au rez-de-chaussée, on retrouve ainsi une grande pièce de vie et une cuisine ouverte pour conserver l’atmosphère conviviale voulue par le modèle Natilive. Une large baie vitrée accentue le côté chaleureux en apportant un maximum de luminosité. La possibilité vous est offerte de créer un cellier ainsi qu’une suite parentale avec sa salle d’eau accolée, en plus des WC séparés.À l’étage, un couloir s’ouvre sur les autres chambres tout aussi lumineuses, chacune d’elles permettant d’intégrer des placards sans perdre d’espace. On retrouve également une salle de bain spacieuse ainsi que des WC supplémentaires pour plus de confort. La maison individuelle Natilive est entièrement personnalisable, afin de répondre à toutes vos envies dans le respect de votre budget. Libre à vous d’ajouter une chambre à ce niveau !Pour donner vie à votre projet de construction, contactez votre agence ! Nos conseillers se tiennent à votre disposition pour définir ensemble le style de votre future maison environnementale.
Gap
TERRAIN ET MAISONLa maison ossature bois Natilive saura vous charmer avec son architecture moderne et traditionnelle, mais surtout avec son plan bien pensé. Sa disposition sur deux étages et son garage attenant optimisent la surface au sol, ce qui en fait une maison individuelle parfaitement adaptée à un petit terrain, même en milieu urbain.Le visiteur est accueilli sous un auvent, bien utile pour s’abriter des intempéries en attendant l’ouverture de la porte. S’articulant autour de son escalier central, cette maison à étage conserve une grande surface habitable. Au rez-de-chaussée, on retrouve ainsi une grande pièce de vie et une cuisine ouverte pour conserver l’atmosphère conviviale voulue par le modèle Natilive. Une large baie vitrée accentue le côté chaleureux en apportant un maximum de luminosité. La possibilité vous est offerte de créer un cellier ainsi qu’une suite parentale avec sa salle d’eau accolée, en plus des WC séparés.À l’étage, un couloir s’ouvre sur les autres chambres tout aussi lumineuses, chacune d’elles permettant d’intégrer des placards sans perdre d’espace. On retrouve également une salle de bain spacieuse ainsi que des WC supplémentaires pour plus de confort. La maison individuelle Natilive est entièrement personnalisable, afin de répondre à toutes vos envies dans le respect de votre budget. Libre à vous d’ajouter une chambre à ce niveau !Pour donner vie à votre projet de construction, contactez votre agence ! Nos conseillers se tiennent à votre disposition pour définir ensemble le style de votre future maison environnementale.
Gap
TERRAIN ET MAISONLa Natigreen est un modèle de maison à étage qui se distingue par ses grands espaces de vie et sa luminosité. Initialement pensée pour s’insérer dans un projet de maison à énergie positive, la Natigreen comporte tous les atouts d’une villa familiale où il fait bon vivre. Tous les éléments sont réunis pour vous proposer confort, sérénité et plaisir de profiter de son habitat. Au rez-de-chaussée, entrez dans un espace de vie entièrement ouvert et aéré, dont la disposition intérieure vous permet de créer un coin TV, un espace pour les repas ainsi qu’une grande cuisine. Toujours à ce niveau, découvrez la possibilité d’aménager une large chambre parentale avec sa salle d’eau attenante. A l’étage, vous pourrez retrouver plusieurs chambres, dont le nombre est personnalisable selon vos besoins et la superficie de votre maison. Une grande salle de bain avec WC indépendants viennent compléter les prestations de qualité offertes par cette maison ossature bois.
Saint-Bonnet-en-Champsaur
TERRAIN ET MAISONLa maison ossature bois Natilive saura vous charmer avec son architecture moderne et traditionnelle, mais surtout avec son plan bien pensé. Sa disposition sur deux étages et son garage attenant optimisent la surface au sol, ce qui en fait une maison individuelle parfaitement adaptée à un petit terrain, même en milieu urbain.Le visiteur est accueilli sous un auvent, bien utile pour s’abriter des intempéries en attendant l’ouverture de la porte. S’articulant autour de son escalier central, cette maison à étage conserve une grande surface habitable. Au rez-de-chaussée, on retrouve ainsi une grande pièce de vie et une cuisine ouverte pour conserver l’atmosphère conviviale voulue par le modèle Natilive. Une large baie vitrée accentue le côté chaleureux en apportant un maximum de luminosité. La possibilité vous est offerte de créer un cellier ainsi qu’une suite parentale avec sa salle d’eau accolée, en plus des WC séparés.À l’étage, un couloir s’ouvre sur les autres chambres tout aussi lumineuses, chacune d’elles permettant d’intégrer des placards sans perdre d’espace. On retrouve également une salle de bain spacieuse ainsi que des WC supplémentaires pour plus de confort. La maison individuelle Natilive est entièrement personnalisable, afin de répondre à toutes vos envies dans le respect de votre budget. Libre à vous d’ajouter une chambre à ce niveau !Pour donner vie à votre projet de construction, contactez votre agence ! Nos conseillers se tiennent à votre disposition pour définir ensemble le style de votre future maison environnementale.
Gap
TERRAIN ET MAISONLa maison ossature bois Natilive saura vous charmer avec son architecture moderne et traditionnelle, mais surtout avec son plan bien pensé. Sa disposition sur deux étages et son garage attenant optimisent la surface au sol, ce qui en fait une maison individuelle parfaitement adaptée à un petit terrain, même en milieu urbain.Le visiteur est accueilli sous un auvent, bien utile pour s’abriter des intempéries en attendant l’ouverture de la porte. S’articulant autour de son escalier central, cette maison à étage conserve une grande surface habitable. Au rez-de-chaussée, on retrouve ainsi une grande pièce de vie et une cuisine ouverte pour conserver l’atmosphère conviviale voulue par le modèle Natilive. Une large baie vitrée accentue le côté chaleureux en apportant un maximum de luminosité. La possibilité vous est offerte de créer un cellier ainsi qu’une suite parentale avec sa salle d’eau accolée, en plus des WC séparés.À l’étage, un couloir s’ouvre sur les autres chambres tout aussi lumineuses, chacune d’elles permettant d’intégrer des placards sans perdre d’espace. On retrouve également une salle de bain spacieuse ainsi que des WC supplémentaires pour plus de confort. La maison individuelle Natilive est entièrement personnalisable, afin de répondre à toutes vos envies dans le respect de votre budget. Libre à vous d’ajouter une chambre à ce niveau !Pour donner vie à votre projet de construction, contactez votre agence ! Nos conseillers se tiennent à votre disposition pour définir ensemble le style de votre future maison environnementale.
Gap
TERRAIN ET MAISONLa maison de plain-pied Natiban est un modèle au plan simple et fonctionnel. Cette maison vous offre 3 belles chambres, ainsi qu’une pièce de vie entièrement ouverte composée d’un coin salon et d’un espace cuisine-repas, le tout baigné de lumière grâce à 3 ouvertures. Disponible dans tous les types de toitures régionales, cette maison ossature bois, allie classique et modernité grâce au choix d’une façade mixte enduit et bardage. Ce modèle est un bon compromis pour avoir une maison fonctionnelle à un prix accessible.Découvrez ci-dessous notre plan 3D et la maison sous tous les angles de vue.N’hésitez pas à consulter les réalisations des agences et à les contacter pour découvrir nos maisons bois Natiban déjà réalisées.
Gap
TERRAIN ET MAISONMaison de plain-pied de 85 m², comprenant trois chambres et un garage de 18 m² ainsi qu’une pièce de vie entièrement ouverte composée d’un coin salon et d’un espace cuisine-repas, le tout baigné de lumière grâce à 3 ouvertures. La maison est équipée d’un mode de chauffage par poêle à granulés, complété par des convecteurs dans les chambres. Un bien confortable et fonctionnel, idéal pour une famille. Pour toute information complémentaire, n’hésitez pas à nous contacter.
Gap
TERRAIN ET MAISON🌿 Maison bois – 83 m² – Vue montagne & nature ☀️Laissez-vous charmer par cette maison ossature bois de plain-pied, baignée de lumière et tournée vers la nature.👉 3 chambres, un bel espace de vie, un jardin ensoleillé et une vue magnifique sur les montagnes.Construction neuve RE2020, alliant confort, économie d’énergie et bien-être au quotidien.Une maison qui respire la sérénité… et dans laquelle on se projette dès la première visite 🌞📞 Yves DESPIERRESMaisons France Confort – Construction & Rénovation📱 (Numéro supprimé)
Gap
TERRAIN ET MAISON🌲 Maison bois – 65 m² – Vue montagne & nature ☀️Offrez-vous le charme d’une maison ossature bois au coeur de la nature 🌿Un plain-pied lumineux de 65 m², pensé pour votre confort et votre bien-être :🛏️ 2 chambres douillettes, un espace de vie ouvert sur le jardin, et une vue splendide sur les montagnes.Construction neuve RE2020, gage de performance énergétique, économies et confort thermique toute l’année.Un cadre paisible, baigné de soleil, où il fait bon vivre et se ressourcer.💚 Ici, on ne parle pas seulement de maison… on parle de votre futur cocon.📞 Yves DESPIERRESMaisons France Confort – Construction & Rénovation📱 (Numéro supprimé)Et si c’était le moment de construire votre maison, votre nature, votre équilibre ? 🌞
L’actualité immobilière à Forest-Saint-Julien
27/11/2023
02/11/2023
30/10/2023
20/10/2023
16/10/2023
16/10/2023