Maison à construire à Gap (05000)
Images
Description
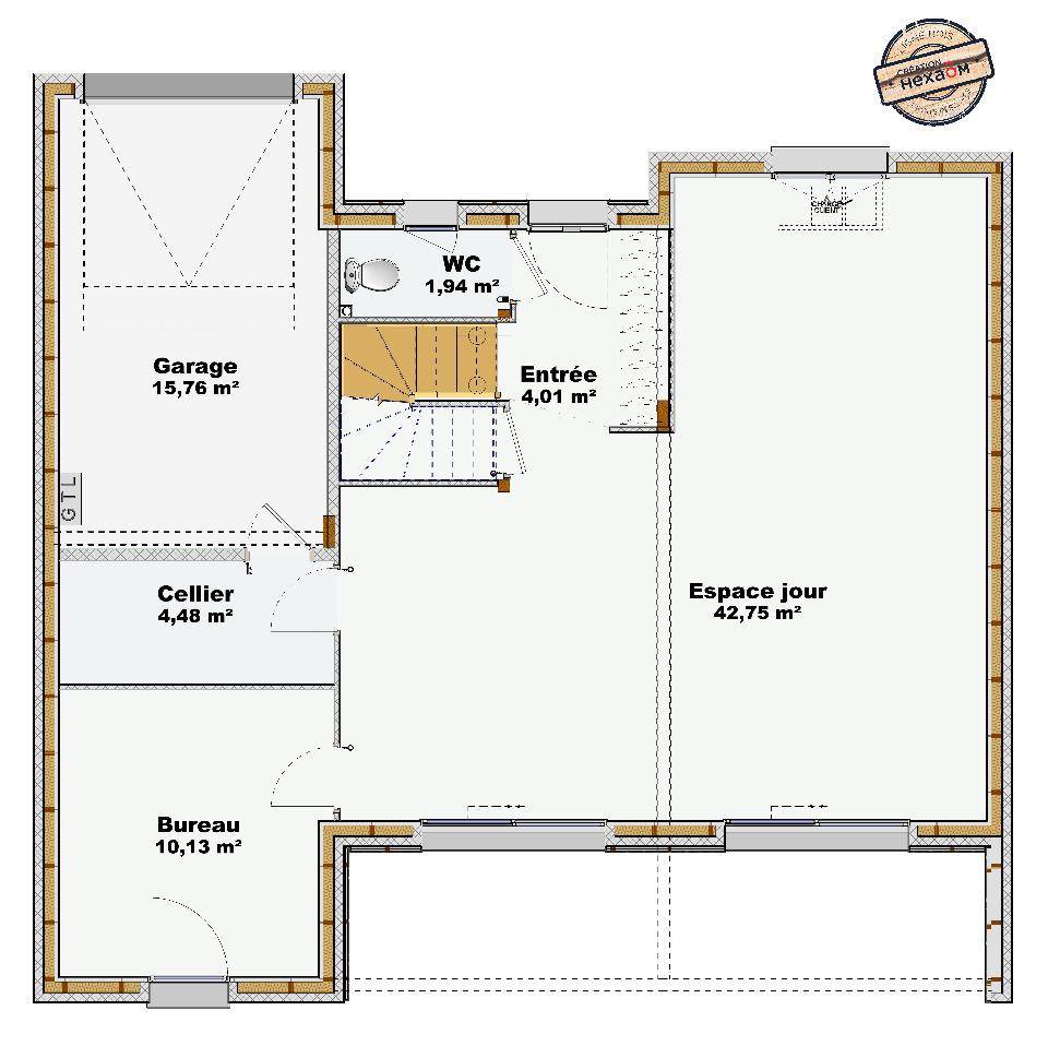
🏡 Maison Ossature Bois à étage - 114 m² - 3 chambres + bureau - Garage
Construction neuve RE2020 - Confort, lumière et performance
Découvrez cette MOB moderne pensée pour offrir un cadre de vie chaleureux et fonctionnel à toute la famille.
✨ Un bureau au rez-de-chaussée, idéal pour télétravail, profession libérale ou chambre d'appoint
✨ 3 chambres à l'étage, offrant espace, calme et intimité
✨ Grande pièce de vie lumineuse, ouverte sur l'extérieur
✨ Garage intégré, pratique au quotidien
✨ Construction ossature bois, ambiance chaleureuse et performance thermique remarquable
✨ Norme RE2020, économies d'énergie garanties
Une maison conçue pour ceux qui veulent vivre dans un espace sain, moderne et durable, où chaque mètre carré a été pensé pour simplifier la vie et créer de vrais moments de bien-être.
📞 Envie d'en savoir plus, de découvrir les plans ou les possibilités d'adaptation ? Appelez-moi dès maintenant !
Yves DESPIERRES
MAISONS FRANCE CONFORT - Construction & Rénovation
📱 (Numéro supprimé)
Logement susceptibles de vous intéresser
Nous vous proposons de découvrir aussi cette sélection de logements situés à moins de 10km de Gap et qui seraient susceptibles de vous intéresser.
Gap
TERRAIN ET MAISON🏡 Maison Ossature Bois – Plain-pied 104 m² – 4 chambres + garageConstruction neuve RE2020Découvrez le confort et la modernité dans cette superbe MOB de 104 m², pensée pour accueillir toute la famille.✨ 4 chambres spacieuses, pour l’intimité et le confort de chacun✨ Séjour lumineux et convivial, ouvert sur l’extérieur✨ Garage intégré, pratique et fonctionnel✨ Design en ossature bois, chaleureux et écologique✨ Construction RE2020, pour un habitat durable et économe en énergieUne maison qui combine fonctionnalité, esthétisme et bien-être, idéale pour créer votre projet de vie et profiter de chaque instant avec vos proches.📞 Pour découvrir les plans et toutes les options, contactez-moi dès maintenant !Yves DESPIERRESMAISONS FRANCE CONFORT – Construction & Rénovation📱 (Numéro supprimé)
Gap
TERRAIN ET MAISON🏡 NOUVEAUTÉ – Maison Ossature Bois 83 m² – 3 chambres + garagePlain-pied moderne – Construction RE2020Vous rêvez d’un cadre de vie lumineux, chaleureux et parfaitement adapté à votre quotidien ?Découvrez ce plain-pied en ossature bois de 83 m², pensé pour concilier confort, esthétique et performance énergétique.À l’intérieur, laissez-vous séduire par :✨ Une belle pièce de vie ouverte, baignée de lumière naturelle✨ 3 chambres bien agencées, idéales pour accueillir une famille✨ Un garage intégré, pratique en toute saison✨ Une conception RE2020, synonyme d’économies, de bien-être et d’air intérieur plus sainCette maison, c’est l’équilibre parfait entre modernité, douceur de vivre et coût de fonctionnement maîtrisé.Un projet qui parle à la tête… mais surtout au coeur.📞 Envie d’en savoir plus ? De découvrir les plans ou de vous projeter dans votre futur chez-vous ?Je me ferai un plaisir de vous accompagner dans votre projet.Yves DESPIERRESMAISONS FRANCE CONFORT – Construction & Rénovation📱 (Numéro supprimé)
Gap
TERRAIN ET MAISON🏡 NOUVEAUTÉ – Votre future maison ossature bois, moderne et lumineuse !Plain-pied – 64 m² – RE2020 – 2 chambresVous rêvez d’un cocon chaleureux, économe en énergie et pensé pour un confort quotidien ?Découvrez ce superbe plain-pied en ossature bois, signé Maisons France Confort, offrant un style contemporain et une ambiance intérieure douce et naturelle.À l’intérieur, tout est conçu pour faciliter la vie :Une pièce de vie lumineuse, idéale pour recevoir ou se détendreDeux chambres confortables, parfaites pour un couple, un premier achat ou un projet locatifUne conception RE2020, synonymes d’économies d’énergie et de bien-être au fil des saisonsCette maison est une opportunité rare : un projet simple, malin et intemporel… qui n’attend plus que vous pour prendre vie.📞 Envie d’en savoir plus, d’obtenir les plans ou d’imaginer votre aménagement ?Je vous accompagne avec plaisir dans votre projet.Yves DESPIERRESMAISONS FRANCE CONFORT – Construction & Rénovation📱 (Numéro supprimé)
Gap
TERRAIN ET MAISON🌿 Maison Ossature Bois – Plain-pied 75 m² – RE2020 – 3 chambresEt si vous viviez dans une maison qui respire la lumière, le confort et le bien-être ?Découvrez ce magnifique plain-pied en ossature bois de 75 m², conçu pour offrir un cadre de vie chaleureux, économe et durable.Une architecture simple et moderne, un espace parfaitement optimisé, et surtout… la sensation incomparable du bois, qui apporte douceur, calme et sérénité au quotidien.✔ 3 chambres – idéal pour une famille ou un premier projet✔ Construction RE2020 – économies d’énergie, confort toutes saisons✔ Maison saine & lumineuse – matériaux naturels, atmosphère cocooning✔ Plain-pied – pratique, fluide, accessibleC’est la maison parfaite pour se projeter dans un nouveau chapitre de vie : un lieu où l’on se sent bien dès le premier pas, où l’on imagine déjà les repas, les soirées d’hiver, les moments simples qui font un vrai chez-soi.Envie d’en savoir plus ?Un appel suffit pour découvrir cette maison et imaginer la vôtre.📞 Yves DESPIERRES – (Numéro supprimé)Maisons France Confort – Construction & Rénovation
Gap
TERRAIN ET MAISON🏡 Maison Ossature Bois à étage – 104 m² – 4 chambres + garageConstruction neuve RE2020Découvrez cette MOB moderne et chaleureuse, conçue pour offrir confort, luminosité et fonctionnalité à toute la famille :✨ 1 chambre au rez-de-chaussée, pratique pour les parents ou invités✨ 3 chambres à l’étage, pour enfants et espace personnel✨ Séjour lumineux et ouvert, idéal pour partager des moments conviviaux✨ Garage intégré, pratique et sécurisé✨ Construction ossature bois, écologique et performante✨ Norme RE2020, pour une maison économique et respectueuse de l’environnementUn véritable projet de vie clé en main, où confort et modernité se conjuguent pour accueillir votre famille dans les meilleures conditions.📞 Contactez-moi dès maintenant pour en savoir plus et visiter votre future maison !Yves DESPIERRESMAISONS FRANCE CONFORT – Construction & Rénovation📱 (Numéro supprimé)
Gap
TERRAIN ET MAISON🏡 NOUVEAUTÉ – Maison Ossature Bois 83 m² – 3 chambres + garagePlain-pied moderne – Construction RE2020Vous rêvez d’un cadre de vie lumineux, chaleureux et parfaitement adapté à votre quotidien ?Découvrez ce plain-pied en ossature bois de 83 m², pensé pour concilier confort, esthétique et performance énergétique.À l’intérieur, laissez-vous séduire par :✨ Une belle pièce de vie ouverte, baignée de lumière naturelle✨ 3 chambres bien agencées, idéales pour accueillir une famille✨ Un garage intégré, pratique en toute saison✨ Une conception RE2020, synonyme d’économies, de bien-être et d’air intérieur plus sainCette maison, c’est l’équilibre parfait entre modernité, douceur de vivre et coût de fonctionnement maîtrisé.Un projet qui parle à la tête… mais surtout au coeur.📞 Envie d’en savoir plus ? De découvrir les plans ou de vous projeter dans votre futur chez-vous ?Je me ferai un plaisir de vous accompagner dans votre projet.Yves DESPIERRESMAISONS FRANCE CONFORT – Construction & Rénovation📱 (Numéro supprimé)
Gap
TERRAIN ET MAISON🏡 Maison Ossature Bois à étage – 114 m² – 3 chambres + bureau – GarageConstruction neuve RE2020 – Confort, lumière et performanceDécouvrez cette MOB moderne pensée pour offrir un cadre de vie chaleureux et fonctionnel à toute la famille.✨ Un bureau au rez-de-chaussée, idéal pour télétravail, profession libérale ou chambre d’appoint✨ 3 chambres à l’étage, offrant espace, calme et intimité✨ Grande pièce de vie lumineuse, ouverte sur l’extérieur✨ Garage intégré, pratique au quotidien✨ Construction ossature bois, ambiance chaleureuse et performance thermique remarquable✨ Norme RE2020, économies d’énergie garantiesUne maison conçue pour ceux qui veulent vivre dans un espace sain, moderne et durable, où chaque mètre carré a été pensé pour simplifier la vie et créer de vrais moments de bien-être.📞 Envie d’en savoir plus, de découvrir les plans ou les possibilités d’adaptation ? Appelez-moi dès maintenant !Yves DESPIERRESMAISONS FRANCE CONFORT – Construction & Rénovation📱 (Numéro supprimé)
Gap
TERRAIN ET MAISON🏡 Maison Ossature Bois – Plain-pied 120 m² – Suite parentale – GarageConstruction neuve RE2020 – Confort moderne & bien-être au quotidienLaissez-vous séduire par ce plain-pied en ossature bois, pensé pour offrir un cadre de vie lumineux, sain et chaleureux. Un vrai cocon moderne où chaque espace a été dessiné pour faciliter la vie de toute la famille.✨ 3 chambres, dont une suite parentale avec salle d’eau privative✨ Grande pièce de vie traversante : lumière, volume et convivialité✨ Cuisine ouverte (modifiable selon vos envies)✨ Garage intégré✨ Construction MOB, ambiance naturelle & performance thermique au top✨ Norme RE2020, pour un confort durable et des économies d’énergieCette maison est idéale pour ceux qui veulent vivre en plain-pied avec le maximum de confort, profiter d’une ambiance bois douce et chaleureuse, tout en bénéficiant d’un niveau de performance énergétique exemplaire.📞 Envie de découvrir les plans, les options ou d’adapter cette maison à votre terrain ? Appelez-moi, je vous accompagne dans votre projet de vie.Yves DESPIERRESMAISONS FRANCE CONFORT – Construction & Rénovation📱 (Numéro supprimé)
Gap
TERRAIN ET MAISON🏡 NOUVEAUTÉ – Votre future maison ossature bois, moderne et lumineuse !Plain-pied – 64 m² – RE2020 – 2 chambresVous rêvez d’un cocon chaleureux, économe en énergie et pensé pour un confort quotidien ?Découvrez ce superbe plain-pied en ossature bois, signé Maisons France Confort, offrant un style contemporain et une ambiance intérieure douce et naturelle.À l’intérieur, tout est conçu pour faciliter la vie :Une pièce de vie lumineuse, idéale pour recevoir ou se détendreDeux chambres confortables, parfaites pour un couple, un premier achat ou un projet locatifUne conception RE2020, synonymes d’économies d’énergie et de bien-être au fil des saisonsCette maison est une opportunité rare : un projet simple, malin et intemporel… qui n’attend plus que vous pour prendre vie.📞 Envie d’en savoir plus, d’obtenir les plans ou d’imaginer votre aménagement ?Je vous accompagne avec plaisir dans votre projet.Yves DESPIERRESMAISONS FRANCE CONFORT – Construction & Rénovation📱 (Numéro supprimé)
L’actualité immobilière à Gap
27/11/2023
02/11/2023
30/10/2023
20/10/2023
16/10/2023
16/10/2023