Maison à construire à Lannemezan (65300)
Images
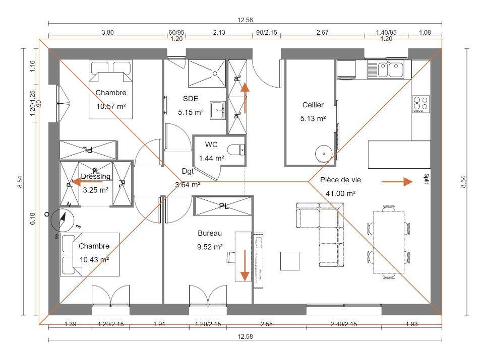
Description
Maison plain pied de 90m2.Profitez d'une grande pièce de vie fonctionnelle et baignée de lumière attenante au cellier/buanderie, un coin nuit avec 2 chambres dont une avec dressing, 1 bureau,1 salle de bain avec grande douche à l'italienne, 1 WC séparé.
Construite selon les normes RE2020, cette maison vous garantit efficacité énergétique, confort thermique et économie d'énergie. Pour votre étude personnalisée, vous pouvez contacter Valérie PUJADE au (Numéro supprimé).
Logement susceptibles de vous intéresser
Nous vous proposons de découvrir aussi cette sélection de logements situés à moins de 10km de Lannemezan et qui seraient susceptibles de vous intéresser.
Lannemezan
TERRAINTerrain arboré et constructible de 2275 m² au calme mais proche de tous les commercesHonoraires à la charge du vendeurVotre agent commercial 3G IMMO sur place EI – Nicole LAFON inscrite au RSAC d’AUCH n° 837 848 134 Selon l’article L.561.5 du Code Monétaire et Financier, pour l’organisation de la visite, la présentation d’une pièce d’identité vous sera demandée.Les informations sur les risques auxquels ce bien est exposé sont disponibles sur le site Géorisques : www.georisques.gouv.frLes informations sur les risques auxquels ce bien est exposé sont disponibles sur le site Géorisques : www.georisques.gouv.fr
Lannemezan
TERRAIN ET MAISONLaissez-vous séduire par cette maison moderne aux lignes élégantes, parfaitement pensée pour offrir confort, fonctionnalité et bien être au quotidien.Cette maison de plein pied de 115m2 propose une distribution optimisée et des volumes généreux pour répondre aux besoins des familles modernes.GRANDES OUVERTURES pour une maison baignée de lumière, alliant confort et efficacité énergétique.Grande Piece de vie ouverte et traversante de 55m2, 2 chambres avec placards intégrés, 1 suite parentale avec salle d’eau privatise et dressing, 1 salle de bain principale et 1 WC séparé.Cellier attenant à la cuisine et au garage, praticité garantie !Double garage de 30m2.UN lieu de vie agréable au quotidien comme pour accueillir vos proches.Pour votre étude personnalisée, vous pouvez contacter directement Valérie PUJADE au (Numéro supprimé).
Lannemezan
TERRAINA découvrir sur Lannemezan, terrain plat de 900m2 situé au fond d’une impasse, dans un quartier résidentiel calme.Proche commerces, écoles, services et accès autoroute. Viabilisation en bordure. Tout à l’égout.Pour plus de renseignements, vous pouvez contacter Valérie PUJADE au (Numéro supprimé).
Lannemezan
TERRAIN ET MAISONBelle maison plain pied de 80m2.Profitez d’une grande pièce de vie fonctionnelle et baignée de lumière, un coin nuit séparé avec 2 chambres équipées de placards, 1 salle de bain avec grande douche à l’italienne, 1 WC séparé. Construite selon les normes RE2020, cette maison vous garantit efficacité énergétique, confort thermique et économie d’énergie. Pour votre étude personnalisée, vous pouvez contacter Valérie PUJADE au (Numéro supprimé).
Lannemezan
TERRAIN ET MAISONMaison plain pied de 90m2.Profitez d’une grande pièce de vie fonctionnelle et baignée de lumière attenante au cellier/buanderie, un coin nuit avec 2 chambres dont une avec dressing, 1 bureau,1 salle de bain avec grande douche à l’italienne, 1 WC séparé. Construite selon les normes RE2020, cette maison vous garantit efficacité énergétique, confort thermique et économie d’énergie. Pour votre étude personnalisée, vous pouvez contacter Valérie PUJADE au (Numéro supprimé).
Lannemezan
TERRAINVENTE d’un terrain de 505 m² à ClarensProche de Tarbes – À vendre à Clarens (65300) : projetez-vous sur ce terrain de 505 m².Proche gares (Lannemezan et Capvern), écoles. Accès autoroute A64 à 8 km. Espagne à 46 km.Il est proposé à l’achat pour 18 000 €. N’hésitez pas à prendre contact avec notre agence (PUJADE Valérie : (Numéro supprimé)) pour toute question sur le terrain ou sur les démarches à suivre. Maisons Bruno Petit GHPA Saint-Gaudens vous accompagne dans tous vos projets immobiliers et à toutes les étapes de l’achat.
Lannemezan
TERRAIN ET MAISONVENTE d’une maison T3 (85 m²) à ClarensProche de Tarbes – À vendre à Clarens (65300) : maison neuve 3 pièces de 85 m² et de 505 m² de terrain. Elle dispose de trois chambres, d’une cuisine et d’une salle de bains.Proche gares (Lannemezan et Capvern), écoles. Autoroute A64 accessible à 8 km. Espagne à 46 km.Cette maison de 3 pièces est à vendre pour la somme de 156 000 €.Contactez notre agence (PUJADE Valérie : (Numéro supprimé)) pour obtenir de plus amples renseignements sur la maison de plain-pied. Donnez vie à vos projets immobiliers avec Maisons Bruno Petit GHPA Lannemezan.
Lannemezan
TERRAIN ET MAISONClarens : maison de 5 pièces (103 m²) en venteProche de Tarbes – À Clarens (65300), maison neuve en vente de 5 pièces, 103 m² et 505 m² de terrain. Son intérieur se divise en quatre chambres, une cuisine et une salle de bains.À proximité : gares (Lannemezan et Capvern), écoles. Accès autoroute A64 à 8 km. Espagne à 46 km.Cette maison de 5 pièces est à vendre pour la somme de 224 000 €.Contactez Valérie PUJADE ((Numéro supprimé)) pour obtenir de plus amples informations sur la maison.
Lannemezan
TERRAIN ET MAISONBelle maison en forme V, pensée pour offrir un style unique, une luminosité exceptionnelle et un confort de vie incomparable.Avec ses 100m2 habitables et son garage de 15m2, cette maison moderne séduit par son architecture élégante et son agencement optimisé. Un ESPACE de VIE d’exception : séjour spacieux et lumineux de + de 53m2, grandes baies vitrées pour une ouverture totale sur l’extérieur, cuisine ouverte conviviale, idéale pour recevoir. ESPACE NUIT avec 3 chambres bien disposé, une salle de bain moderne avec double vasque et douche à l’italienne, 1 WC indépendant. Praticité et confort au quotidien avec un cellier attenant cuisine/garage.Cette maison est idéale pour les familles et amoureux d’espaces ouverts.Pour votre projet personnalisé, vous pouvez contacter directement Valérie PUJADE au (Numéro supprimé).
L’actualité immobilière à Lannemezan
27/11/2023
02/11/2023
30/10/2023
20/10/2023
16/10/2023
16/10/2023