Maison à construire à Monléon-Magnoac (65670)
Images
Description
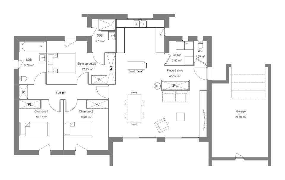
VENTE d'une maison F4 (100 m²) à Monléon-Magnoac
À Monléon-Magnoac (65670), maison neuve en vente de 4 pièces, 100 m² de surface sur 1 830 m² de terrain. Conçue de plain-pied, elle comporte trois chambres, une cuisine et deux salles de bains.
À proximité : écoles, tennis, bureau de poste et épicerie. Accès autoroutes A64 et A645 à 19 km. Espagne à 48 km.
Cette maison de 4 pièces est proposée à l'achat pour 259 000 €.
Prenez contact avec Valérie PUJADE (tél : (Numéro supprimé)) pour plus d'informations sur la maison. Donnez vie à vos projets immobiliers avec Maisons Bruno Petit GHPA Lannemezan.
Logement susceptibles de vous intéresser
Nous vous proposons de découvrir aussi cette sélection de logements situés à moins de 10km de Monléon-Magnoac et qui seraient susceptibles de vous intéresser.
Thermes-Magnoac
TERRAIN ET MAISONVENTE d’une maison F4 (100 m²) à Thermes-MagnoacEn vente à Thermes-Magnoac (65230) : maison neuve 4 pièces de 100 m² et de 6 910 m² de terrain. Son intérieur offre trois chambres, une cuisine et une salle de bains.À proximité : établissements scolaires, tennis, bibliothèques, bassins de natation, boulangeries, commerces, supermarchés, épiceries et boucheries-charcuteries. Marché Place de la Mairie le mercredi matin.Cette maison de 4 pièces est proposée à l’achat pour 226 000 €.Contactez Valérie PUJADE (tél : (Numéro supprimé)) pour tout renseignement sur la maison de plain-pied, sur les démarches à suivre ou sur les modalités de vente.
Thermes-Magnoac
TERRAIN ET MAISONThermes-Magnoac : maison de 3 pièces (85 m²) à vendreMaison neuve 3 pièces à vendre à Thermes-Magnoac (65230) avec une surface de 85 m² et de 6 910 m² de terrain. Conçue de plain-pied, elle est composée de trois chambres, d’une cuisine et d’une salle de bains.À proximité : établissements scolaires, tennis, bibliothèques, bassins de natation, boulangeries, commerces, supermarchés, bureaux de poste et boucheries-charcuteries. Marché Place de la Mairie le mercredi matin.Cette maison de 3 pièces est proposée à l’achat pour 188 000 €.Prenez contact avec notre agence (PUJADE Valérie : (Numéro supprimé)) pour toute question sur la maison, sur les modalités de vente ou sur les démarches à suivre. Maisons Bruno Petit GHPA Lannemezan est là pour vous accompagner dans tous vos projets immobiliers.
Thermes-Magnoac
TERRAIN ET MAISONThermes-Magnoac : maison F5 (103 m²) en venteÀ Thermes-Magnoac (65230), maison neuve en vente de 5 pièces, 103 m² et 6 910 m² de terrain. Elle est composée de quatre chambres, d’une cuisine et d’une salle de bains.Proche établissements scolaires, tennis, bibliothèques, bassins de natation, boulangeries, commerces, supermarchés, boucheries-charcuteries et épiceries. Marché Place de la Mairie le mercredi matin.Le prix de vente de cette maison de 5 pièces est de 256 000 €.Prenez contact avec notre agence (PUJADE Valérie : (Numéro supprimé)) pour plus d’informations sur la maison de plain-pied, sur les modalités de vente ou sur les démarches à suivre. Maisons Bruno Petit GHPA Lannemezan est là pour vous accompagner à toutes les étapes de l’achat.
Thermes-Magnoac
TERRAINVENTE d’un terrain de 6 910 m² à Thermes-MagnoacEn vente à Thermes-Magnoac (65230) : concrétisez votre projet sur ce terrain de 6 910 m².À dix minutes : établissements scolaires, tennis, bibliothèques, bassins de natation, boulangeries, commerces, supermarchés, épiceries et boucheries-charcuteries. Marché Place de la Mairie le mercredi matin.Il est proposé à l’achat pour 40 000 €. Contactez Valérie PUJADE (tél : (Numéro supprimé)) pour plus d’informations sur le terrain. Maisons Bruno Petit GHPA Saint-Gaudens vous accompagne à toutes les étapes de l’achat et dans toutes vos démarches.
Thermes-Magnoac
TERRAIN ET MAISONThermes-Magnoac : maison de 5 pièces (115 m²) à vendreMaison neuve 5 pièces en vente à Thermes-Magnoac (65230) avec une surface de 115 m² et de 6 910 m² de terrain. Conçue de plain-pied, elle se divise en quatre chambres, une cuisine et deux salles de bains.À proximité : établissements scolaires, tennis, bibliothèques, bassins de natation, boulangeries, commerces, supermarchés, épiceries et boucheries-charcuteries. Marché Place de la Mairie le mercredi matin.Cette maison de 5 pièces est à vendre pour la somme de 242 000 €.Contactez Valérie PUJADE (tél : (Numéro supprimé)) pour toute information sur la maison, sur les démarches à suivre ou sur les modalités de vente.
Monléon-Magnoac
TERRAIN ET MAISONVENTE d’une maison de 3 pièces (75 m²) à Monléon-MagnoacÀ découvrir à Monléon-Magnoac (65670) : maison neuve 3 pièces à vendre, 75 m² sur 1 830 m² de terrain. Son intérieur propose trois chambres, une cuisine et une salle de bains.À proximité : écoles, tennis, épicerie et bureau de poste. Accès autoroutes A64 et A645 à 19 km. Espagne à 48 km.Cette maison de 3 pièces est proposée à l’achat pour 172 000 €.Contactez notre agence (PUJADE Valérie : (Numéro supprimé)) pour plus de renseignements sur la maison ou sur les modalités de vente.
Monléon-Magnoac
TERRAIN ET MAISONVENTE d’une maison F4 (100 m²) à Monléon-MagnoacÀ Monléon-Magnoac (65670), maison neuve en vente de 4 pièces, 100 m² de surface sur 1 830 m² de terrain. Conçue de plain-pied, elle comporte trois chambres, une cuisine et deux salles de bains.À proximité : écoles, tennis, bureau de poste et épicerie. Accès autoroutes A64 et A645 à 19 km. Espagne à 48 km.Cette maison de 4 pièces est proposée à l’achat pour 259 000 €.Prenez contact avec Valérie PUJADE (tél : (Numéro supprimé)) pour plus d’informations sur la maison. Donnez vie à vos projets immobiliers avec Maisons Bruno Petit GHPA Lannemezan.
Monléon-Magnoac
TERRAIN ET MAISONMaison F5 (103 m²) en vente à Monléon-MagnoacÀ Monléon-Magnoac (65670), maison neuve à vendre de 5 pièces, 103 m² et 1 830 m² de terrain. Elle est composée de quatre chambres, d’une cuisine et d’une salle de bains.Proche écoles, tennis, bureau de poste et épicerie. Accès autoroutes A64 et A645 à 19 km. Espagne à 48 km.Le prix de vente de cette maison de 5 pièces est de 240 000 €.Contactez Valérie PUJADE (tél : (Numéro supprimé)) pour toute question sur la maison ou sur les démarches à suivre. Maisons Bruno Petit GHPA Lannemezan vous accompagne à toutes les étapes de l’achat et dans tous vos projets immobiliers.
Monléon-Magnoac
TERRAIN ET MAISONMonléon-Magnoac : maison F4 (100 m²) en venteÀ découvrir à Monléon-Magnoac (65670) : maison neuve 4 pièces à vendre, 100 m² et 1 830 m² de terrain. Conçue de plain-pied, elle inclut trois chambres, une cuisine et une salle de bains.Proche écoles, tennis, bureau de poste et épicerie. Autoroutes A64 et A645 accessibles à 19 km. Espagne à 48 km.Cette maison de 4 pièces est proposée à l’achat pour 210 000 €.N’hésitez pas à prendre contact avec notre agence (PUJADE Valérie : (Numéro supprimé)) pour toute question sur la maison.
L’actualité immobilière à Monléon-Magnoac
27/11/2023
02/11/2023
30/10/2023
20/10/2023
16/10/2023
16/10/2023