Maison à construire à Siradan (65370)
Images
Description
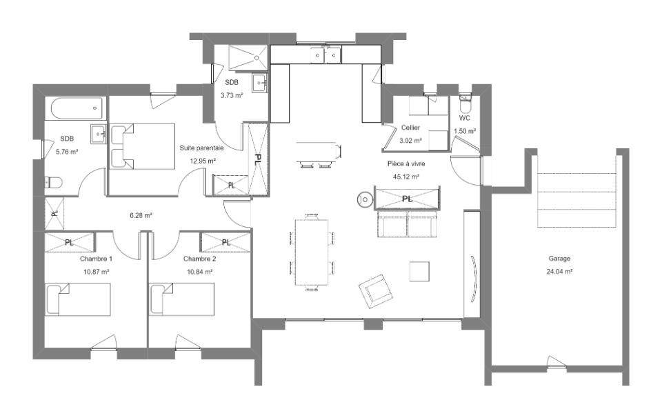
Maison F4 (100 m²) à vendre à Siradan
À Siradan (65370), maison neuve à vendre de 4 pièces, 100 m² sur 2 081 m² de terrain. Elle propose trois chambres, une cuisine et deux salles de bains.
À proximité : écoles, crèche. Autoroutes A64 et A645 accessibles à 15 km. Espagne à 16 km.
Cette maison de 4 pièces est à vendre pour la somme de 254 000 €.
Contactez notre agence (PUJADE Valérie : (Numéro supprimé)) pour obtenir de plus amples renseignements sur la maison. Maisons Bruno Petit GHPA Lannemezan vous accompagne dans tous vos projets immobiliers et dans toutes vos démarches.
Logement susceptibles de vous intéresser
Nous vous proposons de découvrir aussi cette sélection de logements situés à moins de 10km de Siradan et qui seraient susceptibles de vous intéresser.
Siradan
TERRAIN ET MAISONVENTE : maison de 4 pièces (100 m²) à SiradanÀ Siradan (65370), maison neuve à vendre de 4 pièces, 100 m² et 2 081 m² de terrain. Conçue de plain-pied, elle se divise en trois chambres, une cuisine et une salle de bains.Proche écoles, crèche. Accès autoroutes A64 et A645 à 15 km. Espagne à 16 km.Cette maison de 4 pièces est à vendre pour la somme de 204 000 €.N’hésitez pas à prendre contact avec notre agence (PUJADE Valérie : (Numéro supprimé)) pour plus de renseignements sur la maison ou sur les modalités de vente.
Siradan
TERRAIN ET MAISONMaison F4 (100 m²) à vendre à SiradanÀ Siradan (65370), maison neuve à vendre de 4 pièces, 100 m² sur 2 081 m² de terrain. Elle propose trois chambres, une cuisine et deux salles de bains.À proximité : écoles, crèche. Autoroutes A64 et A645 accessibles à 15 km. Espagne à 16 km.Cette maison de 4 pièces est à vendre pour la somme de 254 000 €.Contactez notre agence (PUJADE Valérie : (Numéro supprimé)) pour obtenir de plus amples renseignements sur la maison. Maisons Bruno Petit GHPA Lannemezan vous accompagne dans tous vos projets immobiliers et dans toutes vos démarches.
Siradan
TERRAIN ET MAISONVENTE : maison T5 (115 m²) à SiradanÀ découvrir à Siradan (65370) : maison neuve 5 pièces à vendre, 115 m² de surface et 2 081 m² de terrain. Conçue de plain-pied, elle dispose de quatre chambres, d’une cuisine et de deux salles de bains.À proximité : écoles, crèche. Autoroutes A64 et A645 accessibles à 15 km. Espagne à 16 km.Le prix de vente de cette maison de 5 pièces est de 221 000 €.Contactez Valérie PUJADE ((Numéro supprimé)) pour toute question sur la maison. Maisons Bruno Petit GHPA Lannemezan vous accompagne dans tous vos projets immobiliers et dans toutes vos démarches.
Siradan
TERRAINTerrain de 2 081 m² à vendre à SiradanProjetez-vous sur ce terrain de 2 081 m² en vente à Siradan (65370).À dix minutes : écoles, crèche. Autoroutes A64 et A645 à 15 km. Espagne à 16 km.Il est à vendre pour la somme de 29 000 €. N’hésitez pas à prendre contact avec notre agence (PUJADE Valérie : (Numéro supprimé)) pour tout renseignement sur le terrain, sur les modalités de vente et sur les démarches à suivre. Maisons Bruno Petit GHPA Saint-Gaudens est là pour vous accompagner à toutes les étapes de votre projet.
Siradan
TERRAIN ET MAISONMaison T4 (90 m²) en vente à SiradanEn vente à Siradan (65370) : maison neuve 4 pièces de 90 m² sur un terrain de 2 081 m². Son intérieur est composé de trois chambres, d’une cuisine et d’une salle de bains.À proximité : écoles, crèche. Accès autoroutes A64 et A645 à 15 km. Espagne à 16 km.Cette maison de 4 pièces est proposée à l’achat pour 192 000 €.N’hésitez pas à prendre contact avec notre agence (Valérie PUJADE : (Numéro supprimé)) pour tout renseignement sur la maison ou sur les modalités de vente. Maisons Bruno Petit GHPA Lannemezan est là pour vous accompagner dans tous vos projets immobiliers.
Troubat
TERRAIN10 minutes de loures barousse, dans un petit village classé bâtiment de France au pied de la montagne , située à 560 m d altitude , idéal pour randonnées ou pour la pratique de l escalade , ou de la pèche , joli terrain plat , de 1619 m² , si vous aimez la nature ce terrain est fait pour vous . pour plus de renseignements me contacter au (Numéro supprimé) . 20000€ net vendeur 25000€ frais d agence inclus . —
Troubat
TERRAINA 10 minutes de loures barousse, dans un petit village classé bâtiment de France au pied de la montagne , située à 560 m d altitude , idéal pour randonnées ou pour la pratique de l escalade , ou de la pèche , joli terrain plat , de 1927 m² , si vous aimez la nature ce terrain est fait pour vous . pour plus de renseignements me contacter au (Numéro supprimé) . 25000€ net vendeur 30000€ frais d agence inclus . —
L’actualité immobilière à Siradan
27/11/2023
02/11/2023
30/10/2023
20/10/2023
16/10/2023
16/10/2023