Maison à construire à Antony (92160)
Images
Description
VENTE : maison Neuve à très basse consommation de type T5 (120 m²) + garage à Antony
IDÉALEMENT SITUÉE - MAISON 5 PIÈCES NEUVE
A deux pas de la future ligne 18 et du RER B (10 min de Paris) à Antony (92160), terrain de 457 m² Viabilisé avec une Façade de 10 ml env.
Ce terrain sans vis à vis avec vue sur des jardins, arbres fruitiers à conserver
L'orientation est idéale : Façade sur rue EST / jardin à l'arrière OUEST
Dans un quartier prisé, le terrain est idéalement situé, proche des commerces, des écoles, crèche, et de toutes les futures infrastructures d'ANTONYPOLE. Des écoles du primaire et du secondaire sont implantées à moins de 10 minutes à pied, tout comme huit structures d'accueil pour la petite enfance. Niveau transports, on trouve la ligne de RER B (Antony) ET PROCHAINNEMENT LA LIGNE 18 à proximité. Il y a une bibliothèque, un bassin de natation, des commerces, des boulangeries, trois supermarchés, des boucheries charcuteries et un bureau de poste à quelques minutes.
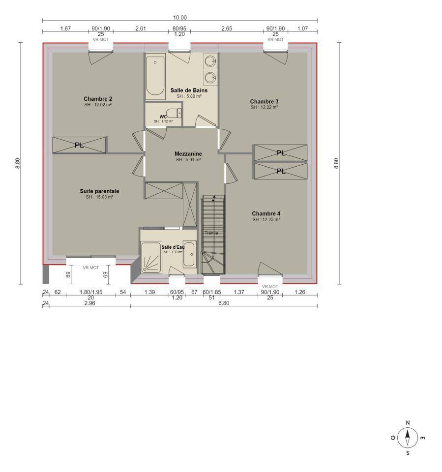
C'est une maison de 2 niveaux. Elle comporte quatre chambres, une pièce de vie de + de 50 m², deux salles de bains, cellier garage.
Son prix de vente est de 718 211 €. ( hors frais de notaire prévoir environ 33000) et hors décorations et aménagements
Contactez Jean Jacques au (Numéro supprimé) ou au (Numéro supprimé) pour plus de renseignements sur la maison ou sur les démarches à suivre.
Maisons Balency La Ville-du-Bois est là pour vous accompagner dans tous vos projets immobiliers.
Logement susceptibles de vous intéresser
Nous vous proposons de découvrir aussi cette sélection de logements situés à moins de 10km de Antony et qui seraient susceptibles de vous intéresser.
Châtenay-Malabry
TERRAINVENTE : terrain de 355 m² à Châtenay-MalabryParis à 15 min (RER B, Robinson) – Bénéficiant d’un emplacement d’exception dans Châtenay-Malabry (92290), en vente : réalisez votre projet sur ce terrain de 355 m².À proximité : RER (lignes B et C), gares, établissements scolaires, bibliothèque, tennis, commerces, boulangeries, supermarchés, poissonneries et bureau de poste.Son prix de vente est de 555 000 €. Contactez Steeve KANOR (tél : (Numéro supprimé)) pour toute question sur le terrain, sur les démarches à suivre ou sur les modalités de vente. Maisons Evolution Tigery vous accompagne dans tous vos projets immobiliers et à toutes les étapes de votre projet.Annonce proposée par un Agent Commercial Partenaire.
Châtenay-Malabry
TERRAIN ET MAISONChâtenay-Malabry : maison de 4 pièces (110 m²) à vendreParis à 15 min (RER B, Robinson) – À découvrir bénéficiant d’un emplacement privilégié dans Châtenay-Malabry (92290) : maison neuve 4 pièces en vente. 2 niveaux, surface de 110 m² sur 355 m² de terrain. Son intérieur comporte quatre chambres, une cuisine et deux salles de bains.À proximité : RER (lignes B et C), gares, établissements scolaires, bibliothèque, tennis, commerces, boulangeries, supermarchés, bureau de poste et boucheries-charcuteries.Le prix de vente de cette maison de 4 pièces est de 845 900 €.Contactez Steeve KANOR (tél : (Numéro supprimé)) pour tout renseignement sur la maison. Maisons Evolution Tigery est là pour vous accompagner dans tous vos projets immobiliers.Annonce proposée par un Agent Commercial Partenaire.
Antony
TERRAINSecteur très recherche; situé à 10 ' du marchéPrix : 525000 €.Sur ce terrain de 357 m² à ANTONY, Maisons Clairval vous propose de réaliser votre projet de construction de maison individuelle.Maisons Clairval propose de construire votre maison neuve avec toutes les prestations suivantes :- Plan sur-mesure et personnalisé de 2 à 6 chambres- Mode de chauffage au choix- Grands choix d'équipements et de prestations- Matériaux de qualité selon les normes en vigueur- Accompagnement dans le choix et l’acquisition du terrain- Construction conforme à la nouvelle RE 2020Demandez une étude gratuite et personnalisée de votre projet de construction sur ce terrain !Contactez Nicolas REBOUL au (Numéro supprimé) ou au (Numéro supprimé) (Maisons Clairval – Agence de Villemoisson).Prix hors frais de notaire. Terrain sélectionné et vu pour vous sous réserve de disponibilité et au prix indiqué par notre partenaire foncier. Conditions et visuels non contractuels.Cette annonce a été créée et diffusée avec le logiciel VITAHOME.
Athis-Mons
TERRAINSecteur calme et recherché à proximité du RER C.Rare sur le secteur.Prix : 227000 €.Sur ce terrain de 460 m² à ATHIS-MONS, Maisons Clairval vous propose de réaliser votre projet de construction de maison individuelle.Maisons Clairval propose de construire votre maison neuve avec toutes les prestations suivantes :- Plan sur-mesure et personnalisé de 2 à 6 chambres- Mode de chauffage au choix- Grands choix d'équipements et de prestations- Matériaux de qualité selon les normes en vigueur- Accompagnement dans le choix et l’acquisition du terrain- Construction conforme à la nouvelle RE 2020Demandez une étude gratuite et personnalisée de votre projet de construction sur ce terrain !Contactez Nicolas REBOUL au (Numéro supprimé) ou au (Numéro supprimé) (Maisons Clairval – Agence de Villemoisson).Prix hors frais de notaire. Terrain sélectionné et vu pour vous sous réserve de disponibilité et au prix indiqué par notre partenaire foncier. Conditions et visuels non contractuels.Cette annonce a été créée et diffusée avec le logiciel VITAHOME.
Ballainvilliers
TERRAINPrix : 220000 €.Sur ce terrain de 467 m² à BALLAINVILLIERS, Maisons Clairval vous propose de réaliser votre projet de construction de maison individuelle.Maisons Clairval propose de construire votre maison neuve avec toutes les prestations suivantes :- Plan sur-mesure et personnalisé de 2 à 6 chambres- Mode de chauffage au choix- Grands choix d'équipements et de prestations- Matériaux de qualité selon les normes en vigueur- Accompagnement dans le choix et l’acquisition du terrain- Construction conforme à la nouvelle RE 2020Demandez une étude gratuite et personnalisée de votre projet de construction sur ce terrain !Contactez Nicolas REBOUL au (Numéro supprimé) ou au (Numéro supprimé) (Maisons Clairval – Agence de Villemoisson).Prix hors frais de notaire. Terrain sélectionné et vu pour vous sous réserve de disponibilité et au prix indiqué par notre partenaire foncier. Conditions et visuels non contractuels.Cette annonce a été créée et diffusée avec le logiciel VITAHOME.
Bièvres
TERRAINEn plein centre ville de Bièvres avec commerces, écoles et RER à piedEmprise au sol d'environ 100 m² sur R+1+comblesPrix : 440000 €.Sur ce terrain de 281 m² à BIEVRES, Maisons Clairval vous propose de réaliser votre projet de construction de maison individuelle.Maisons Clairval propose de construire votre maison neuve avec toutes les prestations suivantes :- Plan sur-mesure et personnalisé de 2 à 6 chambres- Mode de chauffage au choix- Grands choix d'équipements et de prestations- Matériaux de qualité selon les normes en vigueur- Accompagnement dans le choix et l’acquisition du terrain- Construction conforme à la nouvelle RE 2020Demandez une étude gratuite et personnalisée de votre projet de construction sur ce terrain !Contactez Nicolas REBOUL au (Numéro supprimé) ou au (Numéro supprimé) (Maisons Clairval – Agence de Villemoisson).Prix hors frais de notaire. Terrain sélectionné et vu pour vous sous réserve de disponibilité et au prix indiqué par notre partenaire foncier. Conditions et visuels non contractuels.Cette annonce a été créée et diffusée avec le logiciel VITAHOME.
Châtenay-Malabry
TERRAINquartier pavillonnaire paisible et verdoyant.Le tramway T10 et le Parc de la Vallée aux Loups sont accessibles à pied en quelques minutes.Prix : 649000 €.Sur ce terrain de 667 m² à CHATENAY-MALABRY, Maisons Clairval vous propose de réaliser votre projet de construction de maison individuelle.Maisons Clairval propose de construire votre maison neuve avec toutes les prestations suivantes :- Plan sur-mesure et personnalisé de 2 à 6 chambres- Mode de chauffage au choix- Grands choix d'équipements et de prestations- Matériaux de qualité selon les normes en vigueur- Accompagnement dans le choix et l’acquisition du terrain- Construction conforme à la nouvelle RE 2020Demandez une étude gratuite et personnalisée de votre projet de construction sur ce terrain !Contactez Nicolas REBOUL au (Numéro supprimé) ou au (Numéro supprimé) (Maisons Clairval – Agence de Villemoisson).Prix hors frais de notaire. Terrain sélectionné et vu pour vous sous réserve de disponibilité et au prix indiqué par notre partenaire foncier. Conditions et visuels non contractuels.Cette annonce a été créée et diffusée avec le logiciel VITAHOME.
Ivry-sur-Seine
TERRAINterrain large de 10mrare dans le secteurPrix : 450000 €.Sur ce terrain de 389 m² à IVRY-SUR-SEINE, Maisons Clairval vous propose de réaliser votre projet de construction de maison individuelle.Maisons Clairval propose de construire votre maison neuve avec toutes les prestations suivantes :- Plan sur-mesure et personnalisé de 2 à 6 chambres- Mode de chauffage au choix- Grands choix d'équipements et de prestations- Matériaux de qualité selon les normes en vigueur- Accompagnement dans le choix et l’acquisition du terrain- Construction conforme à la nouvelle RE 2020Demandez une étude gratuite et personnalisée de votre projet de construction sur ce terrain !Contactez Nicolas REBOUL au (Numéro supprimé) ou au (Numéro supprimé) (Maisons Clairval – Agence de Villemoisson).Prix hors frais de notaire. Terrain sélectionné et vu pour vous sous réserve de disponibilité et au prix indiqué par notre partenaire foncier. Conditions et visuels non contractuels.Cette annonce a été créée et diffusée avec le logiciel VITAHOME.
Longjumeau
TERRAINSitué au calme dans une impasse à proximité de la gare de du centre ville de Longjumeau.Prix : 220000 €.Sur ce terrain de 339 m² à LONGJUMEAU, Maisons Clairval vous propose de réaliser votre projet de construction de maison individuelle.Maisons Clairval propose de construire votre maison neuve avec toutes les prestations suivantes :- Plan sur-mesure et personnalisé de 2 à 6 chambres- Mode de chauffage au choix- Grands choix d'équipements et de prestations- Matériaux de qualité selon les normes en vigueur- Accompagnement dans le choix et l’acquisition du terrain- Construction conforme à la nouvelle RE 2020Demandez une étude gratuite et personnalisée de votre projet de construction sur ce terrain !Contactez Nicolas REBOUL au (Numéro supprimé) ou au (Numéro supprimé) (Maisons Clairval – Agence de Villemoisson).Prix hors frais de notaire. Terrain sélectionné et vu pour vous sous réserve de disponibilité et au prix indiqué par notre partenaire foncier. Conditions et visuels non contractuels.Cette annonce a été créée et diffusée avec le logiciel VITAHOME.
L’actualité immobilière à Antony
27/11/2023
02/11/2023
30/10/2023
20/10/2023
16/10/2023
16/10/2023