Terrain à vendre

Maison à construire à Antony (92160)

659411 €
110 m²
Antony
Hauts-de-Seine (92)
TERRAIN ET MAISON
Réf externe: 3522813
Annonce publiée le 5 novembre 2025

Images

Description

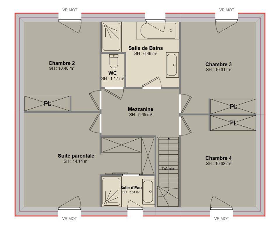
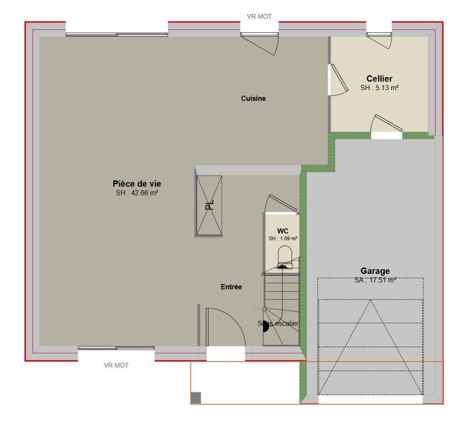
VENTE : maison de 5 pièces (110 m² + Garage ) 4 chambres dont 1 suite parentale à Antony
IDÉALEMENT SITUÉE - MAISON 5 PIÈCES NEUVE
Proche du RER B (10 min de Paris) et a 2 pas de la future ligne 18 dans le quartier d'Antonypole, nous vous présentons en vente, idéalement située dans Antony (92160), cette maison de 5 pièces de 110 m² + GARAGE, 4 chambres dont une suite parentale.
Cette maison compte 2 niveaux. Elle propose quatre chambres, une cuisine et deux salles de bains. La maison est neuve.
Le terrain du bien s'étend sur 457 m².
La construction sera réalisée sur une limite, permettant un passage sur le coté, le terrain n'a pas de vis a vis
Cette maison se trouve dans un quartier attractif (Antonypole) Il y a des écoles de tous niveaux (de la maternelle au lycée) à moins de 10 minutes à pied, tout comme huit structures d'accueil pour la petite enfance. Côté transports, on trouve la ligne de RER B (Antony) à quelques pas du bien. Il y a une bibliothèque, un bassin de natation, des commerces, des boulangeries, trois supermarchés, des boucheries-charcuteries et une poissonnerie à proximité.
Elle est à vendre pour la somme de 659 411 €. hors frais de notaire ( prévoir 35000 € env)
N'hésitez pas à prendre contact avec notre agence (Jean Jacques PROCUREUR : (Numéro supprimé)) pour obtenir de plus amples renseignements sur la maison et sur les modalités de vente.

CONTACTER

Logement susceptibles de vous intéresser

L’actualité immobilière à Antony

Image du post Pourquoi acheter un terrain en lotissement ? 27/11/2023
Lire l’article
Pourquoi acheter un terrain en lotissement ?
Image du post Vendre son terrain à un promoteur : comment procéder ? 02/11/2023
Lire l’article
Vendre son terrain à un promoteur : comment procéder ?
Image du post Diviser le terrain de sa maison pour le vendre : pourquoi et comment ? 30/10/2023
Lire l’article
Diviser le terrain de sa maison pour le vendre : pourquoi et comment ?
Image du post Acheter un terrain viabilisé : quels avantages ? 20/10/2023
Lire l’article
Acheter un terrain viabilisé : quels avantages ?
Image du post Les 7 étapes incontournables pour bien vendre votre terrain constructible 16/10/2023
Lire l’article
Les 7 étapes incontournables pour bien vendre votre terrain constructible
Image du post 5 points clés à vérifier pour l’achat d’un terrain constructible  16/10/2023
Lire l’article
5 points clés à vérifier pour l’achat d’un terrain constructible