Maison à construire à Antony (92160)
Images
Description
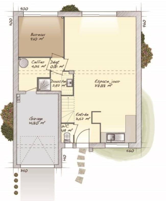
Maison de 6 pièces (128 m²) à vendre à Antony
MAISON 6 PIÈCES NEUVE
À quelques minutes du RER B (10 min de Paris), en vente à Antony (92160), ayez le coup de coeur pour cette maison de 6 pièces de 128 m². Son intérieur dispose de quatre chambres, d'une cuisine et de deux salles de bains.
Le terrain de la maison s'étend sur 465 m².
Cette maison comporte 2 niveaux. Elle est neuve.
Des établissements scolaires du primaire et du secondaire sont implantés à moins de 10 minutes à pied, tout comme huit structures d'accueil pour la petite enfance. Côté transports en commun, on trouve la ligne de RER B (Antony) juste à côté. Il y a une bibliothèque, un bassin de natation, des commerces, des boulangeries, trois supermarchés, une poissonnerie et des boucheries-charcuteries à quelques minutes.
Son prix de vente est de 759 000 €.
N'hésitez pas à prendre contact avec Christophe MONTANIER ((Numéro supprimé)) pour toute information sur cette maison, sur les modalités de vente ou sur les démarches à suivre. Maisons Balency Saint-Maur-des-Fossés vous accompagne dans tous vos projets immobiliers et à toutes les étapes de votre projet.
Annonce proposée par un Agent Commercial Partenaire.
Logement susceptibles de vous intéresser
Nous vous proposons de découvrir aussi cette sélection de logements situés à moins de 10km de Antony et qui seraient susceptibles de vous intéresser.
Épinay-sur-Orge
TERRAINTerrain à Bâtir de 315 m² env à vendre à Épinay-sur-OrgePROCHE GARE – SANS VIS-À-VIS, Facade environ 13 ml, À Épinay-sur-Orge (91360) au pied du RER C (15 min de Paris), donnez vie à la maison de vos rêves sur ce terrain de 315 m²env. Ce terrain, avec une exposition est/Ouest, profite d’une vue sans vis-à-vis. Non loin de la gare, dans le centre ville, ce terrain est proche des écoles et des commerces. Il y a cinq établissements scolaires à moins de 10 minutes à pied. Niveau transports, on trouve la ligne de RER C (Épinay-Sur-Orge) Et le tram T12 à pied. Il y a une bibliothèque, deux tennis, quatre boulangeries, des commerces, un supermarché, des boucheries charcuteries et un bureau de poste dans les environs.Ce terrain est proposé à l’achat pour 192 000 €. N’hésitez pas à prendre contact avec notre agence Maisons Balency Domexpo sud de la ville du Bois (Jean Jacques PROCUREUR : (Numéro supprimé) ou (Numéro supprimé) pour tout renseignement sur le terrain.A découvrir sans plus tarder !
Vitry-sur-Seine
TERRAINEXCLUSIVITÉ – 94440 – VITRY-SUR-SEINE – TERRAIN CONSTRUCTIBLE – FAÇADE 10 M – ORIENTATION EST / OUEST – TRAMWAY T9 – FUTUR MÉTRO L15 SUDEffiCity, l’agence qui estime votre bien en ligne, et Irena Novakovic vous proposent, dans un quartier calme et pavillonnaire recherché de Vitry-sur-Seine, à seulement 650 mètres du tramway T9 « Mairie de Vitry » et du futur métro ligne 15 Sud, un terrain constructible de 295 m² disposant d’une façade d’environ 10 mètres et d’une orientation Est / Ouest, idéale pour optimiser la luminosité naturelle tout au long de la journée.De forme rectangulaire, ce terrain permet la construction d’une maison individuelle avec jardin et stationnement, bénéficiant d’un ensoleillement traversant. INFORMATIONS URBANISTIQUES CLÉS :Zone : UCEmprise au sol maximale : 58 m²Construction possible : R+1 + comblesHauteur maximale : 10 mètresIdéal pour maison familiale avec étages et combles aménagésCe terrain offre un cadre de vie recherché :quartier pavillonnaire calmeproximité des transportsécoles et commerces accessibles rapidementsecteur en pleine valorisation grâce au projet du Grand ParisBien rare sur le secteur, parfaitement adapté à un projet de résidence principale ou patrimonial. Contactez-moi pour étudier votre projet et programmer une visite. Les informations sur les risques auxquels ce bien est exposé sont disponibles sur le site Georisque : georisques. gouv. fr Irena Novakovic – EI – est Agent Commercial mandataire en immobilier, immatriculé au Registre Spécial des Agents Commerciaux du Tribunal de Commerce de Créteil sous le n(Numéro supprimé).Siège social du mandant : effiCity, 48 avenue de Villiers – 75017 PARIS – Société par Actions Simplifiée, société au capital de 132 373,05 euros, immatriculée au RCS Paris 497 617 746 et titulaire de la Carte professionnelle CPI 7501 2015 000 002 025 – CCI Paris IDF – Caisse de Garantie : GALIAN Assurances 89 rue de la Boétie 75008 Paris
Savigny-sur-Orge
TERRAINVENTE d’un terrain de 300 m² à Savigny-sur-OrgeÀ Savigny-sur-Orge (91600) à 600 m du RER C (15 min de Paris), projetez la maison de vos rêves sur ce terrain de 300 m². Il bénéficie d’une exposition sud-ouest. Le terrain est proche des commerces et des écoles. Il y a des établissements scolaires (de la maternelle au lycée) à moins de 10 minutes à pied. Niveau transports en commun, on trouve la station de RER Savigny-Sur-Orge (ligne C) ainsi que la gare Savigny-sur-Orge à proximité. Il y a une bibliothèque, des boulangeries, des commerces, trois supermarchés, une supérette et des épiceries dans les environs.Ce terrain est proposé à l’achat pour 200 000 €. Contactez notre agence (BOUSELSELA Yassine : (Numéro supprimé)) pour toute question sur le terrain, sur les démarches à suivre ou sur les modalités de vente. Maisons France Confort Limay vous accompagne dans tous vos projets immobiliers et à toutes les étapes de votre projet.
Épinay-sur-Orge
TERRAIN ET MAISONVENTE d’une maison de 5 pièces (109 m²) à Épinay-sur-OrgePROCHE GARE – MAISON 5 PIÈCES NEUVEÀ 740 m du RER C (15 min de Paris), Maisons Balency La Ville-du-Bois vous propose en vente, dans Épinay-sur-Orge (91360), proche de la gare, cette maison de 5 pièces de 109 m² + garage et de 315 m² de terrain env. Elle dispose de quatre chambres, d’une pièce de vie, une salles de bains, ou deux en option si suite parentale, un cellier et un Garage.Cette maison comporte 2 niveaux. Elle est neuve RE2020 Toute dernière Génération.Il y a cinq établissements scolaires à moins de 10 minutes à pied. Niveau transports, on trouve la ligne de RER C et TRAM T12 (Épinay-Sur-Orge) ainsi que les gares Épinay-sur-Orge et Petit Vaux à quelques pas du bien. On trouve une bibliothèque, deux tennis, quatre boulangeries, des commerces, un supermarché, des boucheries-charcuteries et un bureau de poste à proximité de la maison.Elle est proposée à l’achat pour 405 960 €. ( hors frais de notaire prévoir env 16500€) hors décoration et aménagementsMaison à très basse consommation, Réalisation en brique de terre cuite, isolation intérieure renforcée bio ressourcée, pompe à chaleur, domotique… toutes assurances comprises » dommage ouvrage »…, Frais d’architecte inclusContactez votre conseiller Jean Jacques des maisons BALENCY agence de la ville du bois au (Numéro supprimé) ou au (Numéro supprimé)(Réalisation sur Mesure exclusive des Maisons Balency agence de La ville du Bois Domexpo Sud )
Orsay
TERRAIN ET MAISONVENTE : maison Neuve 4 chambre +Garage (110 m² + Garage) à 9 min en voiture de la gare du Guichet à Orsay siyué sur la commune de NozayParis à 20 min (RER B Orsay ou C, Sainte-Geneviève-des-Bois) – À découvrir bénéficiant d’un emplacement privilégié dans Nozay (91620) À dix minutes : RER (lignes C et B), gares, établissements scolaires, bibliothèque, tennis, commerces, boulangeries, boucherie-charcuterie et bureau de posteCoté maison :Cette réalisation à très basse consommation est réalisée en brique de terre cuite, isolation intérieure renforcée bio ressourcée, pompe à chaleur, Plancher chauffant, Menuiseries en aluminium, domotique… toutes assurances comprises » dommage ouvrage » frais d’architectes inclus …, Elle est à vendre pour la somme de 459 211 €. hors frais de notaire ( prévoir env 18000€), hors frais annexes et décoration Prenez contact avec Jean Jacques PROCUREUR ((Numéro supprimé)) ou (Numéro supprimé) Maisons Balency Domexpo sud de la Ville du Bois pour tout renseignement sur le terrain et sur les modalités de vente.
Villejuif
TERRAINÀ vendre – Terrain à bâtir de 139 m² – 200 000 € – VILLEJUIF (94800)Rare sur le secteur : découvrez ce terrain à bâtir de 139 m², situé sur la commune très recherchée de Villejuif, en lot avant, idéal pour un projet de construction personnalisée dans un environnement urbain dynamique et parfaitement desservi.Villejuif offre un cadre de vie exceptionnel à proximité immédiate de Paris, avec :Des transports en commun performants (Métro L7, L14, Tram T7, Bus)Des écoles, collèges et lycées accessibles facilementDe nombreux commerces, services, équipements sportifs et culturelsUn accès rapide aux grands axes pour simplifier tous les déplacementsLes viabilités se trouvent sur rue. Le terrain est vendu non viabilisé, vous permettant de maîtriser et adapter votre projet selon vos besoins.Prix : 200 000 €Pour plus d’informations ou pour avancer sur votre projet, contactez Maisons Balency – Groupe Hexaôm, Agence d’Ormoy, leader français de la construction depuis plus de 100 ans.Agence d’Ormoy – (Numéro supprimé)Annonce proposée par un Agent Commercial Partenaire.
Savigny-sur-Orge
TERRAIN ET MAISONVENTE d’une maison T4 (85 m²) à Savigny-sur-OrgeEMPLACEMENT PRIVILÉGIÉ – VUE SANS VIS-À-VISEn vente : à deux pas du RER C (15 min de Paris), bénéficiant d’un emplacement privilégié dans Savigny-sur-Orge (91600), nous sommes ravis de vous présenter cette maison de 4 pièces de 85 m² sans vis-à-vis. Conçue de plain-pied, elle compte trois chambres, une cuisine et une salle de bains.Le terrain de cette maison de plain-pied s’étend sur 300 m².La maison est neuve.Cette maison est située dans un secteur convoité. Des écoles de tous niveaux (de la maternelle au lycée) se trouvent à moins de 10 minutes à pied. Niveau transports en commun, il y a la station de RER Savigny-Sur-Orge (ligne C) ainsi que la gare Savigny-sur-Orge dans un rayon de 1 km. On trouve une bibliothèque, des boulangeries, des commerces, trois supermarchés, une supérette et des épiceries dans les environs.Elle est proposée à l’achat pour 348 000 €.N’hésitez pas à prendre contact avec notre agence (BOUSELSELA Yassine : (Numéro supprimé)) pour tout renseignement sur la maison ou sur les démarches à suivre. Maisons France Confort Limay est là pour vous accompagner dans tous vos projets immobiliers.
Savigny-sur-Orge
TERRAIN ET MAISONVENTE d’une maison T6 (91 m²) à Savigny-sur-OrgeIDÉALEMENT SITUÉE – MAISON 6 PIÈCES NEUVEEn vente : à côté du RER C (15 min de Paris), idéalement située dans Savigny-sur-Orge (91600), Maisons France Confort Limay vous présente cette maison de 6 pièces de 91 m² et de 300 m² de terrain sans vis-à-vis. Elle est composée de quatre chambres, d’une cuisine et d’une salle de bains.C’est une maison de 2 niveaux. Elle est neuve.La maison se situe dans un secteur prisé. Il y a des écoles de tous niveaux (de la maternelle au lycée) à moins de 10 minutes à pied. Niveau transports, on trouve la station de RER Savigny-Sur-Orge (ligne C) ainsi que la gare Savigny-sur-Orge à proximité. Il y a une bibliothèque, des boulangeries, des commerces, trois supermarchés, des épiceries et un bureau de poste à quelques minutes à peine.Elle est proposée à l’achat pour 385 000 €.N’hésitez pas à prendre contact avec notre agence (BOUSELSELA Yassine : (Numéro supprimé)) pour tout renseignement sur la maison.
Épinay-sur-Orge
TERRAIN ET MAISONMaison de pièces (110 m²) à vendre à Épinay-sur-OrgePROCHE GARE RER e TRAM T12- MAISON 5 PIÈCES NEUVE En vente : à deux pas du RER C (15 min de Paris), laissez vous charmer par, dans Épinay-sur-Orge (91360), proche de la gare, cette maison de 4 pièces de 110 m² et de 315 m² de terrain. Son intérieur est composé de quatre chambres dont une suite parentale en RDC, Une pièce de vie de 45m² très lumineuse avec de larges baies vitrées et de deux salles de bains.Il s’agit d’une maison de 2 niveaux. Elle est neuve RE2020 toute dernière génération.Cinq établissements scolaires sont implantés à moins de 10 minutes à pied. Niveau transports, on trouve la ligne de RER C et TRAM T12(Épinay-Sur-Orge) ainsi que deux gares (Épinay-sur-Orge et Petit Vaux) dans un rayon de 1 km. Il y a une bibliothèque, deux tennis, quatre boulangeries, des commerces, un supermarché, trois épiceries et des boucheries charcuteries à quelques minutes.Elle est proposée à l’achat pour 459 228 €. ( hors frais de notaire prévoir env 16500€) hors décoration et aménagementsMaison à très basse consommation, Réalisation en brique de terre cuite, isolation intérieure renforcée bio ressourcée, pompe à chaleur, plancher chauffant, domotique… toutes assurances comprises » dommage ouvrage »…, Frais d’architecte inclusContactez votre conseiller Jean Jacques des maisons BALENCY agence de la ville du bois au (Numéro supprimé) ou au (Numéro supprimé)(Réalisation sur Mesure exclusive des Maisons Balency agence de La ville du Bois Domexpo Sud )
L’actualité immobilière à Antony
27/11/2023
02/11/2023
30/10/2023
20/10/2023
16/10/2023
16/10/2023