Maison à construire à Garches (92380)
Images
Description
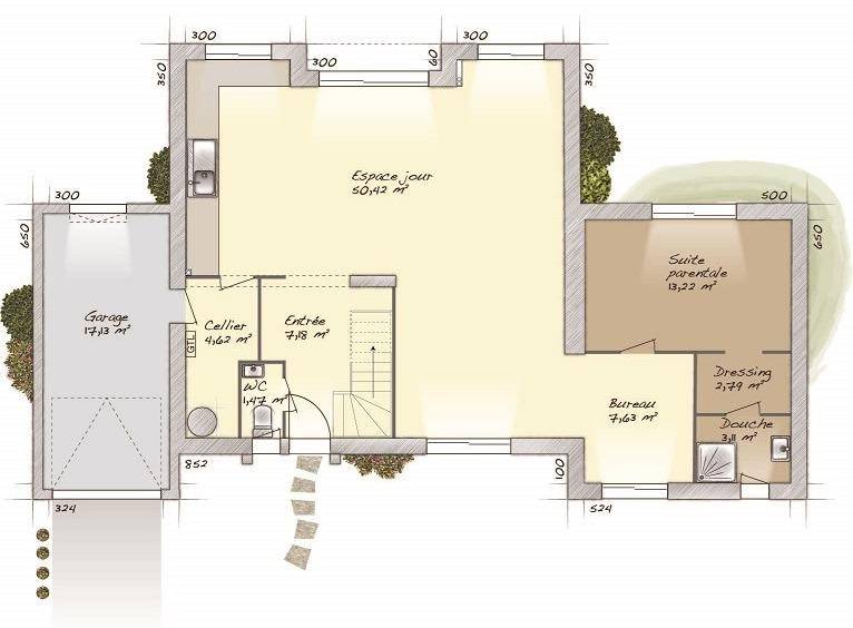
VENTE d'une maison F7 (125 m²) à Garches
PROCHE DE PARIS - MAISON 7 PIÈCES NEUVE
À deux pas du Transilien L (gare de Garches-Marnes-la-Coquette, 25 min de Paris), notre agence Maisons Balency Dammartin-en-Goële est ravie de vous proposer cette maison de 7 pièces de 125 m² à Garches (92380).
Cette maison comporte 2 niveaux. Elle se divise en cinq chambres, une cuisine et trois salles de bains. Cette maison est neuve.
Le terrain du bien s'étend sur 590 m².
Des écoles de tous types se trouvent à moins de 10 minutes à pied. Niveau transports, il y a deux lignes de RER (A et C) ainsi que 62 gares à moins de 10 minutes en voiture. On trouve un bassin de natation, trois tennis, une bibliothèque, trois boulangeries, des commerces, deux supermarchés, un bureau de poste et deux boucheries-charcuteries à quelques minutes à peine. Enfin, le marché Place Saint Louis anime le quartier chaque samedi matin.
Son prix de vente est de 1 385 000 €.
Contactez notre agence (Anda NISTOR : (Numéro supprimé)) pour tout renseignement sur cette maison. Donnez vie à vos projets immobiliers avec Maisons Balency Dammartin-en-Goële.
Annonce proposée par un Agent Commercial Partenaire.
Logement susceptibles de vous intéresser
Nous vous proposons de découvrir aussi cette sélection de logements situés à moins de 10km de Garches et qui seraient susceptibles de vous intéresser.
Courbevoie
TERRAINVENTE : terrain de 185 m² à CourbevoieTerrain de 185 m² proche du Transilien L (10 min de Paris). Ce terrain se situe dans Courbevoie (92400). Il y a des établissements scolaires (de la maternelle au lycée) à moins de 10 minutes à pied, tout comme 11 crèches. Côté transports, on trouve la gare Courbevoie à proximité. Il y a une bibliothèque, un tennis, un bassin de natation, des commerces, des boulangeries, des supermarchés, quatre bureaux de poste et une poissonnerie à quelques minutes.Il est à vendre pour la somme de 560 000 €. Prenez contact avec notre agence (Anda NISTOR : (Numéro supprimé)) pour plus de renseignements sur ce terrain et sur les modalités de vente. Maisons Balency Dammartin-en-Goële vous accompagne à toutes les étapes de votre projet et dans toutes vos démarches.Annonce proposée par un Agent Commercial Partenaire.
Garches
TERRAINVENTE : terrain de 590 m² à GarchesPROCHE DE PARISGrand terrain à côté de la gare de Garches-Marnes-la-Coquette (Paris à 25 min avec le Transilien L). De 590 m², ce terrain se situe dans Garches (92380). Des écoles du primaire et du secondaire sont implantées à moins de 10 minutes à pied. Niveau transports en commun, il y a le RER A et C ainsi que 62 gares à moins de 10 minutes en voiture. On trouve un bassin de natation, trois tennis, une bibliothèque, trois boulangeries, des commerces, deux supermarchés, deux boucheries-charcuteries et trois épiceries à quelques minutes à peine. Enfin, le marché Place Saint Louis anime les environs tous les samedis matin.Il est proposé à l’achat pour 850 000 €. Contactez notre agence (Anda NISTOR : (Numéro supprimé)) pour obtenir de plus amples renseignements sur ce terrain ou sur les démarches à suivre. Donnez vie à vos projets immobiliers avec Maisons Balency Dammartin-en-Goële.Annonce proposée par un Agent Commercial Partenaire.
Courbevoie
TERRAIN ET MAISONMaison F6 (90 m²) en vente à CourbevoieMAISON 6 PIÈCES NEUVEÀ vendre : à deux pas de la gare (Paris à 10 min par le Transilien L), à Courbevoie (92400), nous vous présentons cette maison de 6 pièces de 90 m².Il s’agit d’une maison de 2 niveaux. Elle dispose de quatre chambres, d’une cuisine et de deux salles de bains. La maison est neuve.Le terrain du bien s’étend sur 185 m².Il y a des écoles du primaire et du secondaire à moins de 10 minutes à pied, tout comme 11 structures d’accueil pour les enfants en bas âge. Niveau transports en commun, on trouve la gare Courbevoie à proximité. Il y a une bibliothèque, un tennis, un bassin de natation, des commerces, des boulangeries, des supermarchés, une poissonnerie et des supérettes à quelques minutes du logement.Elle est proposée à l’achat pour 965 000 €.Prenez contact avec notre agence (NISTOR Anda : (Numéro supprimé)) pour plus d’informations sur cette maison.Annonce proposée par un Agent Commercial Partenaire.
Courbevoie
TERRAIN ET MAISONMaison de 6 pièces (100 m²) à vendre à CourbevoieMAISON 6 PIÈCES NEUVEÀ vendre : à deux pas du Transilien L (10 min de Paris), à Courbevoie (92400), laissez vous charmer par cette maison de 6 pièces de 100 m². Elle se divise en quatre chambres, une cuisine et deux salles de bains.Le terrain de la propriété s’étend sur 185 m².Il s’agit d’une maison de 2 niveaux. Elle est neuve.Il y a des établissements scolaires (de la maternelle au lycée) à moins de 10 minutes à pied, tout comme 11 crèches. Niveau transports en commun, on trouve la gare Courbevoie juste à côté. Il y a une bibliothèque, un tennis, un bassin de natation, des commerces, des boulangeries, des supermarchés, quatre bureaux de poste et des boucheries-charcuteries dans les environs.Elle est à vendre pour la somme de 1 095 000 €.Contactez Anda NISTOR (tél : (Numéro supprimé)) pour tout renseignement sur la maison et sur les modalités de vente. Maisons Balency Dammartin-en-Goële est là pour vous accompagner dans toutes vos démarches.Annonce proposée par un Agent Commercial Partenaire.
Courbevoie
TERRAIN ET MAISONMaison F5 (90 m²) à vendre à CourbevoieMAISON 5 PIÈCES NEUVEÀ vendre : à proximité du Transilien L (10 min de Paris), ayez le coup de coeur pour cette maison de 5 pièces de 90 m² à Courbevoie (92400). Son intérieur inclut trois chambres, une cuisine et une salle de bains.Le terrain du bien s’étend sur 185 m².Cette maison possède 2 niveaux. Elle est neuve.Des établissements scolaires (de la maternelle au lycée) sont implantés à moins de 10 minutes à pied, tout comme 11 structures d’accueil pour la petite enfance. Niveau transports, il y a la gare Courbevoie juste à côté. On trouve une bibliothèque, un tennis, un bassin de natation, des commerces, des boulangeries, des supermarchés, des supérettes et quatre bureaux de poste dans les environs.Elle est à vendre pour la somme de 895 000 €.Prenez contact avec Anda NISTOR (tél : (Numéro supprimé)) pour obtenir de plus amples renseignements sur cette maison ou sur les démarches à suivre.Annonce proposée par un Agent Commercial Partenaire.
Courbevoie
TERRAIN ET MAISONCourbevoie : maison de 6 pièces (91 m²) à vendreMAISON 6 PIÈCES NEUVEEn vente : à côté de la gare (Paris à 10 min avec le Transilien L), Maisons Balency Dammartin-en-Goële vous propose cette maison de 6 pièces de 91 m² à Courbevoie (92400). Elle dispose de quatre chambres, d’une cuisine et d’une salle de bains.Le terrain du bien est de 185 m².C’est une maison de 2 niveaux. Elle est neuve.Des écoles (de la maternelle au lycée) sont implantées à moins de 10 minutes à pied, tout comme 11 structures d’accueil pour la petite enfance. Niveau transports en commun, on trouve la gare Courbevoie dans les environs. Il y a une bibliothèque, un tennis, un bassin de natation, des commerces, des boulangeries, des supermarchés, des épiceries et une poissonnerie à proximité.Elle est proposée à l’achat pour 895 000 €.Prenez contact avec notre agence (NISTOR Anda : (Numéro supprimé)) pour obtenir de plus amples renseignements sur cette maison. Maisons Balency Dammartin-en-Goële est là pour vous accompagner dans tous vos projets immobiliers.Annonce proposée par un Agent Commercial Partenaire.
Garches
TERRAIN ET MAISONMaison de 8 pièces (145 m²) en vente à GarchesMAISON 8 PIÈCES NEUVE – PROCHE DE PARISÀ vendre : à deux pas du Transilien L (gare de Garches-Marnes-la-Coquette, 25 min de Paris), venez découvrir cette maison de 8 pièces de 145 m² à Garches (92380).Il s’agit d’une maison de 2 niveaux. Elle se divise en cinq chambres, une cuisine et trois salles de bains. Cette maison est neuve.Le terrain de la propriété s’étend sur 590 m².Tous les types d’écoles (de la maternelle au lycée) sont implantés à moins de 10 minutes à pied. Niveau transports en commun, on trouve les lignes A et C du RER ainsi que 62 gares à moins de 10 minutes en voiture. Il y a un bassin de natation, trois tennis, une bibliothèque, trois boulangeries, des commerces, deux supermarchés, un bureau de poste et deux boucheries-charcuteries à proximité de la maison. Ne manquez pas le marché Place Saint Louis chaque samedi matin.Son prix de vente est de 1 400 000 €.Contactez Anda NISTOR (tél : (Numéro supprimé)) pour toute question sur la maison. Donnez vie à vos projets immobiliers avec Maisons Balency Dammartin-en-Goële.Annonce proposée par un Agent Commercial Partenaire.
Garches
TERRAIN ET MAISONMaison de 9 pièces (186 m²) en vente à GarchesPROCHE DE PARIS – MAISON 9 PIÈCES NEUVEEn vente : à quelques minutes du Transilien L (gare de Garches-Marnes-la-Coquette, 25 min de Paris), à Garches (92380), Maisons Balency Dammartin-en-Goële vous propose cette maison de 9 pièces de 186 m².Cette maison possède 2 niveaux. Son intérieur dispose de quatre chambres, d’une cuisine et de deux salles de bains. La maison est neuve.Le terrain de la propriété est de 590 m².On trouve des écoles de tous types à moins de 10 minutes à pied. Niveau transports en commun, il y a les lignes A et C du RER ainsi que 62 gares à moins de 10 minutes en voiture. Il y a un bassin de natation, trois tennis, une bibliothèque, trois boulangeries, des commerces, deux supermarchés, deux boucheries-charcuteries et trois épiceries à proximité du logement. Ne manquez pas le marché Place Saint Louis tous les samedis matin.Son prix de vente est de 1 520 000 €.N’hésitez pas à prendre contact avec notre agence (Anda NISTOR : (Numéro supprimé)) pour toute information sur cette maison. Maisons Balency Dammartin-en-Goële est là pour vous accompagner dans tous vos projets immobiliers.Annonce proposée par un Agent Commercial Partenaire.
Garches
TERRAIN ET MAISONVENTE d’une maison F7 (125 m²) à GarchesPROCHE DE PARIS – MAISON 7 PIÈCES NEUVEÀ deux pas du Transilien L (gare de Garches-Marnes-la-Coquette, 25 min de Paris), notre agence Maisons Balency Dammartin-en-Goële est ravie de vous proposer cette maison de 7 pièces de 125 m² à Garches (92380).Cette maison comporte 2 niveaux. Elle se divise en cinq chambres, une cuisine et trois salles de bains. Cette maison est neuve.Le terrain du bien s’étend sur 590 m².Des écoles de tous types se trouvent à moins de 10 minutes à pied. Niveau transports, il y a deux lignes de RER (A et C) ainsi que 62 gares à moins de 10 minutes en voiture. On trouve un bassin de natation, trois tennis, une bibliothèque, trois boulangeries, des commerces, deux supermarchés, un bureau de poste et deux boucheries-charcuteries à quelques minutes à peine. Enfin, le marché Place Saint Louis anime le quartier chaque samedi matin.Son prix de vente est de 1 385 000 €.Contactez notre agence (Anda NISTOR : (Numéro supprimé)) pour tout renseignement sur cette maison. Donnez vie à vos projets immobiliers avec Maisons Balency Dammartin-en-Goële.Annonce proposée par un Agent Commercial Partenaire.
L’actualité immobilière à Garches
27/11/2023
02/11/2023
30/10/2023
20/10/2023
16/10/2023
16/10/2023