Maison à construire à Nanterre (92000)
Images
Description
Les plans YRYS vous permettent aujourd'hui de construire votre maison de demain !
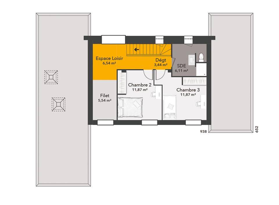
Ce plan de maison fait écho à la maison Concept YRYS, laboratoire d'expertises et d'innovations inauguré en 2018 à Alençon (61). Cette maison de 133 m² apporte de pertinentes solutions pour le confort et le bien-être des occupants en toutes saisons. Au rez-de-chaussée elle se compose en d'une partie centrale avec un espace jour de 40 m², et de deux parties aux extrémités de cet espace. D'un côté un garage et un cellier accolés à la cuisine et de l'autre, une partie studio qui peut être indépendant et une suite parentale avec dressing et salle d'eau à proximité de l'entrée et de la pièce de vie.
A l'étage, uniquement sur la partie centrale de la maison, nous avons, un espace de loisir de 7 m² avec un filet comblant le vide sur séjour pour profiter pleinement de moment de repos. 2 chambres de près de 12 m² et une salle de douche viennent terminer la composition de cette maison.
Vous souhaitez faire le choix d'une maison innovante, design et confortable, n'hésitez plus, YRYS est faite pour vous !
Annonce proposée par un Agent Commercial Partenaire.
Logement susceptibles de vous intéresser
Nous vous proposons de découvrir aussi cette sélection de logements situés à moins de 10km de Nanterre et qui seraient susceptibles de vous intéresser.
Sartrouville
TERRAINL »agence Maisons France Confort de Coignières propose en partenariat avec un aménageur foncier ce superbe terrain sur la charmante commune de Sartrouville, cette commune en bord de Seine très recherchée attire par son charme avec de nombreux parcs, son calme et ses nombreuses commodités, superbe produit !Terrain individuel, projet sur mesure à réaliser.Pour d »avantage de précisions, un devis de construction personnalisé tout compris et une visite de ce terrain contactez sans tarder votre agence Maisons France Confort de Coignières au (Numéro supprimé) ou (Numéro supprimé)Annonce proposée par un Agent Commercial Partenaire.
Sartrouville
TERRAIN ET MAISONL’agence Maisons France Confort de Coignières propose ce magnifique projet, très attractif pour son lieu, ses prestations et son prix avec par exemple ce modèle R+1 (photos non contractuelles). Au rez-de-chaussée, une cuisine ouverte sur le séjour qui offre un espace de vie spacieux et harmonieux de plus de 40 m². Un cellier, un WC et une chambre avec salle d’eau complètent ce rez-de-chaussée. La distribution de l’étage optimise l’espace autour d’un palier, une suite parentale avec dressing et salle d’eau privative, 3 chambres, 1 salle de bains et 1 WC indépendant. Norme RE2020, chauffage PAC, plancher chauffant, domotique sur les volets roulants… Modèle personnalisable en fonction de votre mode de vie, vos envies et budget.Les plus Maisons France Confort : une expérience solide de presque 100 ans, la maitrise de projets sur mesure, la sécurité du premier constructeur national.Le prix de cette annonce inclus le terrain, le modèle de maison proposé en exemple ainsi que tous les frais de viabilisation, raccordements, évacuation de terres excédentaires, accès chantier etc…pour rappel les frais de notaire sur le terrain et les taxes, les clôtures, l’ameublement et la décoration ne sont pas inclus.Pour d’avantage de précisions et pour un devis de construction personnalisé avant visite du terrain contactez votre agence Maisons France Confort de Coignières au (Numéro supprimé) ou (Numéro supprimé)Annonce proposée par un Agent Commercial Partenaire.
Sartrouville
TERRAIN ET MAISONL’agence Maisons France Confort de Coignières propose ce magnifique projet, très attractif pour son lieu, ses prestations et son prix avec par exemple ce modèle R+1 toit plat (photos non contractuelles). Au rez-de-chaussée, une cuisine ouverte sur le séjour qui offre un espace de vie spacieux et harmonieux de plus de 40 m². Un cellier, un WC et une suite parentale avec dressing et salle d’eau privative complètent ce rez-de-chaussée. La distribution de l’étage optimise l’espace autour d’un palier, 3 chambres, 1 salle de bains et 1 WC indépendant. Norme RE2020, chauffage PAC, plancher chauffant, domotique sur les volets roulants… Modèle personnalisable en fonction de votre mode de vie, vos envies et budget.Les plus Maisons France Confort : une expérience solide de presque 100 ans, la maitrise de projets sur mesure, la sécurité du premier constructeur national.Le prix de cette annonce inclus le terrain, le modèle de maison proposé en exemple ainsi que tous les frais de viabilisation, raccordements, évacuation de terres excédentaires, accès chantier etc…pour rappel les frais de notaire sur le terrain et les taxes, les clôtures, l’ameublement et la décoration ne sont pas inclus.Pour d’avantage de précisions et pour un devis de construction personnalisé avant visite du terrain contactez votre agence Maisons France Confort de Coignières au (Numéro supprimé) ou (Numéro supprimé)Annonce proposée par un Agent Commercial Partenaire.
Nanterre
TERRAINNanterre : terrain de 425 m² à vendreIDÉALEMENT SITUÉÀ 865 m de la station Nanterre Ville du RER A (10 min de Paris) à Nanterre (92000), terrain de 425 m². Dans un quartier recherché, le terrain idéalement situé est proche des commerces et des écoles. Des établissements scolaires de tous types (de la maternelle au lycée) sont implantés à moins de 10 minutes à pied, tout comme sept structures d’accueil pour la petite enfance. Niveau transports, on trouve la station de RER Nanterre-Ville (ligne A) à quelques pas du bien. Il y a une bibliothèque, deux tennis, un bassin de natation, des boulangeries, des commerces, des supermarchés, deux poissonneries et des boucheries-charcuteries dans les environs. Enfin, le marché Cité Jolio Curie anime le quartier.Ce terrain est proposé à l’achat pour 495 000 €. Prenez contact avec Anda NISTOR (tél : (Numéro supprimé)) pour plus d’informations sur le terrain, sur les modalités de vente ou sur les démarches à suivre. Maisons Balency Dammartin-en-Goële vous accompagne à toutes les étapes de votre projet et dans tous vos projets immobiliers.Annonce proposée par un Agent Commercial Partenaire.
Nanterre
TERRAIN ET MAISONOpportunité exceptionnelle à saisir ! Projet de construction d’une maison d’exception BALENCY sur mesure Dans un cadre privilégié, découvrez ce projet unique de construction d’une maison sur mesure, pensée pour allier élégance, confort et prestations haut de gamme. Sur un terrain de 425 m², cette future propriété offrira une surface habitable de 160 m², conçue selon vos envies et vos exigences.Caractéristiques principales :- Architecture contemporaine ou classique selon vos préférences- Matériaux nobles et finitions de qualité supérieure- Grands volumes lumineux avec baies vitrées et hauteurs sous plafond- Cuisine équipée haut de gamme ouverte sur un vaste espace de vie- Suites parentales avec dressing et salle de bain privative- Espaces personnalisables : bureau, salle de sport, home cinéma…- Système de chauffage et climatisation gainable pour un confort thermique optimal et une intégration discrète digne d’un palace- Domotique intégrée pour un confort optimal- Jardin paysager avec possibilité de piscine, terrasse, pool house…Localisation idéale :Située dans un environnement calme et résidentiel, à proximité des commodités, écoles, transports et axes principaux, cette maison incarne le parfait équilibre entre tranquillité et vie active.Un projet clé en main :Accompagnement complet par des professionnels reconnus : architectes, artisans, décorateurs. Vous choisissez, nous réalisons.Pour plus d’informations, merci de nous contacter.Nistor Anda : (Numéro supprimé) Annonce proposée par un Agent Commercial Partenaire.
Nanterre
TERRAIN ET MAISONOpportunité exceptionnelle à saisir ! Projet de construction d’une maison d’exception BALENCY sur mesure Dans un cadre privilégié, découvrez ce projet unique de construction d’une maison sur mesure, pensée pour allier élégance, confort et prestations haut de gamme. Sur un terrain de 425 m², cette future propriété offrira une surface habitable de 117 m², conçue selon vos envies et vos exigences.Caractéristiques principales :- Architecture contemporaine ou classique selon vos préférences- Matériaux nobles et finitions de qualité supérieure- Grands volumes lumineux avec baies vitrées et hauteurs sous plafond- Cuisine équipée haut de gamme ouverte sur un vaste espace de vie- Suites parentales avec dressing et salle de bain privative- Espaces personnalisables : bureau, salle de sport, home cinéma…- Système de chauffage et climatisation gainable pour un confort thermique optimal et une intégration discrète digne d’un palace- Domotique intégrée pour un confort optimal- Jardin paysager avec possibilité de piscine, terrasse, pool house…Localisation idéale :Située dans un environnement calme et résidentiel, à proximité des commodités, écoles, transports et axes principaux, cette maison incarne le parfait équilibre entre tranquillité et vie active.Un projet clé en main :Accompagnement complet par des professionnels reconnus : architectes, artisans, décorateurs. Vous choisissez, nous réalisons.Pour plus d’informations, merci de nous contacter.Anda Nistor : (Numéro supprimé) Annonce proposée par un Agent Commercial Partenaire.
Nanterre
TERRAIN ET MAISONOpportunité exceptionnelle à saisir ! Projet de construction d’une maison d’exception BALENCY sur mesure Dans un cadre privilégié, découvrez ce projet unique de construction d’une maison sur mesure, pensée pour allier élégance, confort et prestations haut de gamme. Sur un terrain de 425 m², cette future propriété offrira une surface habitable de 125 m², conçue selon vos envies et vos exigences.Caractéristiques principales :- Architecture contemporaine ou classique selon vos préférences- Matériaux nobles et finitions de qualité supérieure- Grands volumes lumineux avec baies vitrées et hauteurs sous plafond- Cuisine équipée haut de gamme ouverte sur un vaste espace de vie- Suites parentales avec dressing et salle de bain privative- Espaces personnalisables : bureau, salle de sport, home cinéma…- Système de chauffage et climatisation gainable pour un confort thermique optimal et une intégration discrète digne d’un palace- Domotique intégrée pour un confort optimal- Jardin paysager avec possibilité de piscine, terrasse, pool house…Localisation idéale :Située dans un environnement calme et résidentiel, à proximité des commodités, écoles, transports et axes principaux, cette maison incarne le parfait équilibre entre tranquillité et vie active.Un projet clé en main :Accompagnement complet par des professionnels reconnus : architectes, artisans, décorateurs. Vous choisissez, nous réalisons.Pour plus d’informations, merci de nous contacter.Anda Nistor : (Numéro supprimé) Annonce proposée par un Agent Commercial Partenaire.
Sannois
TERRAIN ET MAISONVENTE : maison F6 (105 m²) à SannoisEMPLACEMENT PRIVILÉGIÉ – MAISON 6 PIÈCES NEUVEÀ proximité de la gare (Paris à 20 min par le Transilien J), Maisons France Confort Moisselles vous présente en vente, bénéficiant d’un emplacement privilégié dans Sannois (95110), cette maison de 6 pièces de 105 m². Elle se divise en quatre chambres, une cuisine et deux salles de bains.Le terrain du bien est de 318 m².Cette maison compte 2 niveaux. Elle est neuve.Cette maison est située dans un secteur attractif. Des établissements scolaires de tous niveaux (de la maternelle au lycée) sont implantés à moins de 10 minutes à pied, tout comme quatre structures d’accueil pour les enfants en bas âge. Niveau transports, on trouve la gare Sannois dans un rayon de 1 km. Il y a une bibliothèque, des boulangeries, des commerces, deux supermarchés, des épiceries et trois boucheries-charcuteries dans les environs.Son prix de vente est de 499 500 €.N’hésitez pas à prendre contact avec notre agence Emmanuel au (Numéro supprimé) pour obtenir de plus amples informations sur la maison, sur les modalités de vente et sur les démarches à suivre. Faites de vos projets immobiliers une réalité avec Maisons France Confort Moisselles.
Argenteuil
TERRAINRare à Argenteuil, terrain de 210 m² environ, aux hauts Côteaux proche de Sannois. Vous pourrez faire construire une maison de 80 m², 3 chambres dont une belle suite parentale . Projet sans garage pompe à chaleur avec plancher chauffant. Travail soigné du 1er constructeur de maisons individuelles: Groupe HEXAÖM/France ConfortPrévoir pour un tel projet, un budget de 293000 € (maison, terrain, raccordement, viabilisation, carrelages 45/45 dans les pièces de vie, sanitaires compris hors peinture intérieure, revêtement de sol des chambres et frais de notaire). Possibilité de personnaliser les plans de votre maison lors d’un RDV. Modèle plus grand possibleContacter moi sur mon portable en composant le 06 puis le 76, le 21, le 22 et le 60.
L’actualité immobilière à Nanterre
27/11/2023
02/11/2023
30/10/2023
20/10/2023
16/10/2023
16/10/2023