Maison à construire à Sceaux (92330)
Images
Description
Opportunité à saisir ! Projet de construction d'une maison d'exception BALENCY sur mesure
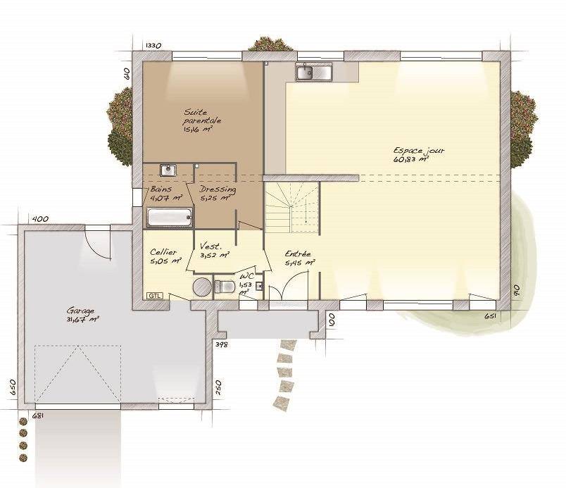
Dans un cadre privilégié, découvrez ce projet unique de construction d'une maison sur mesure, pensée pour allier élégance, confort et prestations haut de gamme. Sur un terrain de 610 m², cette future propriété offrira une surface habitable de 200 m², conçue selon vos envies et vos exigences.
Caractéristiques principales :
- Architecture contemporaine ou classique selon vos préférences
- Matériaux nobles et finitions de qualité supérieure
- Grands volumes lumineux avec baies vitrées et hauteurs sous plafond
- Cuisine équipée haut de gamme ouverte sur un vaste espace de vie
- Suites parentales avec dressing et salle de bain privative
- Espaces personnalisables : bureau, salle de sport, home cinéma...
- Système de chauffage et climatisation gainable pour un confort thermique optimal et une intégration discrète digne d'un palace
- Domotique intégrée pour un confort optimal
- Jardin paysager avec possibilité de piscine, terrasse, pool house...
Localisation idéale :
Située dans un environnement calme et résidentiel, à proximité des commodités, écoles, transports et axes principaux, cette maison incarne le parfait équilibre entre tranquillité et vie active.
Un projet clé en main :
Accompagnement complet par des professionnels reconnus : architectes, artisans, décorateurs. Vous choisissez, nous réalisons.
Pour plus d'informations, merci de nous contacter au (Numéro supprimé)
Annonce proposée par un Agent Commercial Partenaire.
Logement susceptibles de vous intéresser
Nous vous proposons de découvrir aussi cette sélection de logements situés à moins de 10km de Sceaux et qui seraient susceptibles de vous intéresser.
Châtenay-Malabry
TERRAINVENTE : terrain de 355 m² à Châtenay-MalabryParis à 15 min (RER B, Robinson) – Bénéficiant d’un emplacement d’exception dans Châtenay-Malabry (92290), en vente : réalisez votre projet sur ce terrain de 355 m².À proximité : RER (lignes B et C), gares, établissements scolaires, bibliothèque, tennis, commerces, boulangeries, supermarchés, poissonneries et bureau de poste.Son prix de vente est de 555 000 €. Contactez Steeve KANOR (tél : (Numéro supprimé)) pour toute question sur le terrain, sur les démarches à suivre ou sur les modalités de vente. Maisons Evolution Tigery vous accompagne dans tous vos projets immobiliers et à toutes les étapes de votre projet.Annonce proposée par un Agent Commercial Partenaire.
Châtenay-Malabry
TERRAIN ET MAISONChâtenay-Malabry : maison de 4 pièces (110 m²) à vendreParis à 15 min (RER B, Robinson) – À découvrir bénéficiant d’un emplacement privilégié dans Châtenay-Malabry (92290) : maison neuve 4 pièces en vente. 2 niveaux, surface de 110 m² sur 355 m² de terrain. Son intérieur comporte quatre chambres, une cuisine et deux salles de bains.À proximité : RER (lignes B et C), gares, établissements scolaires, bibliothèque, tennis, commerces, boulangeries, supermarchés, bureau de poste et boucheries-charcuteries.Le prix de vente de cette maison de 4 pièces est de 845 900 €.Contactez Steeve KANOR (tél : (Numéro supprimé)) pour tout renseignement sur la maison. Maisons Evolution Tigery est là pour vous accompagner dans tous vos projets immobiliers.Annonce proposée par un Agent Commercial Partenaire.
Antony
TERRAINSecteur très recherche; situé à 10 ' du marchéPrix : 525000 €.Sur ce terrain de 357 m² à ANTONY, Maisons Clairval vous propose de réaliser votre projet de construction de maison individuelle.Maisons Clairval propose de construire votre maison neuve avec toutes les prestations suivantes :- Plan sur-mesure et personnalisé de 2 à 6 chambres- Mode de chauffage au choix- Grands choix d'équipements et de prestations- Matériaux de qualité selon les normes en vigueur- Accompagnement dans le choix et l’acquisition du terrain- Construction conforme à la nouvelle RE 2020Demandez une étude gratuite et personnalisée de votre projet de construction sur ce terrain !Contactez Nicolas REBOUL au (Numéro supprimé) ou au (Numéro supprimé) (Maisons Clairval – Agence de Villemoisson).Prix hors frais de notaire. Terrain sélectionné et vu pour vous sous réserve de disponibilité et au prix indiqué par notre partenaire foncier. Conditions et visuels non contractuels.Cette annonce a été créée et diffusée avec le logiciel VITAHOME.
Athis-Mons
TERRAINSecteur calme et recherché à proximité du RER C.Rare sur le secteur.Prix : 227000 €.Sur ce terrain de 460 m² à ATHIS-MONS, Maisons Clairval vous propose de réaliser votre projet de construction de maison individuelle.Maisons Clairval propose de construire votre maison neuve avec toutes les prestations suivantes :- Plan sur-mesure et personnalisé de 2 à 6 chambres- Mode de chauffage au choix- Grands choix d'équipements et de prestations- Matériaux de qualité selon les normes en vigueur- Accompagnement dans le choix et l’acquisition du terrain- Construction conforme à la nouvelle RE 2020Demandez une étude gratuite et personnalisée de votre projet de construction sur ce terrain !Contactez Nicolas REBOUL au (Numéro supprimé) ou au (Numéro supprimé) (Maisons Clairval – Agence de Villemoisson).Prix hors frais de notaire. Terrain sélectionné et vu pour vous sous réserve de disponibilité et au prix indiqué par notre partenaire foncier. Conditions et visuels non contractuels.Cette annonce a été créée et diffusée avec le logiciel VITAHOME.
Bièvres
TERRAINEn plein centre ville de Bièvres avec commerces, écoles et RER à piedEmprise au sol d'environ 100 m² sur R+1+comblesPrix : 440000 €.Sur ce terrain de 281 m² à BIEVRES, Maisons Clairval vous propose de réaliser votre projet de construction de maison individuelle.Maisons Clairval propose de construire votre maison neuve avec toutes les prestations suivantes :- Plan sur-mesure et personnalisé de 2 à 6 chambres- Mode de chauffage au choix- Grands choix d'équipements et de prestations- Matériaux de qualité selon les normes en vigueur- Accompagnement dans le choix et l’acquisition du terrain- Construction conforme à la nouvelle RE 2020Demandez une étude gratuite et personnalisée de votre projet de construction sur ce terrain !Contactez Nicolas REBOUL au (Numéro supprimé) ou au (Numéro supprimé) (Maisons Clairval – Agence de Villemoisson).Prix hors frais de notaire. Terrain sélectionné et vu pour vous sous réserve de disponibilité et au prix indiqué par notre partenaire foncier. Conditions et visuels non contractuels.Cette annonce a été créée et diffusée avec le logiciel VITAHOME.
Châtenay-Malabry
TERRAINquartier pavillonnaire paisible et verdoyant.Le tramway T10 et le Parc de la Vallée aux Loups sont accessibles à pied en quelques minutes.Prix : 649000 €.Sur ce terrain de 667 m² à CHATENAY-MALABRY, Maisons Clairval vous propose de réaliser votre projet de construction de maison individuelle.Maisons Clairval propose de construire votre maison neuve avec toutes les prestations suivantes :- Plan sur-mesure et personnalisé de 2 à 6 chambres- Mode de chauffage au choix- Grands choix d'équipements et de prestations- Matériaux de qualité selon les normes en vigueur- Accompagnement dans le choix et l’acquisition du terrain- Construction conforme à la nouvelle RE 2020Demandez une étude gratuite et personnalisée de votre projet de construction sur ce terrain !Contactez Nicolas REBOUL au (Numéro supprimé) ou au (Numéro supprimé) (Maisons Clairval – Agence de Villemoisson).Prix hors frais de notaire. Terrain sélectionné et vu pour vous sous réserve de disponibilité et au prix indiqué par notre partenaire foncier. Conditions et visuels non contractuels.Cette annonce a été créée et diffusée avec le logiciel VITAHOME.
Ivry-sur-Seine
TERRAINterrain large de 10mrare dans le secteurPrix : 450000 €.Sur ce terrain de 389 m² à IVRY-SUR-SEINE, Maisons Clairval vous propose de réaliser votre projet de construction de maison individuelle.Maisons Clairval propose de construire votre maison neuve avec toutes les prestations suivantes :- Plan sur-mesure et personnalisé de 2 à 6 chambres- Mode de chauffage au choix- Grands choix d'équipements et de prestations- Matériaux de qualité selon les normes en vigueur- Accompagnement dans le choix et l’acquisition du terrain- Construction conforme à la nouvelle RE 2020Demandez une étude gratuite et personnalisée de votre projet de construction sur ce terrain !Contactez Nicolas REBOUL au (Numéro supprimé) ou au (Numéro supprimé) (Maisons Clairval – Agence de Villemoisson).Prix hors frais de notaire. Terrain sélectionné et vu pour vous sous réserve de disponibilité et au prix indiqué par notre partenaire foncier. Conditions et visuels non contractuels.Cette annonce a été créée et diffusée avec le logiciel VITAHOME.
Jouy-en-Josas
TERRAINà proximité des commodités locales. Sa localisation privilégiée permet un accès facile aux écoles, commerces et transports, tout en conservant une tranquillité rare dans la région.Prix : 299000 €.Sur ce terrain de 230 m² à JOUY-EN-JOSAS, Maisons Clairval vous propose de réaliser votre projet de construction de maison individuelle.Maisons Clairval propose de construire votre maison neuve avec toutes les prestations suivantes :- Plan sur-mesure et personnalisé de 2 à 6 chambres- Mode de chauffage au choix- Grands choix d'équipements et de prestations- Matériaux de qualité selon les normes en vigueur- Accompagnement dans le choix et l’acquisition du terrain- Construction conforme à la nouvelle RE 2020Demandez une étude gratuite et personnalisée de votre projet de construction sur ce terrain !Contactez Nicolas REBOUL au (Numéro supprimé) ou au (Numéro supprimé) (Maisons Clairval – Agence de Villemoisson).Prix hors frais de notaire. Terrain sélectionné et vu pour vous sous réserve de disponibilité et au prix indiqué par notre partenaire foncier. Conditions et visuels non contractuels.Cette annonce a été créée et diffusée avec le logiciel VITAHOME.
Longjumeau
TERRAINSitué au calme dans une impasse à proximité de la gare de du centre ville de Longjumeau.Prix : 220000 €.Sur ce terrain de 339 m² à LONGJUMEAU, Maisons Clairval vous propose de réaliser votre projet de construction de maison individuelle.Maisons Clairval propose de construire votre maison neuve avec toutes les prestations suivantes :- Plan sur-mesure et personnalisé de 2 à 6 chambres- Mode de chauffage au choix- Grands choix d'équipements et de prestations- Matériaux de qualité selon les normes en vigueur- Accompagnement dans le choix et l’acquisition du terrain- Construction conforme à la nouvelle RE 2020Demandez une étude gratuite et personnalisée de votre projet de construction sur ce terrain !Contactez Nicolas REBOUL au (Numéro supprimé) ou au (Numéro supprimé) (Maisons Clairval – Agence de Villemoisson).Prix hors frais de notaire. Terrain sélectionné et vu pour vous sous réserve de disponibilité et au prix indiqué par notre partenaire foncier. Conditions et visuels non contractuels.Cette annonce a été créée et diffusée avec le logiciel VITAHOME.
L’actualité immobilière à Sceaux
27/11/2023
02/11/2023
30/10/2023
20/10/2023
16/10/2023
16/10/2023