Maison à construire à Agde (34300)
Images
Description
Agde : maison de 5 pièces (100 m²) en vente
EMPLACEMENT PRIVILÉGIÉ - MAISON 5 PIÈCES NEUVE
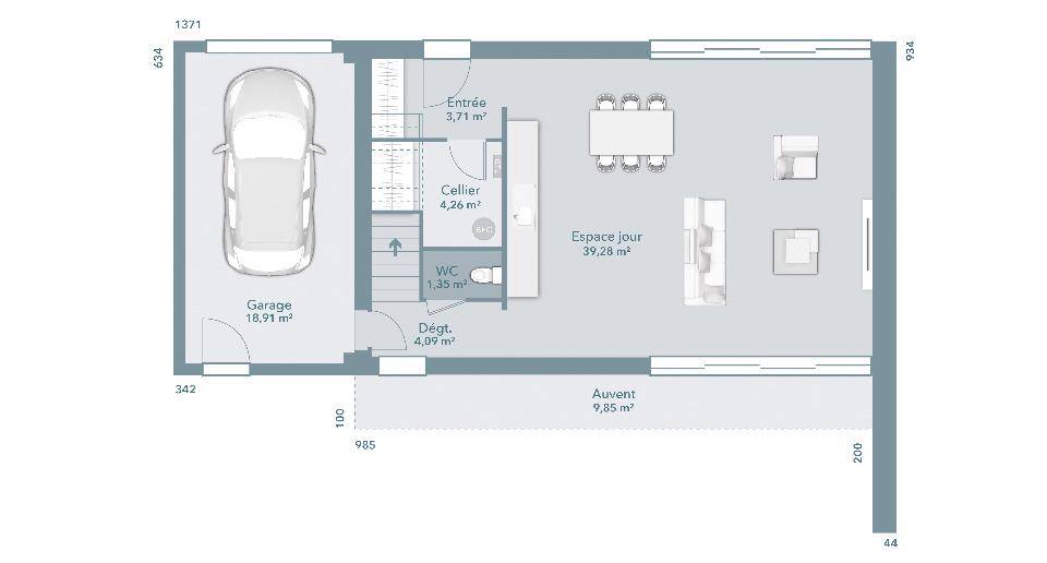
En vente à 7 km de la mer Méditerranée, venez découvrir, bénéficiant d'un emplacement privilégié dans Agde (34300), cette maison de 5 pièces de 100 m² et de 609 m² de terrain. Elle offre trois chambres, une cuisine et trois salles de bains.
Il s'agit d'une maison de 2 niveaux. Elle est neuve.
Cette maison se situe dans un secteur recherché. Il y a plusieurs écoles (maternelle, élémentaire, primaire et collège) à moins de 10 minutes à pied. Côté transports en commun, on trouve les gares Agde, Vias et Marseillan Plage à moins de 10 minutes en voiture. On trouve un accès à l'autoroute A9 à 9 km. Il y a une bibliothèque, un tennis, des commerces, des boulangeries, un supermarché, un bureau de poste et des boucheries-charcuteries à proximité.
Elle est à vendre pour la somme de 587 000 €.
N'hésitez pas à prendre contact avec notre agence (RENARD Léo : (Numéro supprimé)) pour plus de renseignements sur la maison.
Logement susceptibles de vous intéresser
Nous vous proposons de découvrir aussi cette sélection de logements situés à moins de 10km de Agde et qui seraient susceptibles de vous intéresser.
Vias
TERRAINVENTE DE 2 TERRAINS DE 492 M² CHACUN A VIAS. Zone privée hors association.Je vous propose sur la commune de VIAS cette parcelle de 984 m² divisée en deux terrains de 492m2 chacun.Beaux terrains plats et raccordés à l’eau, à l’électricité, munis de fosses septiques, système de drainage tiré et d’un forage.Localisation très proche de la mer, votre futur havre de paix pour vos prochaines vacances vous tend les bras.Formidable opportunité! Ce coin de paradis offre un cadre naturel exceptionnel où vous pourrez vous évader pendant les périodes estivales.Pour de plus amples informations et pour organiser une visite, n’hésitez pas à me contacter.C’est le moment idéal pour saisir cette occasion unique et réaliser votre rêve de vacances près de la mer.Cette annonce référence 285337 vous est présentée par votre agent commercial BSK Immobilier AURELIE VAZQUEZ (EI) immatriculé au RSAC de BEZIERS (34500) sous le numéro 53911981800034.Prix du bien : 149 000,00 €Les honoraires d’agence sont à la charge du vendeur.Les informations sur les risques auxquels ce bien est exposé sont disponibles sur le site Géorisques : www.georisques.gouv.fr
Marseillan
TERRAINTerrain de 212 m² en vente à MarseillanPROCHE DE BÉZIERSSur le littoral méditerranéen et à quelques kilomètres de Béziers à Marseillan (34340), terrain de 212 m². Il y a l’École Maternelle Marie Fayet et l’École Élémentaire d’Bardou A Maffre de Baugé à moins de 10 minutes à pied et une structure d’accueil pour les tout-petits. Niveau transports en commun, on trouve trois gares (Marseillan Plage, Agde et Vias) à moins de 10 minutes en voiture. L’autoroute A9 est accessible à 9 km. Il y a des boulangeries, des commerces, un supermarché, deux poissonneries et quatre épiceries à quelques minutes de la propriété. Enfin, le marché Centre-Ville a lieu tous les mardis matin.Il est à vendre pour la somme de 102 000 €. Prenez contact avec Mickaël MARTINEZ ((Numéro supprimé)) pour tout renseignement sur ce terrain ou sur les démarches à suivre. Faites de vos projets immobiliers une réalité avec Maisons France Confort Clermont-l’Hérault.
Marseillan
TERRAIN ET MAISONVENTE : maison F4 (78 m²) à MarseillanMAISON 4 PIÈCES NEUVE – PROCHE DE BÉZIERSEn vente : à 5 km de la mer Méditerranée et à deux pas de Béziers, nous sommes ravis de vous proposer à Marseillan (34340), cette maison de 4 pièces de 78 m² et de 212 m² de terrain. Elle offre trois chambres, une cuisine et une salle de bains.C’est une maison de 2 niveaux. Elle est neuve.L’École Maternelle Marie Fayet et l’École Élémentaire d’Bardou A Maffre de Baugé sont implantées à moins de 10 minutes à pied, tout comme une structure d’accueil pour la petite enfance. Niveau transports en commun, on trouve trois gares (Marseillan Plage, Agde et Vias) à moins de 10 minutes en voiture. L’autoroute A9 est accessible à 9 km. Il y a des boulangeries, des commerces, un supermarché, quatre épiceries et deux poissonneries à proximité. Ne manquez pas le marché Centre-Ville tous les mardis matin.Elle est proposée à l’achat pour 240 000 €.Prenez contact avec Mickaël MARTINEZ ((Numéro supprimé)) pour plus d’informations sur cette maison. Maisons France Confort Clermont-l’Hérault vous accompagne à toutes les étapes de votre projet et dans toutes vos démarches.
Marseillan
TERRAIN ET MAISONMaison T5 (98 m²) à vendre à MarseillanPROCHE DE BÉZIERS – MAISON 5 PIÈCES NEUVEÀ vendre sur le littoral méditerranéen et à deux pas de Béziers, nous vous proposons cette maison de 5 pièces de 98 m² et de 212 m² de terrain à Marseillan (34340).Cette maison comporte 2 niveaux. Son intérieur propose quatre chambres, une cuisine et une salle de bains. La maison est neuve.L’École Maternelle Marie Fayet et l’École Élémentaire d’Bardou A Maffre de Baugé se trouvent à moins de 10 minutes à pied, tout comme une structure d’accueil pour la petite enfance. Niveau transports en commun, il y a trois gares (Marseillan Plage, Agde et Vias) à moins de 10 minutes en voiture. L’autoroute A9 est accessible à 9 km. On trouve des boulangeries, des commerces, un supermarché, deux poissonneries et un bureau de poste dans les environs. Le marché Centre-Ville anime les environs chaque mardi matin.Elle est proposée à l’achat pour 270 000 €.Contactez Mickaël MARTINEZ (tél : (Numéro supprimé)) pour tout renseignement sur la maison, sur les modalités de vente ou sur les démarches à suivre. Maisons France Confort Clermont-l’Hérault est là pour vous accompagner à toutes les étapes de l’achat.
Marseillan
TERRAIN ET MAISONVENTE : maison T4 (81 m²) à MarseillanPROCHE DE BÉZIERS – MAISON 4 PIÈCES NEUVEÀ vendre : sur le littoral méditerranéen et à quelques kilomètres de Béziers, votre agence Maisons France Confort Clermont-l’Hérault est heureuse de vous présenter cette maison de 4 pièces de plain-pied de 81 m² et de 212 m² de terrain à Marseillan (34340). Son intérieur comporte trois chambres, une cuisine et une salle de bains.La maison est neuve.On trouve l’École Maternelle Marie Fayet et l’École Élémentaire d’Bardou A Maffre de Baugé à moins de 10 minutes à pied et une crèche. Côté transports en commun, il y a les gares Marseillan Plage, Agde et Vias à moins de 10 minutes en voiture. L’autoroute A9 est accessible à 9 km. On trouve des boulangeries, des commerces, un supermarché, deux poissonneries et deux boucheries-charcuteries à quelques minutes. Le marché Centre-Ville a lieu chaque mardi matin.Elle est à vendre pour la somme de 230 000 €.N’hésitez pas à prendre contact avec notre constructeur (Mickaël MARTINEZ : (Numéro supprimé)) pour toute question sur la maison. Maisons France Confort Clermont-l’Hérault est là pour vous accompagner dans toutes vos démarches.
Marseillan
TERRAIN ET MAISONMaison de 5 pièces (101 m²) en vente à MarseillanMAISON 5 PIÈCES NEUVE – PROCHE DE BÉZIERSEn vente à 5 km de la mer Méditerranée et à 26 km de Béziers, à Marseillan (34340), votre agence Maisons France Confort Clermont-l’Hérault est ravie de vous présenter cette maison de 5 pièces de plain-pied de 101 m². Conçue de plain-pied, elle compte quatre chambres, une cuisine et une salle de bains.Le terrain du bien s’étend sur 212 m².Cette maison est neuve.Il y a l’École Maternelle Marie Fayet et l’École Élémentaire d’Bardou A Maffre de Baugé à moins de 10 minutes à pied et une structure d’accueil pour les tout-petits. Niveau transports, on trouve les gares Marseillan Plage, Agde et Vias à moins de 10 minutes en voiture. L’autoroute A9 est accessible à 9 km. Il y a des boulangeries, des commerces, un supermarché, un bureau de poste et deux boucheries-charcuteries à proximité du logement. Le marché Centre-Ville anime les environs chaque mardi matin.Elle est à vendre pour la somme de 270 000 €.N’hésitez pas à prendre contact avec notre agence (MARTINEZ Mickaël : (Numéro supprimé)) pour toute question sur la maison, sur les démarches à suivre ou sur les modalités de vente.
Marseillan
TERRAIN ET MAISONVENTE d’une maison de 6 pièces (110 m²) à MarseillanMAISON 6 PIÈCES NEUVE – PROCHE DE BÉZIERSÀ vendre : localisée sur le littoral méditerranéen et à quelques kilomètres de Béziers, Maisons France Confort Clermont-l’Hérault vous présente à Marseillan (34340), cette maison de 6 pièces de 110 m² et de 212 m² de terrain.C’est une maison de 2 niveaux. Son intérieur compte quatre chambres, une cuisine et deux salles de bains. La maison est neuve.L’École Maternelle Marie Fayet et l’École Élémentaire d’Bardou A Maffre de Baugé sont implantées à moins de 10 minutes à pied, tout comme une crèche. Niveau transports, on trouve les gares Marseillan Plage, Agde et Vias à moins de 10 minutes en voiture. Il y a un accès à l’autoroute A9 à 9 km. Il y a des boulangeries, des commerces, un supermarché, quatre épiceries et un bureau de poste à quelques minutes du bien. Enfin, le marché Centre-Ville a lieu chaque mardi matin.Elle est à vendre pour la somme de 350 000 €.Prenez contact avec notre agence (MARTINEZ Mickaël : (Numéro supprimé)) pour obtenir de plus amples renseignements sur la maison, sur les modalités de vente ou sur les démarches à suivre. Maisons France Confort Clermont-l’Hérault vous accompagne dans tous vos projets immobiliers et à toutes les étapes de votre projet.
Marseillan
TERRAINFiche N°Id-TCT147724 : MARSEILLAN Fiche BC147724 : Marseillan, secteur Les mougeres, Terrain constructible – – Equipements annexes : – chauffage : Aucun – Plus d’informations disponibles sur demande… – Mentions légales : Proposé à la vente à 313000 Euros (honoraires à la charge du vendeur) – Reseau Immo-Diffusion Marseillan – Pour plus d’informations, contactez notre secrétariat au (Numéro supprimé) (Appel gratuit ou prix d’une communication locale)
Bessan
TERRAINFiche N°Id-TCT177902 : BESSAN Fiche BC177902 : Bessan, secteur Centre ville, Terrain constructible hors lotissement d’environ 260 m2 – Vue : Jardin – Construction 2025 – Equipements annexes : jardin – – chauffage : Aucun – Plus d’informations disponibles sur demande… – Mentions légales : Proposé à la vente à 94900 Euros (honoraires à la charge du vendeur) – Affaire suivie par Mr Laurent MENDEZ (Agent immobilier – Responsable) – Reseau Immo-Diffusion Bessan – Pour plus d’informations, contactez notre secrétariat au (Numéro supprimé) (Appel gratuit ou prix d’une communication locale) – Les informations sur les risques auxquels ce bien est exposé sont disponibles sur le site Géorisques : www.georisques.gouv.fr
L’actualité immobilière à Agde
27/11/2023
02/11/2023
30/10/2023
20/10/2023
16/10/2023
16/10/2023