Maison à construire à Aspiran (34800)
Images
Description
PROJET DE CONSTRUCTION - Maison de 4 pièces (80 m²) à Aspiran
MAISON 3 PIÈCES - PROCHE DE BÉZIERS
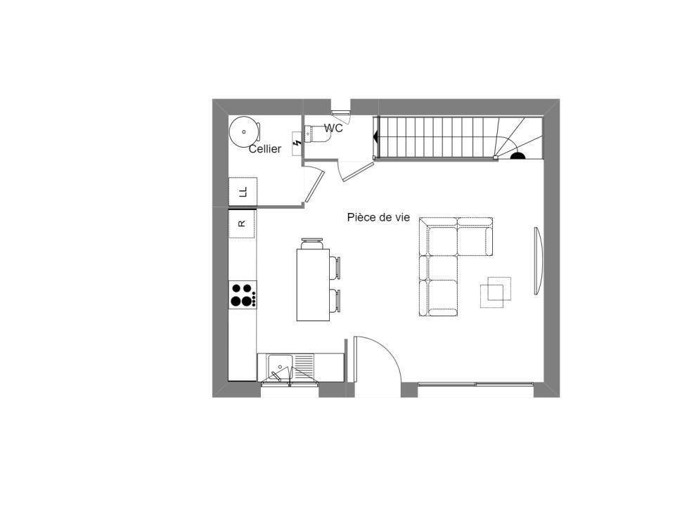
En vente à 29 km de la mer Méditerranée et à deux pas de Béziers, Maisons France Confort Béziers vous propose cette maison de 4 pièces de 69 m² et de 285 m² de terrain à Aspiran (34800).
Cette maison possède 2 niveaux. Elle comporte deux chambres, une cuisine, un cellier et une salle de bains.
(Carrelage inclus dans toutes les pièces / Raccordements inclus).
L'École Primaire Jean de la Fontaine est implantée à moins de 10 minutes à pied, tout comme une crèche. L'autoroute A75 est accessible à 5 km. Il y a une bibliothèque, un tennis, une boulangerie, une boucherie-charcuterie et deux épiceries à quelques minutes à peine.
Son prix de vente est de 227 000 €.
Pour plus d'information contacter (Anthony BALLESTER : (Numéro supprimé)) Maisons France Confort Béziers pour échanger sur votre projet et réaliser une étude gratuite. (Plan personnalisable). Tous nos ouvrages sont réalisés sur-mesure en fonction de vos attentes et de nos échanges avec vous ainsi que dans le respect de la règlementation RE 2020. Ce projet comporte les garanties suivantes: Contrat de construction CCMI. Dommage/Ouvrage. RC Garantie décennale. Parfaite achèvement. Etude de sol G2. Prix et délais convenu. Garantie de livraison. Garantie financière Pour votre tranquillité nous nous occupons de toutes les formalités administratives.
Logement susceptibles de vous intéresser
Nous vous proposons de découvrir aussi cette sélection de logements situés à moins de 10km de Aspiran et qui seraient susceptibles de vous intéresser.
Paulhan
TERRAIN ET MAISONNos architectes ont conçu ce modèle pour vous. Cette maison résolument contemporaine, saura vous séduire par son architecture innovante et sa terrasse couverte qui lui donnera un design unique. Elle possède trois espaces bien distincts avec un espace jour de 45 m² baignant de lumière grâce à ses 4 baies vitrées. Un espace nuit avec 2 belles chambres, et une salle de bains confortable et un troisième espace indépendant avec sa suite parentale de 23 m². Le modèle Lumière est à construire dans le département du Tarn, l’Aude, l’Hérault, la Haute-Garonne ainsi que les Pyrénées Orientales par Oc résidences, votre constructeur sur mesure en Occitanie.
Paulhan
TERRAIN ET MAISONOc résidences, constructeur de maisons individuelles vous propose cette maison neuve à construire dans le département du Tarn, l’Aude, l’Hérault, la Haute-Garonne ainsi que les Pyrénées Orientales. Le modèle Matinale, résolument contemporain et fonctionnel, se compose d’une grande pièce à vivre traversante de 43 m² avec cuisine ouverte. Le coté nuit s’articule autour de 3 grandes chambres avec placard, une grande Salle de Bains de 7,5 m² avec baignoire, double vasque et un grand espace douche. Son garage de 24 m² vous permettra de stationner votre voiture et de créer un espace de rangement pour votre quotidien. Oc Résidences est votre constructeur sur mesure en Occitanie.
Paulhan
TERRAIN ET MAISONLa Point du Jour 98 m² est le plain-pied idéal pour toute la famille. La villa se compose d’un vaste et lumineux Salon/Séjour doté d’une grande baie vitrée en 3 mètres de large. Son cellier de plus de 5m² améliorera votre confort et votre aménagement intérieur. Le coté nuit s’articule autour de 4 chambres avec placard, un WC indépendant et une grande salle de bains. Cette maison, d’architecture sobre et élégante, est à construire dans le département du Tarn, l’Aude, l’Hérault, la Haute-Garonne ainsi que les Pyrénées Orientales par Oc résidences, votre constructeur sur mesure en Occitanie.
Paulhan
TERRAINOc résidences Constructeur de Maison Individuelle depuis 1983, vous propose avec son partenaire foncier, une parcelle de 405 m² située sur la commune de Paulhan. Ce terrain offre une opportunité unique de construire votre maison idéale dans un quartier résidentiel. Vous pourrez profiter de toutes les commodités qu’offre cette charmante commune. Situé à proximité immédiate de l’A75, facilitant ainsi les déplacements.Elle bénéficie d’une situation géographique idéale, offrant un accès rapide aux principales villes de la région tout en conservant le charme et la tranquillité de la vie à la campagne.Prenez contact au plus vite avec l’équipe OC RESIDENCES BEZIERS AU (Numéro supprimé) pour la réalisation de votre projet de construction.
Paulhan
TERRAINVENTE : terrain de 405 m² à PaulhanIDÉALEMENT SITUÉ – PROCHE DE BÉZIERSÀ Paulhan (34230) en vente à 26 km de la côte méditerranéenne et à 28 km de Béziers, découvrez ce terrain de 405 m². Dans un secteur convoité, le terrain idéalement situé est proche des écoles et des commerces. Le Collège Emmanuel Maffre-Baugé, l’École Maternelle Françoise Dolto et l’École Élémentaire Arc En Ciel sont implantés à moins de 10 minutes à pied, tout comme une structure d’accueil pour les enfants en bas âge. Il y a un accès à l’autoroute A75 à 2 km. Il y a une bibliothèque, un bassin de natation, un tennis, quatre commerces, des boulangeries, trois épiceries et un bureau de poste à proximité du terrain. Ne manquez pas le marché Boulevard de la Liberté tous les jeudis matin.Son prix de vente est de 104 900 €. Contactez Hervé MALDONADO ((Numéro supprimé)) pour obtenir de plus amples renseignements sur ce terrain, sur les modalités de vente ou sur les démarches à suivre.
Paulhan
TERRAIN ET MAISONMaison de 3 pièces (71 m²) en vente à PaulhanIDÉALEMENT SITUÉE – MAISON 3 PIÈCES NEUVEÀ vendre : à 26 km de la mer Méditerranée et à quelques kilomètres de Béziers, nous vous présentons, idéalement située dans Paulhan (34230), cette maison de 3 pièces de plain-pied de 71 m².Conçue de plain-pied, elle offre deux chambres, une cuisine et une salle de bains. La maison est neuve.Le terrain de la propriété s’étend sur 405 m².Cette maison se situe dans un secteur recherché. Le Collège Emmanuel Maffre-Baugé, l’École Maternelle Françoise Dolto et l’École Élémentaire Arc En Ciel se trouvent à moins de 10 minutes à pied, tout comme une structure d’accueil pour la petite enfance. On trouve un accès à l’autoroute A75 à 2 km. Il y a une bibliothèque, un bassin de natation, un tennis, quatre commerces, des boulangeries, un bureau de poste et trois épiceries à quelques minutes. Le marché Boulevard de la Liberté a lieu chaque jeudi matin.Elle est proposée à l’achat pour 218 000 €.N’hésitez pas à prendre contact avec notre agence (Hervé MALDONADO : (Numéro supprimé)) pour plus de renseignements sur la maison ou sur les modalités de vente.
Paulhan
TERRAIN ET MAISONMaison de 4 pièces (85 m²) en vente à PaulhanIDÉALEMENT SITUÉE – MAISON 4 PIÈCES NEUVEÀ vendre à 26 km de la côte méditerranéenne et à quelques kilomètres de Béziers, idéalement située dans Paulhan (34230), ayez le coup de coeur pour cette maison de 4 pièces de plain-pied de 85 m² et de 405 m² de terrain.Conçue de plain-pied, elle se divise en trois chambres, une cuisine et une salle de bains. Cette maison est neuve.La maison se trouve dans un quartier recherché. Il y a le Collège Emmanuel Maffre-Baugé, l’École Maternelle Françoise Dolto et l’École Élémentaire Arc En Ciel à moins de 10 minutes à pied et une crèche. On trouve un accès à l’autoroute A75 à 2 km. On trouve une bibliothèque, un bassin de natation, un tennis, quatre commerces, des boulangeries, un bureau de poste et trois épiceries à proximité. Enfin, le marché Boulevard de la Liberté a lieu chaque jeudi matin.Elle est à vendre pour la somme de 242 000 €.Prenez contact avec Hervé MALDONADO ((Numéro supprimé)) pour plus de renseignements sur la maison. Maisons Balency Pézenas est là pour vous accompagner dans toutes vos démarches.
Paulhan
TERRAIN ET MAISONVENTE : maison T4 (78 m²) à PaulhanIDÉALEMENT SITUÉE – MAISON 4 PIÈCES NEUVEÀ vendre : à 26 km de la côte méditerranéenne et à deux pas de Béziers, venez découvrir cette maison de 4 pièces de 78 m² et de 405 m² de terrain idéalement située dans Paulhan (34230).Il s’agit d’une maison de 2 niveaux. Son intérieur comporte trois chambres, une cuisine et une salle de bains. La maison est neuve.Cette maison se situe dans un quartier prisé. Le Collège Emmanuel Maffre-Baugé, l’École Maternelle Françoise Dolto et l’École Élémentaire Arc En Ciel sont implantés à moins de 10 minutes à pied, tout comme une structure d’accueil pour les enfants en bas âge. Il y a un accès à l’autoroute A75 à 2 km. On trouve une bibliothèque, un bassin de natation, un tennis, quatre commerces, des boulangeries, trois épiceries et un bureau de poste dans les environs. Ne manquez pas le marché Boulevard de la Liberté chaque jeudi matin.Son prix de vente est de 242 000 €.Contactez notre agence (Hervé MALDONADO : (Numéro supprimé)) pour obtenir de plus amples renseignements sur le bien, sur les modalités de vente ou sur les démarches à suivre. Maisons Balency Pézenas vous accompagne à toutes les étapes de votre projet et dans tous vos projets immobiliers.
Paulhan
TERRAIN ET MAISONVENTE : maison F5 (96 m²) à PaulhanIDÉALEMENT SITUÉE – MAISON 5 PIÈCES NEUVEÀ vendre à 26 km de la mer Méditerranée et à deux pas de Béziers, nous vous présentons cette maison de 5 pièces de 96 m² idéalement située dans Paulhan (34230).C’est une maison de 2 niveaux. Elle propose quatre chambres, une cuisine et une salle de bains. La maison est neuve.Le terrain du bien s’étend sur 405 m².La propriété se trouve dans un quartier attractif. Le Collège Emmanuel Maffre-Baugé, l’École Maternelle Françoise Dolto et l’École Élémentaire Arc En Ciel sont implantés à moins de 10 minutes à pied, tout comme une crèche. On trouve un accès à l’autoroute A75 à 2 km. On trouve une bibliothèque, un bassin de natation, un tennis, quatre commerces, des boulangeries, trois épiceries et un bureau de poste à proximité. Enfin, le marché Boulevard de la Liberté anime les environs chaque jeudi matin.Elle est proposée à l’achat pour 283 000 €.Contactez notre agence (Hervé MALDONADO : (Numéro supprimé)) pour tout renseignement sur la maison ou sur les modalités de vente. Concrétisez vos projets immobiliers avec Maisons Balency Pézenas.
L’actualité immobilière à Aspiran
27/11/2023
02/11/2023
30/10/2023
20/10/2023
16/10/2023
16/10/2023