Maison à construire à Bédarieux (34600)
Images
Description
PROJET DE CONSTRUCTION - Maison de 3 pièces (70 m²) à Bédarieux
IDÉALEMENT SITUÉE - MAISON 3 PIÈCES
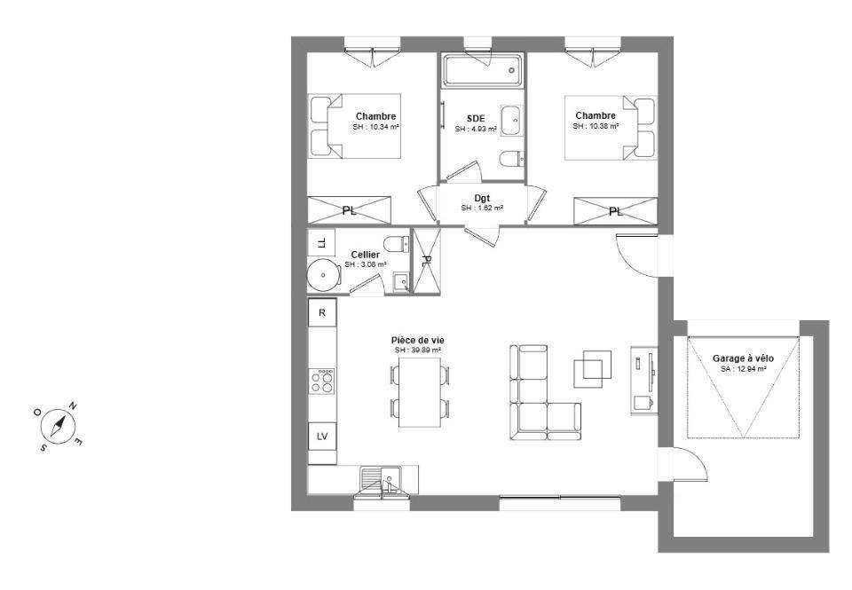
À 43 km de la mer Méditerranée et à 30 km de Béziers, en vente idéalement située dans Bédarieux (34600), nous vous présentons cette maison de 3 pièces de plain-pied de 70 m².
Son intérieur compte deux chambres, une cuisine, un cellier et une salle de bains + GARAGE.
(Carrelage inclus dans toutes les pièces / Raccordements inclus).
Le terrain du bien est de 317 m².
Cette maison est située dans un secteur convoité. Des écoles de tous niveaux (de la maternelle au lycée) sont implantées à moins de 10 minutes à pied, tout comme deux structures d'accueil pour les tout-petits. Niveau transports, on trouve deux gares (Bédarieux et Le Bousquet-d'Orb) à moins de 10 minutes en voiture. On trouve un accès à l'autoroute A75 à 17 km. Il y a une bibliothèque, un tennis, une boulangerie, trois commerces et une boucherie-charcuterie dans les environs. Ne manquez pas le marché Centre-Ville tous les lundis.
Elle est à vendre pour la somme de 186 000 €.
Pour plus d'information contacter (Anthony BALLESTER : (Numéro supprimé)) Maisons France Confort Béziers pour échanger sur votre projet et réaliser une étude gratuite. (Plan personnalisable). Tous nos ouvrages sont réalisés sur-mesure en fonction de vos attentes et de nos échanges avec vous ainsi que dans le respect de la règlementation RE 2020. Ce projet comporte les garanties suivantes: Contrat de construction CCMI. Dommage/Ouvrage. RC Garantie décennale. Parfaite achèvement. Etude de sol G2. Prix et délais convenu. Garantie de livraison. Garantie financière Pour votre tranquillité nous nous occupons de toutes les formalités administratives.
Logement susceptibles de vous intéresser
Nous vous proposons de découvrir aussi cette sélection de logements situés à moins de 10km de Bédarieux et qui seraient susceptibles de vous intéresser.
Hérépian
TERRAINTerrain de 900 m² en vente à HérépianPROCHE DE BÉZIERSÀ 43 km de la mer Méditerranée et à quelques kilomètres de Béziers à Hérépian (34600), grand terrain. Réalisez-y votre projet de construction. Il y a une école primaire dans le quartier. Niveau transports, on trouve la gare Bédarieux à moins de 10 minutes en voiture. Il y a une bibliothèque, un tennis, deux boulangeries, des commerces, une boucherie-charcuterie, une épicerie et un bureau de poste à proximité.Son prix de vente est de 95 000 €. Prenez contact avec notre agence MAISONS DE MANON BEZIERS (BALLESTER Anthony : (Numéro supprimé)) pour toute information sur ce terrain. Maisons De Manon Béziers vous accompagne dans tous vos projets immobiliers et à toutes les étapes de l’achat.Annonce proposée par un Agent Commercial Partenaire.
Hérépian
TERRAIN ET MAISONPROJET DE CONSTRUCTION – Hérépian : maison F3 (71 m²) PROCHE DE BÉZIERS – MAISON 3 PIÈCESÀ vendre : située à 43 km de la mer Méditerranée et à deux pas de Béziers, Maisons de Manon Béziers vous présente cette maison de 3 pièces de plain-pied de 71 m² et de 900 m² de terrain à Hérépian (34600).Elle est composée de deux chambres, d’une cuisine, d’un cellier, d’une salle de bains et d’un garage.(Carrelage inclus dans toutes les pièces / Raccordements inclus).Une école primaire est implantée dans le quartier. Niveau transports, il y a la gare Bédarieux à moins de 10 minutes en voiture. On trouve une bibliothèque, un tennis, deux boulangeries, des commerces, un bureau de poste, une épicerie et une boucherie-charcuterie dans les environs.Elle est à vendre pour la somme de 225 000 €.Pour plus d’information contacter (Anthony BALLESTER : (Numéro supprimé)) Maisons de Manon Béziers pour échanger sur votre projet et réaliser une étude gratuite. (Plan personnalisable). Tous nos ouvrages sont réalisés sur-mesure en fonction de vos attentes et de nos échanges avec vous ainsi que dans le respect de la règlementation RE 2020. Ce projet comporte les garanties suivantes: Contrat de construction CCMI. Dommage/Ouvrage. RC Garantie décennale. Parfaite achèvement. Etude de sol G2. Prix et délais convenu. Garantie financière Pour votre tranquillité nous nous occupons de toutes les formalités administratives.
Hérépian
TERRAIN ET MAISONPROJET DE CONSTRUCTION – Maison de 4 pièces (85 m²) à HérépianMAISON 4 PIÈCES – PROCHE DE BÉZIERSÀ 43 km de la mer Méditerranée et à deux pas de Béziers, nous vous présentons cette maison de 4 pièces de plain-pied de 85 m² et de 900 m² de terrain à vendre à Hérépian (34600). Elle est composée de trois chambres dont une suite parentale, d’une cuisine et de deux salles de bains. (Possibilité de faire un cellier et un garage)(Carrelage inclus dans toutes les pièces / Raccordements inclus).Il y a une école primaire dans le quartier. Niveau transports en commun, on trouve la gare Bédarieux à moins de 10 minutes en voiture. Il y a une bibliothèque, un tennis, deux boulangeries, des commerces, un bureau de poste, une épicerie et une boucherie-charcuterie dans les environs.Son prix de vente est de 234 000 €.Pour plus d’information contacter (Anthony BALLESTER : (Numéro supprimé)) Maisons de Manon Béziers pour échanger sur votre projet et réaliser une étude gratuite. (Plan personnalisable). Tous nos ouvrages sont réalisés sur-mesure en fonction de vos attentes et de nos échanges avec vous ainsi que dans le respect de la règlementation RE 2020. Ce projet comporte les garanties suivantes: Contrat de construction CCMI. Dommage/Ouvrage. RC Garantie décennale. Parfaite achèvement. Etude de sol G2. Prix et délais convenu. Garantie financière Pour votre tranquillité nous nous occupons de toutes les formalités administratives.
Hérépian
TERRAIN ET MAISONPROJET DE CONSTRUCTION – Maison de 5 pièces (110 m²) à HérépianPROCHE DE BÉZIERS – MAISON 5 PIÈCESÀ 43 km de la mer Méditerranée et à deux pas de Béziers, nous sommes heureux de vous proposer cette maison de 5 pièces de plain-pied de 110 m² en vente à Hérépian (34600).Conçue de plain-pied, elle dispose de quatre chambres dont une suite parentale, d’une cuisine, d’un cellier, de deux salles de bains et d’un garage.(Carrelage inclus dans toutes les pièces / Raccordements inclus).Le terrain de la propriété s’étend sur 900 m².Une école primaire est implantée dans le quartier. Niveau transports, on trouve la gare Bédarieux à moins de 10 minutes en voiture. Il y a une bibliothèque, un tennis, deux boulangeries, des commerces, une boucherie-charcuterie, un bureau de poste et une épicerie à proximité du bien.Elle est à vendre pour la somme de 274 000 €.Pour plus d’information contacter (Anthony BALLESTER : (Numéro supprimé)) Maisons de Manon Béziers pour échanger sur votre projet et réaliser une étude gratuite. (Plan personnalisable). Tous nos ouvrages sont réalisés sur-mesure en fonction de vos attentes et de nos échanges avec vous ainsi que dans le respect de la règlementation RE 2020. Ce projet comporte les garanties suivantes: Contrat de construction CCMI. Dommage/Ouvrage. RC Garantie décennale. Parfaite achèvement. Etude de sol G2. Prix et délais convenu. Garantie financière Pour votre tranquillité nous nous occupons de toutes les formalités administratives.
Hérépian
TERRAINTerrain de 900 m² en vente à HérépianPROCHE DE BÉZIERSÀ 43 km de la mer Méditerranée et à quelques kilomètres de Béziers à Hérépian (34600), grand terrain. Réalisez-y votre projet de construction. Il y a une école primaire dans le quartier. Niveau transports, on trouve la gare Bédarieux à moins de 10 minutes en voiture. Il y a une bibliothèque, un tennis, deux boulangeries, des commerces, une boucherie-charcuterie, une épicerie et un bureau de poste à proximité.Son prix de vente est de 95 000 €. Prenez contact avec notre agence MAISONS FRANCE CONFORT BEZIERS (BALLESTER Anthony : (Numéro supprimé)) pour toute information sur ce terrain. Maisons France Confort Béziers vous accompagne dans tous vos projets immobiliers et à toutes les étapes de l’achat.Annonce proposée par un Agent Commercial Partenaire.
Hérépian
TERRAIN ET MAISONPROJET DE CONSTRUCTION – Maison F4 (85 m²) à HérépianPROCHE DE BÉZIERS – MAISON 4 PIÈCESÀ vendre : localisée à 43 km de la mer Méditerranée et à deux pas de Béziers, nous sommes ravis de vous proposer cette maison de 4 pièces de plain-pied de 85 m² et de 900 m² de terrain à Hérépian (34600). Elle comporte trois chambres dont une suite parentale, une cuisine et deux salles de bains. (possibilité de faire un cellier et un garage EN SUP)(Carrelage inclus dans toutes les pièces / Raccordements inclus).Il y a une école primaire dans le quartier. Niveau transports en commun, on trouve la gare Bédarieux à moins de 10 minutes en voiture. Il y a une bibliothèque, un tennis, deux boulangeries, des commerces, une épicerie, un bureau de poste et une boucherie-charcuterie à quelques minutes.Elle est proposée à l’achat pour 235 000 €.Pour plus d’information contacter (Anthony BALLESTER : (Numéro supprimé)) Maisons France Confort Béziers pour échanger sur votre projet et réaliser une étude gratuite. (Plan personnalisable). Tous nos ouvrages sont réalisés sur-mesure en fonction de vos attentes et de nos échanges avec vous ainsi que dans le respect de la règlementation RE 2020. Ce projet comporte les garanties suivantes: Contrat de construction CCMI. Dommage/Ouvrage. RC Garantie décennale. Parfaite achèvement. Etude de sol G2. Prix et délais convenu. Garantie financière Pour votre tranquillité nous nous occupons de toutes les formalités administratives.
Hérépian
TERRAIN ET MAISONPROJET DE CONSTRUCTION – Hérépian : maison T3 (70 m²) PROCHE DE BÉZIERS – MAISON 3 PIÈCESÀ vendre : localisée à 43 km de la côte méditerranéenne et à quelques kilomètres de Béziers, notre agence Maisons France Confort Béziers est ravie de vous proposer cette maison de 3 pièces de plain-pied de 70 m² et de 900 m² de terrain à Hérépian (34600). Elle comporte deux chambres, une cuisine, un cellier, une salle de bains et un garage.(Carrelage inclus dans toutes les pièces / Raccordements inclus).Il y a une école primaire dans le quartier. Niveau transports, on trouve la gare Bédarieux à moins de 10 minutes en voiture. Il y a une bibliothèque, un tennis, deux boulangeries, des commerces, un bureau de poste, une boucherie-charcuterie et une épicerie à proximité du bien.Son prix de vente est de 227 000 €.Pour plus d’information contacter (Anthony BALLESTER : (Numéro supprimé)) Maisons France Confort Béziers pour échanger sur votre projet et réaliser une étude gratuite. (Plan personnalisable). Tous nos ouvrages sont réalisés sur-mesure en fonction de vos attentes et de nos échanges avec vous ainsi que dans le respect de la règlementation RE 2020. Ce projet comporte les garanties suivantes: Contrat de construction CCMI. Dommage/Ouvrage. RC Garantie décennale. Parfaite achèvement. Etude de sol G2. Prix et délais convenu. Garantie financière Pour votre tranquillité nous nous occupons de toutes les formalités administratives.
Hérépian
TERRAIN ET MAISONPROJET DE CONSTRUCTION – Maison T3 (105 m²) à HérépianMAISON 4 PIÈCES – PROCHE DE BÉZIERSEn vente : localisée à 43 km de la mer Méditerranée et à 28 km de Béziers, à Hérépian (34600), nous vous proposons cette maison de 4 pièces de plain-pied de 105 m².Son intérieur compte TROIS CHAMBRE POSSIBILITE DE FAIRE UNE 4EME CHAMBRE, une cuisine, un cellier, deux salles de bains et un garage. (Carrelage inclus dans toutes les pièces / Raccordements inclus).Le terrain de la propriété est de 900 m².On trouve une école primaire dans le quartier. Niveau transports en commun, il y a la gare Bédarieux à moins de 10 minutes en voiture. On trouve une bibliothèque, un tennis, deux boulangeries, des commerces, un bureau de poste, une épicerie et une boucherie-charcuterie à proximité.Elle est à vendre pour la somme de 285 000 €.Pour plus d’information contacter (Anthony BALLESTER : (Numéro supprimé)) Maisons France Confort Béziers pour échanger sur votre projet et réaliser une étude gratuite. (Plan personnalisable). Tous nos ouvrages sont réalisés sur-mesure en fonction de vos attentes et de nos échanges avec vous ainsi que dans le respect de la règlementation RE 2020. Ce projet comporte les garanties suivantes: Contrat de construction CCMI. Dommage/Ouvrage. RC Garantie décennale. Parfaite achèvement. Etude de sol G2. Prix et délais convenu. Garantie financière Pour votre tranquillité nous nous occupons de toutes les formalités administratives.
Bédarieux
TERRAINBédarieux : terrain de 434 m² à vendreIDÉALEMENT SITUÉ – PROCHE DE BÉZIERSEn vente à 43 km de la côte méditerranéenne et à deux pas de Béziers à Bédarieux (34600), terrain de 434 m². Dans un secteur recherché, ce terrain idéalement situé est proche des écoles et des commerces. Tous les types d’établissements scolaires (de la maternelle au lycée) se trouvent à moins de 10 minutes à pied, tout comme deux crèches. Niveau transports, il y a les gares Bédarieux et Le Bousquet-d’Orb à moins de 10 minutes en voiture. Il y a un accès à l’autoroute A75 à 17 km. On trouve une bibliothèque, un tennis, une boulangerie, trois commerces et une boucherie-charcuterie à proximité du bien. Le marché Centre-Ville anime le quartier tous les lundis.Il est proposé à l’achat pour 71 900 €. N’hésitez pas à prendre contact avec Mickaël MARTINEZ ((Numéro supprimé)) pour toute information sur ce terrain ou sur les modalités de vente.
L’actualité immobilière à Bédarieux
27/11/2023
02/11/2023
30/10/2023
20/10/2023
16/10/2023
16/10/2023