Maison à construire à Bédarieux (34600)
Images
Description
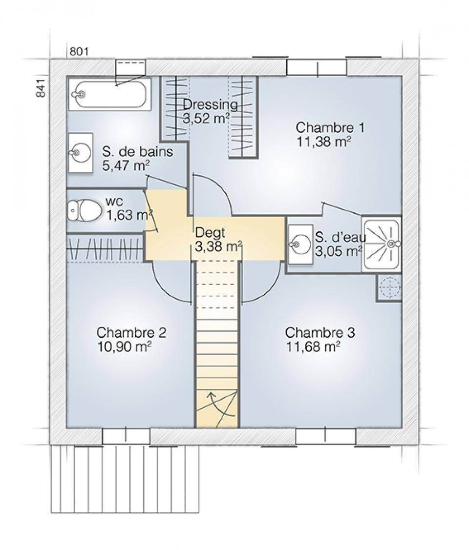
Bédarieux : maison T6 (95 m²) à vendre
IDÉALEMENT SITUÉE - MAISON 6 PIÈCES NEUVE
En vente à 43 km de la mer Méditerranée et à deux pas de Béziers, nous sommes ravis de vous proposer cette maison de 6 pièces de 95 m² et de 372 m² de terrain idéalement située dans Bédarieux (34600). Son intérieur propose trois chambres, une cuisine et deux salles de bains.
Il s'agit d'une maison de 2 niveaux. Elle est neuve.
Cette maison se trouve dans un secteur attractif. Il y a tous les types d'écoles (maternelle, élémentaire et secondaire) à moins de 10 minutes à pied, tout comme deux structures d'accueil pour la petite enfance. Niveau transports en commun, on trouve les gares Bédarieux et Le Bousquet-d'Orb à moins de 10 minutes en voiture. Il y a un accès à l'autoroute A75 à 17 km. Il y a une bibliothèque, un tennis, une boulangerie, trois commerces et une boucherie-charcuterie à quelques minutes à peine. Le marché Centre-Ville anime le quartier chaque lundi.
Elle est à vendre pour la somme de 252 000 €.
Contactez notre agence (MALDONADO Hervé : (Numéro supprimé)) pour obtenir de plus amples renseignements sur la maison. Donnez vie à vos projets immobiliers avec Maisons Balency Pézenas.
Logement susceptibles de vous intéresser
Nous vous proposons de découvrir aussi cette sélection de logements situés à moins de 10km de Bédarieux et qui seraient susceptibles de vous intéresser.
Bédarieux
TERRAIN ET MAISONVENTE d’une maison F4 (82 m²) à BédarieuxIDÉALEMENT SITUÉE – MAISON 4 PIÈCES NEUVEEn vente : à 43 km de la mer Méditerranée et à quelques kilomètres de Béziers, ayez le coup de coeur pour, idéalement située dans Bédarieux (34600), cette maison de 4 pièces de 82 m² et de 372 m² de terrain.Il s’agit d’une maison de 2 niveaux. Elle propose trois chambres, une cuisine et une salle de bains. La maison est neuve.Cette maison est située dans un quartier prisé. On trouve tous les types d’établissements scolaires à moins de 10 minutes à pied, tout comme deux crèches. Niveau transports, il y a deux gares (Bédarieux et Le Bousquet-d’Orb) à moins de 10 minutes en voiture. Il y a un accès à l’autoroute A75 à 17 km. On trouve une bibliothèque, un tennis, une boulangerie, trois commerces et une boucherie-charcuterie dans les environs. Le marché Centre-Ville a lieu chaque lundi.Son prix de vente est de 217 000 €.Contactez notre agence (MALDONADO Hervé : (Numéro supprimé)) pour plus de renseignements sur la maison ou sur les modalités de vente.
Bédarieux
TERRAIN ET MAISONBédarieux : maison de 5 pièces (81 m²) en venteIDÉALEMENT SITUÉE – MAISON 5 PIÈCES NEUVEEn vente : à 43 km de la côte méditerranéenne et à deux pas de Béziers, nous vous proposons cette maison de 5 pièces de 81 m² idéalement située dans Bédarieux (34600). Elle se divise en trois chambres, une cuisine et une salle de bains.Le terrain de cette maison est de 372 m².Il s’agit d’une maison de 2 niveaux. Elle est neuve.Cette maison se situe dans un secteur prisé. Il y a des établissements scolaires du primaire et du secondaire à moins de 10 minutes à pied, tout comme deux structures d’accueil pour les tout-petits. Côté transports, on trouve les gares Bédarieux et Le Bousquet-d’Orb à moins de 10 minutes en voiture. On trouve un accès à l’autoroute A75 à 17 km. Il y a une bibliothèque, un tennis, une boulangerie, trois commerces et une boucherie-charcuterie à proximité. Ne manquez pas le marché Centre-Ville tous les lundis.Son prix de vente est de 239 500 €.Contactez notre agence (Hervé MALDONADO : (Numéro supprimé)) pour toute information sur la maison, sur les modalités de vente ou sur les démarches à suivre. Maisons Balency Pézenas vous accompagne à toutes les étapes de l’achat et dans tous vos projets immobiliers.
Bédarieux
TERRAIN ET MAISONBédarieux : maison T4 (78 m²) à vendreIDÉALEMENT SITUÉE – MAISON 4 PIÈCES NEUVEEn vente : à 43 km de la côte méditerranéenne et à quelques kilomètres de Béziers, idéalement située dans Bédarieux (34600), votre agence Maisons Balency Pézenas est ravie de vous proposer cette maison de 4 pièces de 78 m².Cette maison comporte 2 niveaux. Elle propose trois chambres, une cuisine et une salle de bains. La maison est neuve.Le terrain du bien s’étend sur 372 m².La maison est située dans un quartier recherché. Des écoles de tous niveaux se trouvent à moins de 10 minutes à pied, tout comme deux crèches. Côté transports, il y a les gares Bédarieux et Le Bousquet-d’Orb à moins de 10 minutes en voiture. Il y a un accès à l’autoroute A75 à 17 km. On trouve une bibliothèque, un tennis, une boulangerie, trois commerces et une boucherie-charcuterie dans les environs. Ne manquez pas le marché Centre-Ville chaque lundi.Elle est à vendre pour la somme de 204 000 €.N’hésitez pas à prendre contact avec notre constructeur (Hervé MALDONADO : (Numéro supprimé)) pour toute question sur la maison, sur les démarches à suivre et sur les modalités de vente.
Bédarieux
TERRAIN ET MAISONVENTE d’une maison de 5 pièces (95 m²) à BédarieuxIDÉALEMENT SITUÉE – MAISON 5 PIÈCES NEUVEÀ vendre à 43 km de la mer Méditerranée et à quelques kilomètres de Béziers, découvrez cette maison de 5 pièces de 95 m² idéalement située dans Bédarieux (34600).C’est une maison de 2 niveaux. Son intérieur est composé de trois chambres, d’une cuisine et d’une salle de bains. Cette maison est neuve.Le terrain de la propriété est de 372 m².La maison se situe dans un secteur convoité. Tous les types d’établissements scolaires (maternelle, élémentaire et secondaire) se trouvent à moins de 10 minutes à pied, tout comme deux crèches. Niveau transports, il y a deux gares (Bédarieux et Le Bousquet-d’Orb) à moins de 10 minutes en voiture. L’autoroute A75 est accessible à 17 km. On trouve une bibliothèque, un tennis, une boulangerie, trois commerces et une boucherie-charcuterie à quelques minutes. Ne manquez pas le marché Centre-Ville tous les lundis.Elle est à vendre pour la somme de 263 000 €.N’hésitez pas à prendre contact avec Hervé MALDONADO (tél : (Numéro supprimé)) pour toute question sur la maison ou sur les démarches à suivre. Maisons Balency Pézenas est là pour vous accompagner dans tous vos projets immobiliers.
Bédarieux
TERRAIN ET MAISONMaison F6 (83 m²) en vente à BédarieuxIDÉALEMENT SITUÉE – MAISON 6 PIÈCES NEUVEÀ vendre : localisée à 43 km de la côte méditerranéenne et à 30 km de Béziers, nous sommes ravis de vous présenter cette maison de 6 pièces de plain-pied de 83 m² et de 372 m² de terrain, idéalement située dans Bédarieux (34600). Elle compte trois chambres, une cuisine et une salle de bains.La maison est neuve.La maison se trouve dans un secteur prisé. Il y a des établissements scolaires (de la maternelle au lycée) à moins de 10 minutes à pied, tout comme deux structures d’accueil pour les tout-petits. Niveau transports, on trouve deux gares (Bédarieux et Le Bousquet-d’Orb) à moins de 10 minutes en voiture. L’autoroute A75 est accessible à 17 km. Il y a une bibliothèque, un tennis, une boulangerie, trois commerces et une boucherie-charcuterie à proximité du logement. Ne manquez pas le marché Centre-Ville chaque lundi.Son prix de vente est de 219 000 €.N’hésitez pas à prendre contact avec notre agence (Hervé MALDONADO : (Numéro supprimé)) pour toute question sur la maison ou sur les démarches à suivre. Concrétisez vos projets immobiliers avec Maisons Balency Pézenas.
Bédarieux
TERRAIN ET MAISONVENTE d’une maison de 3 pièces (71 m²) à BédarieuxIDÉALEMENT SITUÉE – MAISON 3 PIÈCES NEUVEÀ vendre : située à 43 km de la mer Méditerranée et à deux pas de Béziers, nous vous présentons cette maison de 3 pièces de plain-pied de 71 m², idéalement située dans Bédarieux (34600). Son intérieur compte deux chambres, une cuisine et une salle de bains.Le terrain du bien est de 372 m².Cette maison est neuve.La maison se trouve dans un quartier prisé. Des établissements scolaires (de la maternelle au lycée) sont implantés à moins de 10 minutes à pied, tout comme deux structures d’accueil pour la petite enfance. Niveau transports en commun, il y a les gares Bédarieux et Le Bousquet-d’Orb à moins de 10 minutes en voiture. On trouve un accès à l’autoroute A75 à 17 km. On trouve une bibliothèque, un tennis, une boulangerie, trois commerces et une boucherie-charcuterie à proximité du logement. Le marché Centre-Ville a lieu tous les lundis.Son prix de vente est de 172 000 €.Contactez notre agence (MALDONADO Hervé : (Numéro supprimé)) pour obtenir de plus amples renseignements sur la maison ou sur les modalités de vente. Concrétisez vos projets immobiliers avec Maisons Balency Pézenas.
Bédarieux
TERRAINTerrain de 372 m² à vendre à BédarieuxIDÉALEMENT SITUÉ – PROCHE DE BÉZIERSÀ Bédarieux (34600) à 43 km de la côte méditerranéenne et à 30 km de Béziers, venez découvrir ce terrain de 372 m². Dans un quartier recherché, ce terrain idéalement situé est proche des commerces et des écoles. Des établissements scolaires de tous niveaux (de la maternelle au lycée) sont implantés à moins de 10 minutes à pied, tout comme deux crèches. Côté transports en commun, on trouve les gares Bédarieux et Le Bousquet-d’Orb à moins de 10 minutes en voiture. Il y a un accès à l’autoroute A75 à 17 km. Il y a une bibliothèque, un tennis, une boulangerie, trois commerces et une boucherie-charcuterie à proximité de la propriété. Ne manquez pas le marché Centre-Ville chaque lundi.Il est à vendre pour la somme de 63 900 €. Contactez notre agence (MALDONADO Hervé : (Numéro supprimé)) pour tout renseignement sur ce terrain. Maisons Balency Pézenas est là pour vous accompagner à toutes les étapes de votre projet.
Bédarieux
TERRAIN ET MAISONBédarieux : maison T6 (95 m²) à vendreIDÉALEMENT SITUÉE – MAISON 6 PIÈCES NEUVEEn vente à 43 km de la mer Méditerranée et à deux pas de Béziers, nous sommes ravis de vous proposer cette maison de 6 pièces de 95 m² et de 372 m² de terrain idéalement située dans Bédarieux (34600). Son intérieur propose trois chambres, une cuisine et deux salles de bains.Il s’agit d’une maison de 2 niveaux. Elle est neuve.Cette maison se trouve dans un secteur attractif. Il y a tous les types d’écoles (maternelle, élémentaire et secondaire) à moins de 10 minutes à pied, tout comme deux structures d’accueil pour la petite enfance. Niveau transports en commun, on trouve les gares Bédarieux et Le Bousquet-d’Orb à moins de 10 minutes en voiture. Il y a un accès à l’autoroute A75 à 17 km. Il y a une bibliothèque, un tennis, une boulangerie, trois commerces et une boucherie-charcuterie à quelques minutes à peine. Le marché Centre-Ville anime le quartier chaque lundi.Elle est à vendre pour la somme de 252 000 €.Contactez notre agence (MALDONADO Hervé : (Numéro supprimé)) pour obtenir de plus amples renseignements sur la maison. Donnez vie à vos projets immobiliers avec Maisons Balency Pézenas.
Bédarieux
TERRAIN ET MAISONVENTE d’une maison F5 (96 m²) à BédarieuxIDÉALEMENT SITUÉE – MAISON 5 PIÈCES NEUVEÀ vendre : à 43 km de la côte méditerranéenne et à quelques kilomètres de Béziers, nous vous proposons, idéalement située dans Bédarieux (34600), cette maison de 5 pièces de 96 m². Elle comporte quatre chambres, une cuisine et une salle de bains.Le terrain du bien s’étend sur 372 m².Il s’agit d’une maison de 2 niveaux. Elle est neuve.Cette maison se situe dans un secteur recherché. Des établissements scolaires (de la maternelle au lycée) sont implantés à moins de 10 minutes à pied, tout comme deux crèches. Niveau transports en commun, il y a les gares Bédarieux et Le Bousquet-d’Orb à moins de 10 minutes en voiture. Il y a un accès à l’autoroute A75 à 17 km. On trouve une bibliothèque, un tennis, une boulangerie, trois commerces et une boucherie-charcuterie à proximité de la maison. Le marché Centre-Ville anime le quartier chaque lundi.Elle est à vendre pour la somme de 244 000 €.Prenez contact avec notre agence (MALDONADO Hervé : (Numéro supprimé)) pour toute question sur la maison ou sur les démarches à suivre.
L’actualité immobilière à Bédarieux
27/11/2023
02/11/2023
30/10/2023
20/10/2023
16/10/2023
16/10/2023