Maison à construire à Bessan (34550)
Images
Description
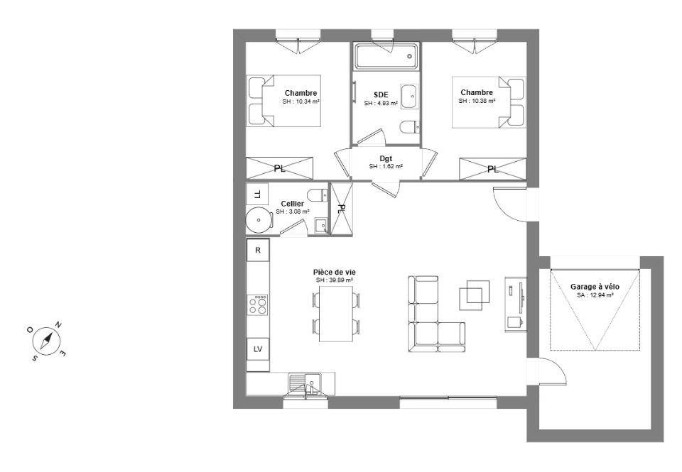
PROJET DE CONSTRUCTION - Bessan : maison F3 (70 m²)
IDÉALEMENT SITUÉE - MAISON 3 PIÈCES
À vendre à 9 km de la côte méditerranéenne et à 15 km de Béziers, laissez vous charmer par, idéalement située dans Bessan (34550), cette maison de 3 pièces de plain-pied de 70 m². Conçue de plain-pied, elle compte deux chambres, une cuisine, un cellier et une salle de bains + GARAGE.
Le terrain de la propriété s'étend sur 454 m².
(Carrelage inclus dans toutes les pièces / Raccordements inclus).
Cette propriété se situe dans un secteur attractif. L'École Maternelle Georges Bégou se trouve à moins de 10 minutes à pied. Côté transports en commun, il y a les gares Vias et Agde à moins de 10 minutes en voiture. Les autoroutes A9 et A75 sont accessibles à moins de 7 km. On trouve un bassin de natation, un tennis, deux commerces et une poissonnerie à proximité.
Elle est proposée à l'achat pour 290 000 €.
Pour plus d'information contacter (Anthony BALLESTER : (Numéro supprimé)) Maisons France Confort Béziers pour échanger sur votre projet et réaliser une étude gratuite. (Plan personnalisable). Tous nos ouvrages sont réalisés sur-mesure en fonction de vos attentes et de nos échanges avec vous ainsi que dans le respect de la règlementation RE 2020. Ce projet comporte les garanties suivantes: Contrat de construction CCMI. Dommage/Ouvrage. RC Garantie décennale. Parfaite achèvement. Etude de sol G2. Prix et délais convenu. Garantie de livraison. Garantie financière Pour votre tranquillité nous nous occupons de toutes les formalités administratives.
Logement susceptibles de vous intéresser
Nous vous proposons de découvrir aussi cette sélection de logements situés à moins de 10km de Bessan et qui seraient susceptibles de vous intéresser.
Vias
TERRAINVENTE DE 2 TERRAINS DE 492 M² CHACUN A VIAS. Zone privée hors association.Je vous propose sur la commune de VIAS cette parcelle de 984 m² divisée en deux terrains de 492m2 chacun.Beaux terrains plats et raccordés à l’eau, à l’électricité, munis de fosses septiques, système de drainage tiré et d’un forage.Localisation très proche de la mer, votre futur havre de paix pour vos prochaines vacances vous tend les bras.Formidable opportunité! Ce coin de paradis offre un cadre naturel exceptionnel où vous pourrez vous évader pendant les périodes estivales.Pour de plus amples informations et pour organiser une visite, n’hésitez pas à me contacter.C’est le moment idéal pour saisir cette occasion unique et réaliser votre rêve de vacances près de la mer.Cette annonce référence 285337 vous est présentée par votre agent commercial BSK Immobilier AURELIE VAZQUEZ (EI) immatriculé au RSAC de BEZIERS (34500) sous le numéro 53911981800034.Prix du bien : 149 000,00 €Les honoraires d’agence sont à la charge du vendeur.Les informations sur les risques auxquels ce bien est exposé sont disponibles sur le site Géorisques : www.georisques.gouv.fr
Saint-Thibéry
TERRAIN ET MAISONCette jolie maison de plain-pied à construire n’attend plus que vous ! Découvrez le modèle millénium, une maison bien agencée avec un espace jour et nuit séparé et optimisé. La maison vous offre un espace de vie de 40 m², 3 chambres avec placard, sa salle de bain familiale et son WC indépendant. Vous pourrez notamment rajouter un garage de la surface souhaitée. Alors, n’attendez plus, et contactez nous, Oc résidences, votre constructeur sur mesure en Occitanie.
Saint-Thibéry
TERRAIN ET MAISONLa millenium 4 chambres est le plain-pied idéal pour toute la famille. La villa se compose d’un vaste et lumineux Salon/Séjour doté d’une grande baie vitrée. Le coté nuit s’articule autour de 4 chambres avec placard, un WC indépendant et une grande salle de bains. Cette maison, d’architecture sobre et élégante, est à construire dans le département du Tarn, l’Aude, l’Hérault, la Haute-Garonne ainsi que les Pyrénées Orientales par Oc résidences, votre constructeur sur mesure en Occitanie.
Saint-Thibéry
TERRAIN ET MAISONLe modèle LITTORAL 83 est une maison à étage aux lignes sobres et épurées. Son Salon/Séjour de plus de 38 m² m² offre un bel espace de vie à toute la famille. Un cellier augmentera vos espaces de rangements. A l’étage, vous trouverez trois chambres avec placard et une salle de bains. Le modèle LITTORAL 83 est une maison familiale et coquette qui plaira par son agencement pensé pour votre confort de vie, par Oc résidences, votre constructeur sur mesure en Occitanie depuis 1983.
Saint-Thibéry
TERRAIN ET MAISONNos architectes ont conçu ce modèle pour vous. Cette maison résolument contemporaine, saura vous séduire par son architecture innovante et sa terrasse couverte qui lui donnera un design unique. Elle possède trois espaces bien distincts avec un espace jour de 45 m² baignant de lumière grâce à ses 4 baies vitrées. Un espace nuit avec 2 belles chambres, et une salle de bains confortable et un troisième espace indépendant avec sa suite parentale de 23 m². Le modèle Lumière est à construire dans le département du Tarn, l’Aude, l’Hérault, la Haute-Garonne ainsi que les Pyrénées Orientales par Oc résidences, votre constructeur sur mesure en Occitanie.
Pomérols
TERRAIN ET MAISONLe modèle Rosée 72 m² de plain-pied, à l’esthétique sobre et épurée, est un incontournable chez OC Résidences. Vous serez abrité sous son porche d’entrée avant d’entrer dans une très belle pièce à vivre de 40 m², avec d’un côté, un garage intégré de 15 m² et de l’autre, un espace nuit séparé proposant 2 chambres et une salle de bains. Votre maison est à construire dans le département du Tarn, l’Aude, l’Hérault, la Haute-Garonne ainsi que les Pyrénées Orientales par Oc résidences, votre constructeur sur mesure en Occitanie.
Saint-Thibéry
TERRAIN ET MAISONLe modèle Rosée 99 est le plain-pied idéal pour toute la famille. La villa se compose d’un vaste et lumineux Salon/Séjour doté d’une grande baie vitrée. La cuisine ouverte donnera sur votre jardin. Le coté nuit s’articule autour de 4 chambres avec placard, un WC indépendant et une grande salle de bains toute équipées avec double vasque, baignoire et douche. Cette maison, d’architecture sobre et élégante, est à construire dans le département du Tarn, l’Aude, l’Hérault, la Haute-Garonne ainsi que les Pyrénées Orientales par Oc résidences, votre constructeur sur mesure en Occitanie.
Saint-Thibéry
TERRAIN ET MAISONLaissez vous séduire par notre nouveau modèle, La SIROCCO. Cette villa, lumineuse et généreuse, vous séduira par son agencement et offrira d’agréables moments à toute votre famille. Sa grande pièce à vivre de 41 m², séparera votre suite parentale, d’un coin nuit aménagé avec deux autres chambres équipées de placard et d’une Salle de bain. Ses grandes ouvertures vous permettront de profiter des extérieurs avec vos amis et votre famille tout au long de l’année. La SIROCCO est à construire dans le département du Tarn, l’Aude, l’Hérault, la Haute-Garonne ainsi que les Pyrénées Orientales par Oc résidences, votre constructeur sur mesure en Occitanie.
Saint-Thibéry
TERRAIN ET MAISONLaissez vous séduire par notre nouveau modèle, La SIROCCO. Cette villa, lumineuse et généreuse, vous séduira par son agencement et offrira d’agréables moments à toute votre famille. Sa grande pièce à vivre de 41 m², séparera votre suite parentale, d’un coin nuit aménagé avec deux autres chambres équipées de placard et d’une Salle de bain. Ses grandes ouvertures vous permettront de profiter des extérieurs avec vos amis et votre famille tout au long de l’année. La SIROCCO est à construire dans le département du Tarn, l’Aude, l’Hérault, la Haute-Garonne ainsi que les Pyrénées Orientales par Oc résidences, votre constructeur sur mesure en Occitanie.
L’actualité immobilière à Bessan
27/11/2023
02/11/2023
30/10/2023
20/10/2023
16/10/2023
16/10/2023