Maison à construire à Clermont-l'Hérault (34800)
Images
Description
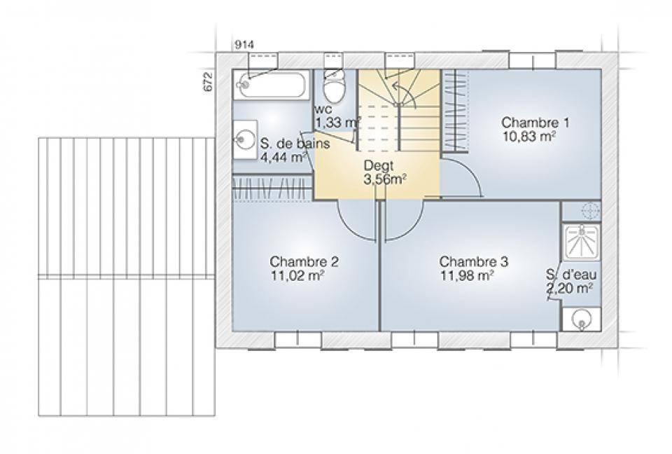
Maison T6 (95 m²) en vente à Clermont-l'Hérault
IDÉALEMENT SITUÉE - MAISON 6 PIÈCES NEUVE
À vendre : située à 37 km de la côte méditerranéenne, nous sommes heureux de vous présenter cette maison de 6 pièces de 95 m² idéalement située dans Clermont-l'Hérault (34800). Son intérieur dispose de trois chambres, d'une cuisine et d'une salle de bains.
Le terrain du bien s'étend sur 755 m².
Cette maison compte 2 niveaux. Elle est neuve.
La maison se trouve dans un secteur prisé. Des écoles de tous niveaux sont implantées à moins de 10 minutes à pied, tout comme une structure d'accueil pour les enfants en bas âge. Les autoroutes A75 et A750 sont accessibles à moins de 5 km. Il y a un bassin de natation, un tennis, des boulangeries, des commerces, deux supermarchés, trois épiceries et une boucherie-charcuterie dans les environs.
Elle est proposée à l'achat pour 367 500 €.
N'hésitez pas à prendre contact avec notre agence (MALDONADO Hervé : (Numéro supprimé)) pour obtenir de plus amples informations sur la maison ou sur les démarches à suivre. Maisons Balency Pézenas vous accompagne dans tous vos projets immobiliers et à toutes les étapes de votre projet.
Logement susceptibles de vous intéresser
Nous vous proposons de découvrir aussi cette sélection de logements situés à moins de 10km de Clermont-l'Hérault et qui seraient susceptibles de vous intéresser.
Clermont-l'Hérault
TERRAINVENTE d’un terrain de 500 m² à Clermont-l’HéraultÀ 37 km de la mer Méditerranée à Clermont-l’Hérault (34800), terrain de 500 m². Il y a des écoles de tous niveaux à moins de 10 minutes à pied, tout comme une crèche. Les autoroutes A75 et A750 sont accessibles à moins de 5 km. On trouve un bassin de natation, un tennis, des boulangeries, des commerces, deux supermarchés, trois épiceries et une boucherie-charcuterie à quelques minutes à peine.Il est à vendre pour la somme de 160 000 €. Prenez contact avec notre agence (Mickaël MARTINEZ : (Numéro supprimé)) pour plus de renseignements sur le terrain, sur les modalités de vente et sur les démarches à suivre. Faites de vos projets immobiliers une réalité avec Maisons France Confort Clermont-l’Hérault.
Clermont-l'Hérault
TERRAIN ET MAISONVENTE : maison F4 (78 m²) à Clermont-l’HéraultMAISON 4 PIÈCES NEUVEEn vente à 37 km de la côte méditerranéenne, nous vous proposons cette maison de 4 pièces de 78 m² et de 500 m² de terrain à Clermont-l’Hérault (34800). Elle compte trois chambres, une cuisine et une salle de bains.Il s’agit d’une maison de 2 niveaux. Elle est neuve.Des écoles du primaire et du secondaire sont implantées à moins de 10 minutes à pied, tout comme une crèche. Les autoroutes A75 et A750 sont accessibles à moins de 5 km. On trouve un bassin de natation, un tennis, des boulangeries, des commerces, deux supermarchés, trois épiceries et une boucherie-charcuterie à quelques minutes.Elle est proposée à l’achat pour 300 000 €.Contactez Mickaël MARTINEZ ((Numéro supprimé)) pour toute information sur la propriété ou sur les modalités de vente. Maisons France Confort Clermont-l’Hérault vous accompagne dans toutes vos démarches et à toutes les étapes de votre projet.
Clermont-l'Hérault
TERRAIN ET MAISONMaison T5 (98 m²) en vente à Clermont-l’HéraultMAISON 5 PIÈCES NEUVEEn vente à 37 km de la mer Méditerranée, nous vous présentons à Clermont-l’Hérault (34800), cette maison de 5 pièces de 98 m² et de 500 m² de terrain.Cette maison comporte 2 niveaux. Son intérieur dispose de quatre chambres, d’une cuisine et d’une salle de bains. La maison est neuve.On trouve des établissements scolaires de tous niveaux à moins de 10 minutes à pied, tout comme une crèche. Les autoroutes A75 et A750 sont accessibles à moins de 5 km. Il y a un bassin de natation, un tennis, des boulangeries, des commerces, deux supermarchés, une boucherie-charcuterie et trois épiceries à proximité.Elle est proposée à l’achat pour 330 000 €.Contactez notre agence (MARTINEZ Mickaël : (Numéro supprimé)) pour obtenir de plus amples renseignements sur cette maison. Maisons France Confort Clermont-l’Hérault est là pour vous accompagner dans tous vos projets immobiliers.
Clermont-l'Hérault
TERRAIN ET MAISONVENTE : maison de 4 pièces (81 m²) à Clermont-l’HéraultMAISON 4 PIÈCES NEUVEÀ 37 km de la côte méditerranéenne, en vente à Clermont-l’Hérault (34800), laissez vous charmer par cette maison de 4 pièces de plain-pied de 81 m².Elle se divise en trois chambres, une cuisine et une salle de bains. La maison est neuve.Le terrain du bien est de 500 m².Il y a des écoles de tous niveaux (de la maternelle au lycée) à moins de 10 minutes à pied, tout comme une structure d’accueil pour la petite enfance. Les autoroutes A75 et A750 sont accessibles à moins de 5 km. On trouve un bassin de natation, un tennis, des boulangeries, des commerces, deux supermarchés, une boucherie-charcuterie et un bureau de poste à quelques minutes.Elle est proposée à l’achat pour 290 000 €.Prenez contact avec notre agence (Mickaël MARTINEZ : (Numéro supprimé)) pour tout renseignement sur la maison, sur les modalités de vente et sur les démarches à suivre. Maisons France Confort Clermont-l’Hérault vous accompagne à toutes les étapes de l’achat et dans tous vos projets immobiliers.
Clermont-l'Hérault
TERRAIN ET MAISONMaison F5 (101 m²) en vente à Clermont-l’HéraultMAISON 5 PIÈCES NEUVEÀ 37 km de la côte méditerranéenne, en vente à Clermont-l’Hérault (34800), votre agence Maisons France Confort Clermont-l’Hérault est ravie de vous présenter cette maison de 5 pièces de plain-pied de 101 m².Conçue de plain-pied, elle propose quatre chambres, une cuisine et une salle de bains. La maison est neuve.Le terrain du bien s’étend sur 500 m².Des établissements scolaires du primaire et du secondaire sont implantés à moins de 10 minutes à pied, tout comme une crèche. Les autoroutes A75 et A750 sont accessibles à moins de 5 km. Il y a un bassin de natation, un tennis, des boulangeries, des commerces, deux supermarchés, trois épiceries et une boucherie-charcuterie à proximité de la maison.Son prix de vente est de 320 000 €.Contactez notre agence (MARTINEZ Mickaël : (Numéro supprimé)) pour obtenir de plus amples informations sur la maison, sur les modalités de vente ou sur les démarches à suivre.
Clermont-l'Hérault
TERRAIN ET MAISONClermont-l’Hérault : maison T4 (90 m²) à vendreMAISON 4 PIÈCES NEUVEEn vente : à 37 km de la côte méditerranéenne, nous vous proposons cette maison de 4 pièces de plain-pied de 90 m² et de 500 m² de terrain à Clermont-l’Hérault (34800).Elle compte trois chambres, une cuisine et une salle de bains. La maison est neuve.On trouve des écoles de tous niveaux (de la maternelle au lycée) à moins de 10 minutes à pied, tout comme une crèche. Les autoroutes A75 et A750 sont accessibles à moins de 5 km. Il y a un bassin de natation, un tennis, des boulangeries, des commerces, deux supermarchés, un bureau de poste et une boucherie-charcuterie à quelques minutes du bien.Son prix de vente est de 340 000 €.Prenez contact avec notre agence (MARTINEZ Mickaël : (Numéro supprimé)) pour toute information sur cette propriété ou sur les modalités de vente.
Clermont-l'Hérault
TERRAIN ET MAISONClermont-l’Hérault : maison T6 (140 m²) en venteMAISON 6 PIÈCES NEUVEÀ vendre à 37 km de la côte méditerranéenne, Maisons France Confort Clermont-l’Hérault vous propose cette maison de 6 pièces de 140 m² à Clermont-l’Hérault (34800).C’est une maison de 2 niveaux. Elle dispose de quatre chambres, d’une cuisine et de deux salles de bains. La maison est neuve.Le terrain du bien est de 500 m².Il y a tous les types d’écoles (maternelle, élémentaire et secondaire) à moins de 10 minutes à pied, tout comme une crèche. Les autoroutes A75 et A750 sont accessibles à moins de 5 km. On trouve un bassin de natation, un tennis, des boulangeries, des commerces, deux supermarchés, un bureau de poste et une boucherie-charcuterie à proximité du logement.Elle est proposée à l’achat pour 480 000 €.Prenez contact avec Mickaël MARTINEZ (tél : (Numéro supprimé)) pour obtenir de plus amples informations sur cette maison, sur les modalités de vente ou sur les démarches à suivre. Maisons France Confort Clermont-l’Hérault vous accompagne à toutes les étapes de votre projet et dans tous vos projets immobiliers.
Clermont-l'Hérault
TERRAIN ET MAISONMaison de 5 pièces (95 m²) en vente à Clermont-l’HéraultMAISON 5 PIÈCES NEUVEÀ vendre : située à 37 km de la côte méditerranéenne, à Clermont-l’Hérault (34800), Maisons France Confort Clermont-l’Hérault vous propose cette maison de 5 pièces de plain-pied de 95 m².Son intérieur inclut trois chambres, une cuisine et deux salles de bains. Cette maison est neuve.Le terrain de la propriété s’étend sur 500 m².Des établissements scolaires de tous types (de la maternelle au lycée) sont implantés à moins de 10 minutes à pied, tout comme une crèche. Les autoroutes A75 et A750 sont accessibles à moins de 5 km. Il y a un bassin de natation, un tennis, des boulangeries, des commerces, deux supermarchés, un bureau de poste et une boucherie-charcuterie à proximité.Son prix de vente est de 490 000 €.Prenez contact avec notre agence (MARTINEZ Mickaël : (Numéro supprimé)) pour tout renseignement sur la maison. Maisons France Confort Clermont-l’Hérault est là pour vous accompagner à toutes les étapes de l’achat.
Clermont-l'Hérault
TERRAIN ET MAISONClermont-l’Hérault : maison de 6 pièces (110 m²) en venteMAISON 6 PIÈCES NEUVEEn vente : localisée à 37 km de la mer Méditerranée, à Clermont-l’Hérault (34800), laissez vous charmer par cette maison de 6 pièces de 110 m².Il s’agit d’une maison de 2 niveaux. Elle compte quatre chambres, une cuisine et deux salles de bains. Cette maison est neuve.Le terrain de la propriété est de 500 m².Des écoles de tous niveaux (de la maternelle au lycée) sont implantées à moins de 10 minutes à pied, tout comme une crèche. Les autoroutes A75 et A750 sont accessibles à moins de 5 km. On trouve un bassin de natation, un tennis, des boulangeries, des commerces, deux supermarchés, une boucherie-charcuterie et un bureau de poste à proximité.Elle est proposée à l’achat pour 430 000 €.N’hésitez pas à prendre contact avec Mickaël MARTINEZ ((Numéro supprimé)) pour tout renseignement sur cette maison, sur les modalités de vente et sur les démarches à suivre. Maisons France Confort Clermont-l’Hérault est là pour vous accompagner dans tous vos projets immobiliers.
L’actualité immobilière à Clermont-l'Hérault
27/11/2023
02/11/2023
30/10/2023
20/10/2023
16/10/2023
16/10/2023