Maison à construire à Colombières-sur-Orb (34390)
Images
Description
PROJET DE CONSTRUCTION - Maison de 4 pièces (110 m²) à Colombières-sur-Orb
EMPLACEMENT PRIVILÉGIÉ - MAISON 4 PIÈCES OU 5 SELON PLANS
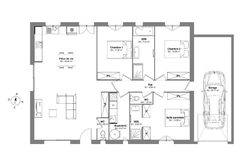
En vente : située à 48 km de la mer Méditerranée et moins de 10min de LAMALOU--LES-BAINS, bénéficiant d'un emplacement d'exception AVEC VUE SUR LE CAROUX dans Colombières-sur-Orb (34390), nous vous présentons cette maison de 4 pièces de plain-pied de 110 m².
Son intérieur offre trois chambres, une cuisine, un cellier-buanderie, deux salles de bains et un garage.
(Carrelage inclus dans toutes les pièces / Raccordements inclus / Gainable compris).
Le terrain du bien est de 538 m².
Cette propriété se situe dans un quartier convoité. Une école primaire y est implantée. Il y a une bibliothèque et une épicerie à proximité de la maison.
Son prix de vente est de 270 000 €.
Pour plus d'information contacter (Anthony BALLESTER : (Numéro supprimé)) Maisons France Confort Béziers pour échanger sur votre projet et réaliser une étude gratuite. (Plan personnalisable). Tous nos ouvrages sont réalisés sur-mesure en fonction de vos attentes et de nos échanges avec vous ainsi que dans le respect de la règlementation RE 2020. Ce projet comporte les garanties suivantes: Contrat de construction CCMI. Dommage/Ouvrage. RC Garantie décennale. Parfaite achèvement. Etude de sol G2. Prix et délais convenu. Garantie financière Pour votre tranquillité nous nous occupons de toutes les formalités administratives.
Logement susceptibles de vous intéresser
Nous vous proposons de découvrir aussi cette sélection de logements situés à moins de 10km de Colombières-sur-Orb et qui seraient susceptibles de vous intéresser.
Hérépian
TERRAINTerrain de 900 m² en vente à HérépianPROCHE DE BÉZIERSÀ 43 km de la mer Méditerranée et à quelques kilomètres de Béziers à Hérépian (34600), grand terrain. Réalisez-y votre projet de construction. Il y a une école primaire dans le quartier. Niveau transports, on trouve la gare Bédarieux à moins de 10 minutes en voiture. Il y a une bibliothèque, un tennis, deux boulangeries, des commerces, une boucherie-charcuterie, une épicerie et un bureau de poste à proximité.Son prix de vente est de 95 000 €. Prenez contact avec notre agence MAISONS DE MANON BEZIERS (BALLESTER Anthony : (Numéro supprimé)) pour toute information sur ce terrain. Maisons De Manon Béziers vous accompagne dans tous vos projets immobiliers et à toutes les étapes de l’achat.Annonce proposée par un Agent Commercial Partenaire.
Hérépian
TERRAIN ET MAISONPROJET DE CONSTRUCTION – Hérépian : maison F3 (71 m²) PROCHE DE BÉZIERS – MAISON 3 PIÈCESÀ vendre : située à 43 km de la mer Méditerranée et à deux pas de Béziers, Maisons de Manon Béziers vous présente cette maison de 3 pièces de plain-pied de 71 m² et de 900 m² de terrain à Hérépian (34600).Elle est composée de deux chambres, d’une cuisine, d’un cellier, d’une salle de bains et d’un garage.(Carrelage inclus dans toutes les pièces / Raccordements inclus).Une école primaire est implantée dans le quartier. Niveau transports, il y a la gare Bédarieux à moins de 10 minutes en voiture. On trouve une bibliothèque, un tennis, deux boulangeries, des commerces, un bureau de poste, une épicerie et une boucherie-charcuterie dans les environs.Elle est à vendre pour la somme de 225 000 €.Pour plus d’information contacter (Anthony BALLESTER : (Numéro supprimé)) Maisons de Manon Béziers pour échanger sur votre projet et réaliser une étude gratuite. (Plan personnalisable). Tous nos ouvrages sont réalisés sur-mesure en fonction de vos attentes et de nos échanges avec vous ainsi que dans le respect de la règlementation RE 2020. Ce projet comporte les garanties suivantes: Contrat de construction CCMI. Dommage/Ouvrage. RC Garantie décennale. Parfaite achèvement. Etude de sol G2. Prix et délais convenu. Garantie financière Pour votre tranquillité nous nous occupons de toutes les formalités administratives.
Hérépian
TERRAIN ET MAISONPROJET DE CONSTRUCTION – Maison de 4 pièces (85 m²) à HérépianMAISON 4 PIÈCES – PROCHE DE BÉZIERSÀ 43 km de la mer Méditerranée et à deux pas de Béziers, nous vous présentons cette maison de 4 pièces de plain-pied de 85 m² et de 900 m² de terrain à vendre à Hérépian (34600). Elle est composée de trois chambres dont une suite parentale, d’une cuisine et de deux salles de bains. (Possibilité de faire un cellier et un garage)(Carrelage inclus dans toutes les pièces / Raccordements inclus).Il y a une école primaire dans le quartier. Niveau transports en commun, on trouve la gare Bédarieux à moins de 10 minutes en voiture. Il y a une bibliothèque, un tennis, deux boulangeries, des commerces, un bureau de poste, une épicerie et une boucherie-charcuterie dans les environs.Son prix de vente est de 234 000 €.Pour plus d’information contacter (Anthony BALLESTER : (Numéro supprimé)) Maisons de Manon Béziers pour échanger sur votre projet et réaliser une étude gratuite. (Plan personnalisable). Tous nos ouvrages sont réalisés sur-mesure en fonction de vos attentes et de nos échanges avec vous ainsi que dans le respect de la règlementation RE 2020. Ce projet comporte les garanties suivantes: Contrat de construction CCMI. Dommage/Ouvrage. RC Garantie décennale. Parfaite achèvement. Etude de sol G2. Prix et délais convenu. Garantie financière Pour votre tranquillité nous nous occupons de toutes les formalités administratives.
Hérépian
TERRAIN ET MAISONPROJET DE CONSTRUCTION – Maison de 5 pièces (110 m²) à HérépianPROCHE DE BÉZIERS – MAISON 5 PIÈCESÀ 43 km de la mer Méditerranée et à deux pas de Béziers, nous sommes heureux de vous proposer cette maison de 5 pièces de plain-pied de 110 m² en vente à Hérépian (34600).Conçue de plain-pied, elle dispose de quatre chambres dont une suite parentale, d’une cuisine, d’un cellier, de deux salles de bains et d’un garage.(Carrelage inclus dans toutes les pièces / Raccordements inclus).Le terrain de la propriété s’étend sur 900 m².Une école primaire est implantée dans le quartier. Niveau transports, on trouve la gare Bédarieux à moins de 10 minutes en voiture. Il y a une bibliothèque, un tennis, deux boulangeries, des commerces, une boucherie-charcuterie, un bureau de poste et une épicerie à proximité du bien.Elle est à vendre pour la somme de 274 000 €.Pour plus d’information contacter (Anthony BALLESTER : (Numéro supprimé)) Maisons de Manon Béziers pour échanger sur votre projet et réaliser une étude gratuite. (Plan personnalisable). Tous nos ouvrages sont réalisés sur-mesure en fonction de vos attentes et de nos échanges avec vous ainsi que dans le respect de la règlementation RE 2020. Ce projet comporte les garanties suivantes: Contrat de construction CCMI. Dommage/Ouvrage. RC Garantie décennale. Parfaite achèvement. Etude de sol G2. Prix et délais convenu. Garantie financière Pour votre tranquillité nous nous occupons de toutes les formalités administratives.
Hérépian
TERRAINTerrain de 900 m² en vente à HérépianPROCHE DE BÉZIERSÀ 43 km de la mer Méditerranée et à quelques kilomètres de Béziers à Hérépian (34600), grand terrain. Réalisez-y votre projet de construction. Il y a une école primaire dans le quartier. Niveau transports, on trouve la gare Bédarieux à moins de 10 minutes en voiture. Il y a une bibliothèque, un tennis, deux boulangeries, des commerces, une boucherie-charcuterie, une épicerie et un bureau de poste à proximité.Son prix de vente est de 95 000 €. Prenez contact avec notre agence MAISONS FRANCE CONFORT BEZIERS (BALLESTER Anthony : (Numéro supprimé)) pour toute information sur ce terrain. Maisons France Confort Béziers vous accompagne dans tous vos projets immobiliers et à toutes les étapes de l’achat.Annonce proposée par un Agent Commercial Partenaire.
Hérépian
TERRAIN ET MAISONPROJET DE CONSTRUCTION – Maison F4 (85 m²) à HérépianPROCHE DE BÉZIERS – MAISON 4 PIÈCESÀ vendre : localisée à 43 km de la mer Méditerranée et à deux pas de Béziers, nous sommes ravis de vous proposer cette maison de 4 pièces de plain-pied de 85 m² et de 900 m² de terrain à Hérépian (34600). Elle comporte trois chambres dont une suite parentale, une cuisine et deux salles de bains. (possibilité de faire un cellier et un garage EN SUP)(Carrelage inclus dans toutes les pièces / Raccordements inclus).Il y a une école primaire dans le quartier. Niveau transports en commun, on trouve la gare Bédarieux à moins de 10 minutes en voiture. Il y a une bibliothèque, un tennis, deux boulangeries, des commerces, une épicerie, un bureau de poste et une boucherie-charcuterie à quelques minutes.Elle est proposée à l’achat pour 235 000 €.Pour plus d’information contacter (Anthony BALLESTER : (Numéro supprimé)) Maisons France Confort Béziers pour échanger sur votre projet et réaliser une étude gratuite. (Plan personnalisable). Tous nos ouvrages sont réalisés sur-mesure en fonction de vos attentes et de nos échanges avec vous ainsi que dans le respect de la règlementation RE 2020. Ce projet comporte les garanties suivantes: Contrat de construction CCMI. Dommage/Ouvrage. RC Garantie décennale. Parfaite achèvement. Etude de sol G2. Prix et délais convenu. Garantie financière Pour votre tranquillité nous nous occupons de toutes les formalités administratives.
Hérépian
TERRAIN ET MAISONPROJET DE CONSTRUCTION – Hérépian : maison T3 (70 m²) PROCHE DE BÉZIERS – MAISON 3 PIÈCESÀ vendre : localisée à 43 km de la côte méditerranéenne et à quelques kilomètres de Béziers, notre agence Maisons France Confort Béziers est ravie de vous proposer cette maison de 3 pièces de plain-pied de 70 m² et de 900 m² de terrain à Hérépian (34600). Elle comporte deux chambres, une cuisine, un cellier, une salle de bains et un garage.(Carrelage inclus dans toutes les pièces / Raccordements inclus).Il y a une école primaire dans le quartier. Niveau transports, on trouve la gare Bédarieux à moins de 10 minutes en voiture. Il y a une bibliothèque, un tennis, deux boulangeries, des commerces, un bureau de poste, une boucherie-charcuterie et une épicerie à proximité du bien.Son prix de vente est de 227 000 €.Pour plus d’information contacter (Anthony BALLESTER : (Numéro supprimé)) Maisons France Confort Béziers pour échanger sur votre projet et réaliser une étude gratuite. (Plan personnalisable). Tous nos ouvrages sont réalisés sur-mesure en fonction de vos attentes et de nos échanges avec vous ainsi que dans le respect de la règlementation RE 2020. Ce projet comporte les garanties suivantes: Contrat de construction CCMI. Dommage/Ouvrage. RC Garantie décennale. Parfaite achèvement. Etude de sol G2. Prix et délais convenu. Garantie financière Pour votre tranquillité nous nous occupons de toutes les formalités administratives.
Hérépian
TERRAIN ET MAISONPROJET DE CONSTRUCTION – Maison T3 (105 m²) à HérépianMAISON 4 PIÈCES – PROCHE DE BÉZIERSEn vente : localisée à 43 km de la mer Méditerranée et à 28 km de Béziers, à Hérépian (34600), nous vous proposons cette maison de 4 pièces de plain-pied de 105 m².Son intérieur compte TROIS CHAMBRE POSSIBILITE DE FAIRE UNE 4EME CHAMBRE, une cuisine, un cellier, deux salles de bains et un garage. (Carrelage inclus dans toutes les pièces / Raccordements inclus).Le terrain de la propriété est de 900 m².On trouve une école primaire dans le quartier. Niveau transports en commun, il y a la gare Bédarieux à moins de 10 minutes en voiture. On trouve une bibliothèque, un tennis, deux boulangeries, des commerces, un bureau de poste, une épicerie et une boucherie-charcuterie à proximité.Elle est à vendre pour la somme de 285 000 €.Pour plus d’information contacter (Anthony BALLESTER : (Numéro supprimé)) Maisons France Confort Béziers pour échanger sur votre projet et réaliser une étude gratuite. (Plan personnalisable). Tous nos ouvrages sont réalisés sur-mesure en fonction de vos attentes et de nos échanges avec vous ainsi que dans le respect de la règlementation RE 2020. Ce projet comporte les garanties suivantes: Contrat de construction CCMI. Dommage/Ouvrage. RC Garantie décennale. Parfaite achèvement. Etude de sol G2. Prix et délais convenu. Garantie financière Pour votre tranquillité nous nous occupons de toutes les formalités administratives.
Olargues
TERRAINFiche N°Id-TCT162206 : OLARGUES Fiche BC162206 : Olargues, secteur Avec vue imprenable, Terrain avec vue imprenable de 6350 m2 – Vue : Sur le caroux, l’espinouse – – Equipements annexes : jardin – parking – – chauffage : Aucun – Plus d’informations disponibles sur demande… – Mentions légales : Proposé à la vente à 60000 Euros (honoraires à la charge du vendeur) – Affaire suivie par Mme Karin JUSTE (Agent immobilier – Responsable) – Reseau Immo-Diffusion Olargues – Pour plus d’informations, contactez notre secrétariat au (Numéro supprimé) (Appel gratuit ou prix d’une communication locale) – Les informations sur les risques auxquels ce bien est exposé sont disponibles sur le site Géorisques : www.georisques.gouv.fr
L’actualité immobilière à Colombières-sur-Orb
27/11/2023
02/11/2023
30/10/2023
20/10/2023
16/10/2023
16/10/2023