Maison à construire à Guzargues (34820)
Images
Description
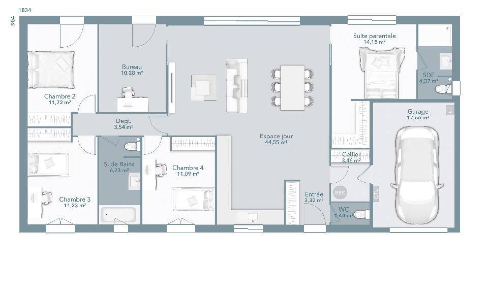
Projet d'une maison personnalisable de 125 m² sur 1000 m² de terrain à Guzargues.
Ce modèle Optima vous offre le confort de 4 chambres dont la suite parentale, une cuisine ouverte sur spacieux séjour, wc séparé de la salle de bain, et un cellier avec accès au garage.
RE2020 + GARANTIES CCMI COMPRISES.
N'hésitez pas à prendre contact avec notre agence : (Numéro supprimé) pour plus d'informations.
Annonce proposée par un Agent Commercial Partenaire.
Logement susceptibles de vous intéresser
Nous vous proposons de découvrir aussi cette sélection de logements situés à moins de 10km de Guzargues et qui seraient susceptibles de vous intéresser.
Teyran
TERRAINVENTE : terrain de 360 m² à TeyranEMPLACEMENT PRIVILÉGIÉ – PROCHE DE MONTPELLIEREn vente à 16 km de la côte méditerranéenne et à deux pas de Montpellier à Teyran (34820), terrain de 360 m². Dans un secteur convoité, ce terrain bénéficiant d’un emplacement d’exception est proche des écoles et des commerces. Des écoles primaires sont implantées à moins de 10 minutes à pied, dont l’École Élémentaire Jules Ferry, tout comme une structure d’accueil pour la petite enfance. Côté transports, il y a quatre gares à moins de 10 minutes en voiture. L’autoroute A709 et la nationale N113 sont accessibles à moins de 7 km. On trouve une bibliothèque, un tennis, deux boulangeries, quatre commerces, un bureau de poste, une boucherie-charcuterie et une supérette à proximité du terrain.Son prix de vente est de 245 000 €. N’hésitez pas à prendre contact avec Cédric ((Numéro supprimé)) pour tout renseignement sur ce terrain, sur les modalités de vente ou sur les démarches à suivre.
Castries
TERRAINCastries : terrain de 615 m² en venteCENTRE-VILLE – PROCHE DE MONTPELLIERÀ Castries (34160) à vendre à 15 km de la mer Méditerranée et à quelques kilomètres de Montpellier, donnez vie à votre résidence principale ou secondaire sur ce terrain de 615 m². Ce terrain, avec vue sur jardin, est orienté au sud. En centre-ville, le terrain est proche des commerces et des écoles. L’École Primaire Privée Sainte Marie, l’École Élémentaire Marcel Pagnol, l’École Maternelle le Chat Perché de la Guesse et le Collège les Pins sont implantés à moins de 10 minutes à pied, tout comme deux crèches. Niveau transports, il y a quatre gares à moins de 10 minutes en voiture. L’autoroute A709 et la nationale N113 sont accessibles à moins de 3 km. On trouve des commerces, une boulangerie, un supermarché, une boucherie-charcuterie et un bureau de poste dans les environs.Son prix de vente est de 330 000 €. Prenez contact avec notre agence (Jean-Yves BARBAGLIA : (Numéro supprimé)) pour tout renseignement sur le terrain. Maisons Balency Castries est là pour vous accompagner dans toutes vos démarches.
Castries
TERRAIN ET MAISONVENTE d’une maison F6 (125 m²) à CastriesCENTRE-VILLE – MAISON 6 PIÈCES NEUVEÀ 15 km de la mer Méditerranée et à deux pas de Montpellier, Maisons Balency Castries vous propose cette maison de 6 pièces de 125 m² et de 615 m² de terrain avec vue sur jardin dans le centre-ville de Castries (34160).C’est une maison de 2 niveaux. Son intérieur inclut quatre chambres, une cuisine et deux salles de bains. Cette maison est neuve.L’École Primaire Privée Sainte Marie, l’École Élémentaire Marcel Pagnol, l’École Maternelle le Chat Perché de la Guesse et le Collège les Pins se trouvent à moins de 10 minutes à pied, tout comme deux crèches. Côté transports, il y a quatre gares à moins de 10 minutes en voiture. L’autoroute A709 et la nationale N113 sont accessibles à moins de 3 km. On trouve des commerces, une boulangerie, un supermarché, un bureau de poste et une boucherie-charcuterie à proximité.Son prix de vente est de 582 300 €.Contactez notre agence (Jean-Yves BARBAGLIA : (Numéro supprimé)) pour plus d’informations sur le bien. Maisons Balency Castries est là pour vous accompagner dans toutes vos démarches.
Castries
TERRAIN ET MAISONCastries : maison de 6 pièces (170 m²) en venteCENTRE-VILLE – MAISON 6 PIÈCES NEUVEÀ 15 km de la mer Méditerranée et à 13 km de Montpellier, nous vous présentons cette maison de 6 pièces de 170 m² à Castries (34160), en centre-ville.Cette maison compte 2 niveaux. Elle dispose de quatre chambres, d’une cuisine et de deux salles de bains. Cette maison est neuve.Le terrain de la propriété s’étend sur 615 m².On trouve l’École Primaire Privée Sainte Marie, l’École Élémentaire Marcel Pagnol, l’École Maternelle le Chat Perché de la Guesse et le Collège les Pins à moins de 10 minutes à pied et deux crèches. Niveau transports en commun, il y a quatre gares à moins de 10 minutes en voiture. L’autoroute A709 et la nationale N113 sont accessibles à moins de 3 km. On trouve des commerces, une boulangerie, un supermarché, un bureau de poste et une boucherie-charcuterie dans les environs.Son prix de vente est de 695 000 €.N’hésitez pas à prendre contact avec notre agence (Jean-Yves BARBAGLIA : (Numéro supprimé)) pour plus de renseignements sur la maison ou sur les modalités de vente.
Assas
TERRAINAssas : terrain de 430 m² en venteEMPLACEMENT PRIVILÉGIÉ – PROCHE DE MONTPELLIERÀ Assas (34820) à 19 km de la côte méditerranéenne et à 12 km de Montpellier, découvrez ce terrain de 430 m². Ce terrain, avec vue sur jardin, est exposé à l’ouest. Il se situe dans un secteur convoité. Des écoles maternelles et élémentaires y sont implantées et une structure d’accueil pour la petite enfance. Côté transports, il y a la gare Saint-Aunès à moins de 10 minutes en voiture. L’autoroute A709 et la nationale N113 sont accessibles à moins de 10 km. On trouve un tennis, une boulangerie, un commerce et une épicerie à quelques minutes.Ce terrain est à vendre pour la somme de 240 000 €. N’hésitez pas à prendre contact avec notre agence (Jean-Yves BARBAGLIA : (Numéro supprimé)) pour toute question sur ce terrain. Faites de vos projets immobiliers une réalité avec Maisons Balency Castries.
Assas
TERRAIN ET MAISONAssas : maison de 6 pièces (100 m²) en venteEMPLACEMENT PRIVILÉGIÉ – MAISON 6 PIÈCES NEUVEEn vente : localisée à 19 km de la mer Méditerranée et à deux pas de Montpellier, bénéficiant d’un emplacement d’exception dans Assas (34820), nous vous présentons cette maison de 6 pièces de 100 m² avec vue sur jardin.Cette maison compte 2 niveaux. Elle inclut trois chambres, une cuisine et deux salles de bains. Cette maison est neuve.Le terrain de la propriété est de 430 m².La maison est située dans un quartier attractif. On y trouve des écoles maternelles et élémentaires ainsi qu’une structure d’accueil pour les tout-petits. Niveau transports en commun, on trouve la gare Saint-Aunès à moins de 10 minutes en voiture. L’autoroute A709 et la nationale N113 sont accessibles à moins de 10 km. Il y a un tennis, une boulangerie, un commerce et une épicerie à proximité du logement.Elle est proposée à l’achat pour 451 500 €.Prenez contact avec notre agence (Jean-Yves BARBAGLIA : (Numéro supprimé)) pour toute information sur la maison. Maisons Balency Castries vous accompagne dans toutes vos démarches et à toutes les étapes de votre projet.
Assas
TERRAIN ET MAISONMaison de 6 pièces (110 m²) à vendre à AssasEMPLACEMENT PRIVILÉGIÉ – MAISON 6 PIÈCES NEUVEÀ 19 km de la mer Méditerranée et à quelques kilomètres de Montpellier, nous sommes heureux de vous proposer en vente, bénéficiant d’un emplacement privilégié dans Assas (34820), cette maison de 6 pièces de 110 m² et de 430 m² de terrain.Cette maison compte 2 niveaux. Elle comporte trois chambres, une cuisine et une salle de bains. La maison est neuve.Cette propriété est située dans un quartier attractif. Des écoles maternelles et élémentaires y sont implantées et une structure d’accueil pour les tout-petits. Niveau transports en commun, on trouve la gare Saint-Aunès à moins de 10 minutes en voiture. L’autoroute A709 et la nationale N113 sont accessibles à moins de 10 km. Il y a un tennis, une boulangerie, un commerce et une épicerie à proximité.Elle est proposée à l’achat pour 487 000 €.N’hésitez pas à prendre contact avec Jean-Yves BARBAGLIA ((Numéro supprimé)) pour obtenir de plus amples informations sur la maison ou sur les modalités de vente. Maisons Balency Castries vous accompagne à toutes les étapes de l’achat et dans toutes vos démarches.
Beaulieu
TERRAINTerrain de 534 m² en vente à BeaulieuEMPLACEMENT PRIVILÉGIÉ – PROCHE DE MONTPELLIERÀ vendre à 19 km de la côte méditerranéenne et à 18 km de Montpellier à Beaulieu (34160), grand terrain. Ce terrain, orienté sud, donne sur un jardin. Dans un secteur recherché, ce terrain bénéficiant d’un emplacement privilégié est proche des écoles et des commerces. L’École Élémentaire la Jasse et l’École Maternelle les Esquirols sont implantées à moins de 10 minutes à pied, tout comme une crèche. Côté transports en commun, il y a les gares Valergues-Lansargues, Lunel-Viel et Baillargues à moins de 10 minutes en voiture. Les autoroutes A709 et A9 et la nationale N113 sont accessibles à moins de 10 km. On trouve une bibliothèque, deux commerces, une boulangerie et une épicerie à quelques minutes.Ce terrain est à vendre pour la somme de 220 000 €. Contactez notre agence (BARBAGLIA Jean-Yves : (Numéro supprimé)) pour toute information sur le terrain. Maisons Balency Castries est là pour vous accompagner à toutes les étapes de votre projet.
Beaulieu
TERRAIN ET MAISONBeaulieu : maison T6 (100 m²) en venteEMPLACEMENT PRIVILÉGIÉ – MAISON 6 PIÈCES NEUVEÀ 19 km de la côte méditerranéenne et à quelques kilomètres de Montpellier, à vendre bénéficiant d’un emplacement privilégié dans Beaulieu (34160), votre agence Maisons Balency Castries est heureuse de vous proposer cette maison de 6 pièces de 100 m² avec vue sur jardin.Il s’agit d’une maison de 2 niveaux. Elle inclut trois chambres, une cuisine et deux salles de bains. La maison est neuve.Le terrain du bien est de 534 m².Cette maison se situe dans un secteur attractif. Il y a l’École Élémentaire la Jasse et l’École Maternelle les Esquirols à moins de 10 minutes à pied et une crèche. Niveau transports en commun, on trouve trois gares (Valergues-Lansargues, Lunel-Viel et Baillargues) à moins de 10 minutes en voiture. Les autoroutes A709 et A9 et la nationale N113 sont accessibles à moins de 10 km. Il y a une bibliothèque, deux commerces, une boulangerie et une épicerie dans les environs.Son prix de vente est de 433 600 €.N’hésitez pas à prendre contact avec Jean-Yves BARBAGLIA ((Numéro supprimé)) pour obtenir de plus amples informations sur la maison ou sur les démarches à suivre. Maisons Balency Castries est là pour vous accompagner à toutes les étapes de l’achat.
L’actualité immobilière à Guzargues
27/11/2023
02/11/2023
30/10/2023
20/10/2023
16/10/2023
16/10/2023