Maison à construire à Lauret (34270)
Images
Description
VENTE d'une maison de 6 pièces (100 m²) à Lauret
IDÉALEMENT SITUÉE - MAISON 6 PIÈCES NEUVE
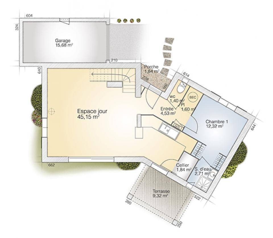
En vente à 34 km de la mer Méditerranée et à deux pas de Montpellier, nous vous présentons cette maison de 6 pièces de 100 m² et de 788 m² de terrain avec vue sur jardin idéalement située dans Lauret (34270). Son intérieur offre trois chambres, une cuisine et deux salles de bains.
Cette maison compte 2 niveaux. Elle est neuve.
Cette maison est située dans un secteur attractif. L'École Primaire Martin Doumergue est implantée à moins de 10 minutes à pied. On trouve une bibliothèque, un tennis et une épicerie à proximité de la maison.
Son prix de vente est de 396 500 €.
Contactez notre agence (Jean-Yves BARBAGLIA : (Numéro supprimé)) pour toute information sur la maison ou sur les modalités de vente. Maisons Balency Castries est là pour vous accompagner dans toutes vos démarches.
Logement susceptibles de vous intéresser
Nous vous proposons de découvrir aussi cette sélection de logements situés à moins de 10km de Lauret et qui seraient susceptibles de vous intéresser.
Valflaunès
TERRAINTerrain de 510 m² à vendre à ValflaunèsQUARTIER RECHERCHÉ – PROCHE DE MONTPELLIERÀ Valflaunès (34270) à 30 km de la côte méditerranéenne et à deux pas de Montpellier, donnez vie à la maison de vos rêves sur ce terrain de 510 m². Il est exposé plein sud. Il se situe dans un quartier convoité. L’École Élémentaire Edmond Teissier est implantée à moins de 10 minutes à pied, tout comme une structure d’accueil pour les tout-petits. L’autoroute A709 et la nationale N113 sont accessibles à moins de 19 km. Il y a un tennis dans les environs.Ce terrain est proposé à l’achat pour 219 900 €. Contactez Jean-Yves BARBAGLIA (tél : (Numéro supprimé)) pour obtenir de plus amples informations sur le terrain. Maisons Balency Castries est là pour vous accompagner dans tous vos projets immobiliers.
Valflaunès
TERRAIN ET MAISONVENTE d’une maison F6 (100 m²) à ValflaunèsQUARTIER RECHERCHÉ – MAISON 6 PIÈCES NEUVEÀ 30 km de la mer Méditerranée et à deux pas de Montpellier, Maisons Balency Castries vous propose à vendre, dans un quartier recherché de Valflaunès (34270), cette maison de 6 pièces de 100 m². Son intérieur dispose de trois chambres, d’une cuisine et de deux salles de bains.Le terrain de cette maison est de 510 m².Il s’agit d’une maison de 2 niveaux. Elle est neuve.La maison est située dans un secteur convoité. Il y a l’École Élémentaire Edmond Teissier à moins de 10 minutes à pied et une structure d’accueil pour les enfants en bas âge. L’autoroute A709 et la nationale N113 sont accessibles à moins de 19 km. On trouve un tennis dans les environs.Elle est proposée à l’achat pour 428 900 €.N’hésitez pas à prendre contact avec notre agence (Jean-Yves BARBAGLIA : (Numéro supprimé)) pour toute information sur la maison ou sur les démarches à suivre.
Valflaunès
TERRAIN ET MAISONValflaunès : maison F6 (110 m²) en venteQUARTIER RECHERCHÉ – MAISON 6 PIÈCES NEUVEEn vente à 30 km de la côte méditerranéenne et à 22 km de Montpellier, venez découvrir cette maison de 6 pièces de 110 m² et de 510 m² de terrain située dans un secteur prisé de Valflaunès (34270).C’est une maison de 2 niveaux. Son intérieur comporte trois chambres, une cuisine et une salle de bains. Cette maison est neuve.Cette maison est située dans un quartier attractif. On trouve l’École Élémentaire Edmond Teissier à moins de 10 minutes à pied et une crèche. L’autoroute A709 et la nationale N113 sont accessibles à moins de 19 km. Il y a un tennis à proximité.Elle est proposée à l’achat pour 439 900 €.Prenez contact avec notre agence (BARBAGLIA Jean-Yves : (Numéro supprimé)) pour plus de renseignements sur la maison, sur les modalités de vente ou sur les démarches à suivre. Maisons Balency Castries est là pour vous accompagner à toutes les étapes de votre projet.
Sainte-Croix-de-Quintillargues
TERRAINSainte-Croix-de-Quintillargues : terrain de 400 m² en venteQUARTIER RECHERCHÉ – VUE SUR MONTAGNEÀ 26 km de la mer Méditerranée et à quelques kilomètres de Montpellier à Sainte-Croix-de-Quintillargues (34270), terrain de 400 m². Il est prêt à accueillir votre résidence principale ou secondaire pour toute la famille. Il donne sur les montagnes et est exposé plein sud. Il se situe dans un secteur recherché. L’École Primaire André Plagniol est implantée à moins de 10 minutes à pied. Les autoroutes A709, A9 et A750 et les nationales N113 et N109 sont accessibles à moins de 20 km. Il y a une bibliothèque et une épicerie dans les environs.Il est proposé à l’achat pour 209 000 €. Contactez Jean-Yves BARBAGLIA ((Numéro supprimé)) pour obtenir de plus amples informations sur ce terrain ou sur les démarches à suivre. Faites de vos projets immobiliers une réalité avec Maisons Balency Castries.
Sainte-Croix-de-Quintillargues
TERRAIN ET MAISONVENTE : maison T5 (83 m²) à Sainte-Croix-de-QuintillarguesQUARTIER RECHERCHÉ – MAISON 5 PIÈCES NEUVEEn vente à 26 km de la mer Méditerranée et à quelques kilomètres de Montpellier, Maisons Balency Castries vous propose cette maison de 5 pièces de 83 m² avec vue sur montagne dans un secteur attractif de Sainte-Croix-de-Quintillargues (34270). Conçue de plain-pied, elle offre trois chambres, une cuisine et une salle de bains.Le terrain de la propriété est de 400 m².Il s’agit d’une maison de plain-pied. Elle est neuve.La maison se trouve dans un quartier recherché. Il y a l’École Primaire André Plagniol à moins de 10 minutes à pied. Les autoroutes A709, A9 et A750 et les nationales N113 et N109 sont accessibles à moins de 20 km. On trouve une bibliothèque et une épicerie dans les environs.Son prix de vente est de 359 900 €.N’hésitez pas à prendre contact avec Jean-Yves BARBAGLIA ((Numéro supprimé)) pour obtenir de plus amples informations sur la maison, sur les modalités de vente ou sur les démarches à suivre. Donnez vie à vos projets immobiliers avec Maisons Balency Castries.
Sainte-Croix-de-Quintillargues
TERRAIN ET MAISONMaison de 4 pièces (90 m²) en vente à Sainte-Croix-de-QuintillarguesQUARTIER RECHERCHÉ – MAISON 4 PIÈCES NEUVEEn vente : localisée à 26 km de la mer Méditerranée et à quelques kilomètres de Montpellier, notre agence Maisons Balency Castries est heureuse de vous proposer cette maison de 4 pièces de 90 m² et de 400 m² de terrain dans un secteur prisé de Sainte-Croix-de-Quintillargues (34270).Cette maison compte 2 niveaux. Son intérieur inclut trois chambres, une cuisine et deux salles de bains. La maison est neuve.Cette maison se trouve dans un quartier recherché. L’École Primaire André Plagniol est implantée à moins de 10 minutes à pied. Les autoroutes A709, A9 et A750 et les nationales N113 et N109 sont accessibles à moins de 20 km. Il y a une bibliothèque et une épicerie à proximité.Son prix de vente est de 382 300 €.Contactez notre constructeur (BARBAGLIA Jean-Yves : (Numéro supprimé)) pour toute question sur la propriété, sur les modalités de vente ou sur les démarches à suivre. Maisons Balency Castries vous accompagne à toutes les étapes de l’achat et dans tous vos projets immobiliers.
Sauteyrargues
TERRAINTerrain de 160 m² à vendre à SauteyrarguesIDÉALEMENT SITUÉ – PROCHE DE MONTPELLIEREn vente à 33 km de la mer Méditerranée et à quelques kilomètres de Montpellier à Sauteyrargues (34270), terrain de 160 m². Il est prêt à accueillir la maison de vos rêves pour toute la famille. Il bénéficie d’une exposition sud. Ce terrain se trouve dans un quartier convoité. Une école primaire y est implantée. Il y a une bibliothèque à proximité du terrain.Son prix de vente est de 99 000 €. Contactez notre agence (Cédric : (Numéro supprimé)) pour plus de renseignements sur le terrain, sur les démarches à suivre ou sur les modalités de vente. Maisons Balency Castries est là pour vous accompagner dans tous vos projets immobiliers.
Sauteyrargues
TERRAIN ET MAISONVENTE : maison T4 (80 m²) à SauteyrarguesIDÉALEMENT SITUÉE – MAISON 4 PIÈCES NEUVEÀ vendre : située à 33 km de la côte méditerranéenne et à quelques kilomètres de Montpellier, idéalement située dans Sauteyrargues (34270), nous vous présentons cette maison de 4 pièces de 80 m² et de 160 m² de terrain.C’est une maison de 2 niveaux. Son intérieur comporte trois chambres, une cuisine et une salle de bains. Cette maison est neuve.La maison se situe dans un quartier attractif. Une école primaire y est implantée. On trouve une bibliothèque à proximité de la maison.Son prix de vente est de 250 000 €.N’hésitez pas à prendre contact avec notre agence (Cédric : (Numéro supprimé)) pour obtenir de plus amples renseignements sur la maison ou sur les démarches à suivre. Concrétisez vos projets immobiliers avec Maisons Balency Castries.
Sauteyrargues
TERRAIN ET MAISONSauteyrargues : maison de 3 pièces (71 m²) à vendreIDÉALEMENT SITUÉE – MAISON 3 PIÈCES NEUVEÀ 33 km de la mer Méditerranée et à 25 km de Montpellier, venez découvrir à vendre, idéalement située dans Sauteyrargues (34270), cette maison de 3 pièces de plain-pied de 71 m² et de 160 m² de terrain.Son intérieur inclut deux chambres, une cuisine et une salle de bains. La maison est neuve.La maison se trouve dans un quartier convoité. On y trouve une école primaire. Il y a une bibliothèque dans les environs.Son prix de vente est de 235 000 €.N’hésitez pas à prendre contact avec notre agence (Cédric : (Numéro supprimé)) pour tout renseignement sur la maison ou sur les démarches à suivre.
L’actualité immobilière à Lauret
27/11/2023
02/11/2023
30/10/2023
20/10/2023
16/10/2023
16/10/2023