Maison à construire à Lauret (34270)
Images
Description
VENTE : maison de 6 pièces (110 m²) à Lauret
IDÉALEMENT SITUÉE - MAISON 6 PIÈCES NEUVE
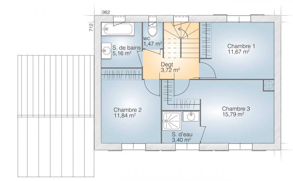
En vente : située à 34 km de la mer Méditerranée et à quelques kilomètres de Montpellier, nous vous présentons, idéalement située dans Lauret (34270), cette maison de 6 pièces de 110 m² et de 788 m² de terrain. Elle compte trois chambres, une cuisine et une salle de bains.
Cette maison possède 2 niveaux. Elle est neuve.
Cette maison se situe dans un quartier convoité. L'École Primaire Martin Doumergue est implantée à moins de 10 minutes à pied. On trouve une bibliothèque, un tennis et une épicerie à quelques minutes.
Elle est proposée à l'achat pour 399 000 €.
N'hésitez pas à prendre contact avec notre agence (Jean-Yves BARBAGLIA : (Numéro supprimé)) pour tout renseignement sur la maison. Concrétisez vos projets immobiliers avec Maisons Balency Castries.
Logement susceptibles de vous intéresser
Nous vous proposons de découvrir aussi cette sélection de logements situés à moins de 10km de Lauret et qui seraient susceptibles de vous intéresser.
Mas-de-Londres
TERRAIN ET MAISONMaison de 6 pièces (95 m²) en vente à Mas-de-LondresEMPLACEMENT PRIVILÉGIÉ – MAISON 6 PIÈCES NEUVEÀ vendre à 34 km de la mer Méditerranée et à quelques kilomètres de Montpellier, Maisons Balency Castries vous présente cette maison de 6 pièces de 95 m² bénéficiant d’un emplacement privilégié dans Mas-de-Londres (34380).Cette maison possède 2 niveaux. Elle est composée de trois chambres, d’une cuisine et de deux salles de bains. La maison est neuve.Le terrain de la propriété est de 500 m².La maison se situe dans un quartier attractif. L’autoroute A750 et la nationale N109 sont accessibles à moins de 19 km. Il y a une boulangerie dans les environs.Elle est proposée à l’achat pour 295 000 €.Prenez contact avec notre agence ( Cédric : (Numéro supprimé)) pour obtenir de plus amples renseignements sur le bien.
Mas-de-Londres
TERRAIN ET MAISONVENTE : maison de 5 pièces (120 m²) à Mas-de-LondresEMPLACEMENT PRIVILÉGIÉ – MAISON 5 PIÈCES NEUVEEn vente à 34 km de la mer Méditerranée et à quelques kilomètres de Montpellier, bénéficiant d’un emplacement privilégié dans Mas-de-Londres (34380), nous sommes heureux de vous présenter cette maison de 5 pièces de 120 m². Elle compte quatre chambres, une cuisine et trois salles de bains.Le terrain de la propriété est de 500 m².Cette maison comporte 2 niveaux. Elle est neuve.La maison est située dans un quartier convoité. L’autoroute A750 et la nationale N109 sont accessibles à moins de 19 km. Il y a une boulangerie à quelques minutes du bien.Elle est à vendre pour la somme de 350 000 €.N’hésitez pas à prendre contact avec Cédric (tél : (Numéro supprimé)) pour obtenir de plus amples informations sur le bien. Concrétisez vos projets immobiliers avec Maisons Balency Castries.
Mas-de-Londres
TERRAIN ET MAISONMas-de-Londres : maison F5 (110 m²) en venteEMPLACEMENT PRIVILÉGIÉ – MAISON 5 PIÈCES NEUVEÀ vendre à 34 km de la côte méditerranéenne et à deux pas de Montpellier, bénéficiant d’un emplacement d’exception dans Mas-de-Londres (34380), nous sommes heureux de vous présenter cette maison de 5 pièces de 110 m². Elle propose quatre chambres, une cuisine et deux salles de bains.Le terrain de cette maison s’étend sur 500 m².Cette maison compte 2 niveaux. Elle est neuve.Cette maison se situe dans un quartier prisé. L’autoroute A750 et la nationale N109 sont accessibles à moins de 19 km. On trouve une boulangerie dans les environs.Elle est proposée à l’achat pour 320 000 €.Prenez contact avec Cédric (tél : (Numéro supprimé)) pour toute information sur la propriété et sur les modalités de vente. Maisons Balency Castries vous accompagne dans tous vos projets immobiliers et à toutes les étapes de votre projet.
Mas-de-Londres
TERRAINMas-de-Londres : terrain de 500 m² en venteEMPLACEMENT PRIVILÉGIÉ – PROCHE DE MONTPELLIERÀ Mas-de-Londres (34380) à 34 km de la mer Méditerranée et à deux pas de Montpellier, venez découvrir ce terrain de 500 m². Il se trouve dans un secteur recherché. L’autoroute A750 et la nationale N109 sont accessibles à moins de 19 km. Il y a une boulangerie à proximité du bien.Il est proposé à l’achat pour 150 000 €. Prenez contact avec notre agence ( Cédric : (Numéro supprimé)) pour toute question sur ce terrain.
Saint-Mathieu-de-Tréviers
TERRAIN ET MAISONVENTE : maison F5 (98 m²) à Saint-Mathieu-de-TréviersEMPLACEMENT PRIVILÉGIÉ – MAISON 5 PIÈCES NEUVEÀ 27 km de la côte méditerranéenne et à deux pas de Montpellier, ayez le coup de coeur pour cette maison de 5 pièces de 98 m² bénéficiant d’un emplacement d’exception dans Saint-Mathieu-de-Tréviers (34270).C’est une maison de 2 niveaux. Son intérieur propose quatre chambres, une cuisine et une salle de bains. La maison est neuve.Le terrain de la propriété est de 265 m².Cette maison se trouve dans un quartier prisé. Il y a le Collège Alain Savary, l’École Élémentaire Agnès Gélly et l’École Maternelle les Fontanilles à moins de 10 minutes à pied et deux structures d’accueil pour les tout-petits. Les autoroutes A709 et A750 et les nationales N113 et N109 sont accessibles à moins de 18 km. On trouve une bibliothèque, un tennis, un bassin de natation, des commerces, deux boulangeries, un supermarché, deux boucheries-charcuteries et un bureau de poste dans les environs.Elle est à vendre pour la somme de 339 900 €.Prenez contact avec Jean-Yves BARBAGLIA (tél : (Numéro supprimé)) pour tout renseignement sur la maison. Maisons Balency Castries est là pour vous accompagner dans tous vos projets immobiliers.
Saint-Mathieu-de-Tréviers
TERRAINTerrain de 173 m² à vendre à Saint-Mathieu-de-TréviersPROCHE DE MONTPELLIERA 27 km de la mer Méditerranée et à 17 km de Montpellier, donnez vie à votre résidence principale ou secondaire sur ce terrain de 173 m². Il est orienté au sud-est. Le Collège Alain Savary, l’École Élémentaire Agnès Gélly et l’École Maternelle les Fontanilles sont implantés à moins de 10 minutes à pied, tout comme deux crèches. Les autoroutes A709 et A750 et les nationales N113 et N109 sont accessibles à moins de 18 km. Il y a une bibliothèque, un tennis, un bassin de natation, des commerces, deux boulangeries, un supermarché, un bureau de poste et deux boucheries-charcuteries dans les environs.PRIX: 123 000 €. N’hésitez pas à prendre contact avec notre agence (MONDIERE Xavier : (Numéro supprimé)) pour plus d’informations sur ce terrain, sur les démarches à suivre et sur les modalités de vente. Maisons France Confort Montpellier est là pour vous accompagner à toutes les étapes de l’achat.Annonce proposée par un Agent Commercial Partenaire.
Saint-Bauzille-de-Montmel
TERRAIN ET MAISONVENTE d’une maison de 4 pièces (78 m²) à Saint-Bauzille-de-MontmelMAISON 4 PIÈCES NEUVE – PROCHE DE MONTPELLIERÀ vendre : à 25 km de la mer Méditerranée et à quelques kilomètres de Montpellier, nous sommes heureux de vous proposer cette maison de 4 pièces de 78 m² et de 406 m² de terrain à Saint-Bauzille-de-Montmel (34160). Elle se divise en trois chambres, une cuisine et une salle de bains.Cette maison possède 2 niveaux. Elle est neuve.Une école primaire est implantée dans le quartier. Les autoroutes A709 et A9 et la nationale N113 sont accessibles à moins de 15 km. Il y a un tennis, une bibliothèque, un commerce et une épicerie à proximité.Elle est à vendre pour la somme de 354 000 €.N’hésitez pas à prendre contact avec notre agence (BOUBAL Vincent : (Numéro supprimé)) pour plus d’informations sur la maison ou sur les démarches à suivre. Maisons de Manon Villevieille est là pour vous accompagner à toutes les étapes de l’achat.
Saint-Mathieu-de-Tréviers
TERRAINVENTE d’un terrain de 229 m² à Saint-Mathieu-de-TréviersPROCHE DE MONTPELLIERÀ Saint-Mathieu-de-Tréviers (34270) à vendre à 27 km de la côte méditerranéenne et à quelques kilomètres de Montpellier, imaginez la maison de vos rêves sur ce terrain de 229 m². Il y a le Collège Alain Savary, l’École Élémentaire Agnès Gélly et l’École Maternelle les Fontanilles à moins de 10 minutes à pied et deux structures d’accueil pour les enfants en bas âge. Les autoroutes A709 et A750 et les nationales N113 et N109 sont accessibles à moins de 18 km. On trouve une bibliothèque, un tennis, un bassin de natation, des commerces, deux boulangeries, un supermarché, deux boucheries-charcuteries et un bureau de poste à proximité.PRIX:135 000 €. Prenez contact avec Xavier MONDIERE (tél : (Numéro supprimé)) pour plus d’informations sur le terrain ou sur les modalités de vente. Maisons France Confort Montpellier est là pour vous accompagner dans toutes vos démarches.Annonce proposée par un Agent Commercial Partenaire.
Lauret
TERRAINLauret : terrain de 788 m² à vendreIDÉALEMENT SITUÉ – PROCHE DE MONTPELLIERÀ Lauret (34270) à vendre à 34 km de la côte méditerranéenne et à 25 km de Montpellier, donnez vie à la maison de vos rêves sur ce terrain de 788 m². Ce terrain, avec vue sur jardin, est orienté plein sud. Il se situe dans un secteur attractif. Il y a l’École Primaire Martin Doumergue à moins de 10 minutes à pied. On trouve une bibliothèque, un tennis et une épicerie à quelques minutes de la propriété.Ce terrain est à vendre pour la somme de 179 900 €. Contactez notre agence (BARBAGLIA Jean-Yves : (Numéro supprimé)) pour tout renseignement sur ce terrain, sur les modalités de vente ou sur les démarches à suivre.
L’actualité immobilière à Lauret
27/11/2023
02/11/2023
30/10/2023
20/10/2023
16/10/2023
16/10/2023