Maison à construire à Le Crès (34920)
Images
Description
VENTE : maison de 7 pièces (140 m²) au Crès
EMPLACEMENT PRIVILÉGIÉ - MAISON 7 PIÈCES NEUVE
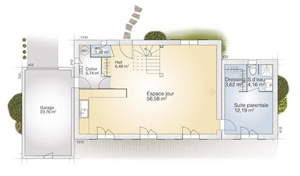
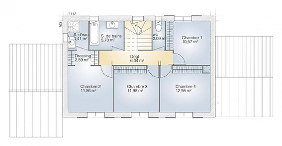
À 13 km de la mer Méditerranée et à deux pas de Montpellier, nous vous proposons en vente, bénéficiant d'un emplacement d'exception dans Le Crès (34920), cette maison de 7 pièces de 140 m². Son intérieur inclut cinq chambres, une cuisine et trois salles de bains.
Le terrain de la propriété est de 750 m².
C'est une maison de 2 niveaux. Elle est neuve.
Cette maison se trouve dans un secteur convoité. Cinq établissements scolaires sont implantés à moins de 10 minutes à pied, tout comme une structure d'accueil pour les tout-petits. Niveau transports, il y a quatre gares à moins de 10 minutes en voiture. L'autoroute A709 et les nationales N113 et N109 sont accessibles à moins de 10 km. On trouve une bibliothèque, deux boulangeries et un commerce à proximité.
Elle est à vendre pour la somme de 770 000 €.
Prenez contact avec notre agence (Cédric : (Numéro supprimé)) pour toute question sur la maison ou sur les modalités de vente. Donnez vie à vos projets immobiliers avec Maisons Balency Castries.
Logement susceptibles de vous intéresser
Nous vous proposons de découvrir aussi cette sélection de logements situés à moins de 10km de Le Crès et qui seraient susceptibles de vous intéresser.
Saint-Drézéry
TERRAIN ET MAISONMaison de 5 pièces (120 m²) en vente à Saint-DrézéryIDÉALEMENT SITUÉE – MAISON 5 PIÈCES NEUVEÀ vendre : localisée à 21 km de la mer Méditerranée et à quelques kilomètres de Montpellier, nous vous proposons cette maison de 5 pièces de plain-pied de 120 m² idéalement située dans Saint-Drézéry (34160).Conçue de plain-pied, elle compte trois chambres, une cuisine et deux salles de bains. La maison est neuve.Le terrain du bien s’étend sur 500 m².La maison est située dans un secteur convoité. Il y a des établissements scolaires maternelles et élémentaires à moins de 10 minutes à pied et, comme l’École Maternelle les Petits Poucets. Niveau transports, on trouve les gares Baillargues et Valergues-Lansargues à moins de 10 minutes en voiture. L’autoroute A709 et la nationale N113 sont accessibles à moins de 9 km. Il y a un tennis, une bibliothèque, une boulangerie, quatre commerces, une boucherie-charcuterie, un bureau de poste et deux épiceries à quelques minutes.Son prix de vente est de 550 000 €.Contactez notre agence (BARBAGLIA Jean-Yves : (Numéro supprimé)) pour obtenir de plus amples renseignements sur la maison, sur les démarches à suivre ou sur les modalités de vente.
Saint-Drézéry
TERRAIN ET MAISONSaint-Drézéry : maison T6 (100 m²) en venteIDÉALEMENT SITUÉE – MAISON 6 PIÈCES NEUVEÀ vendre à 21 km de la mer Méditerranée et à deux pas de Montpellier, Maisons Balency Castries vous propose, idéalement située dans Saint-Drézéry (34160), cette maison de 6 pièces de 100 m² sans vis-à-vis. Elle propose trois chambres, une cuisine et deux salles de bains.Le terrain de cette maison s’étend sur 500 m².Il s’agit d’une maison de 2 niveaux. Elle est neuve.La maison se situe dans un quartier attractif. Des écoles primaires se trouvent à moins de 10 minutes à pied, tout comme, parmi lesquelles l’École Maternelle les Petits Poucets. Niveau transports, il y a deux gares (Baillargues et Valergues-Lansargues) à moins de 10 minutes en voiture. L’autoroute A709 et la nationale N113 sont accessibles à moins de 9 km. On trouve un tennis, une bibliothèque, une boulangerie, quatre commerces, deux épiceries, une boucherie-charcuterie et un bureau de poste à proximité du bien.Elle est proposée à l’achat pour 445 000 €.Contactez notre agence (BARBAGLIA Jean-Yves : (Numéro supprimé)) pour obtenir de plus amples informations sur la maison, sur les démarches à suivre ou sur les modalités de vente. Maisons Balency Castries est là pour vous accompagner dans tous vos projets immobiliers.
Castries
TERRAIN ET MAISONMaison de 4 pièces (110 m²) à vendre à CastriesPROCHE CENTRE-VILLE – MAISON 4 PIÈCES NEUVEEn vente : située à 15 km de la mer Méditerranée et à deux pas de Montpellier, notre agence Maisons Balency Castries est heureuse de vous proposer cette maison de 4 pièces de plain-pied de 110 m² proche du centre-ville de Castries (34160). Conçue de plain-pied, elle offre trois chambres, une cuisine et deux salles de bains.Le terrain de la maison est de 720 m².La maison est neuve.Il y a l’École Primaire Privée Sainte Marie, l’École Élémentaire Marcel Pagnol, l’École Maternelle le Chat Perché de la Guesse et le Collège les Pins à moins de 10 minutes à pied et deux crèches. Côté transports, on trouve quatre gares à moins de 10 minutes en voiture. L’autoroute A709 et la nationale N113 sont accessibles à moins de 3 km. Il y a des commerces, une boulangerie, un supermarché, un bureau de poste et une épicerie dans les environs.Elle est proposée à l’achat pour 597 800 €.Prenez contact avec Jean-Yves BARBAGLIA ((Numéro supprimé)) pour toute question sur le bien.
Prades-le-Lez
TERRAINVENTE d’un terrain de 400 m² à Prades-le-LezEMPLACEMENT PRIVILÉGIÉ – VUE DÉGAGÉEÀ Prades-le-Lez (34730) en vente à 22 km de la côte méditerranéenne et à 11 km de Montpellier, venez découvrir ce terrain de 400 m². Ce terrain, avec vue dégagée, bénéficie d’une exposition sud-ouest. Dans un secteur recherché, ce terrain bénéficiant d’un emplacement d’exception est proche des écoles et des commerces. Il y a une école primaire dans le quartier. Les autoroutes A709, A750 et A9 et les nationales N113 et N109 sont accessibles à moins de 20 km. On trouve deux bibliothèques et un tennis à proximité du bien.Son prix de vente est de 229 000 €. Contactez Jean-Yves BARBAGLIA ((Numéro supprimé)) pour toute question sur le terrain.
Prades-le-Lez
TERRAIN ET MAISONMaison de 4 pièces (90 m²) en vente à Prades-le-LezEMPLACEMENT PRIVILÉGIÉ – VUE DÉGAGÉEEn vente : localisée à 22 km de la mer Méditerranée et à quelques kilomètres de Montpellier, venez découvrir cette maison de 4 pièces de 90 m² avec vue dégagée bénéficiant d’un emplacement d’exception dans Prades-le-Lez (34730).Cette maison possède 2 niveaux. Son intérieur se divise en trois chambres, une cuisine et deux salles de bains. Cette maison est neuve.Le terrain du bien est de 400 m².La maison est située dans un quartier recherché. On y trouve une école primaire. Les autoroutes A709, A750 et A9 et les nationales N113 et N109 sont accessibles à moins de 20 km. On trouve deux bibliothèques et un tennis à quelques minutes du logement.Elle est à vendre pour la somme de 399 500 €.N’hésitez pas à prendre contact avec notre agence (BARBAGLIA Jean-Yves : (Numéro supprimé)) pour plus d’informations sur la maison et sur les démarches à suivre.
Castries
TERRAINVENTE : terrain de 720 m² à CastriesPROCHE CENTRE-VILLE – VUE SANS VIS-À-VISÀ Castries (34160) à vendre à 15 km de la côte méditerranéenne et à deux pas de Montpellier, donnez vie à votre projet immobilier sur ce terrain de 720 m². Ce terrain, sans vis-à-vis, est orienté au sud. Non loin du centre-ville, le terrain est proche des écoles et des commerces. L’École Primaire Privée Sainte Marie, l’École Élémentaire Marcel Pagnol, l’École Maternelle le Chat Perché de la Guesse et le Collège les Pins sont implantés à moins de 10 minutes à pied, tout comme deux structures d’accueil pour la petite enfance. Côté transports en commun, on trouve quatre gares à moins de 10 minutes en voiture. L’autoroute A709 et la nationale N113 sont accessibles à moins de 3 km. Il y a des commerces, une boulangerie, un supermarché, une épicerie et une boucherie-charcuterie à quelques minutes à peine.Son prix de vente est de 350 000 €. Contactez Jean-Yves BARBAGLIA (tél : (Numéro supprimé)) pour tout renseignement sur le terrain. Maisons Balency Castries est là pour vous accompagner à toutes les étapes de l’achat.
Prades-le-Lez
TERRAIN ET MAISONVENTE d’une maison T6 (100 m²) à Prades-le-LezEMPLACEMENT PRIVILÉGIÉ – MAISON 6 PIÈCES NEUVEEn vente : localisée à 22 km de la mer Méditerranée et à 11 km de Montpellier, nous sommes heureux de vous présenter, bénéficiant d’un emplacement d’exception dans Prades-le-Lez (34730), cette maison de 6 pièces de 100 m² et de 400 m² de terrain.C’est une maison de 2 niveaux. Son intérieur propose trois chambres, une cuisine et deux salles de bains. Cette maison est neuve.La maison se trouve dans un secteur recherché. Une école primaire y est implantée. Les autoroutes A709, A750 et A9 et les nationales N113 et N109 sont accessibles à moins de 20 km. Il y a deux bibliothèques et un tennis dans les environs.Elle est à vendre pour la somme de 427 800 €.N’hésitez pas à prendre contact avec notre agence (Jean-Yves BARBAGLIA : (Numéro supprimé)) pour tout renseignement sur la maison, sur les démarches à suivre ou sur les modalités de vente. Maisons Balency Castries vous accompagne à toutes les étapes de votre projet et dans tous vos projets immobiliers.
Castries
TERRAIN ET MAISONCastries : maison F5 (130 m²) à vendrePROCHE CENTRE-VILLE – VUE SANS VIS-À-VISEn vente : à 15 km de la côte méditerranéenne et à quelques kilomètres de Montpellier, proche du centre-ville de Castries (34160), votre agence Maisons Balency Castries est ravie de vous présenter cette maison de 5 pièces de 130 m² et de 720 m² de terrain sans vis-à-vis.Il s’agit d’une maison de 2 niveaux. Elle est composée de quatre chambres, d’une cuisine et de deux salles de bains. La maison est neuve.Il y a l’École Primaire Privée Sainte Marie, l’École Élémentaire Marcel Pagnol, l’École Maternelle le Chat Perché de la Guesse et le Collège les Pins à moins de 10 minutes à pied et deux structures d’accueil pour les enfants en bas âge. Côté transports, on trouve quatre gares à moins de 10 minutes en voiture. L’autoroute A709 et la nationale N113 sont accessibles à moins de 3 km. Il y a des commerces, une boulangerie, un supermarché, un bureau de poste et une épicerie à quelques minutes.Il est à vendre pour la somme de 653 000 €.Prenez contact avec notre constructeur (BARBAGLIA Jean-Yves : (Numéro supprimé)) pour toute question sur la maison ou sur les démarches à suivre. Maisons Balency Castries est là pour vous accompagner à toutes les étapes de l’achat.
Saint-Drézéry
TERRAIN ET MAISONMaison T6 (110 m²) à vendre à Saint-DrézéryIDÉALEMENT SITUÉE – MAISON 6 PIÈCES NEUVEEn vente : localisée à 21 km de la côte méditerranéenne et à 16 km de Montpellier, Maisons Balency Castries vous présente, idéalement située dans Saint-Drézéry (34160), cette maison de 6 pièces de 110 m² et de 500 m² de terrain.C’est une maison de 2 niveaux. Son intérieur dispose de trois chambres, d’une cuisine et d’une salle de bains. Cette maison est neuve.La maison est située dans un quartier convoité. Des écoles primaires se trouvent à moins de 10 minutes à pied, tout comme dont l’École Maternelle les Petits Poucets. Niveau transports, il y a les gares Baillargues et Valergues-Lansargues à moins de 10 minutes en voiture. L’autoroute A709 et la nationale N113 sont accessibles à moins de 9 km. On trouve un tennis, une bibliothèque, une boulangerie, quatre commerces, une boucherie-charcuterie, un bureau de poste et deux épiceries dans les environs.Elle est proposée à l’achat pour 467 000 €.Contactez notre agence (BARBAGLIA Jean-Yves : (Numéro supprimé)) pour plus d’informations sur la maison. Maisons Balency Castries vous accompagne dans toutes vos démarches et dans tous vos projets immobiliers.
L’actualité immobilière à Le Crès
27/11/2023
02/11/2023
30/10/2023
20/10/2023
16/10/2023
16/10/2023