Maison à construire à Le Triadou (34270)
Images
Description
VENTE d'une maison de 6 pièces (110 m²) au Triadou
IDÉALEMENT SITUÉE - MAISON 6 PIÈCES NEUVE
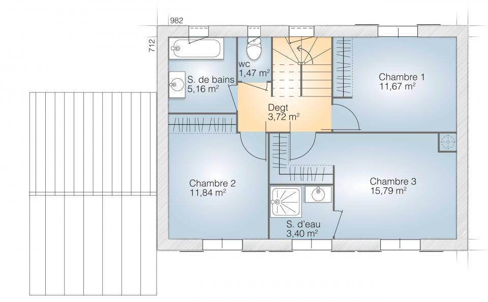
En vente à 25 km de la mer Méditerranée et à quelques kilomètres de Montpellier, nous sommes ravis de vous proposer, idéalement située dans Le Triadou (34270), cette maison de 6 pièces de 110 m² et de 610 m² de terrain.
Cette maison compte 2 niveaux. Son intérieur se divise en trois chambres, une cuisine et une salle de bains. La maison est neuve.
Cette propriété se situe dans un secteur attractif. Les autoroutes A750 et A709 et les nationales N113 et N109 sont accessibles à moins de 15 km. On trouve un tennis à quelques minutes.
Son prix de vente est de 478 800 €.
Contactez notre agence (Jean-Yves BARBAGLIA : (Numéro supprimé)) pour toute question sur la maison, sur les démarches à suivre ou sur les modalités de vente. Maisons Balency Castries est là pour vous accompagner à toutes les étapes de votre projet.
Logement susceptibles de vous intéresser
Nous vous proposons de découvrir aussi cette sélection de logements situés à moins de 10km de Le Triadou et qui seraient susceptibles de vous intéresser.
Sainte-Croix-de-Quintillargues
TERRAINTerrain de 400 m² en vente à Sainte-Croix-de-QuintillarguesIDÉALEMENT SITUÉ – VUE DÉGAGÉEÀ Sainte-Croix-de-Quintillargues (34270) à vendre à 26 km de la mer Méditerranée et à 18 km de Montpellier, venez découvrir ce terrain de 400 m². Il profite d’une vue dégagée. Il se trouve dans un secteur attractif. Il y a l’École Primaire André Plagniol à moins de 10 minutes à pied. Les autoroutes A709, A9 et A750 et les nationales N113 et N109 sont accessibles à moins de 20 km. On trouve une bibliothèque et une épicerie à quelques minutes de la propriété.Son prix de vente est de 209 000 €. Contactez notre agence (Jean-Yves BARBAGLIA : (Numéro supprimé)) pour toute question sur le terrain. Maisons Balency Castries vous accompagne dans tous vos projets immobiliers et à toutes les étapes de votre projet.
Sainte-Croix-de-Quintillargues
TERRAIN ET MAISONMaison T6 (100 m²) en vente à Sainte-Croix-de-QuintillarguesIDÉALEMENT SITUÉE – VUE DÉGAGÉEEn vente : à 26 km de la côte méditerranéenne et à quelques kilomètres de Montpellier, Maisons Balency Castries vous présente, idéalement située dans Sainte-Croix-de-Quintillargues (34270), cette maison de 6 pièces de 100 m² avec vue dégagée.Cette maison compte 2 niveaux. Son intérieur est composé de trois chambres, d’une cuisine et de deux salles de bains. La maison est neuve.Le terrain du bien s’étend sur 400 m².Cette maison se situe dans un secteur recherché. Il y a l’École Primaire André Plagniol à moins de 10 minutes à pied. Les autoroutes A709, A9 et A750 et les nationales N113 et N109 sont accessibles à moins de 20 km. On trouve une bibliothèque et une épicerie à quelques minutes de la maison.Son prix de vente est de 432 700 €.Prenez contact avec notre agence (BARBAGLIA Jean-Yves : (Numéro supprimé)) pour tout renseignement sur la propriété ou sur les démarches à suivre. Faites de vos projets immobiliers une réalité avec Maisons Balency Castries.
Sainte-Croix-de-Quintillargues
TERRAIN ET MAISONVENTE : maison F5 (83 m²) à Sainte-Croix-de-QuintillarguesIDÉALEMENT SITUÉE – MAISON 5 PIÈCES NEUVEÀ 26 km de la côte méditerranéenne et à quelques kilomètres de Montpellier, Maisons Balency Castries vous propose en vente, idéalement située dans Sainte-Croix-de-Quintillargues (34270), cette maison de 5 pièces de plain-pied de 83 m². Son intérieur se divise en trois chambres, une cuisine et une salle de bains.Le terrain de la maison est de 400 m².La maison est neuve.Cette maison se situe dans un quartier convoité. Il y a l’École Primaire André Plagniol à moins de 10 minutes à pied. Les autoroutes A709, A9 et A750 et les nationales N113 et N109 sont accessibles à moins de 20 km. On trouve une bibliothèque et une épicerie à quelques minutes.Elle est proposée à l’achat pour 375 500 €.Contactez notre agence (BARBAGLIA Jean-Yves : (Numéro supprimé)) pour plus d’informations sur la maison ou sur les modalités de vente.
Le Triadou
TERRAINVENTE : terrain de 610 m² au TriadouIDÉALEMENT SITUÉ – PROCHE DE MONTPELLIERÀ 25 km de la mer Méditerranée et à 14 km de Montpellier au Triadou (34270), grand terrain. Il donne sur un jardin et est exposé plein sud. Il se trouve dans un quartier convoité. Les autoroutes A750 et A709 et les nationales N113 et N109 sont accessibles à moins de 15 km. Il y a un tennis à quelques minutes.Son prix de vente est de 259 000 €. Prenez contact avec notre agence (Jean-Yves BARBAGLIA : (Numéro supprimé)) pour tout renseignement sur ce terrain, sur les démarches à suivre ou sur les modalités de vente. Maisons Balency Castries est là pour vous accompagner à toutes les étapes de votre projet.
Le Triadou
TERRAIN ET MAISONVENTE d’une maison de 6 pièces (100 m²) au TriadouIDÉALEMENT SITUÉE – MAISON 6 PIÈCES NEUVEEn vente à 25 km de la côte méditerranéenne et à 14 km de Montpellier, idéalement située dans Le Triadou (34270), nous sommes ravis de vous présenter cette maison de 6 pièces de 100 m² avec vue sur jardin.Cette maison comporte 2 niveaux. Son intérieur comporte trois chambres, une cuisine et deux salles de bains. Cette maison est neuve.Le terrain de la propriété est de 610 m².La maison est située dans un quartier convoité. Les autoroutes A750 et A709 et les nationales N113 et N109 sont accessibles à moins de 15 km. Il y a un tennis à quelques minutes du bien.Elle est proposée à l’achat pour 465 900 €.Contactez Jean-Yves BARBAGLIA ((Numéro supprimé)) pour plus d’informations sur la maison, sur les modalités de vente ou sur les démarches à suivre. Maisons Balency Castries vous accompagne à toutes les étapes de l’achat et dans tous vos projets immobiliers.
Le Triadou
TERRAIN ET MAISONVENTE d’une maison de 6 pièces (110 m²) au TriadouIDÉALEMENT SITUÉE – MAISON 6 PIÈCES NEUVEEn vente à 25 km de la mer Méditerranée et à quelques kilomètres de Montpellier, nous sommes ravis de vous proposer, idéalement située dans Le Triadou (34270), cette maison de 6 pièces de 110 m² et de 610 m² de terrain.Cette maison compte 2 niveaux. Son intérieur se divise en trois chambres, une cuisine et une salle de bains. La maison est neuve.Cette propriété se situe dans un secteur attractif. Les autoroutes A750 et A709 et les nationales N113 et N109 sont accessibles à moins de 15 km. On trouve un tennis à quelques minutes.Son prix de vente est de 478 800 €.Contactez notre agence (Jean-Yves BARBAGLIA : (Numéro supprimé)) pour toute question sur la maison, sur les démarches à suivre ou sur les modalités de vente. Maisons Balency Castries est là pour vous accompagner à toutes les étapes de votre projet.
Teyran
TERRAINVENTE : terrain de 360 m² à TeyranEMPLACEMENT PRIVILÉGIÉ – PROCHE DE MONTPELLIEREn vente à 16 km de la côte méditerranéenne et à deux pas de Montpellier à Teyran (34820), terrain de 360 m². Dans un secteur convoité, ce terrain bénéficiant d’un emplacement d’exception est proche des écoles et des commerces. Des écoles primaires sont implantées à moins de 10 minutes à pied, dont l’École Élémentaire Jules Ferry, tout comme une structure d’accueil pour la petite enfance. Côté transports, il y a quatre gares à moins de 10 minutes en voiture. L’autoroute A709 et la nationale N113 sont accessibles à moins de 7 km. On trouve une bibliothèque, un tennis, deux boulangeries, quatre commerces, un bureau de poste, une boucherie-charcuterie et une supérette à proximité du terrain.Son prix de vente est de 245 000 €. N’hésitez pas à prendre contact avec Cédric ((Numéro supprimé)) pour tout renseignement sur ce terrain, sur les modalités de vente ou sur les démarches à suivre.
Assas
TERRAINAssas : terrain de 430 m² en venteEMPLACEMENT PRIVILÉGIÉ – PROCHE DE MONTPELLIERÀ Assas (34820) à 19 km de la côte méditerranéenne et à 12 km de Montpellier, découvrez ce terrain de 430 m². Ce terrain, avec vue sur jardin, est exposé à l’ouest. Il se situe dans un secteur convoité. Des écoles maternelles et élémentaires y sont implantées et une structure d’accueil pour la petite enfance. Côté transports, il y a la gare Saint-Aunès à moins de 10 minutes en voiture. L’autoroute A709 et la nationale N113 sont accessibles à moins de 10 km. On trouve un tennis, une boulangerie, un commerce et une épicerie à quelques minutes.Ce terrain est à vendre pour la somme de 240 000 €. N’hésitez pas à prendre contact avec notre agence (Jean-Yves BARBAGLIA : (Numéro supprimé)) pour toute question sur ce terrain. Faites de vos projets immobiliers une réalité avec Maisons Balency Castries.
Assas
TERRAIN ET MAISONAssas : maison de 6 pièces (100 m²) en venteEMPLACEMENT PRIVILÉGIÉ – MAISON 6 PIÈCES NEUVEEn vente : localisée à 19 km de la mer Méditerranée et à deux pas de Montpellier, bénéficiant d’un emplacement d’exception dans Assas (34820), nous vous présentons cette maison de 6 pièces de 100 m² avec vue sur jardin.Cette maison compte 2 niveaux. Elle inclut trois chambres, une cuisine et deux salles de bains. Cette maison est neuve.Le terrain de la propriété est de 430 m².La maison est située dans un quartier attractif. On y trouve des écoles maternelles et élémentaires ainsi qu’une structure d’accueil pour les tout-petits. Niveau transports en commun, on trouve la gare Saint-Aunès à moins de 10 minutes en voiture. L’autoroute A709 et la nationale N113 sont accessibles à moins de 10 km. Il y a un tennis, une boulangerie, un commerce et une épicerie à proximité du logement.Elle est proposée à l’achat pour 451 500 €.Prenez contact avec notre agence (Jean-Yves BARBAGLIA : (Numéro supprimé)) pour toute information sur la maison. Maisons Balency Castries vous accompagne dans toutes vos démarches et à toutes les étapes de votre projet.
L’actualité immobilière à Le Triadou
27/11/2023
02/11/2023
30/10/2023
20/10/2023
16/10/2023
16/10/2023