Maison à construire à Loupian (34140)
Images
Description
Loupian : maison de 6 pièces (100 m²) à vendre
EMPLACEMENT PRIVILÉGIÉ - MAISON 6 PIÈCES NEUVE
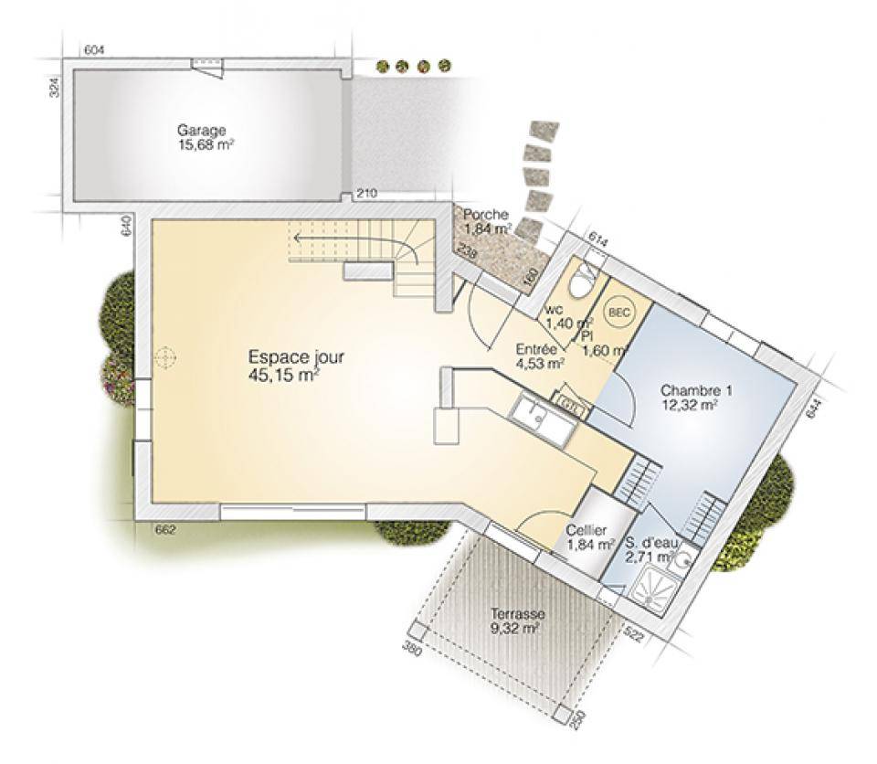
À 13 km de la mer Méditerranée et à deux pas de Montpellier, Maisons Balency Castries vous propose cette maison de 6 pièces de 100 m² et de 458 m² de terrain sans vis-à-vis bénéficiant d'un emplacement privilégié dans Loupian (34140).
Cette maison compte 2 niveaux. Son intérieur comporte trois chambres, une cuisine et deux salles de bains. La maison est neuve.
La propriété est située dans un secteur convoité. Il y a l'École Primaire le Chêne Vert et le Collège Olympe de Gouges à moins de 10 minutes à pied. Niveau transports en commun, on trouve la gare Sète à moins de 10 minutes en voiture. L'autoroute A9 est accessible à 7 km. Il y a un tennis, une bibliothèque, trois boulangeries, un commerce, une épicerie, un bureau de poste et une poissonnerie à quelques minutes à peine.
Son prix de vente est de 424 800 €.
Contactez notre agence (Jean-Yves BARBAGLIA : (Numéro supprimé)) pour tout renseignement sur la maison. Maisons Balency Castries vous accompagne à toutes les étapes de votre projet et dans tous vos projets immobiliers.
Logement susceptibles de vous intéresser
Nous vous proposons de découvrir aussi cette sélection de logements situés à moins de 10km de Loupian et qui seraient susceptibles de vous intéresser.
Poussan
TERRAINPoussan : terrain de 260 m² à vendreEMPLACEMENT PRIVILÉGIÉ – PROCHE DE MONTPELLIERTerrain de 260 m² à 10 km de la côte méditerranéenne et à 21 km de Montpellier. Ce terrain se situe bénéficiant d’un emplacement privilégié dans Poussan (34560). Il se situe dans un secteur prisé. L’École Maternelle les Baux, l’École Élémentaire les Baux, l’École Primaire Véronique Hébert et le Collège Via Domitia se trouvent à moins de 10 minutes à pied. Niveau transports en commun, il y a deux gares (Frontignan et Sète) à moins de 10 minutes en voiture. L’autoroute A9 est accessible à 2 km. On trouve un tennis, une bibliothèque, trois boulangeries, deux commerces, un supermarché, une épicerie et une poissonnerie dans les environs.Son prix de vente est de 153 000 €. Contactez Cédric (tél : (Numéro supprimé)) pour toute question sur ce terrain, sur les modalités de vente ou sur les démarches à suivre. Maisons Balency Castries est là pour vous accompagner dans tous vos projets immobiliers.
Poussan
TERRAIN ET MAISONVENTE d’une maison F3 (71 m²) à PoussanEMPLACEMENT PRIVILÉGIÉ – MAISON 3 PIÈCES NEUVEEn vente à 10 km de la mer Méditerranée et à deux pas de Montpellier, votre agence Maisons Balency Castries est ravie de vous proposer cette maison de 3 pièces de plain-pied de 71 m² et de 260 m² de terrain, bénéficiant d’un emplacement privilégié dans Poussan (34560). Conçue de plain-pied, elle offre deux chambres, une cuisine et une salle de bains.Cette maison est neuve.La maison se trouve dans un secteur recherché. L’École Maternelle les Baux, l’École Élémentaire les Baux, l’École Primaire Véronique Hébert et le Collège Via Domitia sont implantés à moins de 10 minutes à pied. Niveau transports, on trouve les gares Frontignan et Sète à moins de 10 minutes en voiture. L’autoroute A9 est accessible à 2 km. Il y a un tennis, une bibliothèque, trois boulangeries, deux commerces, un supermarché, un bureau de poste et une poissonnerie à quelques minutes.Elle est à vendre pour la somme de 270 000 €.N’hésitez pas à prendre contact avec Cédric (tél : (Numéro supprimé)) pour obtenir de plus amples informations sur la maison. Maisons Balency Castries est là pour vous accompagner à toutes les étapes de l’achat.
Poussan
TERRAIN ET MAISONMaison F4 (78 m²) en vente à PoussanEMPLACEMENT PRIVILÉGIÉ – MAISON 4 PIÈCES NEUVEÀ 10 km de la côte méditerranéenne et à 21 km de Montpellier, à vendre bénéficiant d’un emplacement d’exception dans Poussan (34560), découvrez cette maison de 4 pièces de 78 m² et de 260 m² de terrain.Cette maison possède 2 niveaux. Son intérieur inclut trois chambres, une cuisine et une salle de bains. Cette maison est neuve.La propriété se situe dans un secteur convoité. Il y a l’École Maternelle les Baux, l’École Élémentaire les Baux, l’École Primaire Véronique Hébert et le Collège Via Domitia à moins de 10 minutes à pied. Côté transports, on trouve deux gares (Frontignan et Sète) à moins de 10 minutes en voiture. L’autoroute A9 est accessible à 2 km. Il y a un tennis, une bibliothèque, trois boulangeries, deux commerces, un supermarché, un bureau de poste et deux boucheries-charcuteries à quelques minutes à peine.Elle est proposée à l’achat pour 310 000 €.Contactez notre agence ( Cédric : (Numéro supprimé)) pour plus de renseignements sur la maison, sur les modalités de vente ou sur les démarches à suivre. Maisons Balency Castries est là pour vous accompagner à toutes les étapes de votre projet.
Poussan
TERRAIN ET MAISONVENTE : maison de 5 pièces (101 m²) à PoussanEMPLACEMENT PRIVILÉGIÉ – MAISON 5 PIÈCES NEUVEÀ 10 km de la côte méditerranéenne et à deux pas de Montpellier, Maisons Balency Castries vous propose cette maison de 5 pièces de plain-pied de 101 m² et de 260 m² de terrain bénéficiant d’un emplacement d’exception dans Poussan (34560). Son intérieur inclut quatre chambres, une cuisine et une salle de bains.Cette maison est neuve.La maison se trouve dans un quartier recherché. L’École Maternelle les Baux, l’École Élémentaire les Baux, l’École Primaire Véronique Hébert et le Collège Via Domitia sont implantés à moins de 10 minutes à pied. Niveau transports en commun, il y a les gares Frontignan et Sète à moins de 10 minutes en voiture. Il y a un accès à l’autoroute A9 à 2 km. On trouve un tennis, une bibliothèque, trois boulangeries, deux commerces, un supermarché, une poissonnerie et une épicerie à quelques minutes du logement.Son prix de vente est de 295 000 €.Contactez Cédric ((Numéro supprimé)) pour toute information sur le bien. Maisons Balency Castries est là pour vous accompagner à toutes les étapes de votre projet.
Frontignan
TERRAINA vendre à FRONTIGNAN PLAGE avec accès direct à la plage : Rare sur le secteur, découvrez ce terrain de loisir de 1000 m² environ, viabilisé, bénéficiant d’un accès direct à la plage offrant un cadre de vie privilégié et une atmosphère unique. Ce bien comprend : un mazet en préfabriqué de type 4 d’environ 68 m², composé d’un grand séjour cuisine, 3 chambres et 1 salle de bain. Prévoir des travaux de rafraîchissement. Ideal pour les vacances ou les week-ends en bord de mer. Le terrain raccordé au tout à l’égoût est divisé en 5 parcelles sur lesquelles les locataires ont déposé un mobil home. Wc, cuisine d’été et salle d’eau sur chaque parcelle. Cet emplacement exceptionnel conviendra aussi bien à un projet familial qu’à un investissement de loisirs ou de rendement locatif. Un bien atypique à visiter sans tarder, offrant une situation privilégiée en bord de mer, alliant tranquillité et cadre naturel.Honoraires à la charge du vendeurVotre agent commercial 3G IMMO sur place EI – Catherine BEZOMBES inscrite au RSAC de MONTPELLIER n° 421 689 332 Selon l’article L.561.5 du Code Monétaire et Financier, pour l’organisation de la visite, la présentation d’une pièce d’identité vous sera demandée.Les informations sur les risques auxquels ce bien est exposé sont disponibles sur le site Géorisques : www.georisques.gouv.frLes informations sur les risques auxquels ce bien est exposé sont disponibles sur le site Géorisques : www.georisques.gouv.fr
Balaruc-le-Vieux
TERRAINVENTE : terrain de 355 m² à Balaruc-le-VieuxPROCHE DE MONTPELLIERÀ Balaruc-le-Vieux (34540) à 7 km de la côte méditerranéenne et à 22 km de Montpellier, venez découvrir ce terrain de 355 m². Il bénéficie d’une exposition nord-est. Il y a des établissements scolaires primaires à moins de 10 minutes à pied et, comme l’École Élémentaire du Mûrier Blanc. Niveau transports, on trouve deux gares (Sète et Frontignan) à moins de 10 minutes en voiture. L’autoroute A9 est accessible à 2 km. Il y a un tennis, des commerces, deux boulangeries, un supermarché et une boucherie-charcuterie à proximité.Il est proposé à l’achat pour 235 000 €. Prenez contact avec Xavier MONDIERE (tél : (Numéro supprimé)) pour toute question sur ce terrain. Maisons France Confort Montpellier vous accompagne dans tous vos projets immobiliers et à toutes les étapes de votre projet.Annonce proposée par un Agent Commercial Partenaire.
Balaruc-le-Vieux
TERRAINVENTE : terrain de 408 m² à Balaruc-le-VieuxPROCHE DE MONTPELLIERÀ Balaruc-le-Vieux (34540) à vendre à 7 km de la mer Méditerranée et à deux pas de Montpellier, imaginez la maison de vos rêves sur ce terrain de 408 m². Il bénéficie d’une exposition sud. Il y a des écoles maternelles et élémentaires à moins de 10 minutes à pied et, parmi lesquelles l’École Élémentaire du Mûrier Blanc. Niveau transports, on trouve les gares Sète et Frontignan à moins de 10 minutes en voiture. L’autoroute A9 est accessible à 2 km. Il y a un tennis, des commerces, deux boulangeries, un supermarché et une boucherie-charcuterie à quelques minutes de la propriété.Son prix de vente est de 275 000 €. Contactez notre agence (MONDIERE Xavier : (Numéro supprimé)) pour obtenir de plus amples informations sur ce terrain ou sur les démarches à suivre. Maisons France Confort Montpellier est là pour vous accompagner dans tous vos projets immobiliers.Annonce proposée par un Agent Commercial Partenaire.
Balaruc-le-Vieux
TERRAIN ET MAISONRéaliser le rêve d’être propriétaire proche de SETEA BALARUC LE VIEUX, Maisons France confort est ravie de vous proposer votre future maisonde plain-piedSon intérieur compte deux chambres, une salle de bains ainsi qu’un séjour salon cuisine très lumineux ouvert sur votre jardin et pouvant accueillir un îlot central.Menuiseries PVC, Baies alu avec volets roulants motorisés.Chauffage clim réversibleEmplacement recherché : Des écoles maternelles et élémentaires sont implantées à moins de 10 minutes à pied, tout comme dont l’École Élémentaire du Mûrier Blanc. Côté transports, il y a les gares Sète et Frontignan à moins de 10 minutes en voiture. On trouve un accès à l’autoroute A9 à 2 km. On trouve un tennis, des commerces, deux boulangeries, un supermarché et une boucherie-charcuterie à proximité.PRIX : 355 000€.(Sous réserve de disponibilités)Votre maison bioclimatique est livrée crépis gratté + carrelage dans toutes les pièces (A choisir). Dans la salle de bain la faïence est comprise (A choisir). Les sanitaires avec meuble vasque et wc suspendu sont déjà inclus. Tous les volets sont motorisésPrenez contact avec Xavier MONDIERE ((Numéro supprimé)) pour plus de renseignements sur la maison ou sur les démarches à suivre. Maisons France Confort Montpellier est à vos côté pour vous accompagner à toutes les étapes de votre projet personnalisé en contrat de construction loi de 90 (CCMI).Vous êtes en quête d’inspiration ? Pas de panique, notre équipe est entièrement disponible, à l’écoute de vos besoins et attentes pour vous conseiller afin de réaliser votre projet de vie !Annonce proposée par un Agent Commercial Partenaire.
Balaruc-le-Vieux
TERRAIN ET MAISONRéaliser le rêve d’être propriétaire proche de SETEA BALARUC LE VIEUX Maisons France confort est ravie de vous proposer votre future maison.Son intérieur compte trois chambres, une salle de bains ainsi qu’un séjour salon cuisine très lumineux ouvert sur votre jardin et pouvant accueillir un îlot central.Menuiseries PVC, Baies alu avec volets roulants motorisés.Chauffage clim réversibleEmplacement recherché : On trouve des établissements scolaires primaires à moins de 10 minutes à pied et dont l’École Élémentaire du Mûrier Blanc. Côté transports, il y a les gares Sète et Frontignan à moins de 10 minutes en voiture. L’autoroute A9 est accessible à 2 km. On trouve un tennis, des commerces, deux boulangeries, un supermarché et une boucherie-charcuterie à quelques minutes.PRIX : 420 000€.(Sous réserve de disponibilités)Votre maison bioclimatique est livrée crépis gratté + carrelage dans toutes les pièces (A choisir). Dans la salle de bain la faïence est comprise (A choisir). Les sanitaires avec meuble vasque et wc suspendu sont déjà inclus. Tous les volets sont motorisésPrenez contact avec Xavier MONDIERE ((Numéro supprimé)) pour plus de renseignements sur la maison ou sur les démarches à suivre. Maisons France Confort Montpellier est à vos côté pour vous accompagner à toutes les étapes de votre projet personnalisé en contrat de construction loi de 90 (CCMI).Vous êtes en quête d’inspiration ? Pas de panique, notre équipe est entièrement disponible, à l’écoute de vos besoins et attentes pour vous conseiller afin de réaliser votre projet de vie !Annonce proposée par un Agent Commercial Partenaire.
L’actualité immobilière à Loupian
27/11/2023
02/11/2023
30/10/2023
20/10/2023
16/10/2023
16/10/2023