Maison à construire à Magalas (34480)
Images
Description
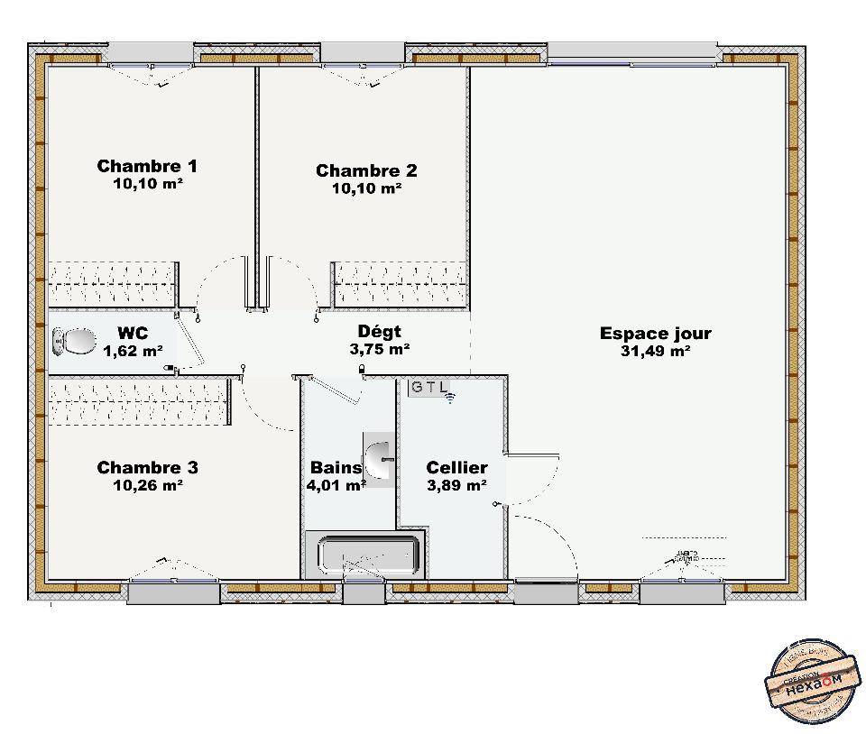
PROJET DE CONSTRUCTION OSSATURE BOIS - Maison T4 (75 m²) à Magalas
IDÉALEMENT SITUÉE - MAISON 4 PIÈCES
À vendre : à 26 km de la côte méditerranéenne et à deux pas de Béziers, nous vous proposons, idéalement située dans Magalas (34480), cette maison de 4 pièces de plain-pied de 75 m² et de 333 m² de terrain. Elle dispose de trois chambres, d'une cuisine, d'un cellier et d'une salle de bains + GARAGE.
(Carrelage inclus dans toutes les pièces / Raccordements inclus).
Cette maison se trouve dans un quartier recherché. L'École Élémentaire Capitaine Bonnet, le Collège les Arbourys et l'École Maternelle les Petits Grains sont implantés à moins de 10 minutes à pied. Côté transports, il y a la gare Magalas dans les environs. Les autoroutes A75 et A9 sont accessibles à moins de 16 km. On trouve un tennis, une boulangerie, deux commerces, un bureau de poste et une supérette à quelques minutes à peine.
Son prix de vente est de 238 000 €.
Pour plus d'information contacter (Anthony BALLESTER : (Numéro supprimé)) Maisons France Confort Béziers pour échanger sur votre projet et réaliser une étude gratuite. (Plan personnalisable). Tous nos ouvrages sont réalisés sur-mesure en fonction de vos attentes et de nos échanges avec vous ainsi que dans le respect de la règlementation RE 2020. Ce projet comporte les garanties suivantes: Contrat de construction CCMI. Dommage/Ouvrage. RC Garantie décennale. Parfaite achèvement. Etude de sol G2. Prix et délais convenu. Garantie de livraison. Garantie financière Pour votre tranquillité nous nous occupons de toutes les formalités administratives.
Logement susceptibles de vous intéresser
Nous vous proposons de découvrir aussi cette sélection de logements situés à moins de 10km de Magalas et qui seraient susceptibles de vous intéresser.
Pouzolles
TERRAINPouzolles : terrain de 450 m² en venteIDÉALEMENT SITUÉ – PROCHE DE BÉZIERSÀ Pouzolles (34480) en vente à 24 km de la mer Méditerranée et à quelques kilomètres de Béziers, découvrez ce terrain de 450 m². Dans un secteur recherché, ce terrain idéalement situé est proche des commerces et des écoles. Une école primaire est implantée dans la commune. Côté transports en commun, il y a la gare Magalas à moins de 10 minutes en voiture. L’autoroute A75 est accessible à 10 km. On trouve une bibliothèque, un tennis, une boulangerie et une épicerie à proximité.Son prix de vente est de 92 100 €. Prenez contact avec notre agence (MALDONADO Hervé : (Numéro supprimé)) pour plus de renseignements sur ce terrain.
Pouzolles
TERRAINPouzolles : terrain de 450 m² en venteIDÉALEMENT SITUÉ – PROCHE DE BÉZIERSÀ Pouzolles (34480) à 24 km de la côte méditerranéenne et à deux pas de Béziers, donnez vie à votre résidence principale ou secondaire sur ce terrain de 450 m². Dans un quartier prisé, le terrain idéalement situé est proche des commerces et des écoles. Une école primaire est implantée dans la commune. Niveau transports, on trouve la gare Magalas à moins de 10 minutes en voiture. L’autoroute A75 est accessible à 10 km. Il y a une bibliothèque, un tennis, une boulangerie et une épicerie à proximité de la propriété.Il est à vendre pour la somme de 96 300 €. N’hésitez pas à prendre contact avec notre agence (Hervé MALDONADO : (Numéro supprimé)) pour plus d’informations sur ce terrain ou sur les démarches à suivre. Concrétisez vos projets immobiliers avec Maisons Balency Pézenas.
Pouzolles
TERRAIN ET MAISONVENTE d’une maison T4 (81 m²) à PouzollesIDÉALEMENT SITUÉE – MAISON 4 PIÈCES NEUVEÀ 24 km de la mer Méditerranée et à 14 km de Béziers, nous sommes heureux de vous présenter cette maison de 4 pièces de plain-pied de 81 m² et de 450 m² de terrain idéalement située dans Pouzolles (34480).Conçue de plain-pied, elle propose trois chambres, une cuisine et une salle de bains. La maison est neuve.La maison se situe dans un secteur attractif. On y trouve une école primaire. Côté transports, on trouve la gare Magalas à moins de 10 minutes en voiture. L’autoroute A75 est accessible à 10 km. Il y a une bibliothèque, un tennis, une boulangerie et une épicerie à proximité.Elle est à vendre pour la somme de 217 000 €.Prenez contact avec Hervé MALDONADO ((Numéro supprimé)) pour toute information sur la maison, sur les démarches à suivre ou sur les modalités de vente.
Pouzolles
TERRAIN ET MAISONVENTE : maison F3 (71 m²) à PouzollesIDÉALEMENT SITUÉE – MAISON 3 PIÈCES NEUVEEn vente à 24 km de la mer Méditerranée et à deux pas de Béziers, votre agence Maisons Balency Pézenas est ravie de vous présenter cette maison de 3 pièces de plain-pied de 71 m² et de 450 m² de terrain idéalement située dans Pouzolles (34480).Conçue de plain-pied, elle propose deux chambres, une cuisine et une salle de bains. La maison est neuve.La maison se trouve dans un secteur recherché. Une école primaire y est implantée. Niveau transports en commun, il y a la gare Magalas à moins de 10 minutes en voiture. L’autoroute A75 est accessible à 10 km. On trouve une bibliothèque, un tennis, une boulangerie et une épicerie à quelques minutes de la maison.Son prix de vente est de 215 000 €.Prenez contact avec notre constructeur (MALDONADO Hervé : (Numéro supprimé)) pour toute information sur le bien ou sur les démarches à suivre.
Pouzolles
TERRAIN ET MAISONVENTE : maison T4 (78 m²) à PouzollesIDÉALEMENT SITUÉE – MAISON 4 PIÈCES NEUVEEn vente : localisée à 24 km de la mer Méditerranée et à deux pas de Béziers, votre agence Maisons Balency Pézenas est ravie de vous proposer cette maison de 4 pièces de 78 m² et de 450 m² de terrain idéalement située dans Pouzolles (34480).Il s’agit d’une maison de 2 niveaux. Elle offre trois chambres, une cuisine et une salle de bains. La maison est neuve.Cette maison est située dans un secteur convoité. Une école primaire y est implantée. Côté transports en commun, on trouve la gare Magalas à moins de 10 minutes en voiture. L’autoroute A75 est accessible à 10 km. Il y a une bibliothèque, un tennis, une boulangerie et une épicerie à quelques minutes du logement.Son prix de vente est de 230 000 €.Contactez Hervé MALDONADO ((Numéro supprimé)) pour toute information sur la maison. Faites de vos projets immobiliers une réalité avec Maisons Balency Pézenas.
Pouzolles
TERRAIN ET MAISONPouzolles : maison de 5 pièces (96 m²) en venteIDÉALEMENT SITUÉE – MAISON 5 PIÈCES NEUVEÀ 24 km de la côte méditerranéenne et à 14 km de Béziers, nous sommes heureux de vous présenter cette maison de 5 pièces de 96 m² et de 450 m² de terrain à vendre idéalement située dans Pouzolles (34480).C’est une maison de 2 niveaux. Son intérieur compte quatre chambres, une cuisine et une salle de bains. La maison est neuve.Ce bien se trouve dans un secteur attractif. On y trouve une école primaire. Côté transports en commun, il y a la gare Magalas à moins de 10 minutes en voiture. Il y a un accès à l’autoroute A75 à 10 km. On trouve une bibliothèque, un tennis, une boulangerie et une épicerie à proximité.Il est à vendre pour la somme de 269 000 €.N’hésitez pas à prendre contact avec Hervé MALDONADO ((Numéro supprimé)) pour toute question sur la maison. Concrétisez vos projets immobiliers avec Maisons Balency Pézenas.
Pouzolles
TERRAIN ET MAISONMaison T5 (73 m²) en vente à PouzollesIDÉALEMENT SITUÉE – MAISON 5 PIÈCES NEUVEÀ vendre : localisée à 24 km de la côte méditerranéenne et à deux pas de Béziers, idéalement située dans Pouzolles (34480), Maisons Balency Pézenas vous propose cette maison de 5 pièces de plain-pied de 73 m² et de 450 m² de terrain. Conçue de plain-pied, elle est composée de trois chambres, d’une cuisine et d’une salle de bains.La maison est neuve.Cette maison est située dans un quartier attractif. Une école primaire y est implantée. Niveau transports, on trouve la gare Magalas à moins de 10 minutes en voiture. On trouve un accès à l’autoroute A75 à 10 km. Il y a une bibliothèque, un tennis, une boulangerie et une épicerie à proximité.Elle est à vendre pour la somme de 232 000 €.Contactez Hervé MALDONADO (tél : (Numéro supprimé)) pour plus de renseignements sur la maison ou sur les modalités de vente.
Pouzolles
TERRAIN ET MAISONMaison de 6 pièces (95 m²) à vendre à PouzollesIDÉALEMENT SITUÉE – MAISON 6 PIÈCES NEUVEÀ 24 km de la côte méditerranéenne et à quelques kilomètres de Béziers, nous sommes heureux de vous présenter cette maison de 6 pièces de 95 m² en vente idéalement située dans Pouzolles (34480).Cette maison comporte 2 niveaux. Son intérieur compte trois chambres, une cuisine et une salle de bains. Cette maison est neuve.Le terrain de la propriété est de 450 m².Cette propriété se trouve dans un quartier attractif. Une école primaire y est implantée. Niveau transports en commun, il y a la gare Magalas à moins de 10 minutes en voiture. L’autoroute A75 est accessible à 10 km. On trouve une bibliothèque, un tennis, une boulangerie et une épicerie à proximité du bien.Elle est proposée à l’achat pour 314 000 €.Prenez contact avec notre agence (MALDONADO Hervé : (Numéro supprimé)) pour toute question sur la maison, sur les modalités de vente ou sur les démarches à suivre.
Pouzolles
TERRAIN ET MAISONVENTE : maison T5 (85 m²) à PouzollesIDÉALEMENT SITUÉE – MAISON 5 PIÈCES NEUVEÀ vendre : située à 24 km de la côte méditerranéenne et à 14 km de Béziers, idéalement située dans Pouzolles (34480), nous vous présentons cette maison de 5 pièces de plain-pied de 85 m² et de 450 m² de terrain. Son intérieur dispose de trois chambres, d’une cuisine et d’une salle de bains.Cette maison est neuve.Le bien se situe dans un quartier attractif. Une école primaire y est implantée. Niveau transports en commun, on trouve la gare Magalas à moins de 10 minutes en voiture. L’autoroute A75 est accessible à 10 km. Il y a une bibliothèque, un tennis, une boulangerie et une épicerie à proximité du logement.Il est proposé à l’achat pour 264 000 €.Contactez notre agence (MALDONADO Hervé : (Numéro supprimé)) pour tout renseignement sur la maison.
L’actualité immobilière à Magalas
27/11/2023
02/11/2023
30/10/2023
20/10/2023
16/10/2023
16/10/2023