Maison à construire à Marseillan (34340)
Images
Description
PROJET DE CONSTRUCTION - Maison de 5 pièces (95 m²) à Marseillan
IDÉALEMENT SITUÉE - MAISON 5 PIÈCES
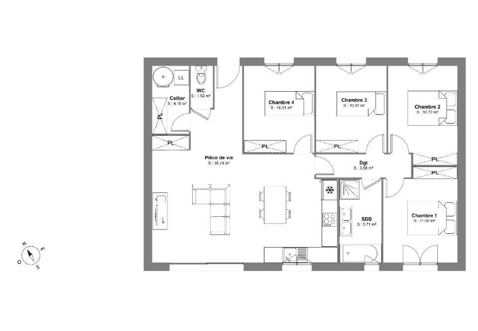
En vente : sur la côte méditerranéenne et à quelques kilomètres de Béziers, Maisons France Confort Béziers vous propose cette maison de 5 pièces de plain-pied de 95 m², idéalement située dans Marseillan (34340).
Son intérieur comporte quatre chambres, une cuisine, un cellier et une salle de bains.
(Carrelage inclus dans toutes les pièces / Raccordements inclus / Gainable compris).
Le terrain du bien est de 555 m².
La maison est située dans un quartier convoité. On trouve l'École Maternelle Marie Fayet et l'École Élémentaire d'Bardou A Maffre de Baugé à moins de 10 minutes à pied et une structure d'accueil pour la petite enfance. Niveau transports en commun, il y a trois gares (Marseillan Plage, Agde et Vias) à moins de 10 minutes en voiture. Il y a un accès à l'autoroute A9 à 9 km. On trouve des boulangeries, des commerces, un supermarché, deux poissonneries et deux boucheries-charcuteries à quelques minutes. Ne manquez pas le marché Centre-Ville tous les mardis matin.
Elle est à vendre pour la somme de 420 000 €.
Pour plus d'information contacter (Anthony BALLESTER : (Numéro supprimé)) Maisons France Confort Béziers pour échanger sur votre projet et réaliser une étude gratuite. (Plan personnalisable). Tous nos ouvrages sont réalisés sur-mesure en fonction de vos attentes et de nos échanges avec vous ainsi que dans le respect de la règlementation RE 2020. Ce projet comporte les garanties suivantes: Contrat de construction CCMI. Dommage/Ouvrage. RC Garantie décennale. Parfaite achèvement. Etude de sol G2. Prix et délais convenu. Garantie de livraison. Garantie financière Pour votre tranquillité nous nous occupons de toutes les formalités administratives.
Logement susceptibles de vous intéresser
Nous vous proposons de découvrir aussi cette sélection de logements situés à moins de 10km de Marseillan et qui seraient susceptibles de vous intéresser.
Marseillan
TERRAINFiche N°Id-TCT147724 : MARSEILLAN Fiche BC147724 : Marseillan, secteur Les mougeres, Terrain constructible – – Equipements annexes : – chauffage : Aucun – Plus d’informations disponibles sur demande… – Mentions légales : Proposé à la vente à 313000 Euros (honoraires à la charge du vendeur) – Reseau Immo-Diffusion Marseillan – Pour plus d’informations, contactez notre secrétariat au (Numéro supprimé) (Appel gratuit ou prix d’une communication locale)
Pomérols
TERRAIN ET MAISONLe modèle Rosée 72 m² de plain-pied, à l’esthétique sobre et épurée, est un incontournable chez OC Résidences. Vous serez abrité sous son porche d’entrée avant d’entrer dans une très belle pièce à vivre de 40 m², avec d’un côté, un garage intégré de 15 m² et de l’autre, un espace nuit séparé proposant 2 chambres et une salle de bains. Votre maison est à construire dans le département du Tarn, l’Aude, l’Hérault, la Haute-Garonne ainsi que les Pyrénées Orientales par Oc résidences, votre constructeur sur mesure en Occitanie.
Pomérols
TERRAIN ET MAISOND’une architecture sobre et élégante, respectant les normes d’accessibilité cette maison est conçue de manière ingénieuse et fonctionnelle avec la particularité de pouvoir s’agrandir à moindre frais selon les besoins de la famille. Ces volumes sont optimisés pour que chaque membre de la famille puisse avoir son propre cocon. Les plus : Zone jour et zone nuit séparées – Salle d’eau avec douche et une vasque, Wc indépendant et un garage intégré. Le modèle ZEPHYR 71 est à construire dans le département du Tarn, l’Aude, l’Hérault, la Haute-Garonne ainsi que les Pyrénées Orientales par Oc résidences, votre constructeur sur mesure en Occitanie.
Pomérols
TERRAIN ET MAISONCette jolie maison de plain-pied à construire n’attend plus que vous ! Découvrez le Point du Jour 85, une maison bien agencée avec un espace jour et nuit séparé et optimisé. La maison vous offre un espace de vie de 39 m² avec cellier, 3 chambres avec placard, sa salle de bain familiale et son WC indépendant. Vous pourrez notamment rajouter un garage de la surface souhaitée. Alors, n’attendez plus, et contactez nous, Oc résidences, votre constructeur sur mesure en Occitanie.
Pomérols
TERRAINC’est au sein de cette commune idéalement placée entre vignes et incontournable étang de Thau, mais également à moins de 15 km des premières plages que vous apprécierez la douceur du climat méditerranéen.Pomerols est un village dynamique où vous trouverez toutes les commodités nécessaires du quotidien. En 10 minutes vous pourrez rejoindre les communes d’Agde et Pézenas mais aussi l’autoroute A9.Ne tardez pas à venir découvrir cette parcelle de 215 m2 proposé par notre partenaire foncier.Prenez contact au plus vite avec l’équipe OC RESIDENCES Béziers au (Numéro supprimé)
Pomérols
TERRAINVENTE : terrain de 250 m² à PomérolsPROCHE DE BÉZIERSSur le littoral méditerranéen et à quelques kilomètres de Béziers à Pomérols (34810), terrain de 250 m². Réalisez-y la maison de vos rêves. On trouve l’École Primaire Marcel Lau à moins de 10 minutes à pied. Côté transports en commun, il y a les gares Marseillan Plage et Agde à moins de 10 minutes en voiture. Les autoroutes A9 et A75 sont accessibles à moins de 10 km. On trouve un tennis, deux boulangeries, un bureau de poste et deux boucheries-charcuteries dans les environs.Il est à vendre pour la somme de 110 000 €. N’hésitez pas à prendre contact avec notre agence (Mickaël MARTINEZ : (Numéro supprimé)) pour tout renseignement sur le terrain, sur les démarches à suivre ou sur les modalités de vente. Maisons France Confort Clermont-l’Hérault est là pour vous accompagner à toutes les étapes de l’achat.
Pomérols
TERRAIN ET MAISONVENTE d’une maison F4 (81 m²) à PomérolsPROCHE DE BÉZIERS – MAISON 4 PIÈCES NEUVEEn vente : située sur le littoral méditerranéen et à deux pas de Béziers, à Pomérols (34810), nous sommes ravis de vous proposer cette maison de 4 pièces de plain-pied de 81 m² et de 250 m² de terrain.Elle dispose de trois chambres, d’une cuisine et d’une salle de bains. Cette maison est neuve.Il y a l’École Primaire Marcel Lau à moins de 10 minutes à pied. Côté transports en commun, on trouve les gares Marseillan Plage et Agde à moins de 10 minutes en voiture. Les autoroutes A9 et A75 sont accessibles à moins de 10 km. Il y a un tennis, deux boulangeries, un bureau de poste et deux boucheries-charcuteries à quelques minutes à peine.Son prix de vente est de 250 000 €.Contactez Mickaël MARTINEZ (tél : (Numéro supprimé)) pour plus d’informations sur la maison. Maisons France Confort Clermont-l’Hérault vous accompagne à toutes les étapes de votre projet et dans tous vos projets immobiliers.
Pomérols
TERRAIN ET MAISONPomérols : maison F5 (101 m²) à vendreMAISON 5 PIÈCES NEUVE – PROCHE DE BÉZIERSSur le littoral méditerranéen et à 22 km de Béziers, nous sommes heureux de vous proposer à vendre à Pomérols (34810), cette maison de 5 pièces de plain-pied de 101 m².Elle est composée de quatre chambres, d’une cuisine et d’une salle de bains. Cette maison est neuve.Le terrain de la propriété s’étend sur 250 m².Il y a l’École Primaire Marcel Lau à moins de 10 minutes à pied. Niveau transports en commun, on trouve deux gares (Marseillan Plage et Agde) à moins de 10 minutes en voiture. Les autoroutes A9 et A75 sont accessibles à moins de 10 km. Il y a un tennis, deux boulangeries, un bureau de poste et deux boucheries-charcuteries à quelques minutes du bien.Son prix de vente est de 270 000 €.N’hésitez pas à prendre contact avec Mickaël MARTINEZ ((Numéro supprimé)) pour toute information sur la maison ou sur les démarches à suivre. Maisons France Confort Clermont-l’Hérault vous accompagne dans tous vos projets immobiliers et à toutes les étapes de votre projet.
Pomérols
TERRAIN ET MAISONVENTE : maison de 4 pièces (78 m²) à PomérolsPROCHE DE BÉZIERS – MAISON 4 PIÈCES NEUVEEn vente : à 9 km de la côte méditerranéenne et à deux pas de Béziers, Maisons France Confort Clermont-l’Hérault vous propose cette maison de 4 pièces de 78 m² et de 250 m² de terrain à Pomérols (34810). Son intérieur offre trois chambres, une cuisine et une salle de bains.Il s’agit d’une maison de 2 niveaux. Elle est neuve.L’École Primaire Marcel Lau est implantée à moins de 10 minutes à pied. Côté transports en commun, on trouve les gares Marseillan Plage et Agde à moins de 10 minutes en voiture. Les autoroutes A9 et A75 sont accessibles à moins de 10 km. Il y a un tennis, deux boulangeries, deux boucheries-charcuteries et un bureau de poste à quelques minutes.Elle est proposée à l’achat pour 255 000 €.Contactez notre agence (Mickaël MARTINEZ : (Numéro supprimé)) pour tout renseignement sur la maison ou sur les modalités de vente. Maisons France Confort Clermont-l’Hérault vous accompagne dans tous vos projets immobiliers et dans toutes vos démarches.
L’actualité immobilière à Marseillan
27/11/2023
02/11/2023
30/10/2023
20/10/2023
16/10/2023
16/10/2023