Maison à construire à Notre-Dame-de-Londres (34380)
Images
Description
VENTE : maison T6 (100 m²) à Notre-Dame-de-Londres
EMPLACEMENT PRIVILÉGIÉ - MAISON 6 PIÈCES NEUVE
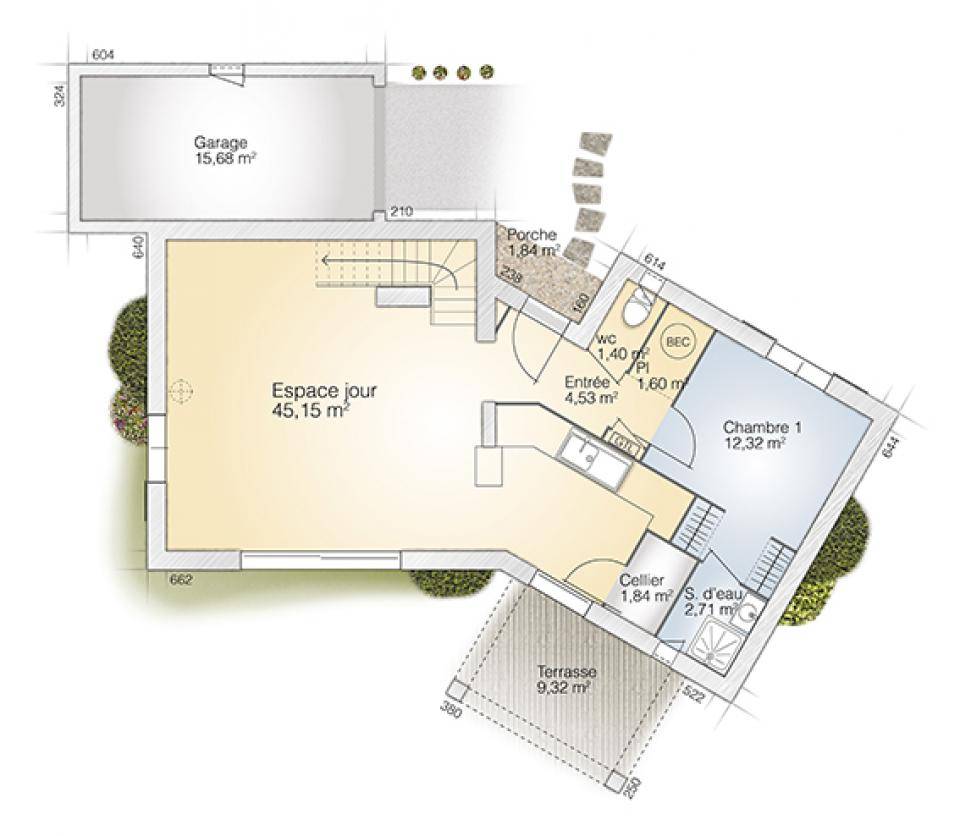
En vente : localisée à 37 km de la mer Méditerranée et à quelques kilomètres de Montpellier, nous vous proposons cette maison de 6 pièces de 100 m² sans vis-à-vis bénéficiant d'un emplacement d'exception dans Notre-Dame-de-Londres (34380). Son intérieur dispose de trois chambres, d'une cuisine et de deux salles de bains.
Le terrain du bien s'étend sur 350 m².
Cette maison possède 2 niveaux. Elle est neuve.
La maison se situe dans un secteur prisé. Une école primaire y est implantée. Il y a un tennis à proximité du logement.
Elle est proposée à l'achat pour 341 600 €.
Prenez contact avec Jean-Yves BARBAGLIA ((Numéro supprimé)) pour toute question sur la maison, sur les modalités de vente ou sur les démarches à suivre. Maisons Balency Castries vous accompagne à toutes les étapes de votre projet et dans tous vos projets immobiliers.
Logement susceptibles de vous intéresser
Nous vous proposons de découvrir aussi cette sélection de logements situés à moins de 10km de Notre-Dame-de-Londres et qui seraient susceptibles de vous intéresser.
Valflaunès
TERRAINTerrain de 510 m² à vendre à ValflaunèsQUARTIER RECHERCHÉ – PROCHE DE MONTPELLIERÀ Valflaunès (34270) à 30 km de la côte méditerranéenne et à deux pas de Montpellier, donnez vie à la maison de vos rêves sur ce terrain de 510 m². Il est exposé plein sud. Il se situe dans un quartier convoité. L’École Élémentaire Edmond Teissier est implantée à moins de 10 minutes à pied, tout comme une structure d’accueil pour les tout-petits. L’autoroute A709 et la nationale N113 sont accessibles à moins de 19 km. Il y a un tennis dans les environs.Ce terrain est proposé à l’achat pour 219 900 €. Contactez Jean-Yves BARBAGLIA (tél : (Numéro supprimé)) pour obtenir de plus amples informations sur le terrain. Maisons Balency Castries est là pour vous accompagner dans tous vos projets immobiliers.
Valflaunès
TERRAIN ET MAISONVENTE d’une maison F6 (100 m²) à ValflaunèsQUARTIER RECHERCHÉ – MAISON 6 PIÈCES NEUVEÀ 30 km de la mer Méditerranée et à deux pas de Montpellier, Maisons Balency Castries vous propose à vendre, dans un quartier recherché de Valflaunès (34270), cette maison de 6 pièces de 100 m². Son intérieur dispose de trois chambres, d’une cuisine et de deux salles de bains.Le terrain de cette maison est de 510 m².Il s’agit d’une maison de 2 niveaux. Elle est neuve.La maison est située dans un secteur convoité. Il y a l’École Élémentaire Edmond Teissier à moins de 10 minutes à pied et une structure d’accueil pour les enfants en bas âge. L’autoroute A709 et la nationale N113 sont accessibles à moins de 19 km. On trouve un tennis dans les environs.Elle est proposée à l’achat pour 428 900 €.N’hésitez pas à prendre contact avec notre agence (Jean-Yves BARBAGLIA : (Numéro supprimé)) pour toute information sur la maison ou sur les démarches à suivre.
Valflaunès
TERRAIN ET MAISONValflaunès : maison F6 (110 m²) en venteQUARTIER RECHERCHÉ – MAISON 6 PIÈCES NEUVEEn vente à 30 km de la côte méditerranéenne et à 22 km de Montpellier, venez découvrir cette maison de 6 pièces de 110 m² et de 510 m² de terrain située dans un secteur prisé de Valflaunès (34270).C’est une maison de 2 niveaux. Son intérieur comporte trois chambres, une cuisine et une salle de bains. Cette maison est neuve.Cette maison est située dans un quartier attractif. On trouve l’École Élémentaire Edmond Teissier à moins de 10 minutes à pied et une crèche. L’autoroute A709 et la nationale N113 sont accessibles à moins de 19 km. Il y a un tennis à proximité.Elle est proposée à l’achat pour 439 900 €.Prenez contact avec notre agence (BARBAGLIA Jean-Yves : (Numéro supprimé)) pour plus de renseignements sur la maison, sur les modalités de vente ou sur les démarches à suivre. Maisons Balency Castries est là pour vous accompagner à toutes les étapes de votre projet.
Notre-Dame-de-Londres
TERRAINTerrain à bâtir de 500 m² à Notre-Dame-de-Londres, à 27 km de Montpellier.Imaginez la maison de vos rêves sur ce terrain entouré d »un bel environnement calme. Une école primaire est implantée dans le quartier.Prenez contact avec Maisons France Confort Saint-Gély-du-Fesc ((Numéro supprimé)) pour obtenir de plus amples renseignements.Annonce proposée par un Agent Commercial Partenaire.
Notre-Dame-de-Londres
TERRAIN ET MAISONPetit projet de construction entièrement personnalisable à Notre Dames de Londres.Maison de 90 m² proposée ici sur 500 m² de terrain.3 chambres, salle de bain et wc séparés, séjour et cuisine ouverte, cellier avec accès garage.GARANTIES CCMI COMPRISES.Prenez contact avec notre agence Maisons France Confort Saint-Gély-du-Fesc (Numéro supprimé) pour d’informations.Annonce proposée par un Agent Commercial Partenaire.
Notre-Dame-de-Londres
TERRAINTerrain à bâtir de 700 m² à Notre-Dame-de-Londres, à 27 km de Montpellier.Imaginez la maison de vos rêves sur ce terrain entouré d »un bel environnement calme. Une école primaire est implantée dans le quartier.Prenez contact avec Maisons France Confort Saint-Gély-du-Fesc ((Numéro supprimé)) pour obtenir de plus amples renseignements.Annonce proposée par un Agent Commercial Partenaire.
Notre-Dame-de-Londres
TERRAIN ET MAISONMaison Open de 100 m² proposée ici sur 700 m² de terrain, à seulement 25 min de Montpellier.Elle dispose de 4 chambres, une salle de bain et wc séparés, une cuisine ouverte sur lumineux séjour, un cellier avec accès au garage de 17 m² à peu près.ATTENTION : sur cette annonce le garage n’est pas compris (possibilité de le rajouter : nous consulter pour le prix OU le faire réaliser plus tard).RE2020 + GARNATIES CCMI COMPRISES.Prenez contact avec Maisons France Confort Saint-Gély-du-Fesc ((Numéro supprimé)) pour obtenir de plus amples renseignements.Annonce proposée par un Agent Commercial Partenaire.
Notre-Dame-de-Londres
TERRAIN ET MAISONPetit projet de construction entièrement personnalisable à Notre Dames de Londres.Maison Actua de 73 m² proposée ici sur 500 m² de terrain.3 chambres, salle de bain et wc séparés, séjour et cuisine ouverte, cellier, et garage accolé.GARANTIES CCMI COMPRISES.Prenez contact avec notre agence Maisons France Confort Saint-Gély-du-Fesc (Numéro supprimé) pour d’informations.Annonce proposée par un Agent Commercial Partenaire.
Notre-Dame-de-Londres
TERRAIN ET MAISONMaison Anais de 110 m² proposée ici sur 700 m² de terrain, à seulement 25 min de Montpellier.Elle dispose de 4 chambres dont la suite parentale avec salle d’eau, une cuisine ouverte sur lumineux séjour, un cellier et un garage de 17 m² à peu près.RE2020 + GARANTIES CCMI COMPRISES.Prenez contact avec Maisons France Confort Saint-Gély-du-Fesc ((Numéro supprimé)) pour obtenir de plus amples renseignements.Annonce proposée par un Agent Commercial Partenaire.
L’actualité immobilière à Notre-Dame-de-Londres
27/11/2023
02/11/2023
30/10/2023
20/10/2023
16/10/2023
16/10/2023