Maison à construire à Portiragnes (34420)
Images
Description
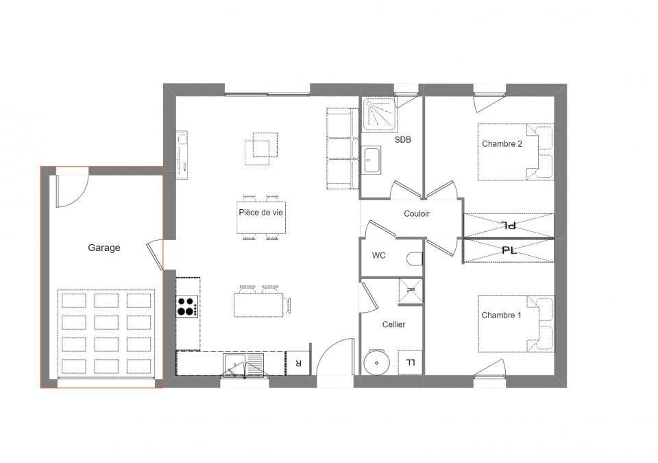
PROJET DE CONSTRUCTION - Portiragnes : maison F3 (62 m²)
PROCHE DE BÉZIERS - MAISON 3 PIÈCES
À vendre à 5 km de la mer Méditerranée et à quelques kilomètres de Béziers, à Portiragnes (34420), nous vous proposons cette maison de 3 pièces de plain-pied de 62 m².
Son intérieur compte deux chambres, une cuisine et une salle de bains + GARAGE en toiture Terrasse, Débord de toiture béton compris pour la toiture tuile 50cm et écran sous toiture compris.
(Carrelage inclus dans toutes les pièces / Raccordements inclus).
Le terrain du bien s'étend sur 304 m².
L'École Primaire Jean Jaurès est implantée à moins de 10 minutes à pied. Niveau transports, on trouve deux gares (Vias et Béziers) à moins de 10 minutes en voiture. Les autoroutes A75 et A9 sont accessibles à moins de 5 km. Il y a trois commerces, deux boulangeries, un bureau de poste, une boucherie-charcuterie et une épicerie dans les environs.
Son prix de vente est de 241 000 €.
Pour plus d'information contacter (Anthony BALLESTER : (Numéro supprimé)) Maisons de Manon Béziers pour échanger sur votre projet et réaliser une étude gratuite. (Plan personnalisable). Tous nos ouvrages sont réalisés sur-mesure en fonction de vos attentes et de nos échanges avec vous ainsi que dans le respect de la règlementation RE 2020. Ce projet comporte les garanties suivantes: Contrat de construction CCMI. Dommage/Ouvrage. RC Garantie décennale. Parfaite achèvement. Etude de sol G2. Prix et délais convenu. Garantie de livraison. Garantie financière Pour votre tranquillité nous nous occupons de toutes les formalités administratives.
Logement susceptibles de vous intéresser
Nous vous proposons de découvrir aussi cette sélection de logements situés à moins de 10km de Portiragnes et qui seraient susceptibles de vous intéresser.
Vias
TERRAINVENTE DE 2 TERRAINS DE 492 M² CHACUN A VIAS. Zone privée hors association.Je vous propose sur la commune de VIAS cette parcelle de 984 m² divisée en deux terrains de 492m2 chacun.Beaux terrains plats et raccordés à l’eau, à l’électricité, munis de fosses septiques, système de drainage tiré et d’un forage.Localisation très proche de la mer, votre futur havre de paix pour vos prochaines vacances vous tend les bras.Formidable opportunité! Ce coin de paradis offre un cadre naturel exceptionnel où vous pourrez vous évader pendant les périodes estivales.Pour de plus amples informations et pour organiser une visite, n’hésitez pas à me contacter.C’est le moment idéal pour saisir cette occasion unique et réaliser votre rêve de vacances près de la mer.Cette annonce référence 285337 vous est présentée par votre agent commercial BSK Immobilier AURELIE VAZQUEZ (EI) immatriculé au RSAC de BEZIERS (34500) sous le numéro 53911981800034.Prix du bien : 149 000,00 €Les honoraires d’agence sont à la charge du vendeur.Les informations sur les risques auxquels ce bien est exposé sont disponibles sur le site Géorisques : www.georisques.gouv.fr
Bessan
TERRAINFiche N°Id-TCT177902 : BESSAN Fiche BC177902 : Bessan, secteur Centre ville, Terrain constructible hors lotissement d’environ 260 m2 – Vue : Jardin – Construction 2025 – Equipements annexes : jardin – – chauffage : Aucun – Plus d’informations disponibles sur demande… – Mentions légales : Proposé à la vente à 94900 Euros (honoraires à la charge du vendeur) – Affaire suivie par Mr Laurent MENDEZ (Agent immobilier – Responsable) – Reseau Immo-Diffusion Bessan – Pour plus d’informations, contactez notre secrétariat au (Numéro supprimé) (Appel gratuit ou prix d’une communication locale) – Les informations sur les risques auxquels ce bien est exposé sont disponibles sur le site Géorisques : www.georisques.gouv.fr
Sérignan
TERRAINÀ découvrir sans tarder !Situé sur la commune recherchée de Sérignan, à seulement 500 mètres des plages de Valras et 2 minutes à pied des commodités, ce superbe terrain à bâtir de 752 m² bénéficie d’un emplacement idéal pour concrétiser votre projet de construction.Ses atouts :- Terrain en angle, offrant une belle exposition et plusieurs possibilités d’aménagement.- Environnement calme et résidentiel, tout en restant proche des commerces.- Libre de tout constructeur, vous laissant une totale liberté pour concevoir votre maison selon vos envies.Un cadre de vie privilégié entre mer et village, parfait pour une résidence principale, secondaire ou un investissement. Les honoraires sont à la charge du vendeur.Les informations sur les risques auxquels ce bien est exposé sont disponibles sur le site Géorisques : www. georisques. gouv. fr.Contactez Benjamin JEAN Entrepreneur Individuel, Agent commercial OptimHome (RSAC N(Numéro supprimé) Greffe de BEZIERS) (Numéro supprimé) (réf. 595497 )
Portiragnes
TERRAINPortiragnes : terrain de 400 m² à vendrePROCHE DE BÉZIERSTerrain de 400 m² en vente sur le littoral méditerranéen et à 10 km de Béziers. Ce terrain se situe dans Portiragnes (34420). Ce terrain est proche des écoles et des commerces. L’École Primaire Jean Jaurès est implantée à moins de 10 minutes à pied. Côté transports en commun, on trouve les gares Vias et Béziers à moins de 10 minutes en voiture. Les autoroutes A75 et A9 sont accessibles à moins de 5 km. Il y a trois commerces, deux boulangeries, un bureau de poste, une épicerie et une boucherie-charcuterie à quelques minutes.Ce terrain est à vendre pour la somme de 149 900 €. Contactez notre agence (Léo RENARD : (Numéro supprimé)) pour plus d’informations sur le terrain ou sur les modalités de vente. Maisons France Confort Béziers vous accompagne dans tous vos projets immobiliers et à toutes les étapes de l’achat.
Portiragnes
TERRAIN ET MAISONMaison F3 (71 m²) en vente à PortiragnesPROCHE DE BÉZIERS – MAISON 3 PIÈCES NEUVEEn vente : située à 5 km de la mer Méditerranée et à 10 km de Béziers, laissez vous charmer par cette maison de 3 pièces de plain-pied de 71 m² et de 400 m² de terrain à Portiragnes (34420).Elle comporte deux chambres, une cuisine et une salle de bains. La maison est neuve.L’École Primaire Jean Jaurès se trouve à moins de 10 minutes à pied. Côté transports, il y a les gares Vias et Béziers à moins de 10 minutes en voiture. Les autoroutes A75 et A9 sont accessibles à moins de 5 km. On trouve trois commerces, deux boulangeries, un bureau de poste, une boucherie-charcuterie et une épicerie à quelques minutes à peine.Elle est à vendre pour la somme de 270 000 €.N’hésitez pas à prendre contact avec Léo RENARD (tél : (Numéro supprimé)) pour toute question sur ce bien, sur les démarches à suivre ou sur les modalités de vente. Maisons France Confort Béziers est là pour vous accompagner dans tous vos projets immobiliers.
Portiragnes
TERRAIN ET MAISONPortiragnes : maison F6 (110 m²) en venteMAISON 6 PIÈCES NEUVE – PROCHE DE BÉZIERSEn vente : à 5 km de la côte méditerranéenne et à 10 km de Béziers, à Portiragnes (34420), ayez le coup de coeur pour cette maison de 6 pièces de 110 m².Cette maison compte 2 niveaux. Elle offre quatre chambres, une cuisine et deux salles de bains. La maison est neuve.Le terrain de la propriété s’étend sur 400 m².L’École Primaire Jean Jaurès est implantée à moins de 10 minutes à pied. Côté transports en commun, on trouve les gares Vias et Béziers à moins de 10 minutes en voiture. Les autoroutes A75 et A9 sont accessibles à moins de 5 km. Il y a trois commerces, deux boulangeries, un bureau de poste, une épicerie et une boucherie-charcuterie à quelques minutes.Elle est proposée à l’achat pour 425 000 €.Contactez Léo RENARD ((Numéro supprimé)) pour tout renseignement sur cette maison, sur les démarches à suivre et sur les modalités de vente. Maisons France Confort Béziers est là pour vous accompagner dans tous vos projets immobiliers.
Portiragnes
TERRAIN ET MAISONVENTE : maison de 6 pièces (140 m²) à PortiragnesPROCHE DE BÉZIERS – MAISON 6 PIÈCES NEUVEEn vente à 5 km de la côte méditerranéenne et à quelques kilomètres de Béziers, nous sommes ravis de vous présenter à Portiragnes (34420), cette maison de 6 pièces de 140 m². Elle propose quatre chambres, une cuisine et deux salles de bains.Le terrain du bien s’étend sur 400 m².Cette maison compte 2 niveaux. Elle est neuve.L’École Primaire Jean Jaurès est implantée à moins de 10 minutes à pied. Niveau transports, il y a deux gares (Vias et Béziers) à moins de 10 minutes en voiture. Les autoroutes A75 et A9 sont accessibles à moins de 5 km. On trouve trois commerces, deux boulangeries, un bureau de poste, une épicerie et une boucherie-charcuterie à quelques minutes.Elle est à vendre pour la somme de 455 000 €.N’hésitez pas à prendre contact avec notre agence (Léo RENARD : (Numéro supprimé)) pour obtenir de plus amples informations sur cette maison ou sur les démarches à suivre. Maisons France Confort Béziers vous accompagne à toutes les étapes de l’achat et dans tous vos projets immobiliers.
Portiragnes
TERRAIN ET MAISONPortiragnes : maison de 4 pièces (81 m²) en venteMAISON 4 PIÈCES NEUVE – PROCHE DE BÉZIERSEn vente : située à 5 km de la mer Méditerranée et à deux pas de Béziers, à Portiragnes (34420), votre agence Maisons France Confort Béziers est heureuse de vous présenter cette maison de 4 pièces de plain-pied de 81 m² et de 400 m² de terrain. Elle propose trois chambres, une cuisine et une salle de bains.Cette maison est neuve.L’École Primaire Jean Jaurès est implantée à moins de 10 minutes à pied. Niveau transports en commun, on trouve deux gares (Vias et Béziers) à moins de 10 minutes en voiture. Les autoroutes A75 et A9 sont accessibles à moins de 5 km. Il y a trois commerces, deux boulangeries, une boucherie-charcuterie, un bureau de poste et une épicerie à proximité du bien.Elle est proposée à l’achat pour 275 700 €.Contactez notre agence (RENARD Léo : (Numéro supprimé)) pour tout renseignement sur la maison.
Portiragnes
TERRAIN ET MAISONMaison T5 (101 m²) à vendre à PortiragnesMAISON 5 PIÈCES NEUVE – PROCHE DE BÉZIERSEn vente : sur le littoral méditerranéen et à quelques kilomètres de Béziers, Maisons France Confort Béziers vous propose cette maison de 5 pièces de plain-pied de 101 m² à Portiragnes (34420).Son intérieur est composé de quatre chambres, d’une cuisine et d’une salle de bains. La maison est neuve.Le terrain de la propriété s’étend sur 400 m².Il y a l’École Primaire Jean Jaurès à moins de 10 minutes à pied. Niveau transports en commun, on trouve deux gares (Vias et Béziers) à moins de 10 minutes en voiture. Les autoroutes A75 et A9 sont accessibles à moins de 5 km. Il y a trois commerces, deux boulangeries, une boucherie-charcuterie, une épicerie et un bureau de poste à quelques minutes.Elle est proposée à l’achat pour 325 000 €.Contactez Léo RENARD (tél : (Numéro supprimé)) pour toute information sur cette maison, sur les modalités de vente ou sur les démarches à suivre. Maisons France Confort Béziers vous accompagne à toutes les étapes de l’achat et dans tous vos projets immobiliers.
L’actualité immobilière à Portiragnes
27/11/2023
02/11/2023
30/10/2023
20/10/2023
16/10/2023
16/10/2023