Maison à construire à Pouzolles (34480)
Images
Description
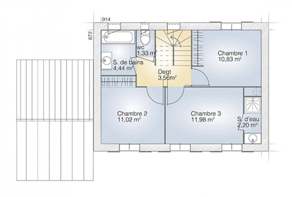
Maison T6 (95 m²) à vendre à Pouzolles
IDÉALEMENT SITUÉE - MAISON 6 PIÈCES NEUVE
À 24 km de la côte méditerranéenne et à quelques kilomètres de Béziers, à vendre idéalement située dans Pouzolles (34480), Maisons Balency Pézenas vous propose cette maison de 6 pièces de 95 m² et de 490 m² de terrain.
C'est une maison de 2 niveaux. Son intérieur offre trois chambres, une cuisine et une salle de bains. La maison est neuve.
La maison se situe dans un secteur recherché. On y trouve une école primaire. Niveau transports en commun, on trouve la gare Magalas à moins de 10 minutes en voiture. Il y a un accès à l'autoroute A75 à 10 km. Il y a une bibliothèque, un tennis, une boulangerie et une épicerie à proximité du bien.
Son prix de vente est de 322 000 €.
Prenez contact avec notre agence (Hervé MALDONADO : (Numéro supprimé)) pour obtenir de plus amples renseignements sur la maison, sur les démarches à suivre ou sur les modalités de vente. Donnez vie à vos projets immobiliers avec Maisons Balency Pézenas.
Logement susceptibles de vous intéresser
Nous vous proposons de découvrir aussi cette sélection de logements situés à moins de 10km de Pouzolles et qui seraient susceptibles de vous intéresser.
Pouzolles
TERRAINPouzolles : terrain de 450 m² en venteIDÉALEMENT SITUÉ – PROCHE DE BÉZIERSÀ Pouzolles (34480) en vente à 24 km de la mer Méditerranée et à quelques kilomètres de Béziers, découvrez ce terrain de 450 m². Dans un secteur recherché, ce terrain idéalement situé est proche des commerces et des écoles. Une école primaire est implantée dans la commune. Côté transports en commun, il y a la gare Magalas à moins de 10 minutes en voiture. L’autoroute A75 est accessible à 10 km. On trouve une bibliothèque, un tennis, une boulangerie et une épicerie à proximité.Son prix de vente est de 92 100 €. Prenez contact avec notre agence (MALDONADO Hervé : (Numéro supprimé)) pour plus de renseignements sur ce terrain.
Pouzolles
TERRAINPouzolles : terrain de 450 m² en venteIDÉALEMENT SITUÉ – PROCHE DE BÉZIERSÀ Pouzolles (34480) à 24 km de la côte méditerranéenne et à deux pas de Béziers, donnez vie à votre résidence principale ou secondaire sur ce terrain de 450 m². Dans un quartier prisé, le terrain idéalement situé est proche des commerces et des écoles. Une école primaire est implantée dans la commune. Niveau transports, on trouve la gare Magalas à moins de 10 minutes en voiture. L’autoroute A75 est accessible à 10 km. Il y a une bibliothèque, un tennis, une boulangerie et une épicerie à proximité de la propriété.Il est à vendre pour la somme de 96 300 €. N’hésitez pas à prendre contact avec notre agence (Hervé MALDONADO : (Numéro supprimé)) pour plus d’informations sur ce terrain ou sur les démarches à suivre. Concrétisez vos projets immobiliers avec Maisons Balency Pézenas.
Pouzolles
TERRAIN ET MAISONVENTE d’une maison T4 (81 m²) à PouzollesIDÉALEMENT SITUÉE – MAISON 4 PIÈCES NEUVEÀ 24 km de la mer Méditerranée et à 14 km de Béziers, nous sommes heureux de vous présenter cette maison de 4 pièces de plain-pied de 81 m² et de 450 m² de terrain idéalement située dans Pouzolles (34480).Conçue de plain-pied, elle propose trois chambres, une cuisine et une salle de bains. La maison est neuve.La maison se situe dans un secteur attractif. On y trouve une école primaire. Côté transports, on trouve la gare Magalas à moins de 10 minutes en voiture. L’autoroute A75 est accessible à 10 km. Il y a une bibliothèque, un tennis, une boulangerie et une épicerie à proximité.Elle est à vendre pour la somme de 217 000 €.Prenez contact avec Hervé MALDONADO ((Numéro supprimé)) pour toute information sur la maison, sur les démarches à suivre ou sur les modalités de vente.
Pouzolles
TERRAIN ET MAISONVENTE : maison F3 (71 m²) à PouzollesIDÉALEMENT SITUÉE – MAISON 3 PIÈCES NEUVEEn vente à 24 km de la mer Méditerranée et à deux pas de Béziers, votre agence Maisons Balency Pézenas est ravie de vous présenter cette maison de 3 pièces de plain-pied de 71 m² et de 450 m² de terrain idéalement située dans Pouzolles (34480).Conçue de plain-pied, elle propose deux chambres, une cuisine et une salle de bains. La maison est neuve.La maison se trouve dans un secteur recherché. Une école primaire y est implantée. Niveau transports en commun, il y a la gare Magalas à moins de 10 minutes en voiture. L’autoroute A75 est accessible à 10 km. On trouve une bibliothèque, un tennis, une boulangerie et une épicerie à quelques minutes de la maison.Son prix de vente est de 215 000 €.Prenez contact avec notre constructeur (MALDONADO Hervé : (Numéro supprimé)) pour toute information sur le bien ou sur les démarches à suivre.
Pouzolles
TERRAIN ET MAISONVENTE : maison T4 (78 m²) à PouzollesIDÉALEMENT SITUÉE – MAISON 4 PIÈCES NEUVEEn vente : localisée à 24 km de la mer Méditerranée et à deux pas de Béziers, votre agence Maisons Balency Pézenas est ravie de vous proposer cette maison de 4 pièces de 78 m² et de 450 m² de terrain idéalement située dans Pouzolles (34480).Il s’agit d’une maison de 2 niveaux. Elle offre trois chambres, une cuisine et une salle de bains. La maison est neuve.Cette maison est située dans un secteur convoité. Une école primaire y est implantée. Côté transports en commun, on trouve la gare Magalas à moins de 10 minutes en voiture. L’autoroute A75 est accessible à 10 km. Il y a une bibliothèque, un tennis, une boulangerie et une épicerie à quelques minutes du logement.Son prix de vente est de 230 000 €.Contactez Hervé MALDONADO ((Numéro supprimé)) pour toute information sur la maison. Faites de vos projets immobiliers une réalité avec Maisons Balency Pézenas.
Pouzolles
TERRAIN ET MAISONPouzolles : maison de 5 pièces (96 m²) en venteIDÉALEMENT SITUÉE – MAISON 5 PIÈCES NEUVEÀ 24 km de la côte méditerranéenne et à 14 km de Béziers, nous sommes heureux de vous présenter cette maison de 5 pièces de 96 m² et de 450 m² de terrain à vendre idéalement située dans Pouzolles (34480).C’est une maison de 2 niveaux. Son intérieur compte quatre chambres, une cuisine et une salle de bains. La maison est neuve.Ce bien se trouve dans un secteur attractif. On y trouve une école primaire. Côté transports en commun, il y a la gare Magalas à moins de 10 minutes en voiture. Il y a un accès à l’autoroute A75 à 10 km. On trouve une bibliothèque, un tennis, une boulangerie et une épicerie à proximité.Il est à vendre pour la somme de 269 000 €.N’hésitez pas à prendre contact avec Hervé MALDONADO ((Numéro supprimé)) pour toute question sur la maison. Concrétisez vos projets immobiliers avec Maisons Balency Pézenas.
Pouzolles
TERRAIN ET MAISONMaison T5 (73 m²) en vente à PouzollesIDÉALEMENT SITUÉE – MAISON 5 PIÈCES NEUVEÀ vendre : localisée à 24 km de la côte méditerranéenne et à deux pas de Béziers, idéalement située dans Pouzolles (34480), Maisons Balency Pézenas vous propose cette maison de 5 pièces de plain-pied de 73 m² et de 450 m² de terrain. Conçue de plain-pied, elle est composée de trois chambres, d’une cuisine et d’une salle de bains.La maison est neuve.Cette maison est située dans un quartier attractif. Une école primaire y est implantée. Niveau transports, on trouve la gare Magalas à moins de 10 minutes en voiture. On trouve un accès à l’autoroute A75 à 10 km. Il y a une bibliothèque, un tennis, une boulangerie et une épicerie à proximité.Elle est à vendre pour la somme de 232 000 €.Contactez Hervé MALDONADO (tél : (Numéro supprimé)) pour plus de renseignements sur la maison ou sur les modalités de vente.
Pouzolles
TERRAIN ET MAISONMaison de 6 pièces (95 m²) à vendre à PouzollesIDÉALEMENT SITUÉE – MAISON 6 PIÈCES NEUVEÀ 24 km de la côte méditerranéenne et à quelques kilomètres de Béziers, nous sommes heureux de vous présenter cette maison de 6 pièces de 95 m² en vente idéalement située dans Pouzolles (34480).Cette maison comporte 2 niveaux. Son intérieur compte trois chambres, une cuisine et une salle de bains. Cette maison est neuve.Le terrain de la propriété est de 450 m².Cette propriété se trouve dans un quartier attractif. Une école primaire y est implantée. Niveau transports en commun, il y a la gare Magalas à moins de 10 minutes en voiture. L’autoroute A75 est accessible à 10 km. On trouve une bibliothèque, un tennis, une boulangerie et une épicerie à proximité du bien.Elle est proposée à l’achat pour 314 000 €.Prenez contact avec notre agence (MALDONADO Hervé : (Numéro supprimé)) pour toute question sur la maison, sur les modalités de vente ou sur les démarches à suivre.
Pouzolles
TERRAIN ET MAISONVENTE : maison T5 (85 m²) à PouzollesIDÉALEMENT SITUÉE – MAISON 5 PIÈCES NEUVEÀ vendre : située à 24 km de la côte méditerranéenne et à 14 km de Béziers, idéalement située dans Pouzolles (34480), nous vous présentons cette maison de 5 pièces de plain-pied de 85 m² et de 450 m² de terrain. Son intérieur dispose de trois chambres, d’une cuisine et d’une salle de bains.Cette maison est neuve.Le bien se situe dans un quartier attractif. Une école primaire y est implantée. Niveau transports en commun, on trouve la gare Magalas à moins de 10 minutes en voiture. L’autoroute A75 est accessible à 10 km. Il y a une bibliothèque, un tennis, une boulangerie et une épicerie à proximité du logement.Il est proposé à l’achat pour 264 000 €.Contactez notre agence (MALDONADO Hervé : (Numéro supprimé)) pour tout renseignement sur la maison.
L’actualité immobilière à Pouzolles
27/11/2023
02/11/2023
30/10/2023
20/10/2023
16/10/2023
16/10/2023