Maison à construire à Puisserguier (34620)
Images
Description
PROJET DE CONSTRUCTION - Maison T3 (62 m²) à Puisserguier
MAISON 3 PIÈCES - PROCHE DE BÉZIERS
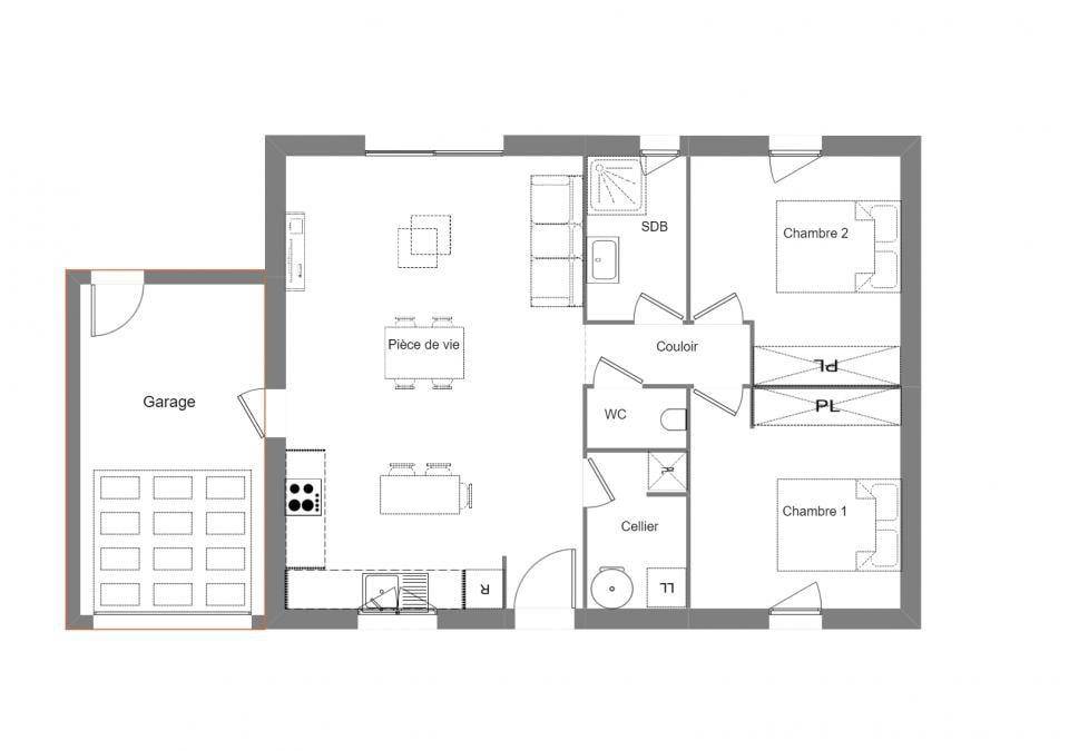
En vente : localisée à 28 km de la côte méditerranéenne et à 15 km de Béziers, votre agence Maisons de Manon Béziers est ravie de vous présenter cette maison de 3 pièces de plain-pied de 62 m² à Puisserguier (34620). Son intérieur est composé de deux chambres, d'une cuisine, d'un cellier et d'une salle de bains + GARAGE.
Le terrain de cette maison est de 402 m².
(Carrelage inclus dans toutes les pièces / Raccordements inclus).
L'École Primaire Font Claire est implantée dans la commune. Les autoroutes A9 et A75 sont accessibles à moins de 17 km. Il y a une bibliothèque dans les environs.
Son prix de vente est de 215 000 €.
Pour plus d'information contacter (Anthony BALLESTER : (Numéro supprimé)) Maisons de Manon Béziers pour échanger sur votre projet et réaliser une étude gratuite. (Plan personnalisable). Tous nos ouvrages sont réalisés sur-mesure en fonction de vos attentes et de nos échanges avec vous ainsi que dans le respect de la règlementation RE 2020. Ce projet comporte les garanties suivantes: Contrat de construction CCMI. Dommage/Ouvrage. RC Garantie décennale. Parfaite achèvement. Etude de sol G2. Prix et délais convenu. Garantie de livraison. Garantie financière Pour votre tranquillité nous nous occupons de toutes les formalités administratives.
Logement susceptibles de vous intéresser
Nous vous proposons de découvrir aussi cette sélection de logements situés à moins de 10km de Puisserguier et qui seraient susceptibles de vous intéresser.
Maureilhan
TERRAINFiche N°Id-TCT173705 : MAUREILHAN Fiche BC173705 : Maureilhan, Terrain constructible d’environ 120 m2 de 409 m2 – Vue : Rue – Construction 2024 – Equipements annexes : jardin – – chauffage : Aucun – Plus d’informations disponibles sur demande… – Mentions légales : Proposé à la vente à 162000 Euros (honoraires à la charge du vendeur) – Affaire suivie par Mme Carole KIEL (Agent immobilier – Responsable) – Reseau Immo-Diffusion Narbonne – Pour plus d’informations, contactez notre secrétariat au (Numéro supprimé) (Appel gratuit ou prix d’une communication locale) – Les informations sur les risques auxquels ce bien est exposé sont disponibles sur le site Géorisques : www.georisques.gouv.fr
Puisserguier
TERRAIN ET MAISONL’ECLAIRCIE est une belle maison contemporaine qui saura vous séduire par son habitat lumineux grâce à ses grandes ouvertures. De par ses volumes intéressants, ce plain-pied de 85 m² composé d’une grande pièce de vie ouvert sur une cuisine attenante au garage, et d’un coin nuit avec trois chambres et d’une grande salle de bain permet à tous les membres de la famille de disposer de l’espace nécessaire à votre confort. N’attendez plus et contactez nous pour construire votre projet de vie dans le Tarn, l’Aude, L’Hérault, la Haute-Garonne ainsi que les Pyrénées Orientales.
Puisserguier
TERRAIN ET MAISONLe modèle Rosée 72 m² de plain-pied, à l’esthétique sobre et épurée, est un incontournable chez OC Résidences. Vous serez abrité sous son porche d’entrée avant d’entrer dans une très belle pièce à vivre de 40 m², avec d’un côté, un garage intégré de 15 m² et de l’autre, un espace nuit séparé proposant 2 chambres et une salle de bains. Votre maison est à construire dans le département du Tarn, l’Aude, l’Hérault, la Haute-Garonne ainsi que les Pyrénées Orientales par Oc résidences, votre constructeur sur mesure en Occitanie.
Puisserguier
TERRAIN ET MAISONLaissez vous séduire par notre nouveau modèle, La SIROCCO. Cette villa, lumineuse et généreuse, vous séduira par son agencement et offrira d’agréables moments à toute votre famille. Sa grande pièce à vivre de 41 m², séparera votre suite parentale, d’un coin nuit aménagé avec deux autres chambres équipées de placard et d’une Salle de bain. Ses grandes ouvertures vous permettront de profiter des extérieurs avec vos amis et votre famille tout au long de l’année. La SIROCCO est à construire dans le département du Tarn, l’Aude, l’Hérault, la Haute-Garonne ainsi que les Pyrénées Orientales par Oc résidences, votre constructeur sur mesure en Occitanie.
Puisserguier
TERRAIN ET MAISOND’une architecture sobre et élégante, respectant les normes d’accessibilité cette maison est conçue de manière ingénieuse et fonctionnelle avec la particularité de pouvoir s’agrandir à moindre frais selon les besoins de la famille. Ces volumes sont optimisés pour que chaque membre de la famille puisse avoir son propre cocon. Les plus : Zone jour et zone nuit séparées – Salle d’eau avec douche et une vasque, Wc indépendant et un garage intégré. Le modèle ZEPHYR 71 est à construire dans le département du Tarn, l’Aude, l’Hérault, la Haute-Garonne ainsi que les Pyrénées Orientales par Oc résidences, votre constructeur sur mesure en Occitanie.
Puisserguier
TERRAIN ET MAISONCette jolie maison de plain-pied à construire n’attend plus que vous ! Découvrez le Point du Jour 85, une maison bien agencée avec un espace jour et nuit séparé et optimisé. La maison vous offre un espace de vie de 39 m² avec cellier, 3 chambres avec placard, sa salle de bain familiale et son WC indépendant. Vous pourrez notamment rajouter un garage de la surface souhaitée. Alors, n’attendez plus, et contactez nous, Oc résidences, votre constructeur sur mesure en Occitanie.
Puisserguier
TERRAIN ET MAISONNos architectes ont conçu ce modèle pour vous. Cette maison résolument contemporaine, saura vous séduire par son architecture innovante et sa pergola bioclimatique qui lui donneront un design unique. Elle possède deux espaces bien distincts avec un espace jour de 44 m² et un espace nuit avec 3 belles chambres dont une suite parentale, un WC Indépendant et une salle de bains confortable. N’attendez plus et venez construire votre projet de vie par Oc résidences, votre constructeur sur mesure en Occitanie.
Puisserguier
TERRAINÀ seulement 16 kilomètres de la ville de Béziers, cette commune dispose de tous les commerces, services (restaurants, producteurs de vin, hébergements en gîtes, supermarchés…) et équipements de la vie quotidienne.C’est dans ce cadre idyllique que nous vous proposons cette parcelle de 254 m² proposé par notre partenaire foncier, avec une vue exceptionnelle sur le Canigou.Prenez contact au plus vite avec l’équipe OC RESIDENCES Béziers au (Numéro supprimé) pour votre projet de construction.
Puisserguier
TERRAINÀ seulement 16 kilomètres de la ville de Béziers, cette commune dispose de tous les commerces, services (restaurants, producteurs de vin, hébergements en gîtes, supermarchés…) et équipements de la vie quotidienne.C’est dans ce cadre idyllique que nous vous proposons cette parcelle de 354 m² proposé par notre partenaire foncier, avec une vue exceptionnelle sur le Canigou.Prenez contact au plus vite avec l’équipe OC RESIDENCES Béziers au (Numéro supprimé) pour votre projet de construction.
L’actualité immobilière à Puisserguier
27/11/2023
02/11/2023
30/10/2023
20/10/2023
16/10/2023
16/10/2023