Maison à construire à Quarante (34310)
Images
Description
VENTE d'une maison F4 (100 m²) à Quarante
EMPLACEMENT PRIVILÉGIÉ - MAISON 4 PIÈCES NEUVE
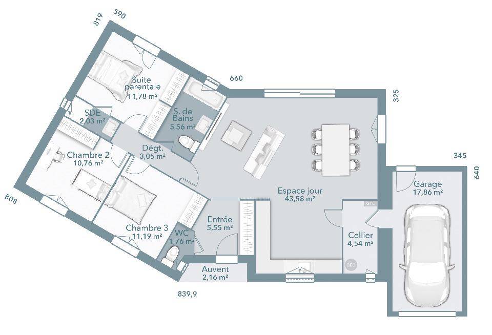
En vente : à 30 km de la mer Méditerranée et à 20 km de Béziers, votre agence Maisons France Confort Béziers est ravie de vous proposer, bénéficiant d'un emplacement d'exception dans Quarante (34310), cette maison de 4 pièces de plain-pied de 100 m² et de 558 m² de terrain. Elle dispose de trois chambres, d'une cuisine et de deux salles de bains.
Cette maison est neuve.
La maison est située dans un quartier convoité. On trouve le Collège Louis Cahuzac, l'École Élémentaire Jules Ferry et l'École Maternelle de l'Horte à moins de 10 minutes à pied. On trouve un accès à l'autoroute A9 à 20 km. Il y a un tennis, deux boulangeries, une épicerie, un bureau de poste et trois boucheries-charcuteries à quelques minutes à peine.
Son prix de vente est de 275 000 €.
N'hésitez pas à prendre contact avec notre constructeur (RENARD Léo : (Numéro supprimé)) pour tout renseignement sur la maison. Maisons France Confort Béziers est là pour vous accompagner dans toutes vos démarches.
Logement susceptibles de vous intéresser
Nous vous proposons de découvrir aussi cette sélection de logements situés à moins de 10km de Quarante et qui seraient susceptibles de vous intéresser.
Sallèles-d'Aude
TERRAIN ET MAISONNos architectes ont conçu ce modèle pour vous. Cette maison résolument contemporaine, saura vous séduire par son architecture innovante et sa terrasse couverte qui lui donnera un design unique. Elle possède trois espaces bien distincts avec un espace jour de 45 m² baignant de lumière grâce à ses 4 baies vitrées. Un espace nuit avec 2 belles chambres, et une salle de bains confortable et un troisième espace indépendant avec sa suite parentale de 23 m². Le modèle Lumière est à construire dans le département du Tarn, l’Aude, l’Hérault, la Haute-Garonne ainsi que les Pyrénées Orientales par Oc résidences, votre constructeur sur mesure en Occitanie.
Sallèles-d'Aude
TERRAIN ET MAISONOc résidences, constructeur de maisons individuelles vous propose cette maison neuve à construire dans le département du Tarn, l’Aude, l’Hérault, la Haute-Garonne ainsi que les Pyrénées Orientales. Le modèle Matinale, résolument contemporain et fonctionnel, se compose d’une grande pièce à vivre traversante de 43 m² avec cuisine ouverte. Le coté nuit s’articule autour de 3 grandes chambres avec placard, une grande Salle de Bains de 7,5 m² avec baignoire, double vasque et un grand espace douche. Son garage de 24 m² vous permettra de stationner votre voiture et de créer un espace de rangement pour votre quotidien. Oc Résidences est votre constructeur sur mesure en Occitanie.
Sallèles-d'Aude
TERRAINOc résidences Constructeur de Maison Individuelle, vous propose avec son partenaire foncier un lotissement de 36 parcelles, livrées viabilisées en EAU, EDF et Telecom.A seulement 10 Narbonne, n’hésitez plus et profitez de calme de la campagne de ce lotissement pour y construire la maison de vos rêves.Pour plus de renseignements n’hésitez pas à nous contacter au (Numéro supprimé).
Sallèles-d'Aude
TERRAIN ET MAISONCette jolie maison de plain-pied à construire n’attend plus que vous ! Découvrez le Point du Jour 85, une maison bien agencée avec un espace jour et nuit séparé et optimisé. La maison vous offre un espace de vie de 39 m² avec cellier, 3 chambres avec placard, sa salle de bain familiale et son WC indépendant. Vous pourrez notamment rajouter un garage de la surface souhaitée. Alors, n’attendez plus, et contactez nous, Oc résidences, votre constructeur sur mesure en Occitanie.
Sallèles-d'Aude
TERRAIN ET MAISONLaissez vous séduire par notre nouveau modèle, La SIROCCO. Cette villa, lumineuse et généreuse, vous séduira par son agencement et offrira d’agréables moments à toute votre famille. Sa grande pièce à vivre de 41 m², séparera votre suite parentale, d’un coin nuit aménagé avec deux autres chambres équipées de placard et d’une Salle de bain. Ses grandes ouvertures vous permettront de profiter des extérieurs avec vos amis et votre famille tout au long de l’année. La SIROCCO est à construire dans le département du Tarn, l’Aude, l’Hérault, la Haute-Garonne ainsi que les Pyrénées Orientales par Oc résidences, votre constructeur sur mesure en Occitanie.
Sallèles-d'Aude
TERRAIN ET MAISONLe modèle ZEPHYR 87 m² est une maison aux lignes sobres et authentiques qui saura vous séduire par son aménagement intérieur conçu pour optimiser votre confort. Ce pavillon vous offre trois chambres, une salle de bains, un bel espace vie de plus de 41 m² et un garage de 14 m², facilement transformable en une quatrième chambre. Cette maison sera répondre aux normes accessibilité. Votre projet de vie est à construire dans le département du Tarn, l’Aude, l’Hérault, la Haute-Garonne ainsi que les Pyrénées Orientales par Oc résidences, votre constructeur sur mesure en Occitanie.
Sallèles-d'Aude
TERRAIN ET MAISONLa Rose des Vents 89 est une maison moderne, bien pensée, privilégiant le confort dans toute la maison. Elle dispose d’une surface de 89 m² habitable, de plain-pied, optimisée et composée d’un hall d’entrée avec WC et placards, d’un salon séjour de 41 m² qui bénéficie de larges baies vitrées pour un plein ensoleillement, et d’un coin nuit avec 3 grandes chambres et une belle SDB. Un Garage de 15 m² viendra agrémenter le confort de votre maison.Selon l’orientation du terrain et selon vos préférences, de nombreuses options et aménagements sont possibles. Laissez- vous séduire par son originalité et ses volumes et contactez nous pour construire votre projet de vie dans le Tarn, l’Aude, L’Hérault, la Haute-Garonne ainsi que les Pyrénées Orientales.
Sallèles-d'Aude
TERRAINOc résidences Constructeur de Maison Individuelle, vous propose avec son partenaire foncier un lotissement de 36 parcelles, livrées viabilisées en EAU, EDF et Telecom.A seulement 10 Narbonne, n’hésitez plus et profitez de calme de la campagne de ce lotissement pour y construire la maison de vos rêves.Pour plus de renseignements n’hésitez pas à nous contacter au (Numéro supprimé).
Sallèles-d'Aude
TERRAIN ET MAISONLa millenium 4 chambres est le plain-pied idéal pour toute la famille. La villa se compose d’un vaste et lumineux Salon/Séjour doté d’une grande baie vitrée attenant à un garage. Le coté nuit s’articule autour de 4 chambres avec placard, un WC indépendant et une grande salle de bains. Cette maison, d’architecture sobre et élégante, est à construire dans le département du Tarn, l’Aude, l’Hérault, la Haute-Garonne ainsi que les Pyrénées Orientales par Oc résidences, votre constructeur sur mesure en Occitanie.
L’actualité immobilière à Quarante
27/11/2023
02/11/2023
30/10/2023
20/10/2023
16/10/2023
16/10/2023