Maison à construire à Sète (34200)
Images
Description
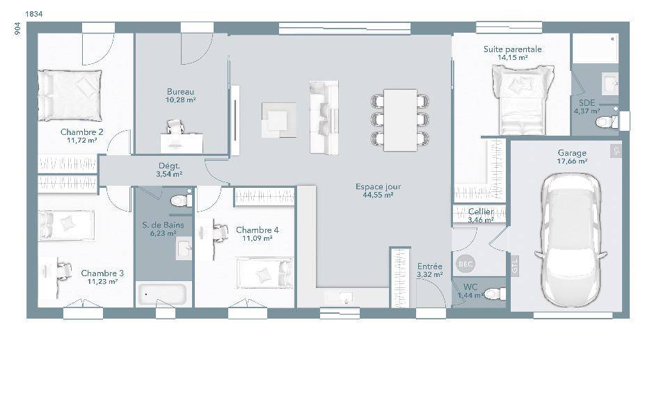
PROJET DE CONSTRUCTION - Maison F6 (125 m²) à Sète
IDÉALEMENT SITUÉE - MAISON 6 PIÈCES
À vendre : située sur la côte méditerranéenne, nous sommes heureux de vous proposer cette maison de 6 pièces de plain-pied de 125 m² et de 904 m² de terrain, idéalement située dans Sète (34200).
Conçue de plain-pied, elle comporte cinq chambres, une cuisine, un cellier et deux salles de bains + GARAGE.
(Carrelage inclus dans toutes les pièces / Raccordements inclus / Gainable compris).
Cette maison est située dans un quartier recherché. Il y a des écoles de tous niveaux à moins de 10 minutes à pied. Côté transports, on trouve la gare Sète à quelques pas du bien. L'autoroute A9 est accessible à 8 km. Il y a un bassin de natation, des commerces, des boulangeries, des supermarchés, des poissonneries et des épiceries à quelques minutes. Le marché Centre-Ville anime les environs.
Elle est proposée à l'achat pour 472 000 €.
Pour plus d'information contacter (Anthony BALLESTER : (Numéro supprimé)) Maisons France Confort Béziers pour échanger sur votre projet et réaliser une étude gratuite. (Plan personnalisable). Tous nos ouvrages sont réalisés sur-mesure en fonction de vos attentes et de nos échanges avec vous ainsi que dans le respect de la règlementation RE 2020. Ce projet comporte les garanties suivantes: Contrat de construction CCMI. Dommage/Ouvrage. RC Garantie décennale. Parfaite achèvement. Etude de sol G2. Prix et délais convenu. Garantie de livraison. Garantie financière Pour votre tranquillité nous nous occupons de toutes les formalités administratives.
Logement susceptibles de vous intéresser
Nous vous proposons de découvrir aussi cette sélection de logements situés à moins de 10km de Sète et qui seraient susceptibles de vous intéresser.
Marseillan
TERRAINFiche N°Id-TCT147724 : MARSEILLAN Fiche BC147724 : Marseillan, secteur Les mougeres, Terrain constructible – – Equipements annexes : – chauffage : Aucun – Plus d’informations disponibles sur demande… – Mentions légales : Proposé à la vente à 313000 Euros (honoraires à la charge du vendeur) – Reseau Immo-Diffusion Marseillan – Pour plus d’informations, contactez notre secrétariat au (Numéro supprimé) (Appel gratuit ou prix d’une communication locale)
Balaruc-le-Vieux
TERRAINVENTE : terrain de 355 m² à Balaruc-le-VieuxPROCHE DE MONTPELLIERÀ Balaruc-le-Vieux (34540) à 7 km de la côte méditerranéenne et à 22 km de Montpellier, venez découvrir ce terrain de 355 m². Il bénéficie d’une exposition nord-est. Il y a des établissements scolaires primaires à moins de 10 minutes à pied et, comme l’École Élémentaire du Mûrier Blanc. Niveau transports, on trouve deux gares (Sète et Frontignan) à moins de 10 minutes en voiture. L’autoroute A9 est accessible à 2 km. Il y a un tennis, des commerces, deux boulangeries, un supermarché et une boucherie-charcuterie à proximité.Il est proposé à l’achat pour 235 000 €. Prenez contact avec Xavier MONDIERE (tél : (Numéro supprimé)) pour toute question sur ce terrain. Maisons France Confort Montpellier vous accompagne dans tous vos projets immobiliers et à toutes les étapes de votre projet.Annonce proposée par un Agent Commercial Partenaire.
Balaruc-le-Vieux
TERRAINVENTE : terrain de 408 m² à Balaruc-le-VieuxPROCHE DE MONTPELLIERÀ Balaruc-le-Vieux (34540) à vendre à 7 km de la mer Méditerranée et à deux pas de Montpellier, imaginez la maison de vos rêves sur ce terrain de 408 m². Il bénéficie d’une exposition sud. Il y a des écoles maternelles et élémentaires à moins de 10 minutes à pied et, parmi lesquelles l’École Élémentaire du Mûrier Blanc. Niveau transports, on trouve les gares Sète et Frontignan à moins de 10 minutes en voiture. L’autoroute A9 est accessible à 2 km. Il y a un tennis, des commerces, deux boulangeries, un supermarché et une boucherie-charcuterie à quelques minutes de la propriété.Son prix de vente est de 275 000 €. Contactez notre agence (MONDIERE Xavier : (Numéro supprimé)) pour obtenir de plus amples informations sur ce terrain ou sur les démarches à suivre. Maisons France Confort Montpellier est là pour vous accompagner dans tous vos projets immobiliers.Annonce proposée par un Agent Commercial Partenaire.
Balaruc-le-Vieux
TERRAIN ET MAISONRéaliser le rêve d’être propriétaire proche de SETEA BALARUC LE VIEUX, Maisons France confort est ravie de vous proposer votre future maisonde plain-piedSon intérieur compte deux chambres, une salle de bains ainsi qu’un séjour salon cuisine très lumineux ouvert sur votre jardin et pouvant accueillir un îlot central.Menuiseries PVC, Baies alu avec volets roulants motorisés.Chauffage clim réversibleEmplacement recherché : Des écoles maternelles et élémentaires sont implantées à moins de 10 minutes à pied, tout comme dont l’École Élémentaire du Mûrier Blanc. Côté transports, il y a les gares Sète et Frontignan à moins de 10 minutes en voiture. On trouve un accès à l’autoroute A9 à 2 km. On trouve un tennis, des commerces, deux boulangeries, un supermarché et une boucherie-charcuterie à proximité.PRIX : 355 000€.(Sous réserve de disponibilités)Votre maison bioclimatique est livrée crépis gratté + carrelage dans toutes les pièces (A choisir). Dans la salle de bain la faïence est comprise (A choisir). Les sanitaires avec meuble vasque et wc suspendu sont déjà inclus. Tous les volets sont motorisésPrenez contact avec Xavier MONDIERE ((Numéro supprimé)) pour plus de renseignements sur la maison ou sur les démarches à suivre. Maisons France Confort Montpellier est à vos côté pour vous accompagner à toutes les étapes de votre projet personnalisé en contrat de construction loi de 90 (CCMI).Vous êtes en quête d’inspiration ? Pas de panique, notre équipe est entièrement disponible, à l’écoute de vos besoins et attentes pour vous conseiller afin de réaliser votre projet de vie !Annonce proposée par un Agent Commercial Partenaire.
Balaruc-le-Vieux
TERRAIN ET MAISONRéaliser le rêve d’être propriétaire proche de SETEA BALARUC LE VIEUX Maisons France confort est ravie de vous proposer votre future maison.Son intérieur compte trois chambres, une salle de bains ainsi qu’un séjour salon cuisine très lumineux ouvert sur votre jardin et pouvant accueillir un îlot central.Menuiseries PVC, Baies alu avec volets roulants motorisés.Chauffage clim réversibleEmplacement recherché : On trouve des établissements scolaires primaires à moins de 10 minutes à pied et dont l’École Élémentaire du Mûrier Blanc. Côté transports, il y a les gares Sète et Frontignan à moins de 10 minutes en voiture. L’autoroute A9 est accessible à 2 km. On trouve un tennis, des commerces, deux boulangeries, un supermarché et une boucherie-charcuterie à quelques minutes.PRIX : 420 000€.(Sous réserve de disponibilités)Votre maison bioclimatique est livrée crépis gratté + carrelage dans toutes les pièces (A choisir). Dans la salle de bain la faïence est comprise (A choisir). Les sanitaires avec meuble vasque et wc suspendu sont déjà inclus. Tous les volets sont motorisésPrenez contact avec Xavier MONDIERE ((Numéro supprimé)) pour plus de renseignements sur la maison ou sur les démarches à suivre. Maisons France Confort Montpellier est à vos côté pour vous accompagner à toutes les étapes de votre projet personnalisé en contrat de construction loi de 90 (CCMI).Vous êtes en quête d’inspiration ? Pas de panique, notre équipe est entièrement disponible, à l’écoute de vos besoins et attentes pour vous conseiller afin de réaliser votre projet de vie !Annonce proposée par un Agent Commercial Partenaire.
Marseillan
TERRAINTerrain de 212 m² en vente à MarseillanPROCHE DE BÉZIERSSur le littoral méditerranéen et à quelques kilomètres de Béziers à Marseillan (34340), terrain de 212 m². Il y a l’École Maternelle Marie Fayet et l’École Élémentaire d’Bardou A Maffre de Baugé à moins de 10 minutes à pied et une structure d’accueil pour les tout-petits. Niveau transports en commun, on trouve trois gares (Marseillan Plage, Agde et Vias) à moins de 10 minutes en voiture. L’autoroute A9 est accessible à 9 km. Il y a des boulangeries, des commerces, un supermarché, deux poissonneries et quatre épiceries à quelques minutes de la propriété. Enfin, le marché Centre-Ville a lieu tous les mardis matin.Il est à vendre pour la somme de 102 000 €. Prenez contact avec Mickaël MARTINEZ ((Numéro supprimé)) pour tout renseignement sur ce terrain ou sur les démarches à suivre. Faites de vos projets immobiliers une réalité avec Maisons France Confort Clermont-l’Hérault.
Marseillan
TERRAIN ET MAISONVENTE : maison F4 (78 m²) à MarseillanMAISON 4 PIÈCES NEUVE – PROCHE DE BÉZIERSEn vente : à 5 km de la mer Méditerranée et à deux pas de Béziers, nous sommes ravis de vous proposer à Marseillan (34340), cette maison de 4 pièces de 78 m² et de 212 m² de terrain. Elle offre trois chambres, une cuisine et une salle de bains.C’est une maison de 2 niveaux. Elle est neuve.L’École Maternelle Marie Fayet et l’École Élémentaire d’Bardou A Maffre de Baugé sont implantées à moins de 10 minutes à pied, tout comme une structure d’accueil pour la petite enfance. Niveau transports en commun, on trouve trois gares (Marseillan Plage, Agde et Vias) à moins de 10 minutes en voiture. L’autoroute A9 est accessible à 9 km. Il y a des boulangeries, des commerces, un supermarché, quatre épiceries et deux poissonneries à proximité. Ne manquez pas le marché Centre-Ville tous les mardis matin.Elle est proposée à l’achat pour 240 000 €.Prenez contact avec Mickaël MARTINEZ ((Numéro supprimé)) pour plus d’informations sur cette maison. Maisons France Confort Clermont-l’Hérault vous accompagne à toutes les étapes de votre projet et dans toutes vos démarches.
Marseillan
TERRAIN ET MAISONMaison T5 (98 m²) à vendre à MarseillanPROCHE DE BÉZIERS – MAISON 5 PIÈCES NEUVEÀ vendre sur le littoral méditerranéen et à deux pas de Béziers, nous vous proposons cette maison de 5 pièces de 98 m² et de 212 m² de terrain à Marseillan (34340).Cette maison comporte 2 niveaux. Son intérieur propose quatre chambres, une cuisine et une salle de bains. La maison est neuve.L’École Maternelle Marie Fayet et l’École Élémentaire d’Bardou A Maffre de Baugé se trouvent à moins de 10 minutes à pied, tout comme une structure d’accueil pour la petite enfance. Niveau transports en commun, il y a trois gares (Marseillan Plage, Agde et Vias) à moins de 10 minutes en voiture. L’autoroute A9 est accessible à 9 km. On trouve des boulangeries, des commerces, un supermarché, deux poissonneries et un bureau de poste dans les environs. Le marché Centre-Ville anime les environs chaque mardi matin.Elle est proposée à l’achat pour 270 000 €.Contactez Mickaël MARTINEZ (tél : (Numéro supprimé)) pour tout renseignement sur la maison, sur les modalités de vente ou sur les démarches à suivre. Maisons France Confort Clermont-l’Hérault est là pour vous accompagner à toutes les étapes de l’achat.
Marseillan
TERRAIN ET MAISONVENTE : maison T4 (81 m²) à MarseillanPROCHE DE BÉZIERS – MAISON 4 PIÈCES NEUVEÀ vendre : sur le littoral méditerranéen et à quelques kilomètres de Béziers, votre agence Maisons France Confort Clermont-l’Hérault est heureuse de vous présenter cette maison de 4 pièces de plain-pied de 81 m² et de 212 m² de terrain à Marseillan (34340). Son intérieur comporte trois chambres, une cuisine et une salle de bains.La maison est neuve.On trouve l’École Maternelle Marie Fayet et l’École Élémentaire d’Bardou A Maffre de Baugé à moins de 10 minutes à pied et une crèche. Côté transports en commun, il y a les gares Marseillan Plage, Agde et Vias à moins de 10 minutes en voiture. L’autoroute A9 est accessible à 9 km. On trouve des boulangeries, des commerces, un supermarché, deux poissonneries et deux boucheries-charcuteries à quelques minutes. Le marché Centre-Ville a lieu chaque mardi matin.Elle est à vendre pour la somme de 230 000 €.N’hésitez pas à prendre contact avec notre constructeur (Mickaël MARTINEZ : (Numéro supprimé)) pour toute question sur la maison. Maisons France Confort Clermont-l’Hérault est là pour vous accompagner dans toutes vos démarches.
L’actualité immobilière à Sète
27/11/2023
02/11/2023
30/10/2023
20/10/2023
16/10/2023
16/10/2023