Maison à construire à Saint-Gély-du-Fesc (34980)
Images
Description
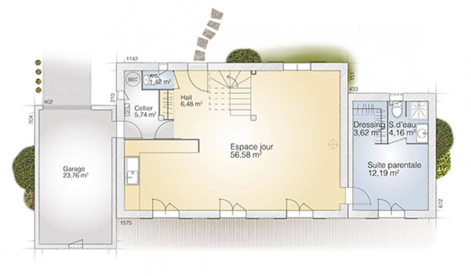
Maison T7 (140 m²) à vendre à Saint-Gély-du-Fesc
EMPLACEMENT PRIVILÉGIÉ - MAISON 7 PIÈCES NEUVE
À 22 km de la côte méditerranéenne et à deux pas de Montpellier, découvrez cette maison de 7 pièces de 140 m² et de 600 m² de terrain bénéficiant d'un emplacement d'exception dans Saint-Gély-du-Fesc (34980).
C'est une maison de 2 niveaux. Elle dispose de cinq chambres, d'une cuisine et de trois salles de bains. La maison est neuve.
Cette maison se situe dans un secteur convoité. Plusieurs établissements scolaires (maternelle, élémentaire et collège) se trouvent à moins de 10 minutes à pied. L'autoroute A750 et la nationale N109 sont accessibles à moins de 8 km. Il y a un tennis, des commerces, des boulangeries, une épicerie, une poissonnerie et un bureau de poste à quelques minutes de la maison.
Elle est à vendre pour la somme de 611 200 €.
Contactez notre agence (BARBAGLIA Jean-Yves : (Numéro supprimé)) pour toute question sur la maison ou sur les démarches à suivre. Concrétisez vos projets immobiliers avec Maisons Balency Castries.
Logement susceptibles de vous intéresser
Nous vous proposons de découvrir aussi cette sélection de logements situés à moins de 10km de Saint-Gély-du-Fesc et qui seraient susceptibles de vous intéresser.
Teyran
TERRAINVENTE : terrain de 360 m² à TeyranEMPLACEMENT PRIVILÉGIÉ – PROCHE DE MONTPELLIEREn vente à 16 km de la côte méditerranéenne et à deux pas de Montpellier à Teyran (34820), terrain de 360 m². Dans un secteur convoité, ce terrain bénéficiant d’un emplacement d’exception est proche des écoles et des commerces. Des écoles primaires sont implantées à moins de 10 minutes à pied, dont l’École Élémentaire Jules Ferry, tout comme une structure d’accueil pour la petite enfance. Côté transports, il y a quatre gares à moins de 10 minutes en voiture. L’autoroute A709 et la nationale N113 sont accessibles à moins de 7 km. On trouve une bibliothèque, un tennis, deux boulangeries, quatre commerces, un bureau de poste, une boucherie-charcuterie et une supérette à proximité du terrain.Son prix de vente est de 245 000 €. N’hésitez pas à prendre contact avec Cédric ((Numéro supprimé)) pour tout renseignement sur ce terrain, sur les modalités de vente ou sur les démarches à suivre.
Montpellier
TERRAINSitué à Montpellier quartier entre le plan des 4 seigneurs et chateau d’o, à proximité immédiate des commodités et des transports, ce terrain de 690 m² est une opportunité idéale pour concrétiser votre projet immobilier dans un cadre pratique et agréable.Le terrain est viabilisé. Il n’est pas libre de constructeur, vous bénéficierez ainsi d’un accompagnement professionnel pour la réalisation de votre future maison.Idéal pour un projet familial ou un investissement, ce terrain allie emplacement stratégique et praticité.Cette annonce référence 309017 vous est présentée par votre agent commercial BSK Immobilier MAXIME CHANU (EIRL) immatriculé au RSAC de MONTPELLIER (34000) sous le numéro 88832502400014.Prix du bien : 349 000,00 €Les honoraires d’agence sont à la charge du vendeur.Les informations sur les risques auxquels ce bien est exposé sont disponibles sur le site Géorisques : www.georisques.gouv.fr
Assas
TERRAINAssas : terrain de 430 m² en venteEMPLACEMENT PRIVILÉGIÉ – PROCHE DE MONTPELLIERÀ Assas (34820) à 19 km de la côte méditerranéenne et à 12 km de Montpellier, découvrez ce terrain de 430 m². Ce terrain, avec vue sur jardin, est exposé à l’ouest. Il se situe dans un secteur convoité. Des écoles maternelles et élémentaires y sont implantées et une structure d’accueil pour la petite enfance. Côté transports, il y a la gare Saint-Aunès à moins de 10 minutes en voiture. L’autoroute A709 et la nationale N113 sont accessibles à moins de 10 km. On trouve un tennis, une boulangerie, un commerce et une épicerie à quelques minutes.Ce terrain est à vendre pour la somme de 240 000 €. N’hésitez pas à prendre contact avec notre agence (Jean-Yves BARBAGLIA : (Numéro supprimé)) pour toute question sur ce terrain. Faites de vos projets immobiliers une réalité avec Maisons Balency Castries.
Assas
TERRAIN ET MAISONAssas : maison de 6 pièces (100 m²) en venteEMPLACEMENT PRIVILÉGIÉ – MAISON 6 PIÈCES NEUVEEn vente : localisée à 19 km de la mer Méditerranée et à deux pas de Montpellier, bénéficiant d’un emplacement d’exception dans Assas (34820), nous vous présentons cette maison de 6 pièces de 100 m² avec vue sur jardin.Cette maison compte 2 niveaux. Elle inclut trois chambres, une cuisine et deux salles de bains. Cette maison est neuve.Le terrain de la propriété est de 430 m².La maison est située dans un quartier attractif. On y trouve des écoles maternelles et élémentaires ainsi qu’une structure d’accueil pour les tout-petits. Niveau transports en commun, on trouve la gare Saint-Aunès à moins de 10 minutes en voiture. L’autoroute A709 et la nationale N113 sont accessibles à moins de 10 km. Il y a un tennis, une boulangerie, un commerce et une épicerie à proximité du logement.Elle est proposée à l’achat pour 451 500 €.Prenez contact avec notre agence (Jean-Yves BARBAGLIA : (Numéro supprimé)) pour toute information sur la maison. Maisons Balency Castries vous accompagne dans toutes vos démarches et à toutes les étapes de votre projet.
Assas
TERRAIN ET MAISONMaison de 6 pièces (110 m²) à vendre à AssasEMPLACEMENT PRIVILÉGIÉ – MAISON 6 PIÈCES NEUVEÀ 19 km de la mer Méditerranée et à quelques kilomètres de Montpellier, nous sommes heureux de vous proposer en vente, bénéficiant d’un emplacement privilégié dans Assas (34820), cette maison de 6 pièces de 110 m² et de 430 m² de terrain.Cette maison compte 2 niveaux. Elle comporte trois chambres, une cuisine et une salle de bains. La maison est neuve.Cette propriété est située dans un quartier attractif. Des écoles maternelles et élémentaires y sont implantées et une structure d’accueil pour les tout-petits. Niveau transports en commun, on trouve la gare Saint-Aunès à moins de 10 minutes en voiture. L’autoroute A709 et la nationale N113 sont accessibles à moins de 10 km. Il y a un tennis, une boulangerie, un commerce et une épicerie à proximité.Elle est proposée à l’achat pour 487 000 €.N’hésitez pas à prendre contact avec Jean-Yves BARBAGLIA ((Numéro supprimé)) pour obtenir de plus amples informations sur la maison ou sur les modalités de vente. Maisons Balency Castries vous accompagne à toutes les étapes de l’achat et dans toutes vos démarches.
Juvignac
TERRAINVENTE d’un terrain de 517 m² à JuvignacIDÉALEMENT SITUÉ – VUE SANS VIS-À-VISÀ vendre à 15 km de la côte méditerranéenne et à deux pas de Montpellier à Juvignac (34990), grand terrain. Ce terrain, sans vis-à-vis, est exposé plein sud. Dans un quartier prisé, le terrain idéalement situé est proche des commerces et des écoles. Il y a l’École Élémentaire les Garrigues-Simone Veil, l’École Maternelle les Garrigues et le Collège Arthur Rimbaud à moins de 10 minutes à pied. Côté transports, on trouve les gares Montpellier Saint-Roch, Villeneuve-lès-Maguelone et Montpellier Sud de France à moins de 10 minutes en voiture. On trouve un accès à la nationale N109 à 1 km. Il y a un tennis, des commerces, quatre boulangeries, un supermarché, une supérette et deux boucheries-charcuteries dans les environs.Ce terrain est à vendre pour la somme de 229 000 €. N’hésitez pas à prendre contact avec notre agence (Jean-Yves BARBAGLIA : (Numéro supprimé)) pour obtenir de plus amples informations sur le terrain, sur les démarches à suivre ou sur les modalités de vente. Maisons Balency Castries vous accompagne à toutes les étapes de votre projet et dans tous vos projets immobiliers.
Juvignac
TERRAIN ET MAISONMaison T6 (100 m²) en vente à JuvignacIDÉALEMENT SITUÉE – VUE SANS VIS-À-VISÀ 15 km de la mer Méditerranée et à 7 km de Montpellier, découvrez à vendre, idéalement située dans Juvignac (34990), cette maison de 6 pièces de 100 m² sans vis-à-vis.C’est une maison de 2 niveaux. Son intérieur dispose de trois chambres, d’une cuisine et de deux salles de bains. Cette maison est neuve.Le terrain du bien est de 517 m².La propriété est située dans un secteur attractif. L’École Élémentaire les Garrigues-Simone Veil, l’École Maternelle les Garrigues et le Collège Arthur Rimbaud sont implantés à moins de 10 minutes à pied. Niveau transports en commun, il y a trois gares (Montpellier Saint-Roch, Villeneuve-lès-Maguelone et Montpellier Sud de France) à moins de 10 minutes en voiture. Il y a un accès à la nationale N109 à 1 km. On trouve un tennis, des commerces, quatre boulangeries, un supermarché, une supérette et une épicerie à quelques minutes.Son prix de vente est de 445 900 €.Contactez Jean-Yves BARBAGLIA ((Numéro supprimé)) pour tout renseignement sur la maison ou sur les modalités de vente. Maisons Balency Castries vous accompagne à toutes les étapes de votre projet et dans toutes vos démarches.
Juvignac
TERRAIN ET MAISONVENTE : maison de 6 pièces (110 m²) à JuvignacIDÉALEMENT SITUÉE – MAISON 6 PIÈCES NEUVEÀ vendre à 15 km de la mer Méditerranée et à deux pas de Montpellier, laissez vous charmer par cette maison de 6 pièces de 110 m² et de 517 m² de terrain idéalement située dans Juvignac (34990). Elle offre trois chambres, une cuisine et une salle de bains.C’est une maison de 2 niveaux. Elle est neuve.La maison se trouve dans un quartier attractif. L’École Élémentaire les Garrigues-Simone Veil, l’École Maternelle les Garrigues et le Collège Arthur Rimbaud sont implantés à moins de 10 minutes à pied. Niveau transports, on trouve trois gares (Montpellier Saint-Roch, Villeneuve-lès-Maguelone et Montpellier Sud de France) à moins de 10 minutes en voiture. La nationale N109 est accessible à 1 km. Il y a un tennis, des commerces, quatre boulangeries, un supermarché, une supérette et un bureau de poste à quelques minutes de la maison.Elle est à vendre pour la somme de 463 800 €.Contactez Jean-Yves BARBAGLIA ((Numéro supprimé)) pour obtenir de plus amples informations sur la maison. Donnez vie à vos projets immobiliers avec Maisons Balency Castries.
Montpellier
TERRAINVENTE d’un terrain de 1 188 m² à JuvignacEMPLACEMENT PRIVILÉGIÉ – PROCHE DE MONTPELLIERGrand terrain à 15 km de la côte méditerranéenne et à deux pas de Montpellier. De 1 188 m², ce terrain se situe bénéficiant d’un emplacement privilégié dans Juvignac (34990). Il est orienté au sud-est. Dans un secteur recherché, ce terrain est proche des commerces et des écoles. L’École Élémentaire les Garrigues-Simone Veil, l’École Maternelle les Garrigues et le Collège Arthur Rimbaud sont implantés à moins de 10 minutes à pied. Côté transports, il y a trois gares (Montpellier Saint-Roch, Villeneuve-lès-Maguelone et Montpellier Sud de France) à moins de 10 minutes en voiture. Il y a un accès à la nationale N109 à 1 km. On trouve un tennis, des commerces, quatre boulangeries, un supermarché, un bureau de poste et une supérette à quelques minutes.Son prix de vente est de 210 000 €. Contactez notre agence (LAURENT Thierry : (Numéro supprimé)) pour obtenir de plus amples renseignements sur le terrain. Maisons de Manon Gignac est là pour vous accompagner dans toutes vos démarches.TERRAIN NON VIABILISE , EN ATTENTE DE DEVIS
L’actualité immobilière à Saint-Gély-du-Fesc
27/11/2023
02/11/2023
30/10/2023
20/10/2023
16/10/2023
16/10/2023