Maison à construire à Saint-Georges-d'Orques (34680)
Images
Description
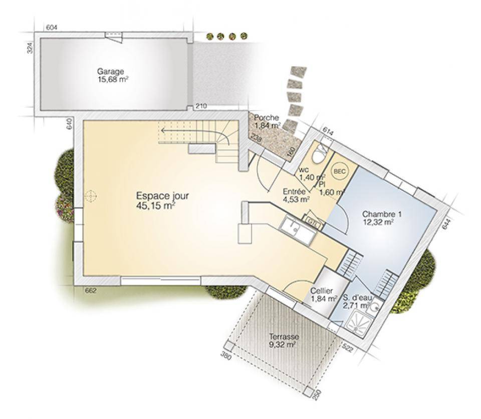
VENTE : maison T6 (100 m²) à Saint-Georges-d'Orques
IDÉALEMENT SITUÉE - MAISON 6 PIÈCES NEUVE
À vendre : à 18 km de la mer Méditerranée et à deux pas de Montpellier, nous vous présentons cette maison de 6 pièces de 100 m² avec vue sur jardin idéalement située dans Saint-Georges-d'Orques (34680). Elle compte trois chambres, une cuisine et deux salles de bains.
Le terrain de la propriété est de 544 m².
C'est une maison de 2 niveaux. Elle est neuve.
La propriété se situe dans un quartier recherché. On y trouve l'École Maternelle les Pilettes, l'École Primaire Privée Saint-Louis, le Collège Privé Saint Charles et l'École Élémentaire Jean Jaurés. Niveau transports en commun, on trouve la gare Montpellier Saint-Roch à moins de 10 minutes en voiture. Les autoroutes A750 et A709 et la nationale N109 sont accessibles à moins de 8 km. Il y a une boulangerie à proximité.
Elle est à vendre pour la somme de 455 000 €.
Contactez Jean-Yves BARBAGLIA ((Numéro supprimé)) pour toute question sur la maison. Maisons Balency Castries vous accompagne dans toutes vos démarches et dans tous vos projets immobiliers.
Logement susceptibles de vous intéresser
Nous vous proposons de découvrir aussi cette sélection de logements situés à moins de 10km de Saint-Georges-d'Orques et qui seraient susceptibles de vous intéresser.
Montpellier
TERRAINSitué à Montpellier quartier entre le plan des 4 seigneurs et chateau d’o, à proximité immédiate des commodités et des transports, ce terrain de 690 m² est une opportunité idéale pour concrétiser votre projet immobilier dans un cadre pratique et agréable.Le terrain est viabilisé. Il n’est pas libre de constructeur, vous bénéficierez ainsi d’un accompagnement professionnel pour la réalisation de votre future maison.Idéal pour un projet familial ou un investissement, ce terrain allie emplacement stratégique et praticité.Cette annonce référence 309017 vous est présentée par votre agent commercial BSK Immobilier MAXIME CHANU (EIRL) immatriculé au RSAC de MONTPELLIER (34000) sous le numéro 88832502400014.Prix du bien : 349 000,00 €Les honoraires d’agence sont à la charge du vendeur.Les informations sur les risques auxquels ce bien est exposé sont disponibles sur le site Géorisques : www.georisques.gouv.fr
Juvignac
TERRAINVENTE d’un terrain de 517 m² à JuvignacIDÉALEMENT SITUÉ – VUE SANS VIS-À-VISÀ vendre à 15 km de la côte méditerranéenne et à deux pas de Montpellier à Juvignac (34990), grand terrain. Ce terrain, sans vis-à-vis, est exposé plein sud. Dans un quartier prisé, le terrain idéalement situé est proche des commerces et des écoles. Il y a l’École Élémentaire les Garrigues-Simone Veil, l’École Maternelle les Garrigues et le Collège Arthur Rimbaud à moins de 10 minutes à pied. Côté transports, on trouve les gares Montpellier Saint-Roch, Villeneuve-lès-Maguelone et Montpellier Sud de France à moins de 10 minutes en voiture. On trouve un accès à la nationale N109 à 1 km. Il y a un tennis, des commerces, quatre boulangeries, un supermarché, une supérette et deux boucheries-charcuteries dans les environs.Ce terrain est à vendre pour la somme de 229 000 €. N’hésitez pas à prendre contact avec notre agence (Jean-Yves BARBAGLIA : (Numéro supprimé)) pour obtenir de plus amples informations sur le terrain, sur les démarches à suivre ou sur les modalités de vente. Maisons Balency Castries vous accompagne à toutes les étapes de votre projet et dans tous vos projets immobiliers.
Juvignac
TERRAIN ET MAISONMaison T6 (100 m²) en vente à JuvignacIDÉALEMENT SITUÉE – VUE SANS VIS-À-VISÀ 15 km de la mer Méditerranée et à 7 km de Montpellier, découvrez à vendre, idéalement située dans Juvignac (34990), cette maison de 6 pièces de 100 m² sans vis-à-vis.C’est une maison de 2 niveaux. Son intérieur dispose de trois chambres, d’une cuisine et de deux salles de bains. Cette maison est neuve.Le terrain du bien est de 517 m².La propriété est située dans un secteur attractif. L’École Élémentaire les Garrigues-Simone Veil, l’École Maternelle les Garrigues et le Collège Arthur Rimbaud sont implantés à moins de 10 minutes à pied. Niveau transports en commun, il y a trois gares (Montpellier Saint-Roch, Villeneuve-lès-Maguelone et Montpellier Sud de France) à moins de 10 minutes en voiture. Il y a un accès à la nationale N109 à 1 km. On trouve un tennis, des commerces, quatre boulangeries, un supermarché, une supérette et une épicerie à quelques minutes.Son prix de vente est de 445 900 €.Contactez Jean-Yves BARBAGLIA ((Numéro supprimé)) pour tout renseignement sur la maison ou sur les modalités de vente. Maisons Balency Castries vous accompagne à toutes les étapes de votre projet et dans toutes vos démarches.
Juvignac
TERRAIN ET MAISONVENTE : maison de 6 pièces (110 m²) à JuvignacIDÉALEMENT SITUÉE – MAISON 6 PIÈCES NEUVEÀ vendre à 15 km de la mer Méditerranée et à deux pas de Montpellier, laissez vous charmer par cette maison de 6 pièces de 110 m² et de 517 m² de terrain idéalement située dans Juvignac (34990). Elle offre trois chambres, une cuisine et une salle de bains.C’est une maison de 2 niveaux. Elle est neuve.La maison se trouve dans un quartier attractif. L’École Élémentaire les Garrigues-Simone Veil, l’École Maternelle les Garrigues et le Collège Arthur Rimbaud sont implantés à moins de 10 minutes à pied. Niveau transports, on trouve trois gares (Montpellier Saint-Roch, Villeneuve-lès-Maguelone et Montpellier Sud de France) à moins de 10 minutes en voiture. La nationale N109 est accessible à 1 km. Il y a un tennis, des commerces, quatre boulangeries, un supermarché, une supérette et un bureau de poste à quelques minutes de la maison.Elle est à vendre pour la somme de 463 800 €.Contactez Jean-Yves BARBAGLIA ((Numéro supprimé)) pour obtenir de plus amples informations sur la maison. Donnez vie à vos projets immobiliers avec Maisons Balency Castries.
Montpellier
TERRAINVENTE d’un terrain de 1 188 m² à JuvignacEMPLACEMENT PRIVILÉGIÉ – PROCHE DE MONTPELLIERGrand terrain à 15 km de la côte méditerranéenne et à deux pas de Montpellier. De 1 188 m², ce terrain se situe bénéficiant d’un emplacement privilégié dans Juvignac (34990). Il est orienté au sud-est. Dans un secteur recherché, ce terrain est proche des commerces et des écoles. L’École Élémentaire les Garrigues-Simone Veil, l’École Maternelle les Garrigues et le Collège Arthur Rimbaud sont implantés à moins de 10 minutes à pied. Côté transports, il y a trois gares (Montpellier Saint-Roch, Villeneuve-lès-Maguelone et Montpellier Sud de France) à moins de 10 minutes en voiture. Il y a un accès à la nationale N109 à 1 km. On trouve un tennis, des commerces, quatre boulangeries, un supermarché, un bureau de poste et une supérette à quelques minutes.Son prix de vente est de 210 000 €. Contactez notre agence (LAURENT Thierry : (Numéro supprimé)) pour obtenir de plus amples renseignements sur le terrain. Maisons de Manon Gignac est là pour vous accompagner dans toutes vos démarches.TERRAIN NON VIABILISE , EN ATTENTE DE DEVIS
Montpellier
TERRAIN ET MAISONMaison de 4 pièces (105 m²) en vente à JuvignacEMPLACEMENT PRIVILÉGIÉ – MAISON 4 PIÈCES NEUVEEn vente : à 15 km de la côte méditerranéenne et à quelques kilomètres de Montpellier, nous sommes heureux de vous proposer cette maison de 4 pièces de 105 m² et de 1 188 m² de terrain bénéficiant d’un emplacement d’exception dans Juvignac (34990). Elle est composée de trois chambres, d’une cuisine et de trois salles de bains.Il s’agit d’une maison de 2 niveaux. Elle est neuve.La maison se situe dans un secteur recherché. L’École Élémentaire les Garrigues-Simone Veil, l’École Maternelle les Garrigues et le Collège Arthur Rimbaud sont implantés à moins de 10 minutes à pied. Côté transports, on trouve trois gares (Montpellier Saint-Roch, Villeneuve-lès-Maguelone et Montpellier Sud de France) à moins de 10 minutes en voiture. La nationale N109 est accessible à 1 km. Il y a un tennis, des commerces, quatre boulangeries, un supermarché, deux boucheries-charcuteries et un bureau de poste dans les environs.Elle est à vendre pour la somme de 409 200 €.N’hésitez pas à prendre contact avec notre agence (LAURENT Thierry : (Numéro supprimé)) pour toute question sur la maison.
Montpellier
TERRAIN ET MAISONVENTE d’une maison F4 (120 m²) à JuvignacEMPLACEMENT PRIVILÉGIÉ – MAISON 4 PIÈCES NEUVEÀ vendre : à 15 km de la mer Méditerranée et à 7 km de Montpellier, votre agence Maisons de Manon Gignac est heureuse de vous présenter, bénéficiant d’un emplacement privilégié dans Juvignac (34990), cette maison de 4 pièces de 120 m² et de 1 188 m² de terrain. Son intérieur offre trois chambres, une cuisine et trois salles de bains.Il s’agit d’une maison de 2 niveaux. Elle est neuve.La maison se situe dans un secteur attractif. On trouve l’École Élémentaire les Garrigues-Simone Veil, l’École Maternelle les Garrigues et le Collège Arthur Rimbaud à moins de 10 minutes à pied. Côté transports en commun, il y a trois gares (Montpellier Saint-Roch, Villeneuve-lès-Maguelone et Montpellier Sud de France) à moins de 10 minutes en voiture. La nationale N109 est accessible à 1 km. On trouve un tennis, des commerces, quatre boulangeries, un supermarché, un bureau de poste et une épicerie dans les environs.Elle est à vendre pour la somme de 406 640 €.Contactez Thierry LAURENT ((Numéro supprimé)) pour toute question sur la maison, sur les démarches à suivre ou sur les modalités de vente.
Montpellier
TERRAIN ET MAISONJuvignac : maison de 5 pièces (96 m²) en venteEMPLACEMENT PRIVILÉGIÉ – MAISON 5 PIÈCES NEUVEÀ vendre : localisée à 15 km de la mer Méditerranée et à quelques kilomètres de Montpellier, bénéficiant d’un emplacement d’exception dans Juvignac (34990), nous vous proposons cette maison de 5 pièces de 96 m² et de 1 188 m² de terrain.Il s’agit d’une maison de 2 niveaux. Son intérieur propose quatre chambres, une cuisine et une salle de bains. Cette maison est neuve.La maison se situe dans un secteur recherché. On trouve l’École Élémentaire les Garrigues-Simone Veil, l’École Maternelle les Garrigues et le Collège Arthur Rimbaud à moins de 10 minutes à pied. Niveau transports, il y a trois gares (Montpellier Saint-Roch, Villeneuve-lès-Maguelone et Montpellier Sud de France) à moins de 10 minutes en voiture. La nationale N109 est accessible à 1 km. On trouve un tennis, des commerces, quatre boulangeries, un supermarché, un bureau de poste et une supérette dans les environs.Elle est proposée à l’achat pour 386 600 €.N’hésitez pas à prendre contact avec Thierry LAURENT ((Numéro supprimé)) pour obtenir de plus amples renseignements sur la maison ou sur les démarches à suivre.
Montpellier
TERRAIN ET MAISONMaison F4 (78 m²) à vendre à JuvignacEMPLACEMENT PRIVILÉGIÉ – MAISON 4 PIÈCES NEUVEÀ 15 km de la mer Méditerranée et à deux pas de Montpellier, Maisons de Manon Gignac vous propose cette maison de 4 pièces de 78 m² bénéficiant d’un emplacement privilégié dans Juvignac (34990).Cette maison comporte 2 niveaux. Son intérieur offre trois chambres, une cuisine et une salle de bains. La maison est neuve.Le terrain du bien s’étend sur 1 188 m².Cette maison se trouve dans un secteur recherché. Il y a l’École Élémentaire les Garrigues-Simone Veil, l’École Maternelle les Garrigues et le Collège Arthur Rimbaud à moins de 10 minutes à pied. Côté transports en commun, on trouve les gares Montpellier Saint-Roch, Villeneuve-lès-Maguelone et Montpellier Sud de France à moins de 10 minutes en voiture. Il y a un accès à la nationale N109 à 1 km. Il y a un tennis, des commerces, quatre boulangeries, un supermarché, une épicerie et une supérette à quelques minutes.Son prix de vente est de 347 300 €.Prenez contact avec Thierry LAURENT (tél : (Numéro supprimé)) pour toute question sur la maison, sur les démarches à suivre ou sur les modalités de vente. Faites de vos projets immobiliers une réalité avec Maisons de Manon Gignac.
L’actualité immobilière à Saint-Georges-d'Orques
27/11/2023
02/11/2023
30/10/2023
20/10/2023
16/10/2023
16/10/2023