Maison à construire à Saint-Jean-de-Cuculles (34270)
Images
Description
Saint-Jean-de-Cuculles : maison de 6 pièces (170 m²) en vente
IDÉALEMENT SITUÉE - MAISON 6 PIÈCES NEUVE
À vendre à 28 km de la côte méditerranéenne et à quelques kilomètres de Montpellier, nous vous proposons cette maison de 6 pièces de 170 m² sans vis-à-vis idéalement située dans Saint-Jean-de-Cuculles (34270).
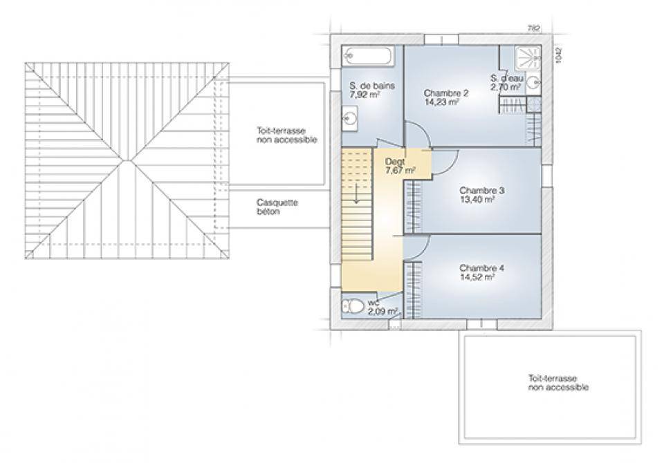
Cette maison comporte 2 niveaux. Elle propose quatre chambres, une cuisine et trois salles de bains. La maison est neuve.
Le terrain de la propriété s'étend sur 1 500 m².
Cette maison se trouve dans un quartier recherché. Les autoroutes A750 et A709 et les nationales N109 et N113 sont accessibles à moins de 17 km. Il y a un tennis et un commerce à proximité du bien.
Son prix de vente est de 786 000 €.
Contactez Jean-Yves BARBAGLIA ((Numéro supprimé)) pour obtenir de plus amples renseignements sur la maison ou sur les démarches à suivre.
Logement susceptibles de vous intéresser
Nous vous proposons de découvrir aussi cette sélection de logements situés à moins de 10km de Saint-Jean-de-Cuculles et qui seraient susceptibles de vous intéresser.
Assas
TERRAINAssas : terrain de 430 m² en venteEMPLACEMENT PRIVILÉGIÉ – PROCHE DE MONTPELLIERÀ Assas (34820) à 19 km de la côte méditerranéenne et à 12 km de Montpellier, découvrez ce terrain de 430 m². Ce terrain, avec vue sur jardin, est exposé à l’ouest. Il se situe dans un secteur convoité. Des écoles maternelles et élémentaires y sont implantées et une structure d’accueil pour la petite enfance. Côté transports, il y a la gare Saint-Aunès à moins de 10 minutes en voiture. L’autoroute A709 et la nationale N113 sont accessibles à moins de 10 km. On trouve un tennis, une boulangerie, un commerce et une épicerie à quelques minutes.Ce terrain est à vendre pour la somme de 240 000 €. N’hésitez pas à prendre contact avec notre agence (Jean-Yves BARBAGLIA : (Numéro supprimé)) pour toute question sur ce terrain. Faites de vos projets immobiliers une réalité avec Maisons Balency Castries.
Assas
TERRAIN ET MAISONAssas : maison de 6 pièces (100 m²) en venteEMPLACEMENT PRIVILÉGIÉ – MAISON 6 PIÈCES NEUVEEn vente : localisée à 19 km de la mer Méditerranée et à deux pas de Montpellier, bénéficiant d’un emplacement d’exception dans Assas (34820), nous vous présentons cette maison de 6 pièces de 100 m² avec vue sur jardin.Cette maison compte 2 niveaux. Elle inclut trois chambres, une cuisine et deux salles de bains. Cette maison est neuve.Le terrain de la propriété est de 430 m².La maison est située dans un quartier attractif. On y trouve des écoles maternelles et élémentaires ainsi qu’une structure d’accueil pour les tout-petits. Niveau transports en commun, on trouve la gare Saint-Aunès à moins de 10 minutes en voiture. L’autoroute A709 et la nationale N113 sont accessibles à moins de 10 km. Il y a un tennis, une boulangerie, un commerce et une épicerie à proximité du logement.Elle est proposée à l’achat pour 451 500 €.Prenez contact avec notre agence (Jean-Yves BARBAGLIA : (Numéro supprimé)) pour toute information sur la maison. Maisons Balency Castries vous accompagne dans toutes vos démarches et à toutes les étapes de votre projet.
Assas
TERRAIN ET MAISONMaison de 6 pièces (110 m²) à vendre à AssasEMPLACEMENT PRIVILÉGIÉ – MAISON 6 PIÈCES NEUVEÀ 19 km de la mer Méditerranée et à quelques kilomètres de Montpellier, nous sommes heureux de vous proposer en vente, bénéficiant d’un emplacement privilégié dans Assas (34820), cette maison de 6 pièces de 110 m² et de 430 m² de terrain.Cette maison compte 2 niveaux. Elle comporte trois chambres, une cuisine et une salle de bains. La maison est neuve.Cette propriété est située dans un quartier attractif. Des écoles maternelles et élémentaires y sont implantées et une structure d’accueil pour les tout-petits. Niveau transports en commun, on trouve la gare Saint-Aunès à moins de 10 minutes en voiture. L’autoroute A709 et la nationale N113 sont accessibles à moins de 10 km. Il y a un tennis, une boulangerie, un commerce et une épicerie à proximité.Elle est proposée à l’achat pour 487 000 €.N’hésitez pas à prendre contact avec Jean-Yves BARBAGLIA ((Numéro supprimé)) pour obtenir de plus amples informations sur la maison ou sur les modalités de vente. Maisons Balency Castries vous accompagne à toutes les étapes de l’achat et dans toutes vos démarches.
Valflaunès
TERRAINTerrain de 510 m² à vendre à ValflaunèsQUARTIER RECHERCHÉ – PROCHE DE MONTPELLIERÀ Valflaunès (34270) à 30 km de la côte méditerranéenne et à deux pas de Montpellier, donnez vie à la maison de vos rêves sur ce terrain de 510 m². Il est exposé plein sud. Il se situe dans un quartier convoité. L’École Élémentaire Edmond Teissier est implantée à moins de 10 minutes à pied, tout comme une structure d’accueil pour les tout-petits. L’autoroute A709 et la nationale N113 sont accessibles à moins de 19 km. Il y a un tennis dans les environs.Ce terrain est proposé à l’achat pour 219 900 €. Contactez Jean-Yves BARBAGLIA (tél : (Numéro supprimé)) pour obtenir de plus amples informations sur le terrain. Maisons Balency Castries est là pour vous accompagner dans tous vos projets immobiliers.
Valflaunès
TERRAIN ET MAISONVENTE d’une maison F6 (100 m²) à ValflaunèsQUARTIER RECHERCHÉ – MAISON 6 PIÈCES NEUVEÀ 30 km de la mer Méditerranée et à deux pas de Montpellier, Maisons Balency Castries vous propose à vendre, dans un quartier recherché de Valflaunès (34270), cette maison de 6 pièces de 100 m². Son intérieur dispose de trois chambres, d’une cuisine et de deux salles de bains.Le terrain de cette maison est de 510 m².Il s’agit d’une maison de 2 niveaux. Elle est neuve.La maison est située dans un secteur convoité. Il y a l’École Élémentaire Edmond Teissier à moins de 10 minutes à pied et une structure d’accueil pour les enfants en bas âge. L’autoroute A709 et la nationale N113 sont accessibles à moins de 19 km. On trouve un tennis dans les environs.Elle est proposée à l’achat pour 428 900 €.N’hésitez pas à prendre contact avec notre agence (Jean-Yves BARBAGLIA : (Numéro supprimé)) pour toute information sur la maison ou sur les démarches à suivre.
Valflaunès
TERRAIN ET MAISONValflaunès : maison F6 (110 m²) en venteQUARTIER RECHERCHÉ – MAISON 6 PIÈCES NEUVEEn vente à 30 km de la côte méditerranéenne et à 22 km de Montpellier, venez découvrir cette maison de 6 pièces de 110 m² et de 510 m² de terrain située dans un secteur prisé de Valflaunès (34270).C’est une maison de 2 niveaux. Son intérieur comporte trois chambres, une cuisine et une salle de bains. Cette maison est neuve.Cette maison est située dans un quartier attractif. On trouve l’École Élémentaire Edmond Teissier à moins de 10 minutes à pied et une crèche. L’autoroute A709 et la nationale N113 sont accessibles à moins de 19 km. Il y a un tennis à proximité.Elle est proposée à l’achat pour 439 900 €.Prenez contact avec notre agence (BARBAGLIA Jean-Yves : (Numéro supprimé)) pour plus de renseignements sur la maison, sur les modalités de vente ou sur les démarches à suivre. Maisons Balency Castries est là pour vous accompagner à toutes les étapes de votre projet.
Sainte-Croix-de-Quintillargues
TERRAINSainte-Croix-de-Quintillargues : terrain de 400 m² en venteQUARTIER RECHERCHÉ – VUE SUR MONTAGNEÀ 26 km de la mer Méditerranée et à quelques kilomètres de Montpellier à Sainte-Croix-de-Quintillargues (34270), terrain de 400 m². Il est prêt à accueillir votre résidence principale ou secondaire pour toute la famille. Il donne sur les montagnes et est exposé plein sud. Il se situe dans un secteur recherché. L’École Primaire André Plagniol est implantée à moins de 10 minutes à pied. Les autoroutes A709, A9 et A750 et les nationales N113 et N109 sont accessibles à moins de 20 km. Il y a une bibliothèque et une épicerie dans les environs.Il est proposé à l’achat pour 209 000 €. Contactez Jean-Yves BARBAGLIA ((Numéro supprimé)) pour obtenir de plus amples informations sur ce terrain ou sur les démarches à suivre. Faites de vos projets immobiliers une réalité avec Maisons Balency Castries.
Sainte-Croix-de-Quintillargues
TERRAIN ET MAISONVENTE : maison T5 (83 m²) à Sainte-Croix-de-QuintillarguesQUARTIER RECHERCHÉ – MAISON 5 PIÈCES NEUVEEn vente à 26 km de la mer Méditerranée et à quelques kilomètres de Montpellier, Maisons Balency Castries vous propose cette maison de 5 pièces de 83 m² avec vue sur montagne dans un secteur attractif de Sainte-Croix-de-Quintillargues (34270). Conçue de plain-pied, elle offre trois chambres, une cuisine et une salle de bains.Le terrain de la propriété est de 400 m².Il s’agit d’une maison de plain-pied. Elle est neuve.La maison se trouve dans un quartier recherché. Il y a l’École Primaire André Plagniol à moins de 10 minutes à pied. Les autoroutes A709, A9 et A750 et les nationales N113 et N109 sont accessibles à moins de 20 km. On trouve une bibliothèque et une épicerie dans les environs.Son prix de vente est de 359 900 €.N’hésitez pas à prendre contact avec Jean-Yves BARBAGLIA ((Numéro supprimé)) pour obtenir de plus amples informations sur la maison, sur les modalités de vente ou sur les démarches à suivre. Donnez vie à vos projets immobiliers avec Maisons Balency Castries.
Sainte-Croix-de-Quintillargues
TERRAIN ET MAISONMaison de 4 pièces (90 m²) en vente à Sainte-Croix-de-QuintillarguesQUARTIER RECHERCHÉ – MAISON 4 PIÈCES NEUVEEn vente : localisée à 26 km de la mer Méditerranée et à quelques kilomètres de Montpellier, notre agence Maisons Balency Castries est heureuse de vous proposer cette maison de 4 pièces de 90 m² et de 400 m² de terrain dans un secteur prisé de Sainte-Croix-de-Quintillargues (34270).Cette maison compte 2 niveaux. Son intérieur inclut trois chambres, une cuisine et deux salles de bains. La maison est neuve.Cette maison se trouve dans un quartier recherché. L’École Primaire André Plagniol est implantée à moins de 10 minutes à pied. Les autoroutes A709, A9 et A750 et les nationales N113 et N109 sont accessibles à moins de 20 km. Il y a une bibliothèque et une épicerie à proximité.Son prix de vente est de 382 300 €.Contactez notre constructeur (BARBAGLIA Jean-Yves : (Numéro supprimé)) pour toute question sur la propriété, sur les modalités de vente ou sur les démarches à suivre. Maisons Balency Castries vous accompagne à toutes les étapes de l’achat et dans tous vos projets immobiliers.
L’actualité immobilière à Saint-Jean-de-Cuculles
27/11/2023
02/11/2023
30/10/2023
20/10/2023
16/10/2023
16/10/2023