Maison à construire à Saint-Jean-de-Fos (34150)
Images
Description
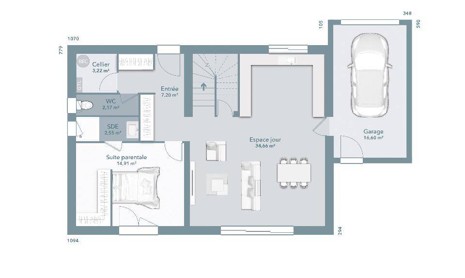
Saint-Jean-de-Fos : maison F6 (112 m²) à vendre
EMPLACEMENT PRIVILÉGIÉ - MAISON 6 PIÈCES NEUVE
En vente : située à 37 km de la côte méditerranéenne et à deux pas de Montpellier, découvrez, bénéficiant d'un emplacement d'exception dans Saint-Jean-de-Fos (34150), cette maison de 6 pièces de 112 m² et de 350 m² de terrain.
Cette maison compte 2 niveaux. Elle est composée de quatre chambres, d'une cuisine et de deux salles de bains. La maison est neuve.
La maison se trouve dans un quartier prisé. Il y a des établissements scolaires maternelles et élémentaires à moins de 10 minutes à pied et, parmi lesquels l'École Élémentaire Privée Saint Genies. Les autoroutes A750 et A75 sont accessibles à moins de 10 km. On trouve un tennis, un commerce et un bureau de poste à quelques minutes à peine.
Son prix de vente est de 350 000 €.
Prenez contact avec Mickaël MARTINEZ (tél : (Numéro supprimé)) pour toute information sur la maison ou sur les modalités de vente. Maisons France Confort Clermont-l'Hérault vous accompagne dans toutes vos démarches et dans tous vos projets immobiliers.
Logement susceptibles de vous intéresser
Nous vous proposons de découvrir aussi cette sélection de logements situés à moins de 10km de Saint-Jean-de-Fos et qui seraient susceptibles de vous intéresser.
  
 
 Saint-Bauzille-de-la-Sylve
TERRAINTerrain de 550 m² à vendre à Saint-Bauzille-de-la-SylveIDÉALEMENT SITUÉ – PROCHE DE MONTPELLIERÀ Saint-Bauzille-de-la-Sylve (34230) à 30 km de la côte méditerranéenne et à 25 km de Montpellier, découvrez ce terrain de 550 m². Il se trouve dans un quartier convoité. Il y a l’École Primaire Costa Belle à moins de 10 minutes à pied. Les autoroutes A750 et A75 sont accessibles à moins de 7 km. On trouve un tennis à quelques minutes.Son prix de vente est de 130 000 €. Contactez Mickaël MARTINEZ ((Numéro supprimé)) pour toute question sur ce terrain, sur les modalités de vente ou sur les démarches à suivre. Concrétisez vos projets immobiliers avec Maisons France Confort Clermont-l’Hérault.
  
 
 Saint-Jean-de-Fos
TERRAINVENTE d’un terrain de 350 m² à Saint-Jean-de-FosEMPLACEMENT PRIVILÉGIÉ – PROCHE DE MONTPELLIERÀ 37 km de la mer Méditerranée et à 28 km de Montpellier à Saint-Jean-de-Fos (34150), terrain de 350 m². Il est prêt à accueillir votre résidence principale ou secondaire pour toute la famille. Il se trouve dans un quartier attractif. Des écoles maternelles et élémentaires sont implantées à moins de 10 minutes à pied, tout comme, comme l’École Élémentaire Privée Saint Genies. Les autoroutes A750 et A75 sont accessibles à moins de 10 km. On trouve un tennis, un commerce et un bureau de poste dans les environs.Son prix de vente est de 136 000 €. N’hésitez pas à prendre contact avec Mickaël MARTINEZ (tél : (Numéro supprimé)) pour tout renseignement sur ce terrain ou sur les démarches à suivre.
  
 
 Aniane
TERRAINVENTE d’un terrain de 345 m² à AnianeEMPLACEMENT PRIVILÉGIÉ – PROCHE DE MONTPELLIERÀ Aniane (34150) à 34 km de la côte méditerranéenne et à quelques kilomètres de Montpellier, venez découvrir ce terrain de 345 m². Il se trouve dans un secteur prisé. On y trouve des écoles primaires. Il y a un accès à l’autoroute A750 à 6 km. Il y a un tennis, une bibliothèque, quatre boulangeries, un commerce, un bureau de poste, une boucherie-charcuterie et quatre épiceries dans les environs. Le marché Place de la Liberté anime le quartier tous les jeudis matin.Il est proposé à l’achat pour 127 000 €. N’hésitez pas à prendre contact avec notre agence (MARTINEZ Mickaël : (Numéro supprimé)) pour toute question sur ce terrain ou sur les modalités de vente. Maisons France Confort Clermont-l’Hérault vous accompagne à toutes les étapes de votre projet et dans tous vos projets immobiliers.
  
 
 La Boissière
TERRAINLa Boissière : terrain de 1 350 m² en venteEMPLACEMENT PRIVILÉGIÉ – PROCHE DE MONTPELLIERÀ 29 km de la côte méditerranéenne et à 19 km de Montpellier à La Boissière (34150), grand terrain. Réalisez-y votre projet immobilier. Il se trouve dans un secteur convoité. Il y a l’École Primaire les Hirondelles du Coulazou à moins de 10 minutes à pied. Il y a un accès à l’autoroute A750 à 6 km. On trouve un tennis et un commerce à quelques minutes à peine.Ce terrain est proposé à l’achat pour 210 000 €. Prenez contact avec notre agence (Mickaël MARTINEZ : (Numéro supprimé)) pour tout renseignement sur ce terrain, sur les modalités de vente et sur les démarches à suivre. Donnez vie à vos projets immobiliers avec Maisons France Confort Clermont-l’Hérault.
  
 
 Montpeyroux
TERRAINVENTE : terrain de 509 m² à MontpeyrouxIDÉALEMENT SITUÉEn vente à 40 km de la mer Méditerranée à Montpeyroux (34150), grand terrain. Il est prêt à accueillir votre projet de construction pour toute la famille. Dans un quartier prisé, ce terrain idéalement situé est proche des écoles et des commerces. Une école primaire est implantée dans le quartier et une crèche. Les autoroutes A750 et A75 sont accessibles à moins de 7 km. Il y a un tennis, une boulangerie, une boucherie-charcuterie et une épicerie à proximité.Il est à vendre pour la somme de 139 000 €. N’hésitez pas à prendre contact avec Mickaël MARTINEZ ((Numéro supprimé)) pour tout renseignement sur ce terrain ou sur les modalités de vente. Faites de vos projets immobiliers une réalité avec Maisons France Confort Clermont-l’Hérault.
  
 
 Saint-Bauzille-de-la-Sylve
TERRAIN ET MAISONVENTE d’une maison de 4 pièces (81 m²) à Saint-Bauzille-de-la-SylveIDÉALEMENT SITUÉE – MAISON 4 PIÈCES NEUVEÀ 30 km de la mer Méditerranée et à quelques kilomètres de Montpellier, nous sommes heureux de vous présenter en vente, idéalement située dans Saint-Bauzille-de-la-Sylve (34230), cette maison de 4 pièces de plain-pied de 81 m².Conçue de plain-pied, elle propose trois chambres, une cuisine et une salle de bains. La maison est neuve.Le terrain du bien s’étend sur 550 m².Cette maison est située dans un secteur prisé. On trouve l’École Primaire Costa Belle à moins de 10 minutes à pied. Les autoroutes A750 et A75 sont accessibles à moins de 7 km. Il y a un tennis à proximité de la maison.Son prix de vente est de 260 000 €.Prenez contact avec notre agence (MARTINEZ Mickaël : (Numéro supprimé)) pour toute question sur le bien ou sur les démarches à suivre. Maisons France Confort Clermont-l’Hérault vous accompagne à toutes les étapes de l’achat et dans tous vos projets immobiliers.
  
 
 Saint-Bauzille-de-la-Sylve
TERRAIN ET MAISONMaison de 5 pièces (101 m²) à vendre à Saint-Bauzille-de-la-SylveIDÉALEMENT SITUÉE – MAISON 5 PIÈCES NEUVEÀ 30 km de la mer Méditerranée et à deux pas de Montpellier, Maisons France Confort Clermont-l’Hérault vous présente à vendre, idéalement située dans Saint-Bauzille-de-la-Sylve (34230), cette maison de 5 pièces de plain-pied de 101 m² et de 550 m² de terrain.Elle inclut quatre chambres, une cuisine et une salle de bains. Cette maison est neuve.La maison est située dans un secteur convoité. Il y a l’École Primaire Costa Belle à moins de 10 minutes à pied. Les autoroutes A750 et A75 sont accessibles à moins de 7 km. On trouve un tennis dans les environs.Elle est à vendre pour la somme de 290 000 €.Contactez notre agence (Mickaël MARTINEZ : (Numéro supprimé)) pour plus d’informations sur la maison.
  
 
 Saint-Bauzille-de-la-Sylve
TERRAIN ET MAISONVENTE d’une maison F4 (78 m²) à Saint-Bauzille-de-la-SylveIDÉALEMENT SITUÉE – MAISON 4 PIÈCES NEUVEEn vente : située à 30 km de la côte méditerranéenne et à deux pas de Montpellier, nous sommes heureux de vous présenter cette maison de 4 pièces de 78 m² idéalement située dans Saint-Bauzille-de-la-Sylve (34230).Cette maison possède 2 niveaux. Elle compte trois chambres, une cuisine et une salle de bains. La maison est neuve.Le terrain du bien est de 550 m².Cette propriété est située dans un quartier convoité. On trouve l’École Primaire Costa Belle à moins de 10 minutes à pied. Les autoroutes A750 et A75 sont accessibles à moins de 7 km. Il y a un tennis dans les environs.Elle est proposée à l’achat pour 270 000 €.N’hésitez pas à prendre contact avec Mickaël MARTINEZ (tél : (Numéro supprimé)) pour obtenir de plus amples informations sur la maison ou sur les modalités de vente.
  
 
 Saint-Bauzille-de-la-Sylve
TERRAIN ET MAISONMaison de 5 pièces (98 m²) à vendre à Saint-Bauzille-de-la-SylveIDÉALEMENT SITUÉE – MAISON 5 PIÈCES NEUVEEn vente à 30 km de la côte méditerranéenne et à deux pas de Montpellier, nous sommes ravis de vous proposer cette maison de 5 pièces de 98 m² idéalement située dans Saint-Bauzille-de-la-Sylve (34230). Son intérieur propose quatre chambres, une cuisine et une salle de bains.Le terrain de cette maison s’étend sur 550 m².Cette maison possède 2 niveaux. Elle est neuve.La maison est située dans un quartier convoité. Il y a l’École Primaire Costa Belle à moins de 10 minutes à pied. Les autoroutes A750 et A75 sont accessibles à moins de 7 km. On trouve un tennis à quelques minutes à peine.Elle est à vendre pour la somme de 300 000 €.Prenez contact avec notre agence (MARTINEZ Mickaël : (Numéro supprimé)) pour toute question sur la propriété, sur les modalités de vente ou sur les démarches à suivre. Maisons France Confort Clermont-l’Hérault est là pour vous accompagner à toutes les étapes de l’achat.
L’actualité immobilière à Saint-Jean-de-Fos
 
 27/11/2023
 
 
 
 02/11/2023
 
 
 
 30/10/2023
 
 
 
 20/10/2023
 
 
 
 16/10/2023
 
 
 
 16/10/2023