Maison à construire à Saint-Pargoire (34230)
Images
Description
PROJET DE CONSTRUCTION - Maison T3 (70 m²) à Saint-Pargoire
IDÉALEMENT SITUÉE - MAISON 3 PIÈCES
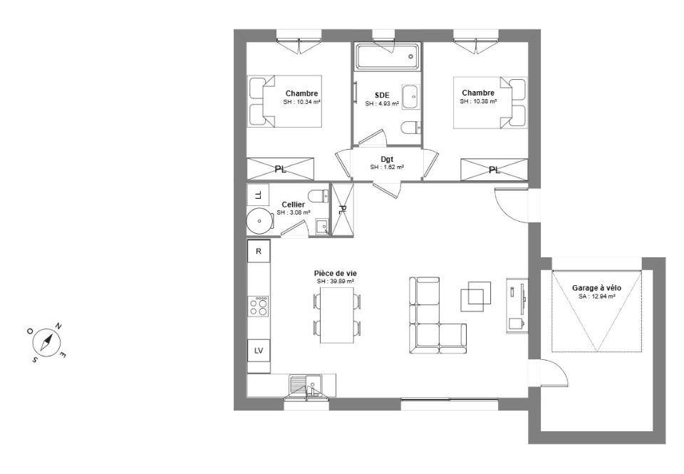
À 23 km de la côte méditerranéenne et à 28 km de Montpellier, nous vous présentons cette maison de 3 pièces de plain-pied de 70 m² et de 300 m² de terrain en vente, idéalement située dans Saint-Pargoire (34230). Son intérieur offre deux chambres, une cuisine, un cellier et une salle de bains + GARAGE.
(Carrelage inclus dans toutes les pièces / Raccordements inclus).
Le bien se trouve dans un secteur attractif. Il y a l'École Maternelle Jean Jaurès, l'École Élémentaire Jules Ferry et l'École Primaire Privée Sainte Jeanne d'Arc à moins de 10 minutes à pied. Il y a un accès à l'autoroute A75 à 6 km. On trouve un tennis, deux boulangeries, un commerce, un bureau de poste, une boucherie-charcuterie et une épicerie à quelques minutes du bien.
Il est proposé à l'achat pour 221 000 €.
Pour plus d'information contacter (Anthony BALLESTER : (Numéro supprimé)) Maisons de Manon Béziers pour échanger sur votre projet et réaliser une étude gratuite. (Plan personnalisable).  Tous nos ouvrages sont réalisés sur-mesure en fonction de vos attentes et de nos échanges avec vous ainsi que dans le respect de la règlementation RE 2020. Ce projet comporte les garanties suivantes: Contrat de construction CCMI. Dommage/Ouvrage. RC Garantie décennale. Parfaite achèvement. Etude de sol G2. Prix et délais convenu. Garantie de livraison. Garantie financière Pour votre tranquillité nous nous occupons de toutes les formalités administratives.
Logement susceptibles de vous intéresser
Nous vous proposons de découvrir aussi cette sélection de logements situés à moins de 10km de Saint-Pargoire et qui seraient susceptibles de vous intéresser.
  
 
 Saint-Bauzille-de-la-Sylve
TERRAINTerrain de 550 m² à vendre à Saint-Bauzille-de-la-SylveIDÉALEMENT SITUÉ – PROCHE DE MONTPELLIERÀ Saint-Bauzille-de-la-Sylve (34230) à 30 km de la côte méditerranéenne et à 25 km de Montpellier, découvrez ce terrain de 550 m². Il se trouve dans un quartier convoité. Il y a l’École Primaire Costa Belle à moins de 10 minutes à pied. Les autoroutes A750 et A75 sont accessibles à moins de 7 km. On trouve un tennis à quelques minutes.Son prix de vente est de 130 000 €. Contactez Mickaël MARTINEZ ((Numéro supprimé)) pour toute question sur ce terrain, sur les modalités de vente ou sur les démarches à suivre. Concrétisez vos projets immobiliers avec Maisons France Confort Clermont-l’Hérault.
  
 
 Saint-Bauzille-de-la-Sylve
TERRAIN ET MAISONVENTE d’une maison de 4 pièces (81 m²) à Saint-Bauzille-de-la-SylveIDÉALEMENT SITUÉE – MAISON 4 PIÈCES NEUVEÀ 30 km de la mer Méditerranée et à quelques kilomètres de Montpellier, nous sommes heureux de vous présenter en vente, idéalement située dans Saint-Bauzille-de-la-Sylve (34230), cette maison de 4 pièces de plain-pied de 81 m².Conçue de plain-pied, elle propose trois chambres, une cuisine et une salle de bains. La maison est neuve.Le terrain du bien s’étend sur 550 m².Cette maison est située dans un secteur prisé. On trouve l’École Primaire Costa Belle à moins de 10 minutes à pied. Les autoroutes A750 et A75 sont accessibles à moins de 7 km. Il y a un tennis à proximité de la maison.Son prix de vente est de 260 000 €.Prenez contact avec notre agence (MARTINEZ Mickaël : (Numéro supprimé)) pour toute question sur le bien ou sur les démarches à suivre. Maisons France Confort Clermont-l’Hérault vous accompagne à toutes les étapes de l’achat et dans tous vos projets immobiliers.
  
 
 Saint-Bauzille-de-la-Sylve
TERRAIN ET MAISONMaison de 5 pièces (101 m²) à vendre à Saint-Bauzille-de-la-SylveIDÉALEMENT SITUÉE – MAISON 5 PIÈCES NEUVEÀ 30 km de la mer Méditerranée et à deux pas de Montpellier, Maisons France Confort Clermont-l’Hérault vous présente à vendre, idéalement située dans Saint-Bauzille-de-la-Sylve (34230), cette maison de 5 pièces de plain-pied de 101 m² et de 550 m² de terrain.Elle inclut quatre chambres, une cuisine et une salle de bains. Cette maison est neuve.La maison est située dans un secteur convoité. Il y a l’École Primaire Costa Belle à moins de 10 minutes à pied. Les autoroutes A750 et A75 sont accessibles à moins de 7 km. On trouve un tennis dans les environs.Elle est à vendre pour la somme de 290 000 €.Contactez notre agence (Mickaël MARTINEZ : (Numéro supprimé)) pour plus d’informations sur la maison.
  
 
 Saint-Bauzille-de-la-Sylve
TERRAIN ET MAISONVENTE d’une maison F4 (78 m²) à Saint-Bauzille-de-la-SylveIDÉALEMENT SITUÉE – MAISON 4 PIÈCES NEUVEEn vente : située à 30 km de la côte méditerranéenne et à deux pas de Montpellier, nous sommes heureux de vous présenter cette maison de 4 pièces de 78 m² idéalement située dans Saint-Bauzille-de-la-Sylve (34230).Cette maison possède 2 niveaux. Elle compte trois chambres, une cuisine et une salle de bains. La maison est neuve.Le terrain du bien est de 550 m².Cette propriété est située dans un quartier convoité. On trouve l’École Primaire Costa Belle à moins de 10 minutes à pied. Les autoroutes A750 et A75 sont accessibles à moins de 7 km. Il y a un tennis dans les environs.Elle est proposée à l’achat pour 270 000 €.N’hésitez pas à prendre contact avec Mickaël MARTINEZ (tél : (Numéro supprimé)) pour obtenir de plus amples informations sur la maison ou sur les modalités de vente.
  
 
 Saint-Bauzille-de-la-Sylve
TERRAIN ET MAISONMaison de 5 pièces (98 m²) à vendre à Saint-Bauzille-de-la-SylveIDÉALEMENT SITUÉE – MAISON 5 PIÈCES NEUVEEn vente à 30 km de la côte méditerranéenne et à deux pas de Montpellier, nous sommes ravis de vous proposer cette maison de 5 pièces de 98 m² idéalement située dans Saint-Bauzille-de-la-Sylve (34230). Son intérieur propose quatre chambres, une cuisine et une salle de bains.Le terrain de cette maison s’étend sur 550 m².Cette maison possède 2 niveaux. Elle est neuve.La maison est située dans un quartier convoité. Il y a l’École Primaire Costa Belle à moins de 10 minutes à pied. Les autoroutes A750 et A75 sont accessibles à moins de 7 km. On trouve un tennis à quelques minutes à peine.Elle est à vendre pour la somme de 300 000 €.Prenez contact avec notre agence (MARTINEZ Mickaël : (Numéro supprimé)) pour toute question sur la propriété, sur les modalités de vente ou sur les démarches à suivre. Maisons France Confort Clermont-l’Hérault est là pour vous accompagner à toutes les étapes de l’achat.
  
 
 Saint-Bauzille-de-la-Sylve
TERRAIN ET MAISONVENTE d’une maison T6 (110 m²) à Saint-Bauzille-de-la-SylveIDÉALEMENT SITUÉE – MAISON 6 PIÈCES NEUVEÀ vendre : située à 30 km de la mer Méditerranée et à 25 km de Montpellier, Maisons France Confort Clermont-l’Hérault vous présente cette maison de 6 pièces de 110 m² idéalement située dans Saint-Bauzille-de-la-Sylve (34230). Elle inclut quatre chambres, une cuisine et deux salles de bains.Le terrain de la maison est de 550 m².Cette maison comporte 2 niveaux. Elle est neuve.Cette maison est située dans un quartier prisé. Il y a l’École Primaire Costa Belle à moins de 10 minutes à pied. Les autoroutes A750 et A75 sont accessibles à moins de 7 km. On trouve un tennis dans les environs.Son prix de vente est de 415 000 €.Prenez contact avec notre agence (MARTINEZ Mickaël : (Numéro supprimé)) pour toute question sur la maison, sur les modalités de vente ou sur les démarches à suivre. Maisons France Confort Clermont-l’Hérault est là pour vous accompagner dans tous vos projets immobiliers.
  
 
 Saint-Bauzille-de-la-Sylve
TERRAIN ET MAISONVENTE d’une maison de 6 pièces (140 m²) à Saint-Bauzille-de-la-SylveIDÉALEMENT SITUÉE – MAISON 6 PIÈCES NEUVEEn vente : à 30 km de la mer Méditerranée et à 25 km de Montpellier, nous vous proposons cette maison de 6 pièces de 140 m² idéalement située dans Saint-Bauzille-de-la-Sylve (34230). Son intérieur compte quatre chambres, une cuisine et deux salles de bains.Le terrain de la maison est de 550 m².Il s’agit d’une maison de 2 niveaux. Elle est neuve.La maison se situe dans un quartier recherché. Il y a l’École Primaire Costa Belle à moins de 10 minutes à pied. Les autoroutes A750 et A75 sont accessibles à moins de 7 km. On trouve un tennis à proximité de la maison.Son prix de vente est de 445 000 €.Prenez contact avec Mickaël MARTINEZ ((Numéro supprimé)) pour obtenir de plus amples informations sur la propriété ou sur les démarches à suivre. Maisons France Confort Clermont-l’Hérault est là pour vous accompagner dans tous vos projets immobiliers.
  
 
 Saint-Bauzille-de-la-Sylve
TERRAIN ET MAISONVENTE d’une maison T6 (115 m²) à Saint-Bauzille-de-la-SylveIDÉALEMENT SITUÉE – MAISON 6 PIÈCES NEUVEEn vente : située à 30 km de la côte méditerranéenne et à quelques kilomètres de Montpellier, idéalement située dans Saint-Bauzille-de-la-Sylve (34230), nous vous présentons cette maison de 6 pièces de plain-pied de 115 m². Conçue de plain-pied, elle offre quatre chambres, une cuisine et deux salles de bains.Le terrain de la propriété s’étend sur 550 m².La maison est neuve.La maison se trouve dans un secteur attractif. L’École Primaire Costa Belle est implantée à moins de 10 minutes à pied. Les autoroutes A750 et A75 sont accessibles à moins de 7 km. On trouve un tennis à quelques minutes à peine.Elle est à vendre pour la somme de 500 000 €.Contactez Mickaël MARTINEZ ((Numéro supprimé)) pour plus de renseignements sur la maison et sur les démarches à suivre. Concrétisez vos projets immobiliers avec Maisons France Confort Clermont-l’Hérault.
  
 
 Saint-Pargoire
TERRAINVENTE : terrain de 288 m² à Saint-PargoirePROCHE DE MONTPELLIERTerrain de 288 m² en vente à 23 km de la mer Méditerranée et à deux pas de Montpellier. Ce terrain se situe dans Saint-Pargoire (34230). Il y a l’École Maternelle Jean Jaurès, l’École Élémentaire Jules Ferry et l’École Primaire Privée Sainte Jeanne d’Arc à moins de 10 minutes à pied. L’autoroute A75 est accessible à 6 km. On trouve un tennis, deux boulangeries, un commerce, une boucherie-charcuterie, un bureau de poste et une épicerie à quelques minutes.Il est à vendre pour la somme de 92 515 €. Contactez notre agence (MARTINEZ Mickaël : (Numéro supprimé)) pour plus d’informations sur ce terrain, sur les modalités de vente ou sur les démarches à suivre.
L’actualité immobilière à Saint-Pargoire
 
 27/11/2023
 
 
 
 02/11/2023
 
 
 
 30/10/2023
 
 
 
 20/10/2023
 
 
 
 16/10/2023
 
 
 
 16/10/2023