Maison à construire à Vendres (34350)
Images
Description
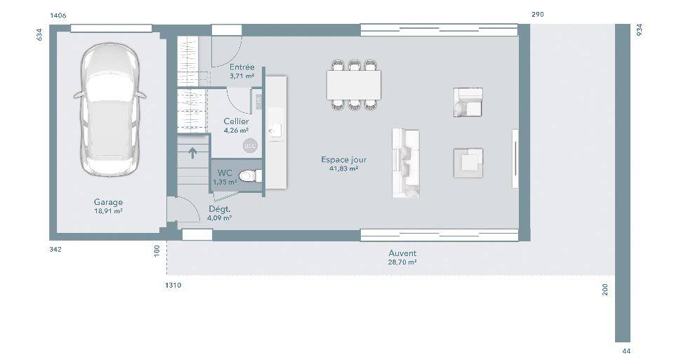
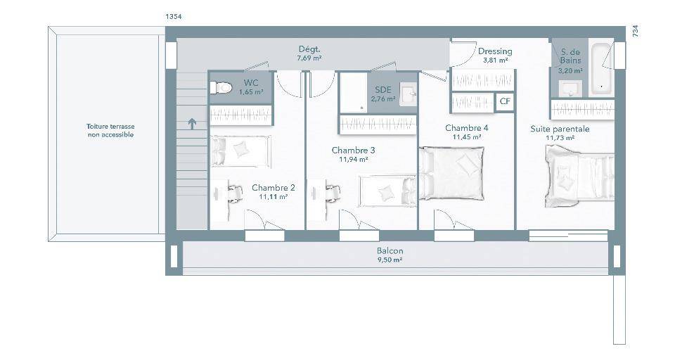
Maison de 6 pièces (120 m²) à vendre à Vendres
EMPLACEMENT PRIVILÉGIÉ - MAISON 6 PIÈCES NEUVE
À 6 km de la côte méditerranéenne et à 10 km de Béziers, en vente bénéficiant d'un emplacement privilégié dans Vendres (34350), nous sommes ravis de vous proposer cette maison de 6 pièces de 120 m². Elle propose quatre chambres, une cuisine et deux salles de bains.
Le terrain de la propriété s'étend sur 732 m².
Cette maison possède 2 niveaux. Elle est neuve.
Cette maison est située dans un quartier recherché. Le Collège Françoise Giroud, l'École Primaire Lucie Aubrac et l'École Maternelle Lucie Aubrac se trouvent à moins de 10 minutes à pied. Niveau transports, il y a la gare Béziers à moins de 10 minutes en voiture. Les autoroutes A9 et A75 sont accessibles à moins de 9 km. On trouve un tennis, trois boulangeries, deux commerces, un bureau de poste, quatre épiceries et une poissonnerie dans les environs.
Elle est à vendre pour la somme de 550 000 €.
Contactez notre agence (RENARD Léo : (Numéro supprimé)) pour tout renseignement sur la maison ou sur les démarches à suivre.
Logement susceptibles de vous intéresser
Nous vous proposons de découvrir aussi cette sélection de logements situés à moins de 10km de Vendres et qui seraient susceptibles de vous intéresser.
Fleury
TERRAIN ET MAISONFleury d’Aude.Nous construisons votre villa RE 2020 sur cette parcelle de 495m² idéalement située dans le village.Fleury est une charmante commune tous commerces, entre Narbonne, Béziers, les plages et la Clape, proposant un cadre de vie à la fois pratique et proche de la nature.Contactez-nous au (Numéro supprimé) pour discuter de votre projet de construction.
Vendres
TERRAINDans un village dynamique à 15 minutes au sud de Béziers, proche des plages et facile d’accès (5 mn de l’autoroute A9). Nombreuses associations sportives et culturelles, médiathèque, crèche, école et collège.Dans un cadre préservé, aux paysages naturels variés : vignes au nord, étang et plages au sud, avec son port typique du Chichoulet et son église du XIVème siècle.Oc résidences Constructeur de Maison Individuelle vous propose avec son partenaire foncier, ce lotissement « LES HAUTS DE VENDRES » ce sont des parcelles de 300 à 893 m².Lotissement à l’esthétique soignée, organisé autour de placettes végétalisées, et bordé de parcs paysagers plantés d’essences méditerranéennes.Prenez contact au plus vite avec l’équipe OC RESIDENCES BEZIERS AU (Numéro supprimé) pour la réalisation de votre projet de construction
Vendres
TERRAIN ET MAISONPROJET DE CONSTRUCTION – Maison de 3 pièces (62 m²) à VendresIDÉALEMENT SITUÉE – MAISON 3 PIÈCESÀ 6 km de la mer Méditerranée et à quelques kilomètres de Béziers, Maisons France Confort Béziers vous propose cette maison de 3 pièces de plain-pied de 62 m² idéalement située dans Vendres (34350). Conçue de plain-pied, elle propose deux chambres, une cuisine, un cellier et une salle de bains + GARAGE.Le terrain de cette maison s’étend sur 352 m².(Carrelage inclus dans toutes les pièces / Raccordements inclus).La maison se trouve dans un quartier prisé. Le Collège Françoise Giroud, l’École Primaire Lucie Aubrac et l’École Maternelle Lucie Aubrac sont implantés à moins de 10 minutes à pied. Côté transports, on trouve la gare Béziers à moins de 10 minutes en voiture. Les autoroutes A9 et A75 sont accessibles à moins de 9 km. Il y a un tennis, trois boulangeries, deux commerces, un bureau de poste, une poissonnerie et quatre épiceries à proximité.Elle est proposée à l’achat pour 249 000 €.Pour plus d’information contacter (Anthony BALLESTER : (Numéro supprimé)) Maisons France Confort Béziers pour échanger sur votre projet et réaliser une étude gratuite. (Plan personnalisable). Tous nos ouvrages sont réalisés sur-mesure en fonction de vos attentes et de nos échanges avec vous ainsi que dans le respect de la règlementation RE 2020. Ce projet comporte les garanties suivantes: Contrat de construction CCMI. Dommage/Ouvrage. RC Garantie décennale. Parfaite achèvement. Etude de sol G2. Prix et délais convenu. Garantie de livraison. Garantie financière Pour votre tranquillité nous nous occupons de toutes les formalités administratives.
Vendres
TERRAIN ET MAISONVENTE : maison F5 (100 m²) à VendresEMPLACEMENT PRIVILÉGIÉ – MAISON 5 PIÈCES NEUVEÀ 6 km de la côte méditerranéenne et à quelques kilomètres de Béziers, nous vous proposons cette maison de 5 pièces de 100 m² et de 732 m² de terrain bénéficiant d’un emplacement d’exception dans Vendres (34350).C’est une maison de 2 niveaux. Son intérieur offre trois chambres, une cuisine et deux salles de bains. La maison est neuve.Cette maison se trouve dans un quartier prisé. Le Collège Françoise Giroud, l’École Primaire Lucie Aubrac et l’École Maternelle Lucie Aubrac sont implantés à moins de 10 minutes à pied. Côté transports en commun, on trouve la gare Béziers à moins de 10 minutes en voiture. Les autoroutes A9 et A75 sont accessibles à moins de 9 km. Il y a un tennis, trois boulangeries, deux commerces, un bureau de poste, une poissonnerie et quatre épiceries dans les environs.Elle est à vendre pour la somme de 408 000 €.Contactez notre agence (Léo RENARD : (Numéro supprimé)) pour toute question sur la maison, sur les démarches à suivre ou sur les modalités de vente.
Vendres
TERRAIN ET MAISONMaison de 5 pièces (98 m²) à vendre à VendresEMPLACEMENT PRIVILÉGIÉ – MAISON 5 PIÈCES NEUVEÀ vendre à 6 km de la côte méditerranéenne et à deux pas de Béziers, notre agence Maisons France Confort Béziers est heureuse de vous présenter, bénéficiant d’un emplacement privilégié dans Vendres (34350), cette maison de 5 pièces de 98 m² et de 371 m² de terrain. Son intérieur propose quatre chambres, une cuisine et une salle de bains.Cette maison comporte 2 niveaux. Elle est neuve.Cette maison se situe dans un quartier attractif. Le Collège Françoise Giroud, l’École Primaire Lucie Aubrac et l’École Maternelle Lucie Aubrac sont implantés à moins de 10 minutes à pied. Niveau transports en commun, on trouve la gare Béziers à moins de 10 minutes en voiture. Les autoroutes A9 et A75 sont accessibles à moins de 9 km. Il y a un tennis, trois boulangeries, deux commerces, un bureau de poste, quatre épiceries et une poissonnerie à quelques minutes à peine.Son prix de vente est de 325 000 €.Contactez Léo RENARD ((Numéro supprimé)) pour plus d’informations sur la maison ou sur les modalités de vente.
Vendres
TERRAIN ET MAISONVENTE d’une maison de 5 pièces (90 m²) à VendresEMPLACEMENT PRIVILÉGIÉ – MAISON 5 PIÈCES NEUVEÀ vendre : située sur le littoral méditerranéen et à 10 km de Béziers, venez découvrir, bénéficiant d’un emplacement d’exception dans Vendres (34350), cette maison de 5 pièces de 90 m² et de 732 m² de terrain.Il s’agit d’une maison de 2 niveaux. Son intérieur propose trois chambres, une cuisine et une salle de bains. Cette maison est neuve.La maison est située dans un secteur recherché. Il y a le Collège Françoise Giroud, l’École Primaire Lucie Aubrac et l’École Maternelle Lucie Aubrac à moins de 10 minutes à pied. Niveau transports en commun, on trouve la gare Béziers à moins de 10 minutes en voiture. Les autoroutes A9 et A75 sont accessibles à moins de 9 km. Il y a un tennis, trois boulangeries, deux commerces, quatre épiceries, une poissonnerie et un bureau de poste à proximité.Elle est proposée à l’achat pour 415 000 €.Prenez contact avec notre agence (RENARD Léo : (Numéro supprimé)) pour toute information sur la maison ou sur les démarches à suivre. Maisons France Confort Béziers est là pour vous accompagner dans tous vos projets immobiliers.
Vendres
TERRAIN ET MAISONVENTE d’une maison F6 (110 m²) à VendresEMPLACEMENT PRIVILÉGIÉ – MAISON 6 PIÈCES NEUVESur le littoral méditerranéen et à quelques kilomètres de Béziers, en vente bénéficiant d’un emplacement d’exception dans Vendres (34350), Maisons France Confort Béziers vous présente cette maison de 6 pièces de 110 m². Elle se divise en quatre chambres, une cuisine et deux salles de bains.Le terrain de cette maison s’étend sur 500 m².Cette maison possède 2 niveaux. Elle est neuve.La maison se trouve dans un quartier prisé. Le Collège Françoise Giroud, l’École Primaire Lucie Aubrac et l’École Maternelle Lucie Aubrac sont implantés à moins de 10 minutes à pied. Niveau transports, on trouve la gare Béziers à moins de 10 minutes en voiture. Les autoroutes A9 et A75 sont accessibles à moins de 9 km. Il y a un tennis, trois boulangeries, deux commerces, quatre épiceries, une poissonnerie et un bureau de poste à proximité du logement.Son prix de vente est de 420 000 €.N’hésitez pas à prendre contact avec notre agence (Léo RENARD : (Numéro supprimé)) pour tout renseignement sur la maison ou sur les modalités de vente.
Vendres
TERRAIN ET MAISONVendres : maison F6 (110 m²) à vendreEMPLACEMENT PRIVILÉGIÉ – MAISON 6 PIÈCES NEUVEÀ 6 km de la côte méditerranéenne et à deux pas de Béziers, nous vous présentons cette maison de 6 pièces de 110 m² bénéficiant d’un emplacement privilégié dans Vendres (34350).Cette maison possède 2 niveaux. Elle se divise en quatre chambres, une cuisine et deux salles de bains. La maison est neuve.Le terrain du bien s’étend sur 732 m².Cette maison se trouve dans un quartier recherché. Le Collège Françoise Giroud, l’École Primaire Lucie Aubrac et l’École Maternelle Lucie Aubrac sont implantés à moins de 10 minutes à pied. Niveau transports en commun, on trouve la gare Béziers à moins de 10 minutes en voiture. Les autoroutes A9 et A75 sont accessibles à moins de 9 km. Il y a un tennis, trois boulangeries, deux commerces, une poissonnerie, quatre épiceries et un bureau de poste à quelques minutes du logement.Son prix de vente est de 485 000 €.Contactez notre agence (Léo RENARD : (Numéro supprimé)) pour plus d’informations sur le bien et sur les modalités de vente. Concrétisez vos projets immobiliers avec Maisons France Confort Béziers.
Vendres
TERRAINDans un village dynamique à 15 minutes au sud de Béziers, proche des plages et facile d’accès (5 mn de l’autoroute A9). Nombreuses associations sportives et culturelles, médiathèque, crèche, école et collège.Dans un cadre préservé, aux paysages naturels variés : vignes au nord, étang et plages au sud, avec son port typique du Chichoulet et son église du XIVème siècle.Oc résidences Constructeur de Maison Individuelle vous propose avec son partenaire foncier, ce lotissement « LES HAUTS DE VENDRES » ce sont des parcelles de 300 à 927 m².Lotissement à l’esthétique soignée, organisé autour de placettes végétalisées, et bordé de parcs paysagers plantés d’essences méditerranéennes.Prenez contact au plus vite avec l’équipe OC RESIDENCES BEZIERS AU (Numéro supprimé) pour la réalisation de votre projet de construction
L’actualité immobilière à Vendres
27/11/2023
02/11/2023
30/10/2023
20/10/2023
16/10/2023
16/10/2023