Maison à construire à Villeneuve-lès-Maguelone (34750)
Images
Description
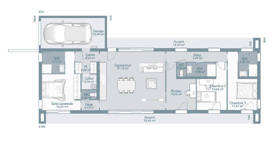
Maison CALIFORNIA de 115 m² proposée ici sur 665 m² de terrain à Villeneuve les Maguelones, à seulement 6km de la côte Méditerranée, au Sud Ouest de Montpellier.
Ce modèle ultra moderne vous offre le confort de 4 chambres dont la suite parentale avec sa salle d'eau + grand dressing, une deuxième chambre avec salle d'eau privative, et un grand bureau (pouvant servir de quatrième chambre). Grand et lumineux salon/séjour ouvert, une salle de bain équipée, 3 wc, le cellier et le garage accolé.
GARANTIES CCMI + ETUDE DE SOL COMPRISES.
Pour plus d'informations, merci de contacter notre agence Maisons France Confort Montpellier au (Numéro supprimé).
On y trouve des écoles du primaire et du secondaire, tout comme une structure d'accueil pour les tout-petits à moins de 10 minutes. L'autoroute A709 et la nationale N109 sont accessibles à moins de 10 km. On trouve un tennis, trois commerces, trois boulangeries, une poissonnerie et un bureau de poste à quelques minutes.
Annonce proposée par un Agent Commercial Partenaire.
Logement susceptibles de vous intéresser
Nous vous proposons de découvrir aussi cette sélection de logements situés à moins de 10km de Villeneuve-lès-Maguelone et qui seraient susceptibles de vous intéresser.
Montpellier
TERRAINSitué à Montpellier quartier entre le plan des 4 seigneurs et chateau d’o, à proximité immédiate des commodités et des transports, ce terrain de 690 m² est une opportunité idéale pour concrétiser votre projet immobilier dans un cadre pratique et agréable.Le terrain est viabilisé. Il n’est pas libre de constructeur, vous bénéficierez ainsi d’un accompagnement professionnel pour la réalisation de votre future maison.Idéal pour un projet familial ou un investissement, ce terrain allie emplacement stratégique et praticité.Cette annonce référence 309017 vous est présentée par votre agent commercial BSK Immobilier MAXIME CHANU (EIRL) immatriculé au RSAC de MONTPELLIER (34000) sous le numéro 88832502400014.Prix du bien : 349 000,00 €Les honoraires d’agence sont à la charge du vendeur.Les informations sur les risques auxquels ce bien est exposé sont disponibles sur le site Géorisques : www.georisques.gouv.fr
Montpellier
TERRAINVENTE d’un terrain de 1 188 m² à JuvignacEMPLACEMENT PRIVILÉGIÉ – PROCHE DE MONTPELLIERGrand terrain à 15 km de la côte méditerranéenne et à deux pas de Montpellier. De 1 188 m², ce terrain se situe bénéficiant d’un emplacement privilégié dans Juvignac (34990). Il est orienté au sud-est. Dans un secteur recherché, ce terrain est proche des commerces et des écoles. L’École Élémentaire les Garrigues-Simone Veil, l’École Maternelle les Garrigues et le Collège Arthur Rimbaud sont implantés à moins de 10 minutes à pied. Côté transports, il y a trois gares (Montpellier Saint-Roch, Villeneuve-lès-Maguelone et Montpellier Sud de France) à moins de 10 minutes en voiture. Il y a un accès à la nationale N109 à 1 km. On trouve un tennis, des commerces, quatre boulangeries, un supermarché, un bureau de poste et une supérette à quelques minutes.Son prix de vente est de 210 000 €. Contactez notre agence (LAURENT Thierry : (Numéro supprimé)) pour obtenir de plus amples renseignements sur le terrain. Maisons de Manon Gignac est là pour vous accompagner dans toutes vos démarches.TERRAIN NON VIABILISE , EN ATTENTE DE DEVIS
Montpellier
TERRAIN ET MAISONMaison de 4 pièces (105 m²) en vente à JuvignacEMPLACEMENT PRIVILÉGIÉ – MAISON 4 PIÈCES NEUVEEn vente : à 15 km de la côte méditerranéenne et à quelques kilomètres de Montpellier, nous sommes heureux de vous proposer cette maison de 4 pièces de 105 m² et de 1 188 m² de terrain bénéficiant d’un emplacement d’exception dans Juvignac (34990). Elle est composée de trois chambres, d’une cuisine et de trois salles de bains.Il s’agit d’une maison de 2 niveaux. Elle est neuve.La maison se situe dans un secteur recherché. L’École Élémentaire les Garrigues-Simone Veil, l’École Maternelle les Garrigues et le Collège Arthur Rimbaud sont implantés à moins de 10 minutes à pied. Côté transports, on trouve trois gares (Montpellier Saint-Roch, Villeneuve-lès-Maguelone et Montpellier Sud de France) à moins de 10 minutes en voiture. La nationale N109 est accessible à 1 km. Il y a un tennis, des commerces, quatre boulangeries, un supermarché, deux boucheries-charcuteries et un bureau de poste dans les environs.Elle est à vendre pour la somme de 409 200 €.N’hésitez pas à prendre contact avec notre agence (LAURENT Thierry : (Numéro supprimé)) pour toute question sur la maison.
Montpellier
TERRAIN ET MAISONVENTE d’une maison F4 (120 m²) à JuvignacEMPLACEMENT PRIVILÉGIÉ – MAISON 4 PIÈCES NEUVEÀ vendre : à 15 km de la mer Méditerranée et à 7 km de Montpellier, votre agence Maisons de Manon Gignac est heureuse de vous présenter, bénéficiant d’un emplacement privilégié dans Juvignac (34990), cette maison de 4 pièces de 120 m² et de 1 188 m² de terrain. Son intérieur offre trois chambres, une cuisine et trois salles de bains.Il s’agit d’une maison de 2 niveaux. Elle est neuve.La maison se situe dans un secteur attractif. On trouve l’École Élémentaire les Garrigues-Simone Veil, l’École Maternelle les Garrigues et le Collège Arthur Rimbaud à moins de 10 minutes à pied. Côté transports en commun, il y a trois gares (Montpellier Saint-Roch, Villeneuve-lès-Maguelone et Montpellier Sud de France) à moins de 10 minutes en voiture. La nationale N109 est accessible à 1 km. On trouve un tennis, des commerces, quatre boulangeries, un supermarché, un bureau de poste et une épicerie dans les environs.Elle est à vendre pour la somme de 406 640 €.Contactez Thierry LAURENT ((Numéro supprimé)) pour toute question sur la maison, sur les démarches à suivre ou sur les modalités de vente.
Montpellier
TERRAIN ET MAISONJuvignac : maison de 5 pièces (96 m²) en venteEMPLACEMENT PRIVILÉGIÉ – MAISON 5 PIÈCES NEUVEÀ vendre : localisée à 15 km de la mer Méditerranée et à quelques kilomètres de Montpellier, bénéficiant d’un emplacement d’exception dans Juvignac (34990), nous vous proposons cette maison de 5 pièces de 96 m² et de 1 188 m² de terrain.Il s’agit d’une maison de 2 niveaux. Son intérieur propose quatre chambres, une cuisine et une salle de bains. Cette maison est neuve.La maison se situe dans un secteur recherché. On trouve l’École Élémentaire les Garrigues-Simone Veil, l’École Maternelle les Garrigues et le Collège Arthur Rimbaud à moins de 10 minutes à pied. Niveau transports, il y a trois gares (Montpellier Saint-Roch, Villeneuve-lès-Maguelone et Montpellier Sud de France) à moins de 10 minutes en voiture. La nationale N109 est accessible à 1 km. On trouve un tennis, des commerces, quatre boulangeries, un supermarché, un bureau de poste et une supérette dans les environs.Elle est proposée à l’achat pour 386 600 €.N’hésitez pas à prendre contact avec Thierry LAURENT ((Numéro supprimé)) pour obtenir de plus amples renseignements sur la maison ou sur les démarches à suivre.
Montpellier
TERRAIN ET MAISONMaison F4 (78 m²) à vendre à JuvignacEMPLACEMENT PRIVILÉGIÉ – MAISON 4 PIÈCES NEUVEÀ 15 km de la mer Méditerranée et à deux pas de Montpellier, Maisons de Manon Gignac vous propose cette maison de 4 pièces de 78 m² bénéficiant d’un emplacement privilégié dans Juvignac (34990).Cette maison comporte 2 niveaux. Son intérieur offre trois chambres, une cuisine et une salle de bains. La maison est neuve.Le terrain du bien s’étend sur 1 188 m².Cette maison se trouve dans un secteur recherché. Il y a l’École Élémentaire les Garrigues-Simone Veil, l’École Maternelle les Garrigues et le Collège Arthur Rimbaud à moins de 10 minutes à pied. Côté transports en commun, on trouve les gares Montpellier Saint-Roch, Villeneuve-lès-Maguelone et Montpellier Sud de France à moins de 10 minutes en voiture. Il y a un accès à la nationale N109 à 1 km. Il y a un tennis, des commerces, quatre boulangeries, un supermarché, une épicerie et une supérette à quelques minutes.Son prix de vente est de 347 300 €.Prenez contact avec Thierry LAURENT (tél : (Numéro supprimé)) pour toute question sur la maison, sur les démarches à suivre ou sur les modalités de vente. Faites de vos projets immobiliers une réalité avec Maisons de Manon Gignac.
Montpellier
TERRAIN ET MAISONJuvignac : maison F7 (104 m²) à vendreEMPLACEMENT PRIVILÉGIÉ – MAISON 7 PIÈCES NEUVEÀ vendre : à 15 km de la mer Méditerranée et à 7 km de Montpellier, nous sommes ravis de vous proposer cette maison de 7 pièces de 104 m² bénéficiant d’un emplacement d’exception dans Juvignac (34990).Cette maison compte 2 niveaux. Son intérieur se divise en six chambres, une cuisine et deux salles de bains. Cette maison est neuve.Le terrain de la propriété est de 1 188 m².La maison se trouve dans un quartier attractif. Il y a l’École Élémentaire les Garrigues-Simone Veil, l’École Maternelle les Garrigues et le Collège Arthur Rimbaud à moins de 10 minutes à pied. Niveau transports, on trouve trois gares (Montpellier Saint-Roch, Villeneuve-lès-Maguelone et Montpellier Sud de France) à moins de 10 minutes en voiture. La nationale N109 est accessible à 1 km. Il y a un tennis, des commerces, quatre boulangeries, un supermarché, un bureau de poste et deux boucheries-charcuteries à quelques minutes du bien.Elle est proposée à l’achat pour 430 000 €.Contactez notre agence (LAURENT Thierry : (Numéro supprimé)) pour toute question sur la propriété.
Montpellier
TERRAIN34070 MONTPELLIER – Terrain de 500 m2 , proche hôpital st Roch – Quartier résidentiel . Ce magnifique terrain arboré de 500.0 m2 situé dans un quartier résidentiel prisé de Montpellier.Idéalement placé et au calme ce terrain constructible offre une belle opportunité pour la construction d’une villa de 150 m2 à 180 m2 environ .Proche des commerces, des transports en commun, des écoles et à proximité de l’Hôpital St Roch, ce terrain bénéficie d’un emplacement de choix. Possibilité de bénéficier PTZ selon vos ressources.Ne manquez pas cette occasion unique de réaliser votre projet immobilier dans un cadre privilégié à Montpellier. Les informations sur les risques auxquels ce bien est exposé sont disponibles sur le site Georisque : georisques. gouv. fr Veronique Morice – EI – est Agent Commercial mandataire en immobilier, immatriculé au Registre Spécial des Agents Commerciaux du Tribunal de Commerce de Montpellier sous le n(Numéro supprimé).Siège social du mandant : effiCity, 48 avenue de Villiers – 75017 PARIS – Société par Actions Simplifiée, société au capital de 132 373,05 euros, immatriculée au RCS Paris 497 617 746 et titulaire de la Carte professionnelle CPI 7501 2015 000 002 025 – CCI Paris IDF – Caisse de Garantie : GALIAN Assurances 89 rue de la Boétie 75008 Paris
Vic-la-Gardiole
TERRAINVENTE d’un terrain de 375 m² à Vic-la-GardiolePROCHE DE MONTPELLIERÀ Vic-la-Gardiole (34110) en vente à 5 km de la mer Méditerranée, 10 minutes de frontignan, à 15 minutes de Montpellier sud, projetez la maison de vos rêves sur ce terrain de 375 m². Ce terrain est proche des commerces et des écoles. Il y a l’École Élémentaire Bernard Magloire et l’École Maternelle des Aresquiers à moins de 10 minutes à pied et une structure d’accueil pour la petite enfance. Niveau transports, on trouve trois gares (Vic-Mireval, Frontignan et Villeneuve-lès-Maguelone) à moins de 10 minutes en voiture. Les autoroutes A709 et A9 sont accessibles à moins de 9 km. Il y a deux commerces, une boulangerie, une supérette, un bureau de poste et une boucherie-charcuterie à quelques minutes.Son prix de vente est de 230 000 €. Contactez notre agence (ROMERA Lionel : (Numéro supprimé)) pour toute information sur ce terrain, sur les modalités de vente ou sur les démarches à suivre. Donnez vie à vos projets immobiliers avec Maisons France Confort Montpellier.Annonce proposée par un Agent Commercial Partenaire.
L’actualité immobilière à Villeneuve-lès-Maguelone
27/11/2023
02/11/2023
30/10/2023
20/10/2023
16/10/2023
16/10/2023