Maison à construire à Bain-de-Bretagne (35470)
Images
Description
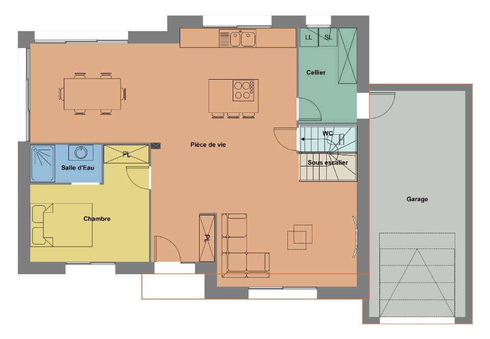
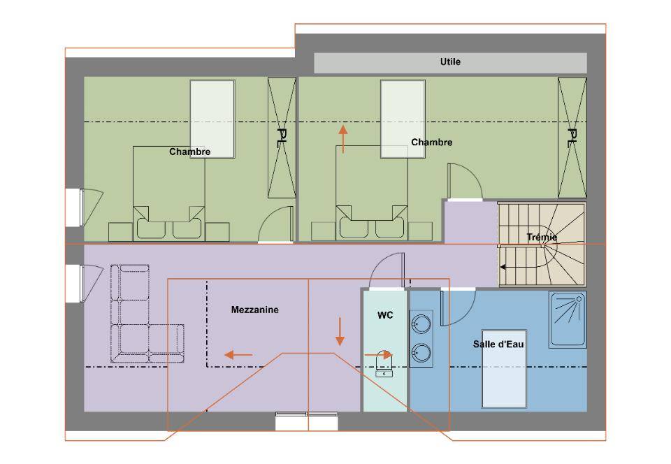
VENTE : maison de 5 pièces (121 m²) à Bain-de-Bretagne
IDÉALEMENT SITUÉE - MAISON 5 PIÈCES NEUVE
En vente : idéalement située dans Bain-de-Bretagne (35470), notre agence Maisons de l'Avenir Cesson-Sévigné est heureuse de vous présenter cette maison de 5 pièces de 121 m² et de 307 m² de terrain avec vue sur jardin. Elle offre quatre chambres, une cuisine et deux salles de bains.
Cette maison possède 2 niveaux. Elle est neuve.
La maison est située dans un secteur convoité. Des écoles (de la maternelle au lycée) sont implantées à moins de 10 minutes à pied, tout comme deux structures d'accueil pour la petite enfance. Côté transports en commun, il y a deux gares (Pléchâtel et Saint-Senoux-Pléchâtel) à moins de 10 minutes en voiture. Il y a un accès à la nationale N137 à 2 km. On trouve un bassin de natation, un tennis, des commerces, trois boulangeries, un bureau de poste, une poissonnerie et une boucherie-charcuterie à quelques minutes de la maison. Le marché Place St Martin anime le quartier tous les lundis matin.
Elle est proposée à l'achat pour 316 000 €.
Contactez notre agence (MESAS Dimitri : (Numéro supprimé)) pour obtenir de plus amples informations sur la maison.
Logement susceptibles de vous intéresser
Nous vous proposons de découvrir aussi cette sélection de logements situés à moins de 10km de Bain-de-Bretagne et qui seraient susceptibles de vous intéresser.
Bain-de-Bretagne
TERRAIN ET MAISONMaison de 4 pièces (95 m²) à vendre à Bain-de-BretagneIDÉALEMENT SITUÉE – MAISON 4 PIÈCES NEUVEEn vente : Maisons de l’Avenir Cesson-Sévigné vous présente, idéalement située dans Bain-de-Bretagne (35470), cette maison de 4 pièces de 95 m².Cette maison possède 2 niveaux. Elle dispose de trois chambres, d’une cuisine et de deux salles de bains. Cette maison est neuve.Le terrain de la propriété s’étend sur 307 m².Cette maison est située dans un quartier recherché. Il y a tous les types d’écoles (maternelle, élémentaire et secondaire) à moins de 10 minutes à pied, tout comme deux crèches. Côté transports, on trouve les gares Pléchâtel et Saint-Senoux-Pléchâtel à moins de 10 minutes en voiture. La nationale N137 est accessible à 2 km. Il y a un bassin de natation, un tennis, des commerces, trois boulangeries, une poissonnerie, une boucherie-charcuterie et deux épiceries à proximité du logement. Enfin, le marché Place St Martin anime les environs chaque lundi matin.Elle est proposée à l’achat pour 263 500 €.Contactez notre agence (Dimitri MESAS : (Numéro supprimé)) pour tout renseignement sur la maison ou sur les modalités de vente.
Bain-de-Bretagne
TERRAIN ET MAISONMAISON OSSATURE BOISVENTE : maison de 5 pièces (97 m²) à Bain-de-BretagneIDÉALEMENT SITUÉE – MAISON 5 PIÈCES NEUVEMaisons de l’Avenir Cesson-Sévigné vous présente en vente, idéalement située dans Bain-de-Bretagne (35470), cette maison de 5 pièces de 97 m² et de 307 m² de terrain. Son intérieur compte quatre chambres, une cuisine et deux salles de bains.Cette maison possède 2 niveaux. Elle est neuve.Cette maison se trouve dans un secteur attractif. Des écoles du primaire et du secondaire sont implantées à moins de 10 minutes à pied, tout comme deux crèches. Niveau transports en commun, on trouve les gares Pléchâtel et Saint-Senoux-Pléchâtel à moins de 10 minutes en voiture. La nationale N137 est accessible à 2 km. Il y a un bassin de natation, un tennis, des commerces, trois boulangeries, deux épiceries, une boucherie-charcuterie et un bureau de poste à proximité. Ne manquez pas le marché Place St Martin tous les lundis matin.Elle est à vendre pour la somme de 280 000 €.Contactez Dimitri MESAS ((Numéro supprimé)) pour tout renseignement sur la propriété ou sur les modalités de vente. Concrétisez vos projets immobiliers avec Maisons de l’Avenir Cesson-Sévigné.
Bain-de-Bretagne
TERRAIN ET MAISONVENTE : maison T5 (89 m²) à Bain-de-BretagneIDÉALEMENT SITUÉE – MAISON 5 PIÈCES NEUVEEn vente : nous sommes heureux de vous proposer cette maison de 5 pièces de 89 m² idéalement située dans Bain-de-Bretagne (35470). Elle comporte quatre chambres, une cuisine et deux salles de bains.Le terrain de la propriété est de 307 m².C’est une maison de 2 niveaux. Elle est neuve.Cette maison est située dans un quartier recherché. Il y a des écoles (de la maternelle au lycée) à moins de 10 minutes à pied, tout comme deux crèches. Niveau transports, on trouve deux gares (Pléchâtel et Saint-Senoux-Pléchâtel) à moins de 10 minutes en voiture. On trouve un accès à la nationale N137 à 2 km. Il y a un bassin de natation, un tennis, des commerces, trois boulangeries, une poissonnerie, un bureau de poste et une boucherie-charcuterie à proximité. Ne manquez pas le marché Place St Martin chaque lundi matin.Elle est à vendre pour la somme de 255 000 €.N’hésitez pas à prendre contact avec Dimitri MESAS ((Numéro supprimé)) pour tout renseignement sur la maison, sur les modalités de vente ou sur les démarches à suivre.
Bain-de-Bretagne
TERRAINTerrain de 307 m² en vente à Bain-de-BretagneIDÉALEMENT SITUÉÀ Bain-de-Bretagne (35470), imaginez la maison de vos rêves sur ce terrain de 307 m². Il donne sur un jardin et est orienté au sud. Il se situe dans un quartier convoité. Des établissements scolaires de tous types (de la maternelle au lycée) se trouvent à moins de 10 minutes à pied, tout comme deux crèches. Niveau transports, il y a deux gares (Pléchâtel et Saint-Senoux-Pléchâtel) à moins de 10 minutes en voiture. La nationale N137 est accessible à 2 km. On trouve un bassin de natation, un tennis, des commerces, trois boulangeries, deux épiceries, un bureau de poste et une boucherie-charcuterie à proximité du terrain. Enfin, le marché Place St Martin a lieu tous les lundis matin.Son prix de vente est de 53 500 €. N’hésitez pas à prendre contact avec Dimitri MESAS (tél : (Numéro supprimé)) pour toute question sur ce terrain, sur les démarches à suivre ou sur les modalités de vente. Faites de vos projets immobiliers une réalité avec Maisons de l’Avenir Cesson-Sévigné.
Bain-de-Bretagne
TERRAIN ET MAISONBain-de-Bretagne : maison F3 (60 m²) en venteIDÉALEMENT SITUÉE – MAISON 3 PIÈCES NEUVEÀ vendre : laissez vous charmer par cette maison de 3 pièces de plain-pied de 60 m² et de 307 m² de terrain idéalement située dans Bain-de-Bretagne (35470). Elle comporte deux chambres, une cuisine et une salle de bains.La maison est neuve.Cette maison se situe dans un quartier recherché. Il y a des établissements scolaires (de la maternelle au lycée) à moins de 10 minutes à pied, tout comme deux crèches. Côté transports en commun, on trouve les gares Pléchâtel et Saint-Senoux-Pléchâtel à moins de 10 minutes en voiture. La nationale N137 est accessible à 2 km. Il y a un bassin de natation, un tennis, des commerces, trois boulangeries, un bureau de poste, une boucherie-charcuterie et deux épiceries à proximité. Ne manquez pas le marché Place St Martin chaque lundi matin.Elle est à vendre pour la somme de 182 500 €.N’hésitez pas à prendre contact avec notre agence (MESAS Dimitri : (Numéro supprimé)) pour toute information sur la maison, sur les modalités de vente ou sur les démarches à suivre. Maisons de l’Avenir Cesson-Sévigné est là pour vous accompagner dans tous vos projets immobiliers.
Bain-de-Bretagne
TERRAIN ET MAISONVENTE : maison de 5 pièces (121 m²) à Bain-de-BretagneIDÉALEMENT SITUÉE – MAISON 5 PIÈCES NEUVEEn vente : idéalement située dans Bain-de-Bretagne (35470), notre agence Maisons de l’Avenir Cesson-Sévigné est heureuse de vous présenter cette maison de 5 pièces de 121 m² et de 307 m² de terrain avec vue sur jardin. Elle offre quatre chambres, une cuisine et deux salles de bains.Cette maison possède 2 niveaux. Elle est neuve.La maison est située dans un secteur convoité. Des écoles (de la maternelle au lycée) sont implantées à moins de 10 minutes à pied, tout comme deux structures d’accueil pour la petite enfance. Côté transports en commun, il y a deux gares (Pléchâtel et Saint-Senoux-Pléchâtel) à moins de 10 minutes en voiture. Il y a un accès à la nationale N137 à 2 km. On trouve un bassin de natation, un tennis, des commerces, trois boulangeries, un bureau de poste, une poissonnerie et une boucherie-charcuterie à quelques minutes de la maison. Le marché Place St Martin anime le quartier tous les lundis matin.Elle est proposée à l’achat pour 316 000 €.Contactez notre agence (MESAS Dimitri : (Numéro supprimé)) pour obtenir de plus amples informations sur la maison.
Bain-de-Bretagne
TERRAIN ET MAISONChatGPT a dit :À Bain-de-Bretagne, ce terrain de 350 m² offre une belle opportunité pour un projet de construction en plein cœur d’une commune recherchée. Situé à proximité immédiate des commerces, écoles et services, il permet un quotidien pratique et agréable. Les accès vers Rennes et Châteaubriant sont rapidement atteignables grâce aux axes principaux proches. Un emplacement idéal pour concilier confort, dynamisme et cadre de vie. Découvrez EVOLIA, votre future maison évolutive ! Bienvenue dans l'avenir de l'habitat avec EVOLIA, une maison évolutive, modulable et transformable. Grâce à ses configurations flexibles et ses nombreuses options de personnalisation, EVOLIA vous offre un confort inégalé et une modernité à un prix abordable. Faites de vos rêves de propriété une réalité et commencez à bâtir votre futur dès aujourd'hui ! Votre avenir commence ici ! Contactez-nous dès maintenant pour plus d'informations. Prix hors fourniture et pose : des appareils sanitaires (sauf système de chauffage et d'eau chaude sanitaire), du carrelage, de la faïence, de la cuisine aménagée, des revêtements de sol dans les chambres. Hors décoration et aménagement intérieur et peinture. Hors raccordements, frais de notaire et dommage ouvrage. // Réf. : 2454-213318-ENL. Prix terrain : 40 000 €, hors frais d'agence à la charge de l'acquéreur. Ce terrain vous est proposé, par nos partenaires fonciers, dans le cadre d'un projet de construction avec nous. Les informations sur les risques auxquels ce bien est exposé sont disponibles sur le site Géorisques (www.georisques.gouv.fr). Prix maison : 79 597 €.
Bain-de-Bretagne
TERRAINChatGPT a dit :À Bain-de-Bretagne, ce terrain de 350 m² offre une belle opportunité pour un projet de construction en plein cœur d’une commune recherchée. Situé à proximité immédiate des commerces, écoles et services, il permet un quotidien pratique et agréable. Les accès vers Rennes et Châteaubriant sont rapidement atteignables grâce aux axes principaux proches. Un emplacement idéal pour concilier confort, dynamisme et cadre de vie. // Réf. : T213318. Prix terrain : 40 000 €, hors frais d'agence et de notaire à la charge de l'acquéreur. Ce terrain vous est proposé, par nos partenaires fonciers, dans le cadre d'un projet de construction avec nous. Les informations sur les risques auxquels ce bien est exposé sont disponibles sur le site Géorisques (www.georisques.gouv.fr).
Bain-de-Bretagne
TERRAIN ET MAISONBain-de-Bretagne : maison F5 (120 m²) en venteMAISON 5 PIÈCES NEUVEDécouvrez cette maison de 5 pièces de 120 m² et de 339 m² de terrain à vendre à Bain-de-Bretagne (35470).Il s’agit d’une maison de 2 niveaux. Elle est composée de quatre chambres, d’une cuisine et de deux salles de bains. Son prix de vente est de 336 500 €.Prenez contact avec Cyril RENVAZE ((Numéro supprimé)) pour obtenir de plus amples informations sur cette maison ou sur les démarches à suivre.
L’actualité immobilière à Bain-de-Bretagne
27/11/2023
02/11/2023
30/10/2023
20/10/2023
16/10/2023
16/10/2023