Maison à construire à Bréal-sous-Montfort (35310)
Images
Description
VENTE : maison de 4 pièces (100 m²) à Bréal-sous-Montfort
IDÉALEMENT SITUÉE - MAISON 4 PIÈCES NEUVE
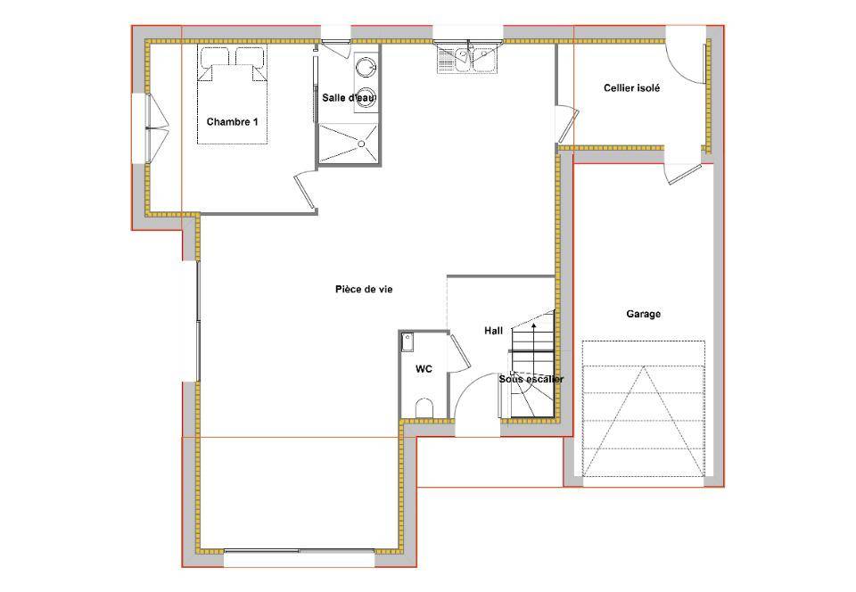
En vente à 16 km de Rennes, nous vous présentons cette maison de 4 pièces de 100 m² avec vue sur jardin idéalement située dans Bréal-sous-Montfort (35310).
C'est une maison de 2 niveaux. Elle compte quatre chambres, une cuisine et deux salles de bains. Cette maison est neuve.
Le terrain de la propriété est de 314 m².
Cette maison est située dans un secteur prisé. Il y a cinq établissements scolaires à moins de 10 minutes à pied. Niveau transports en commun, on trouve les gares Bruz, L'Hermitage-Mordelles et Ker Lann à moins de 10 minutes en voiture. La nationale N24 est accessible à 2 km. Il y a un tennis, une bibliothèque, quatre boulangeries, deux commerces, une boucherie-charcuterie et un bureau de poste à proximité.
Son prix de vente est de 292 200 €.
Contactez Dimitri MESAS ((Numéro supprimé)) pour plus de renseignements sur la maison, sur les modalités de vente ou sur les démarches à suivre.
Logement susceptibles de vous intéresser
Nous vous proposons de découvrir aussi cette sélection de logements situés à moins de 10km de Bréal-sous-Montfort et qui seraient susceptibles de vous intéresser.
Saint-Thurial
TERRAINTerrain à bâtir hors lotissement, entièrement viabilisé (eau et électricité), d’une superficie de 551 m², situé au calme et proche du bourg. . Environnement paisible à moins de 20 minutes de Rennes, idéal pour réaliser votre projet de maison sur mesure, dans un cadre rural attrayant à proximité des commerces et écoles. . // Réf. : T210645. Prix terrain : 89 500 €, hors frais d'agence et de notaire à la charge de l'acquéreur. Ce terrain vous est proposé, par nos partenaires fonciers, dans le cadre d'un projet de construction avec nous. Les informations sur les risques auxquels ce bien est exposé sont disponibles sur le site Géorisques (www.georisques.gouv.fr).
Saint-Thurial
TERRAIN ET MAISONTerrain à bâtir hors lotissement, entièrement viabilisé (eau et électricité), d’une superficie de 551 m², situé au calme et proche du bourg. . Environnement paisible à moins de 20 minutes de Rennes, idéal pour réaliser votre projet de maison sur mesure, dans un cadre rural attrayant à proximité des commerces et écoles. . Cette maison au design soigné allie modernité et fonctionnalité pour s’adapter à votre mode de vie. Son architecture contemporaine et ses beaux volumes offrent un cadre lumineux et chaleureux, pensé pour le bien-être au quotidien. Avec 4 chambres, dont une suite parentale avec dressing et salle d’eau, elle conjugue espaces privatifs et lieux de partage. Un garage pratique, des rangements optimisés et une conception fluide font de cette maison un projet personnalisable, en parfaite harmonie avec vos envies. Faites le premier pas vers votre futur chez-vous. Contactez-nous !. Pour un confort optimal et conforme à la RE2025, cette maison dispose d’une PAC avec plancher chauffant au rez-de-chaussée, radiateurs à l’étage et volets roulants électriques. À noter : Le prix indiqué exclut les revêtements de sol des chambres, la cuisine aménagée, la peinture, la décoration, les raccordements, les frais de notaire et l’assurance dommages-ouvrage. // Réf. : 2451-210645-ALT. Prix terrain : 89 500 €, hors frais d'agence à la charge de l'acquéreur. Ce terrain vous est proposé, par nos partenaires fonciers, dans le cadre d'un projet de construction avec nous. Les informations sur les risques auxquels ce bien est exposé sont disponibles sur le site Géorisques (www.georisques.gouv.fr). Prix maison : 338 496 €.
Saint-Thurial
TERRAIN ET MAISONTerrain à bâtir hors lotissement, entièrement viabilisé (eau et électricité), d’une superficie de 551 m², situé au calme et proche du bourg. . Environnement paisible à moins de 20 minutes de Rennes, idéal pour réaliser votre projet de maison sur mesure, dans un cadre rural attrayant à proximité des commerces et écoles. . Une maison qui s’adapte à vos envies. Alliance parfaite entre modernité et confort, cette maison offre un espace de vie lumineux et fonctionnel, pensé pour répondre aux besoins d’aujourd’hui. Avec 4 chambres, dont une suite parentale avec dressing et salle d’eau, elle garantit à chacun son espace tout en préservant la convivialité familiale. L’étage, astucieusement agencé, complète cet équilibre avec trois belles chambres et une salle de bains. Son architecture contemporaine, associée à des volumes optimisés, en fait un cadre de vie agréable et évolutif, entièrement personnalisable selon vos besoins. Un projet à imaginer ensemble ! Contactez-nous pour plus d’informations. Pour un confort optimal et conforme à la RE2025, cette maison dispose d’une PAC avec plancher chauffant au rez-de-chaussée, radiateurs à l’étage et volets roulants électriques. À noter : Le prix indiqué exclut les revêtements de sol des chambres, la cuisine aménagée, la peinture, la décoration, les raccordements, les frais de notaire et l’assurance dommages-ouvrage. . // Réf. : 543-210645-ALT. Prix terrain : 89 500 €, hors frais d'agence à la charge de l'acquéreur. Ce terrain vous est proposé, par nos partenaires fonciers, dans le cadre d'un projet de construction avec nous. Les informations sur les risques auxquels ce bien est exposé sont disponibles sur le site Géorisques (www.georisques.gouv.fr). Prix maison : 223 976 €.
Saint-Thurial
TERRAIN ET MAISONTerrain à bâtir hors lotissement, entièrement viabilisé (eau et électricité), d’une superficie de 551 m², situé au calme et proche du bourg. . Environnement paisible à moins de 20 minutes de Rennes, idéal pour réaliser votre projet de maison sur mesure, dans un cadre rural attrayant à proximité des commerces et écoles. . Dès l’entrée, vous serez séduit par une pièce de vie spacieuse et baignée de lumière, où salon, salle à manger et cuisine ouverte créent un espace convivial et chaleureux. L’agencement fluide et fonctionnel vous permet de profiter pleinement de chaque instant en famille ou entre amis. Côté nuit, la maison offre trois belles chambres, pensées pour le confort et la tranquillité de chacun. La suite parentale, intime et élégante, devient un véritable refuge, tandis que les chambres supplémentaires s’adaptent parfaitement aux besoins des enfants ou d’un bureau. Une salle de bain moderne complète cet espace avec style et praticité. À l’extérieur, un jardin agréable prolonge l’espace de vie, idéal pour savourer des moments en plein air. Un intérieur harmonieux, lumineux et conçu pour votre quotidien – tout ce qu’il faut pour s’y sentir bien dès le premier jour !. Pour vous assurer un confort de vie et conformément à la RE2025, nous avons choisi un mode de chauffage par PAC + plancher chauffant, volets roulants électriques. Prix hors peinture, décoration, revêtements de sol dans les chambres, cuisine équipée, frais de notaire, raccordements, dommage ouvrage. // Réf. : 2651-210645-ALT. Prix terrain : 89 500 €, hors frais d'agence à la charge de l'acquéreur. Ce terrain vous est proposé, par nos partenaires fonciers, dans le cadre d'un projet de construction avec nous. Les informations sur les risques auxquels ce bien est exposé sont disponibles sur le site Géorisques (www.georisques.gouv.fr). Prix maison : 165 418 €.
Saint-Thurial
TERRAINTerrain à bâtir hors lotissement, entièrement viabilisé (eau et électricité), d’une superficie de 551 m², situé au calme et proche du bourg. . Environnement paisible à moins de 20 minutes de Rennes, idéal pour réaliser votre projet de maison sur mesure, dans un cadre rural attrayant à proximité des commerces et écoles. . // Réf. : T210645. Prix terrain : 89 500 €, hors frais d'agence et de notaire à la charge de l'acquéreur. Ce terrain vous est proposé, par nos partenaires fonciers, dans le cadre d'un projet de construction avec nous. Les informations sur les risques auxquels ce bien est exposé sont disponibles sur le site Géorisques (www.georisques.gouv.fr).
Goven
TERRAINÀ vendre, terrain à bâtir viabilisé de 352 m² situé dans la commune de Goven, au calme et dans un environnement agréable. Proche des commerces, des écoles et des transports, ce terrain offre un cadre idéal pour votre futur projet de construction. // Réf. : T210484. Prix terrain : 69 900 €, hors frais d'agence et de notaire à la charge de l'acquéreur. Ce terrain vous est proposé, par nos partenaires fonciers, dans le cadre d'un projet de construction avec nous. Les informations sur les risques auxquels ce bien est exposé sont disponibles sur le site Géorisques (www.georisques.gouv.fr).
Goven
TERRAIN ET MAISONÀ vendre, terrain à bâtir viabilisé de 352 m² situé dans la commune de Goven, au calme et dans un environnement agréable. Proche des commerces, des écoles et des transports, ce terrain offre un cadre idéal pour votre futur projet de construction. Lignes contemporaines & espaces optimisés ! Offrez-vous une maison personnalisable, conçue pour le confort et la convivialité. Avec 4 chambres, dont une suite parentale avec dressing et salle d’eau au rez-de-chaussée, cette maison allie fonctionnalité et élégance. Son vaste espace de vie lumineux est l’endroit idéal pour partager des moments en famille. À l’étage, trois chambres bien agencées, une salle de bain moderne et un WC séparé offrent un espace nuit parfait. Un garage et un cellier viennent compléter ce projet pensé pour s’adapter à votre style de vie. Pour un confort optimal et conforme à la RE2025, cette maison dispose d’une PAC avec plancher chauffant, radiateurs à l’étage et volets roulants électriques. À noter : Le prix indiqué exclut les revêtements de sol des chambres, la cuisine aménagée, la peinture, la décoration, les raccordements, les frais de notaire et l’assurance dommages-ouvrage. N’attendez plus pour concrétiser votre projet de vie ! Contactez-nous pour plus d’informations et une étude personnalisée. // Réf. : 593-210484-ALT. Prix terrain : 69 900 €, hors frais d'agence à la charge de l'acquéreur. Ce terrain vous est proposé, par nos partenaires fonciers, dans le cadre d'un projet de construction avec nous. Les informations sur les risques auxquels ce bien est exposé sont disponibles sur le site Géorisques (www.georisques.gouv.fr). Prix maison : 287 712 €.
Goven
TERRAIN ET MAISONÀ vendre, terrain à bâtir viabilisé de 352 m² situé dans la commune de Goven, au calme et dans un environnement agréable. Proche des commerces, des écoles et des transports, ce terrain offre un cadre idéal pour votre futur projet de construction. Une maison spacieuse et élégante, conçue pour vous !. Découvrez ce modèle moderne de plus de 140 m², pensé pour allier confort et luminosité. Son vaste salon-séjour de 45 m², baigné de lumière, s’ouvre sur une cuisine conviviale. Une suite parentale au rez-de-chaussée avec dressing et salle d’eau privative, deux chambres et un bureau à l’étage, parfait pour le télétravail ou une chambre d’appoint. Garage et cellier attenant, pour un quotidien pratique et organisé. Pour un confort optimal et conforme à la RE2025, cette maison dispose d’une PAC avec plancher chauffant au rez-de-chaussée, radiateurs à l’étage et volets roulants électriques. À noter : Le prix indiqué exclut les revêtements de sol des chambres, la cuisine aménagée, la peinture, la décoration, les raccordements, les frais de notaire et l’assurance dommages-ouvrage. // Réf. : 538-210484-ALT. Prix terrain : 69 900 €, hors frais d'agence à la charge de l'acquéreur. Ce terrain vous est proposé, par nos partenaires fonciers, dans le cadre d'un projet de construction avec nous. Les informations sur les risques auxquels ce bien est exposé sont disponibles sur le site Géorisques (www.georisques.gouv.fr). Prix maison : 324 945 €.
Goven
TERRAIN ET MAISONÀ vendre, terrain à bâtir viabilisé de 352 m² situé dans la commune de Goven, au calme et dans un environnement agréable. Proche des commerces, des écoles et des transports, ce terrain offre un cadre idéal pour votre futur projet de construction. Offrez-vous une maison où chaque espace est conçu pour répondre aux exigences du quotidien, tout en alliant modernité et fonctionnalité. Son agencement optimisé propose une pièce de vie lumineuse et spacieuse, véritable cœur de la maison, idéale pour partager des moments inoubliables. Avec trois chambres accueillantes, un bureau polyvalent, une salle de bain élégante et un cellier astucieux, tout a été pensé pour une organisation fluide et harmonieuse. Son garage intégré facilite votre quotidien en offrant praticité et sécurité. Dotée d’une architecture contemporaine et d’un système de chauffage performant, cette maison assure un confort optimal toute l’année. Un cadre de vie idéal pour une famille en quête d’espace et de bien-être. Pour vous assurer un confort de vie et conformément à la RE2025, nous avons choisi un mode de chauffage par PAC + plancher chauffant, volets roulants électriques. Prix hors peinture, décoration, revêtements de sol dans les chambres, cuisine équipée, frais de notaire, raccordements, dommage ouvrage. // Réf. : 2648-210484-ALT. Prix terrain : 69 900 €, hors frais d'agence à la charge de l'acquéreur. Ce terrain vous est proposé, par nos partenaires fonciers, dans le cadre d'un projet de construction avec nous. Les informations sur les risques auxquels ce bien est exposé sont disponibles sur le site Géorisques (www.georisques.gouv.fr). Prix maison : 173 929 €.
L’actualité immobilière à Bréal-sous-Montfort
27/11/2023
02/11/2023
30/10/2023
20/10/2023
16/10/2023
16/10/2023