Maison à construire à Bréal-sous-Montfort (35310)
Images
Description
Maison de 4 pièces (94 m²) à vendre à Bréal-sous-Montfort
IDÉALEMENT SITUÉE - MAISON 4 PIÈCES NEUVE
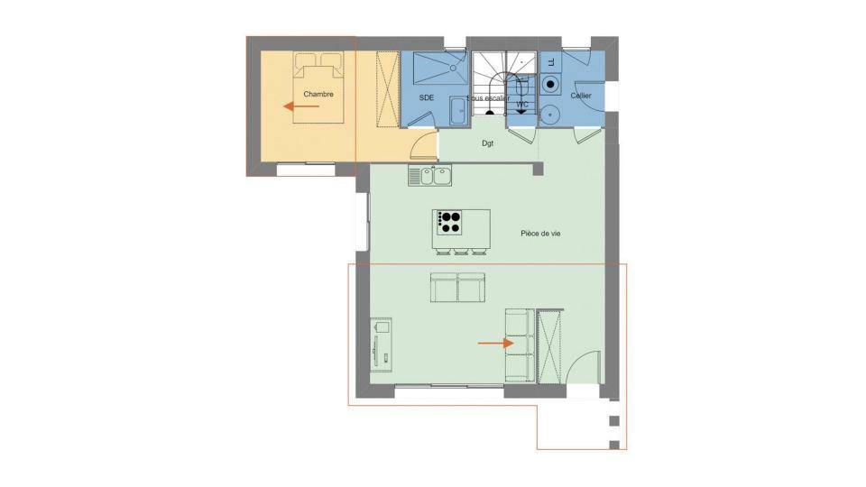
En vente à deux pas de Rennes, Maisons de l'Avenir Cesson-Sévigné vous propose, idéalement située dans Bréal-sous-Montfort (35310), cette maison de 4 pièces de 94 m². Son intérieur propose trois chambres, une cuisine et deux salles de bains.
Le terrain de la propriété est de 308 m².
C'est une maison de 2 niveaux. Elle est neuve.
Cette maison se situe dans un quartier recherché. Cinq établissements scolaires sont implantés à moins de 10 minutes à pied. Niveau transports, il y a les gares Bruz, L'Hermitage-Mordelles et Ker Lann à moins de 10 minutes en voiture. Il y a un accès à la nationale N24 à 2 km. On trouve un tennis, une bibliothèque, quatre boulangeries, deux commerces, une boucherie-charcuterie et un bureau de poste à proximité.
Elle est proposée à l'achat pour 280 000 €.
Prenez contact avec Dimitri MESAS ((Numéro supprimé)) pour obtenir de plus amples renseignements sur la maison ou sur les démarches à suivre. Faites de vos projets immobiliers une réalité avec Maisons de l'Avenir Cesson-Sévigné.
Logement susceptibles de vous intéresser
Nous vous proposons de découvrir aussi cette sélection de logements situés à moins de 10km de Bréal-sous-Montfort et qui seraient susceptibles de vous intéresser.
Cintré
TERRAINÀ vendre sur la commune de Cintré, terrain à bâtir d’une superficie de 444 m², entièrement viabilisé (eau, électricité, tout-à-l’égout). Situé dans un environnement calme et résidentiel, ce terrain offre un cadre idéal pour la construction de votre future maison. Proche du centre-bourg, des écoles et des commodités, vous profiterez d’un emplacement recherché à seulement quelques minutes de Rennes. // Réf. : T210945. Prix terrain : 103 000 €, hors frais d'agence et de notaire à la charge de l'acquéreur. Ce terrain vous est proposé, par nos partenaires fonciers, dans le cadre d'un projet de construction avec nous. Les informations sur les risques auxquels ce bien est exposé sont disponibles sur le site Géorisques (www.georisques.gouv.fr).
Cintré
TERRAIN ET MAISONÀ vendre sur la commune de Cintré, terrain à bâtir d’une superficie de 444 m², entièrement viabilisé (eau, électricité, tout-à-l’égout). Situé dans un environnement calme et résidentiel, ce terrain offre un cadre idéal pour la construction de votre future maison. Proche du centre-bourg, des écoles et des commodités, vous profiterez d’un emplacement recherché à seulement quelques minutes de Rennes. Laissez-vous séduire par cette maison moderne et lumineuse, pensée pour votre confort et votre bien-être. Avec 3 belles chambres, un espace de vie spacieux et convivial, baigné de lumière grâce à ses larges ouvertures, et un garage attenant, ce modèle offre une parfaite harmonie entre fonctionnalité et esthétisme. Sa conception optimisée vous permet de moduler les volumes selon vos envies : cuisine ouverte ou fermée, aménagement sur-mesure… Imaginez votre intérieur idéal ! Profitez d’une salle d’eau contemporaine et d’un cellier pratique pour un quotidien facilité. Son architecture sobre et élégante s’adapte à tous les styles de vie. Pour un confort optimal et conforme à la RE2025, cette maison dispose d’une PAC avec plancher chauffant et volets roulants électriques. À noter : Le prix indiqué exclut les revêtements de sol des chambres, la cuisine aménagée, la peinture, la décoration, les raccordements, les frais de notaire et l’assurance dommages-ouvrage. Envie d’un intérieur qui vous ressemble ? Contactez-nous et concrétisons ensemble votre projet sur-mesure !. . // Réf. : 1805-210945-ALT. Prix terrain : 103 000 €, hors frais d'agence à la charge de l'acquéreur. Ce terrain vous est proposé, par nos partenaires fonciers, dans le cadre d'un projet de construction avec nous. Les informations sur les risques auxquels ce bien est exposé sont disponibles sur le site Géorisques (www.georisques.gouv.fr). Prix maison : 281 667 €.
Cintré
TERRAIN ET MAISONÀ vendre sur la commune de Cintré, terrain à bâtir d’une superficie de 444 m², entièrement viabilisé (eau, électricité, tout-à-l’égout). Situé dans un environnement calme et résidentiel, ce terrain offre un cadre idéal pour la construction de votre future maison. Proche du centre-bourg, des écoles et des commodités, vous profiterez d’un emplacement recherché à seulement quelques minutes de Rennes. Offrez-vous un espace de vie généreux et baigné de lumière, conçu pour allier esthétique et confort. Avec ses 3 chambres, dont une suite parentale avec dressing et salle d’eau, ainsi qu’un bureau idéal pour le télétravail, cette maison s’adapte à tous vos projets. Son architecture fluide et moderne met en valeur des volumes spacieux et bien pensés, créant un intérieur chaleureux et fonctionnel. Chaque détail peut être personnalisé pour correspondre à votre style de vie. Faites de cette maison votre futur cocon, adaptée à votre terrain et à vos envies. Besoin d’inspiration ? Contactez-nous pour en discuter !. Pour un confort optimal et conforme à la RE2025, cette maison dispose d’une PAC avec plancher chauffant au rez-de-chaussée, radiateurs à l’étage et volets roulants électriques. À noter : Le prix indiqué exclut les revêtements de sol des chambres, la cuisine aménagée, la peinture, la décoration, les raccordements, les frais de notaire et l’assurance dommages-ouvrage. // Réf. : 390-210945-ALT. Prix terrain : 103 000 €, hors frais d'agence à la charge de l'acquéreur. Ce terrain vous est proposé, par nos partenaires fonciers, dans le cadre d'un projet de construction avec nous. Les informations sur les risques auxquels ce bien est exposé sont disponibles sur le site Géorisques (www.georisques.gouv.fr). Prix maison : 252 960 €.
Cintré
TERRAIN ET MAISONÀ vendre sur la commune de Cintré, terrain à bâtir d’une superficie de 444 m², entièrement viabilisé (eau, électricité, tout-à-l’égout). Situé dans un environnement calme et résidentiel, ce terrain offre un cadre idéal pour la construction de votre future maison. Proche du centre-bourg, des écoles et des commodités, vous profiterez d’un emplacement recherché à seulement quelques minutes de Rennes. Offrez-vous une maison spacieuse et lumineuse, pensée pour répondre aux exigences de la vie moderne. Son architecture élégante et ses volumes optimisés créent un cadre de vie agréable, alliant convivialité et intimité. Avec 4 chambres, dont une suite parentale au rez-de-chaussée, cette maison est idéale pour une famille en quête d’espace et de confort. Son vaste espace de vie baigné de lumière et ouvert sur l’extérieur invite à la détente et aux moments de partage. Afin de vous garantir un confort optimal et de répondre aux exigences de la RE2025, cette maison est équipée d’un système de chauffage par pompe à chaleur (PAC), avec un plancher chauffant au rez-de-chaussée et des radiateurs à l’étage. Des volets roulants électriques complètent les prestations pour plus de praticité. À noter :Le prix indiqué ne comprend pas la fourniture et la pose des revêtements de sol dans les chambres, la cuisine aménagée, ainsi que la peinture et la décoration intérieure. Il exclut également les raccordements, les frais de notaire et l’assurance dommages-ouvrage. (Piscine non contractuelle, non comprise dans le prix). // Réf. : 1671-210945-ALT. Prix terrain : 103 000 €, hors frais d'agence à la charge de l'acquéreur. Ce terrain vous est proposé, par nos partenaires fonciers, dans le cadre d'un projet de construction avec nous. Les informations sur les risques auxquels ce bien est exposé sont disponibles sur le site Géorisques (www.georisques.gouv.fr). Prix maison : 349 453 €.
Cintré
TERRAINÀ vendre sur la commune de Cintré, terrain à bâtir d’une superficie de 444 m², entièrement viabilisé (eau, électricité, tout-à-l’égout). Situé dans un environnement calme et résidentiel, ce terrain offre un cadre idéal pour la construction de votre future maison. Proche du centre-bourg, des écoles et des commodités, vous profiterez d’un emplacement recherché à seulement quelques minutes de Rennes. // Réf. : T210945. Prix terrain : 103 000 €, hors frais d'agence et de notaire à la charge de l'acquéreur. Ce terrain vous est proposé, par nos partenaires fonciers, dans le cadre d'un projet de construction avec nous. Les informations sur les risques auxquels ce bien est exposé sont disponibles sur le site Géorisques (www.georisques.gouv.fr).
Goven
TERRAINVENTE : terrain de 384 m² à GovenIDÉALEMENT SITUÉ – PROCHE DE RENNESÀ vendre à deux pas de Rennes à Goven (35580), terrain de 384 m². Il est prêt à accueillir votre résidence principale ou secondaire pour toute la famille. Il donne sur un jardin et est exposé plein sud. Il se trouve dans un secteur recherché. Il y a l’École Maternelle Publique la Marelle, l’École Élémentaire Publique la Marelle et l’École Primaire Privée St Guénolé à moins de 10 minutes à pied. Côté transports, on trouve les gares Bruz, Laillé et Ker Lann à moins de 10 minutes en voiture. La nationale N24 est accessible à 7 km. Il y a un tennis, une bibliothèque, une boulangerie, un commerce, un supermarché, une boucherie-charcuterie et un bureau de poste à quelques minutes de la propriété.Il est proposé à l’achat pour 89 625 €. N’hésitez pas à prendre contact avec Dimitri MESAS (tél : (Numéro supprimé)) pour toute question sur ce terrain, sur les démarches à suivre ou sur les modalités de vente.
Bréal-sous-Montfort
TERRAINVENTE d’un terrain de 308 m² à Bréal-sous-MontfortIDÉALEMENT SITUÉ – PROCHE DE RENNESÀ Bréal-sous-Montfort (35310) à 16 km de Rennes, imaginez la maison de vos rêves sur ce terrain de 308 m². Ce terrain, avec vue sur jardin, est orienté plein sud. Il se situe dans un quartier convoité. On trouve cinq établissements scolaires à moins de 10 minutes à pied. Niveau transports en commun, il y a trois gares (Bruz, L’Hermitage-Mordelles et Ker Lann) à moins de 10 minutes en voiture. La nationale N24 est accessible à 2 km. On trouve un tennis, une bibliothèque, quatre boulangeries, deux commerces, un bureau de poste et une boucherie-charcuterie à proximité.Ce terrain est proposé à l’achat pour 85 000 €. Contactez notre agence (MESAS Dimitri : (Numéro supprimé)) pour toute information sur ce terrain ou sur les démarches à suivre. Maisons de l’Avenir Cesson-Sévigné est là pour vous accompagner à toutes les étapes de l’achat.
Baulon
TERRAINTerrain de 479 m² à vendre à BaulonIDÉALEMENT SITUÉ – PROCHE DE RENNESÀ Baulon (35580) à 22 km de Rennes, donnez vie à la maison de vos rêves sur ce terrain de 479 m². Il donne sur un jardin et est exposé plein sud. Il est situé dans un quartier prisé. L’École Primaire Privée Ste Marie et l’École Primaire Publique les Lucioles se trouvent à moins de 10 minutes à pied. La nationale N24 est accessible à 7 km. Il y a un tennis, un commerce, une boulangerie et une épicerie à quelques minutes du bien.Son prix de vente est de 69 000 €. Contactez Dimitri MESAS (tél : (Numéro supprimé)) pour tout renseignement sur ce terrain. Maisons de l’Avenir Cesson-Sévigné est là pour vous accompagner dans toutes vos démarches.
Cintré
TERRAINCintré : terrain de 444 m² en venteIDÉALEMENT SITUÉ – PROCHE DE RENNESEn vente à 47 km de la Manche et à quelques kilomètres de Rennes à Cintré (35310), terrain de 444 m². Il donne sur un jardin et est exposé plein sud. Il est situé dans un quartier prisé. Il y a l’École Primaire Privée St Joseph et l’École Primaire Publique Arc-En-En à moins de 10 minutes à pied et trois crèches. Niveau transports, on trouve trois gares (Breteil, L’Hermitage-Mordelles et Montfort-sur-Meu) à moins de 10 minutes en voiture. Les nationales N24 et N12 sont accessibles à moins de 7 km. Il y a un tennis, une boulangerie et une épicerie à proximité du terrain.Ce terrain est proposé à l’achat pour 103 000 €. Contactez Dimitri MESAS (tél : (Numéro supprimé)) pour toute question sur ce terrain, sur les modalités de vente ou sur les démarches à suivre.
L’actualité immobilière à Bréal-sous-Montfort
27/11/2023
02/11/2023
30/10/2023
20/10/2023
16/10/2023
16/10/2023