Maison à construire à Cardroc (35190)
Images
Description
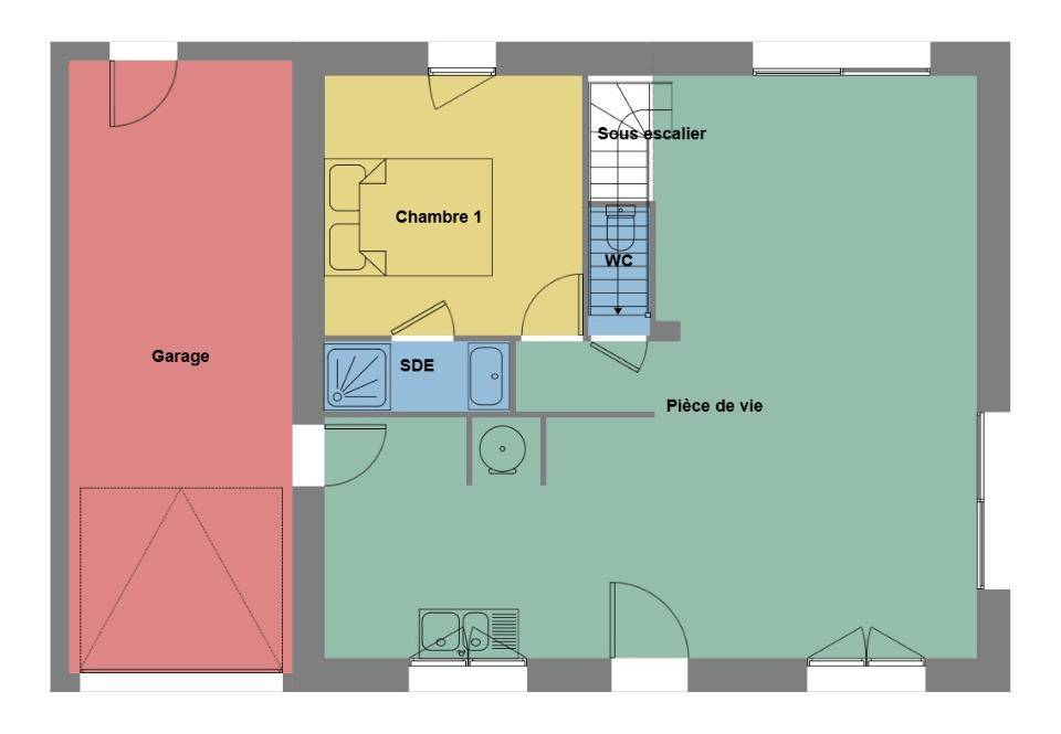
VENTE : maison de 6 pièces (119 m²) à Cardroc
IDÉALEMENT SITUÉE - MAISON 6 PIÈCES NEUVE
À 27 km de la Manche et à 24 km de Rennes, notre agence Maisons de l'Avenir Cesson-Sévigné est ravie de vous proposer cette maison de 6 pièces de 119 m² et de 438 m² de terrain en vente idéalement située dans Cardroc (35190).
Cette maison compte 2 niveaux. Elle inclut cinq chambres, une cuisine et deux salles de bains. Cette maison est neuve.
La maison est située dans un quartier prisé. L'École Élémentaire Publique de Cardroc est implantée à moins de 10 minutes à pied. La nationale N12 est accessible à 12 km.
Elle est à vendre pour la somme de 265 000 €.
Contactez Dimitri MESAS ((Numéro supprimé)) pour toute question sur la maison. Maisons de l'Avenir Cesson-Sévigné est là pour vous accompagner dans toutes vos démarches.
Logement susceptibles de vous intéresser
Nous vous proposons de découvrir aussi cette sélection de logements situés à moins de 10km de Cardroc et qui seraient susceptibles de vous intéresser.
Langan
TERRAIN ET MAISONChatGPT a dit :Terrain à vendre à Langan, situé dans un environnement paisible et verdoyant. Les transports permettent de rejoindre facilement Rennes et les communes voisines. Les écoles à proximité offrent un cadre pratique et sécurisé pour les familles. Les commerces et services du bourg facilitent le quotidien. Un emplacement privilégié alliant tranquillité, accessibilité et qualité de vie. Compacte et fonctionnelle, cette maison de plain-pied vous propose un bel espace de vie lumineux, avec une grande baie vitrée donnant sur le jardin. Sa cuisine est ouverte sur le séjour et dispose d'un accès direct au cellier, et au garage intégré. Son espace nuit est composé de deux chambres avec rangements, d'une salle de bains et de wc séparés. Pour vous assurer un confort de vie et conformément à la RE2025, nous avons choisi un mode de chauffage par PAC + plancher chauffant, volets roulants électriques. Prix hors fourniture et pose : des appareils sanitaires (sauf système de chauffage et d'eau chaude sanitaire), du carrelage et de la faïence, des revêtements de sol dans les chambres. Hors décoration et aménagement intérieur et peinture. Hors raccordements, frais de notaire et dommage ouvrage. // Réf. : 842-213494-JMD. Prix terrain : 67 600 €, hors frais d'agence à la charge de l'acquéreur. Ce terrain vous est proposé, par nos partenaires fonciers, dans le cadre d'un projet de construction avec nous. Les informations sur les risques auxquels ce bien est exposé sont disponibles sur le site Géorisques (www.georisques.gouv.fr). Prix maison : 129 532 €.
Hédé-Bazouges
TERRAIN ET MAISONÀ vendre, terrain constructible de 379 m² situé sur la commune de La Hédé. La parcelle est entièrement viabilisée et prête à accueillir votre projet de construction. Environnement paisible, proche des commodités du bourg et bénéficiant d’un cadre de vie agréable. Un cadre de vie pensé pour toute la famille. Confort, modernité et praticité se rencontrent dans cette maison à l’architecture affirmée. Ici, chaque espace est conçu pour s’adapter aux rythmes du quotidien : un vaste séjour baigné de lumière, une cuisine ouverte propice aux échanges et une belle harmonie entre pièces de vie et espaces privés. Avec 4 chambres, dont une suite parentale avec salle d’eau, cette maison offre à chacun son cocon tout en favorisant les moments de partage. Son aménagement astucieux, intégrant un garage et des rangements bien pensés, simplifie la vie et s’adapte à vos envies. Pour un confort optimal et conforme à la RE2025, cette maison dispose d’une PAC avec plancher chauffant au rez-de-chaussée, radiateurs à l’étage et volets roulants électriques. À noter : Le prix indiqué exclut les revêtements de sol des chambres, la cuisine aménagée, la peinture, la décoration, les raccordements, les frais de notaire et l’assurance dommages-ouvrage. // Réf. : 1309-213446-ALT. Prix terrain : 69 900 €, hors frais d'agence à la charge de l'acquéreur. Ce terrain vous est proposé, par nos partenaires fonciers, dans le cadre d'un projet de construction avec nous. Les informations sur les risques auxquels ce bien est exposé sont disponibles sur le site Géorisques (www.georisques.gouv.fr). Prix maison : 269 730 €.
Tinténiac
TERRAIN ET MAISONMAISON OSSATURE BOISMaison T4 (83 m²) en vente à TinténiacIDÉALEMENT SITUÉE – MAISON 4 PIÈCES NEUVEÀ vendre : à 25 km de la Manche et à 26 km de Rennes, nous vous présentons, idéalement située dans Tinténiac (35190), cette maison de 4 pièces de plain-pied de 83 m².Conçue de plain-pied, elle se divise en trois chambres, une cuisine et une salle de bains. La maison est neuve.Le terrain de la propriété s’étend sur 338 m².Cette maison est située dans un quartier convoité. On trouve tous les types d’établissements scolaires (de la maternelle au lycée) à moins de 10 minutes à pied. La nationale N12 est accessible à 18 km. Il y a deux tennis, des commerces, deux boulangeries, un bureau de poste, une supérette et une boucherie-charcuterie dans les environs. Le marché Place André Ferré anime le quartier chaque mercredi matin.Son prix de vente est de 254 000 €.Contactez notre agence (Dimitri MESAS : (Numéro supprimé)) pour plus d’informations sur la maison, sur les modalités de vente ou sur les démarches à suivre. Maisons de l’Avenir Cesson-Sévigné est là pour vous accompagner dans tous vos projets immobiliers.
Tinténiac
TERRAIN ET MAISONVENTE d’une maison de 3 pièces (70 m²) à TinténiacIDÉALEMENT SITUÉE – MAISON 3 PIÈCES NEUVEÀ 25 km de la Manche et à 26 km de Rennes, votre agence Maisons de l’Avenir Cesson-Sévigné est ravie de vous présenter cette maison de 3 pièces de 70 m² avec vue sur jardin à vendre idéalement située dans Tinténiac (35190).Cette maison est de plain-pied. Conçue de plain-pied, elle inclut deux chambres, une cuisine et une salle de bains. Cette maison est neuve.Le terrain du bien est de 338 m².La maison est située dans un quartier convoité. Tous les types d’écoles (de la maternelle au lycée) se trouvent à moins de 10 minutes à pied. Il y a un accès à la nationale N12 à 18 km. Il y a deux tennis, des commerces, deux boulangeries, une boucherie-charcuterie, une supérette et un bureau de poste à proximité. Le marché Place André Ferré a lieu tous les mercredis matin.Elle est à vendre pour la somme de 219 000 €.Prenez contact avec notre agence (Dimitri MESAS : (Numéro supprimé)) pour toute question sur la maison, sur les modalités de vente ou sur les démarches à suivre. Maisons de l’Avenir Cesson-Sévigné vous accompagne dans tous vos projets immobiliers et à toutes les étapes de votre projet.
Langan
TERRAINChatGPT a dit :Terrain à vendre à Langan, situé dans un environnement paisible et verdoyant. Les transports permettent de rejoindre facilement Rennes et les communes voisines. Les écoles à proximité offrent un cadre pratique et sécurisé pour les familles. Les commerces et services du bourg facilitent le quotidien. Un emplacement privilégié alliant tranquillité, accessibilité et qualité de vie. // Réf. : T213494. Prix terrain : 67 600 €, hors frais d'agence et de notaire à la charge de l'acquéreur. Ce terrain vous est proposé, par nos partenaires fonciers, dans le cadre d'un projet de construction avec nous. Les informations sur les risques auxquels ce bien est exposé sont disponibles sur le site Géorisques (www.georisques.gouv.fr).
Hédé-Bazouges
TERRAIN ET MAISONÀ vendre, terrain constructible de 379 m² situé sur la commune de La Hédé. La parcelle est entièrement viabilisée et prête à accueillir votre projet de construction. Environnement paisible, proche des commodités du bourg et bénéficiant d’un cadre de vie agréable. Cette maison allie modernité, fonctionnalité et élégance pour offrir un cadre de vie chaleureux et harmonieux. Son agencement optimisé permet à chaque membre de la famille de profiter d’un espace bien pensé, où confort et praticité se rencontrent. Avec quatre chambres accueillantes, une grande pièce de vie lumineuse, une salle de bain moderne et un cellier pratique, elle répond parfaitement aux besoins du quotidien. Son espace de vie convivial invite aux moments de partage, tandis que ses finitions soignées et son système de chauffage performant assurent un bien-être optimal en toute saison. Son architecture contemporaine et son aménagement astucieux en font un véritable cocon, où il fait bon vivre jour après jour. Pour vous assurer un confort de vie et conformément à la RE2025, nous avons choisi un mode de chauffage par PAC + plancher chauffant, volets roulants électriques. Prix hors peinture, décoration, revêtements de sol dans les chambres, cuisine équipée, frais de notaire, raccordements, dommage ouvrage. // Réf. : 2645-213446-ALT. Prix terrain : 69 900 €, hors frais d'agence à la charge de l'acquéreur. Ce terrain vous est proposé, par nos partenaires fonciers, dans le cadre d'un projet de construction avec nous. Les informations sur les risques auxquels ce bien est exposé sont disponibles sur le site Géorisques (www.georisques.gouv.fr). Prix maison : 171 811 €.
La Baussaine
TERRAINÀ vendre, terrain constructible de 463 m² situé sur la commune de La Baussaine. La parcelle est entièrement viabilisée, offrant un cadre idéal pour concrétiser votre projet de construction. Environnement calme et agréable, à proximité des services essentiels du village. // Réf. : T213445. Prix terrain : 51 000 €, hors frais d'agence et de notaire à la charge de l'acquéreur. Ce terrain vous est proposé, par nos partenaires fonciers, dans le cadre d'un projet de construction avec nous. Les informations sur les risques auxquels ce bien est exposé sont disponibles sur le site Géorisques (www.georisques.gouv.fr).
La Baussaine
TERRAINÀ vendre, terrain constructible de 463 m² situé sur la commune de La Baussaine. La parcelle est entièrement viabilisée, offrant un cadre idéal pour concrétiser votre projet de construction. Environnement calme et agréable, à proximité des services essentiels du village. // Réf. : T213445. Prix terrain : 51 000 €, hors frais d'agence et de notaire à la charge de l'acquéreur. Ce terrain vous est proposé, par nos partenaires fonciers, dans le cadre d'un projet de construction avec nous. Les informations sur les risques auxquels ce bien est exposé sont disponibles sur le site Géorisques (www.georisques.gouv.fr).
Tinténiac
TERRAIN ET MAISONVENTE : maison de 4 pièces (117 m²) à TinténiacIDÉALEMENT SITUÉE – MAISON 4 PIÈCES NEUVEÀ 25 km de la Manche et à deux pas de Rennes, Maisons de l’Avenir Cesson-Sévigné vous propose cette maison de 4 pièces de 117 m² idéalement située dans Tinténiac (35190).Cette maison compte 2 niveaux. Elle dispose de trois chambres, d’une cuisine et de deux salles de bains. La maison est neuve.Le terrain de la propriété s’étend sur 338 m².Cette maison est située dans un quartier recherché. On trouve des établissements scolaires (de la maternelle au lycée) à moins de 10 minutes à pied. Il y a un accès à la nationale N12 à 18 km. Il y a deux tennis, des commerces, deux boulangeries, une supérette, une boucherie-charcuterie et un bureau de poste à quelques minutes à peine. Ne manquez pas le marché Place André Ferré tous les mercredis matin.Son prix de vente est de 330 000 €.Contactez notre agence (MESAS Dimitri : (Numéro supprimé)) pour tout renseignement sur la maison. Maisons de l’Avenir Cesson-Sévigné est là pour vous accompagner dans toutes vos démarches.
L’actualité immobilière à Cardroc
27/11/2023
02/11/2023
30/10/2023
20/10/2023
16/10/2023
16/10/2023