Maison à construire à Chanteloup (35150)
Images
Description
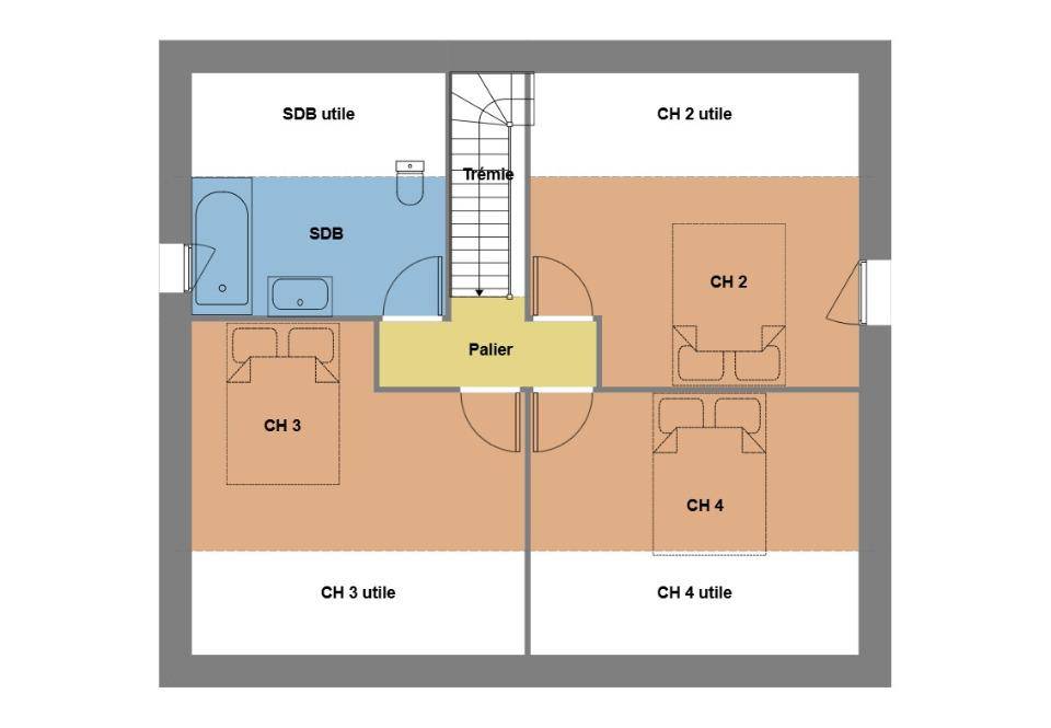
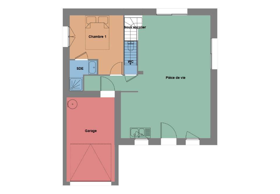
VENTE d'une maison T5 (111 m²) à Chanteloup
IDÉALEMENT SITUÉE - MAISON 5 PIÈCES NEUVE
À deux pas de Rennes, en vente idéalement située dans Chanteloup (35150), nous sommes ravis de vous présenter cette maison de 5 pièces de 111 m² et de 261 m² de terrain.
C'est une maison de 2 niveaux. Elle offre quatre chambres, une cuisine et deux salles de bains. Cette maison est neuve.
Cette maison est située dans un secteur convoité. L'École Primaire Publique Lucie Aubrac se trouve à moins de 10 minutes à pied, tout comme une crèche. Niveau transports en commun, il y a quatre gares à moins de 10 minutes en voiture. Il y a un accès à la nationale N137 à 6 km. On trouve une boulangerie dans les environs.
Elle est à vendre pour la somme de 244 500 €.
Contactez notre agence (MESAS Dimitri : (Numéro supprimé)) pour toute information sur la maison. Concrétisez vos projets immobiliers avec Maisons de l'Avenir Cesson-Sévigné.
Logement susceptibles de vous intéresser
Nous vous proposons de découvrir aussi cette sélection de logements situés à moins de 10km de Chanteloup et qui seraient susceptibles de vous intéresser.
Chanteloup
TERRAINÀ découvrir, un beau terrain d’une superficie totale de 642 m², situé dans un environnement calme et agréable.Le terrain est libre de constructeur, vous laissant la liberté de concrétiser votre projet selon vos envies. À viabiliser et à équiper d’un assainissement individuel.Une belle opportunité pour bâtir votre futur chez-vous en toute sérénité !N’hésitez plus, contactez-moi !Cette annonce référence 310002 vous est présentée par votre agent commercial BSK Immobilier AURELIE DEME (EI) immatriculé au RSAC de RENNES (35000) sous le numéro 534(Numéro supprimé)9.Prix du bien : 95 000,00 €Les honoraires d’agence sont à la charge du vendeur.Les informations sur les risques auxquels ce bien est exposé sont disponibles sur le site Géorisques : www.georisques.gouv.fr
Saint-Armel
TERRAIN ET MAISON?? Projet Maison + Terrain à Saint-Armel (35230) – Maison de 136m² – 4 chambres – Terrain de 546m²Habitat Concept vous propose un projet de construction sur-mesure à Saint-Armel, dans un environnement paisible et recherché, idéal pour y construire votre future maison familiale.?? LE TERRAIN :Surface : 546 m²Localisation : Commune de Saint-Armel (35230), à proximité immédiate de RennesEnvironnement : Terrain plat, viabilisé, situé dans un cadre résidentiel calme, proche des commodités, écoles, transports et commerces.Qualité de vie : Un village dynamique, alliant tranquillité et vie locale active, parfait pour une vie de famille.?? LE MODÈLE DE MAISON PROPOSÉ :Maison de plain-pied de 136 m² habitables, pensée pour votre confort au quotidien.4 chambres dont :1 suite parentale avec dressing3 chambres avec dressings individuels2 salles de bains : une privative + une communePièce de vie spacieuse de 60 m², lumineuse grâce à de grandes baies vitrées, ouverte sur la cuisineEntrée indépendante avec vestiaireConception fonctionnelle, personnalisable selon vos envies.? Ce que vous allez aimer :Possibilité de personnaliser le modèle ou de partir sur un projet 100% sur mesureUn terrain rare sur le secteur, avec belle expositionUn constructeur reconnu pour la qualité de ses prestations, son accompagnement et sa transparenceUne maison économe en énergie, conforme à la RE 2020?? Vous avez un projet de construction ?Ce projet peut être adapté à votre budget, vos besoins, votre style de vie. Contactez-nous pour une étude gratuite et personnalisée !
Chanteloup
TERRAINVENTE d’un terrain de 261 m² à ChanteloupIDÉALEMENT SITUÉ – PROCHE DE RENNESEn vente à deux pas de Rennes à Chanteloup (35150), terrain de 261 m². Il est prêt à accueillir votre projet de construction pour toute la famille. Ce terrain, avec vue sur jardin, bénéficie d’une exposition sud. Ce terrain est situé dans un secteur attractif. L’École Primaire Publique Lucie Aubrac est implantée à moins de 10 minutes à pied, tout comme une structure d’accueil pour les tout-petits. Niveau transports, il y a quatre gares à moins de 10 minutes en voiture. La nationale N137 est accessible à 6 km. On trouve une boulangerie à quelques minutes.Son prix de vente est de 54 500 €. Contactez Dimitri MESAS ((Numéro supprimé)) pour toute information sur le terrain. Donnez vie à vos projets immobiliers avec Maisons de l’Avenir Cesson-Sévigné.
Chanteloup
TERRAIN ET MAISONMaison T5 (90 m²) à vendre à ChanteloupIDÉALEMENT SITUÉE – MAISON 5 PIÈCES NEUVEEn vente : située à quelques kilomètres de Rennes, nous sommes ravis de vous proposer cette maison de 5 pièces de 90 m² et de 261 m² de terrain avec vue sur jardin idéalement située dans Chanteloup (35150).Il s’agit d’une maison de 2 niveaux. Elle dispose de quatre chambres, d’une cuisine et d’une salle de bains. La maison est neuve.La propriété se trouve dans un secteur attractif. L’École Primaire Publique Lucie Aubrac est implantée à moins de 10 minutes à pied, tout comme une structure d’accueil pour les enfants en bas âge. Côté transports, on trouve quatre gares à moins de 10 minutes en voiture. La nationale N137 est accessible à 6 km. Il y a une boulangerie à quelques minutes à peine.Son prix de vente est de 236 500 €.Prenez contact avec notre agence (Dimitri MESAS : (Numéro supprimé)) pour tout renseignement sur la maison ou sur les modalités de vente. Maisons de l’Avenir Cesson-Sévigné vous accompagne dans tous vos projets immobiliers et dans toutes vos démarches.
Chanteloup
TERRAIN ET MAISONChanteloup : maison de 3 pièces (86 m²) en venteIDÉALEMENT SITUÉE – MAISON 3 PIÈCES NEUVEÀ quelques kilomètres de Rennes, nous sommes ravis de vous présenter cette maison de 3 pièces de plain-pied de 86 m² idéalement située dans Chanteloup (35150). Elle est composée de trois chambres, d’une cuisine et d’une salle de bains.Le terrain de la propriété est de 261 m².Cette maison est neuve.La maison se trouve dans un secteur attractif. Il y a l’École Primaire Publique Lucie Aubrac à moins de 10 minutes à pied et une crèche. Niveau transports en commun, on trouve quatre gares à moins de 10 minutes en voiture. La nationale N137 est accessible à 6 km. Il y a une boulangerie à quelques minutes du logement.Son prix de vente est de 252 845 €.Contactez notre agence (Dimitri MESAS : (Numéro supprimé)) pour obtenir de plus amples informations sur le bien ou sur les démarches à suivre. Faites de vos projets immobiliers une réalité avec Maisons de l’Avenir Cesson-Sévigné.
Chanteloup
TERRAIN ET MAISONVENTE d’une maison F5 (110 m²) à ChanteloupIDÉALEMENT SITUÉE – MAISON 5 PIÈCES NEUVEÀ 18 km de Rennes, à vendre idéalement située dans Chanteloup (35150), nous sommes heureux de vous proposer cette maison de 5 pièces de 110 m². Elle dispose de quatre chambres, d’une cuisine et de deux salles de bains.Le terrain de cette maison s’étend sur 261 m².Il s’agit d’une maison de 2 niveaux. Elle est neuve.Cette maison est située dans un secteur prisé. L’École Primaire Publique Lucie Aubrac se trouve à moins de 10 minutes à pied, tout comme une crèche. Niveau transports en commun, il y a quatre gares à moins de 10 minutes en voiture. On trouve un accès à la nationale N137 à 6 km. On trouve une boulangerie à proximité.Elle est proposée à l’achat pour 295 000 €.Contactez notre agence (Dimitri MESAS : (Numéro supprimé)) pour toute information sur la maison ou sur les modalités de vente. Maisons de l’Avenir Cesson-Sévigné vous accompagne dans tous vos projets immobiliers et à toutes les étapes de l’achat.
Chanteloup
TERRAIN ET MAISONVENTE d’une maison T5 (111 m²) à ChanteloupIDÉALEMENT SITUÉE – MAISON 5 PIÈCES NEUVEÀ deux pas de Rennes, en vente idéalement située dans Chanteloup (35150), nous sommes ravis de vous présenter cette maison de 5 pièces de 111 m² et de 261 m² de terrain.C’est une maison de 2 niveaux. Elle offre quatre chambres, une cuisine et deux salles de bains. Cette maison est neuve.Cette maison est située dans un secteur convoité. L’École Primaire Publique Lucie Aubrac se trouve à moins de 10 minutes à pied, tout comme une crèche. Niveau transports en commun, il y a quatre gares à moins de 10 minutes en voiture. Il y a un accès à la nationale N137 à 6 km. On trouve une boulangerie dans les environs.Elle est à vendre pour la somme de 244 500 €.Contactez notre agence (MESAS Dimitri : (Numéro supprimé)) pour toute information sur la maison. Concrétisez vos projets immobiliers avec Maisons de l’Avenir Cesson-Sévigné.
Chanteloup
TERRAIN ET MAISONMaison ossature boisChanteloup : maison F4 (94 m²) à vendreIDÉALEMENT SITUÉE – MAISON 4 PIÈCES NEUVEÀ vendre : à deux pas de Rennes, Maisons de l’Avenir Cesson-Sévigné vous propose cette maison de 4 pièces de plain-pied de 94 m² et de 261 m² de terrain idéalement située dans Chanteloup (35150).Conçue de plain-pied, elle propose trois chambres, une cuisine et deux salles de bains. La maison est neuve.La maison se situe dans un quartier recherché. L’École Primaire Publique Lucie Aubrac est implantée à moins de 10 minutes à pied, tout comme une crèche. Côté transports, il y a quatre gares à moins de 10 minutes en voiture. Il y a un accès à la nationale N137 à 6 km. On trouve une boulangerie à proximité de la maison.Elle est proposée à l’achat pour 266 500 €.Prenez contact avec notre agence (MESAS Dimitri : (Numéro supprimé)) pour toute information sur la maison ou sur les modalités de vente.
Saulnières
TERRAINVENTE : terrain de 350 m² à SaulnièresPROCHE DE RENNESTerrain de 350 m² en vente à deux pas de Rennes. Ce terrain se situe dans Saulnières (35320). Son prix de vente est de 54 600 €. Contactez notre agence (RENVAZE Cyril : (Numéro supprimé)) pour tout renseignement sur ce terrain, sur les modalités de vente ou sur les démarches à suivre. Maisons de l’Avenir Cesson-Sévigné est là pour vous accompagner dans tous vos projets immobiliers.
L’actualité immobilière à Chanteloup
27/11/2023
02/11/2023
30/10/2023
20/10/2023
16/10/2023
16/10/2023